4.9
Рейтинг на основании 120 отзывов
Дмитров
Опорный проезд 28Б
(индустриальный парк Ниагара)
Бренд "Дмитров-Дело" c 2008 года на рынке строительства в Дмитрове
Звоните 9:00 до 18:00 8 (915) 055-33-61
Бренд "Дмитров-Дело" c 2008 года на рынке строительства в Дмитрове

Виктория

Стоимость проекта от:
32 400 ₽
БЕСПЛАТНО! ПРИ ЗАКАЗЕ СТРОИТЕЛЬСТВА
Стоимость строительства от:
5 414 640 ₽
Артикул ART-12961
Дата 25.12.2025
Архитектурный стиль Классический
Количество надземных этажей 1
Круглогодичное проживание Да
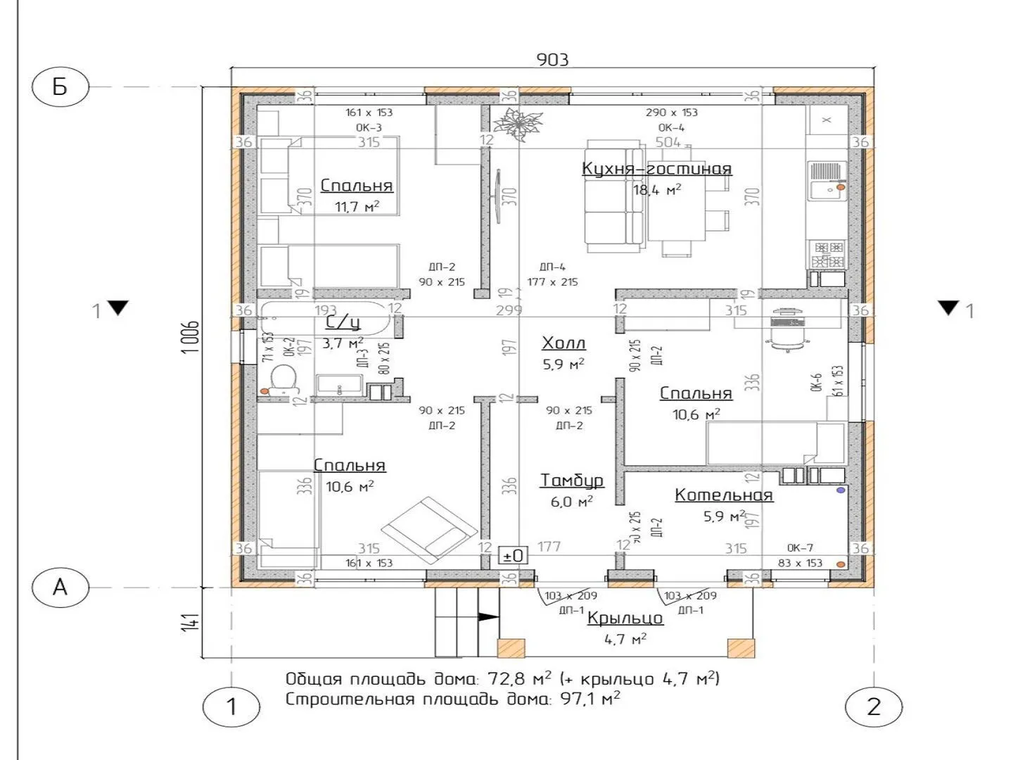
Площадь дома 72 м2
Санузлы 1
Спальни 3

Описание

Погрузитесь в атмосферу истинного уюта, где классический дизайн встречается с комфортом и практичностью в одном роскошном доме. Одноэтажный фасон, выполненный из газобетонных блоков, не только придаёт ему строгую элегантность, но и обеспечивает отличную тепло- и звукоизоляцию, позволяя наслаждаться тёплым климатом здесь даже в самые холодные дни. Крыша комбинированного типа гарантирует надёжную защиту от непогоды, а просторное чердачное помещение открывает новые возможности для хранения вещей, уютного уголка для творчества или дополнительной спальни. Каждый уголок этого дома пронизан светом и гармонией. Внутренние помещения распланированы так, чтобы обеспечить максимальный комфорт для всей семьи: просторные комнаты, удобная кухня, уютные зоны отдыха. Никаких балконов, веранд или террас – но это не мешает чувствовать связь с природой через большие окна, которые наполняют комнату природным светом и создают ощущение свободы и лёгкости. Выбирая этот дом, вы инвестируете в надёжность, стиль и незабываемый комфорт. Он идеально подходит для круглогодичного проживания, даря вам и вашим близким уютный уголок, где каждый день будет наполнен теплом, порядком и эстетикой. Позвольте себе жить в гармонии с классикой и современной техникой, сделав этот дом вашим любимым местом на долгие годы.

Характеристики дома

Архитектурный стиль
Автоматизированное регулирование параметров теплоносителя
Нет
Балконы/лоджии
Отсутствуют
Чердачное помещение
Да
Датчики протечки воды
Нет
Эксплуатируемая или зеленая кровля
Нет
Электроснабжение
Центральное
Газоснабжение
Индивидуальное
Изоляция воздушного шума
Нет
Камин
Нет
Класс энергоэффективности
-
Класс энергосбережения
-
Количество надземных этажей
1
Круглогодичное проживание
Да
Материал кровли
Металлочерепица
Материал перекрытий
Деревянные
Материал внешних стен
Материал внутренних перегородок
Блочные
Модульное строительство с конструкциями заводского изготовления
Нет
Объем надземной части
465 м3
Основной материал фасадов
Облицовочный кирпич
Отопление
Индивидуальное
Площадь дома
72 м2
Площадь застройки
97 м2
Подвальное помещение
Нет
Показатель компактности здания
-
Приборы учета тепловой энергии
Нет
Пристроенный гараж/крытая автостоянка
Нет
Противопожарная система
Нет
Санузлы
1
Совмещенная кухня-гостиная
Да
Спальни
3
Терраса
Нет
Тип фундамента
Свайно-ростверковый
Тип кровли
Толщина внешних стен
250 мм
Толщина внутренних перегородок
200 мм
Улучшенные шумовые характеристики
Нет
Вентиляция
Естественная
Веранда
Нет
Водоотведение
Локальные очистные сооружения
Водоснабжение
Индивидуальное
Высота дома
5.38 м
Высота потолков
2.85 м

Планировка

Фасад дома

Александр

Закажите выезд инженера

Александр

Выездной инженер
Закажите выезд инженера для точной диагностики и профессиональной консультации по инженерным системам. Специалист приедет в удобное время, проведёт осмотр, рассчитает стоимость работ и подберёт оптимальные решения для вашего дома.


    Похожие проекты

    Ипотека и
    рассрочка
    S.Dom-98-2
    Стоимость от:
    5 116 560
    Проект от: 35 550
    Этажей 2
    Санузлы 1
    Спальни 4
    Смотреть
    Ипотека и
    рассрочка
    КД-124/3
    Стоимость от:
    8 560 500
    Проект от: 58 500
    Этажей 2
    Санузлы 2
    Спальни 3
    Смотреть
    Ипотека и
    рассрочка
    БарнХаус «Просторный». Проект 60-23КД4.
    Стоимость от:
    6 984 780
    Проект от: 51 300
    Этажей 1
    Санузлы 2
    Спальни 3
    Смотреть
    Ипотека и
    рассрочка
    СТАН 1ВВ
    Стоимость от:
    7 140 100
    Проект от: 42 750
    Этажей 1
    Санузлы 1
    Спальни 2
    Смотреть
    Ипотека и
    рассрочка
    Одноэтажный дом из арболита- Всеволжск
    Стоимость от:
    8 278 820
    Проект от: 54 450
    Этажей 1
    Санузлы 2
    Спальни 3
    Смотреть
    Ипотека и
    рассрочка
    ТН-175
    Стоимость от:
    10 722 250
    Проект от: 78 750
    Этажей 1
    Санузлы 2
    Спальни 2
    Смотреть

    Как узнать стоимость дома

    back
    Оставляете заявку
    Вы заполняете форму на сайте или звоните нам. Менеджер Лайвкрафт связывается с вами для уточнения деталей: тип дома, площадь, материалы, участок строительства.
    back
    Консультация и подбор решения
    Наш специалист помогает выбрать оптимальный тип дома и конструкцию с учётом бюджета, сроков и целей — будь то дом для постоянного проживания или дача.
    back
    Расчёт предварительной стоимости
    Инженер делает первичный расчёт стоимости строительства по вашим параметрам: фундамент, коробка, кровля, отделка. Вы получаете смету с разбивкой по этапам.
    back
    Корректировка и утверждение сметы
    При необходимости вносим изменения — например, замену материалов или сокращение этапов. После согласования формируется окончательная фиксированная смета.
    back
    Заключение договора и старт работ
    После утверждения сметы заключаем официальный договор с гарантией. Вы получаете прозрачный график и точную стоимость — без скрытых расходов.

    Заказать конусльтацию по:Виктория

    Фото 1 Виктория


      Наши
      контакты

      Дмитров
      Опорный проезд 28Б
      (индустриальный парк Ниагара)
      9:00 до 18:00

      Корзина