4.9
Рейтинг на основании 120 отзывов
Дмитров
Опорный проезд 28Б
(индустриальный парк Ниагара)
Бренд "Дмитров-Дело" c 2008 года на рынке строительства в Дмитрове
Звоните 9:00 до 18:00 8 (915) 055-33-61
Бренд "Дмитров-Дело" c 2008 года на рынке строительства в Дмитрове

Волошина

Стоимость проекта от:
32 400 ₽
БЕСПЛАТНО! ПРИ ЗАКАЗЕ СТРОИТЕЛЬСТВА
Стоимость строительства от:
5 414 640 ₽
Артикул ART-17404
Дата 26.12.2025
Архитектурный стиль Классический
Количество надземных этажей 1
Круглогодичное проживание Да
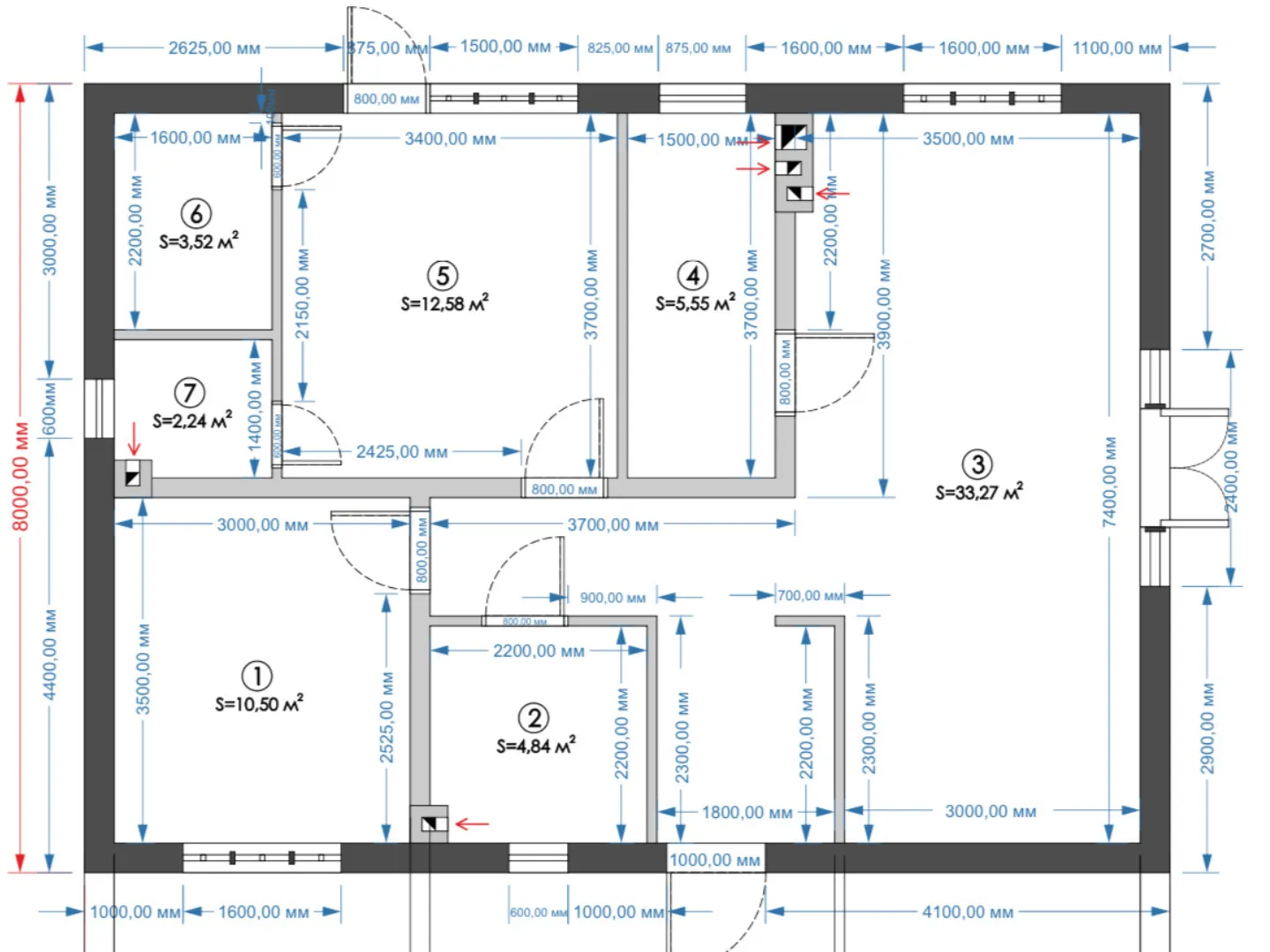
Площадь дома 72 м2
Санузлы 1
Спальни 2

Описание

Наслаждайтесь уютом и комфортом в этом элегантном одноместном доме, где каждый уголок пропитан классическим стилем и теплом. Благодаря газобетонным блокам наружных стен, конструкция сохраняет энергоэффективность и стабильность, а четырёхскатная (вальмовая) крыша добавляет изысканности и защищает от непогод. Внутренние помещения открыты, просторны и позволяют полностью раскрыть свой потенциал: чердачное пространство легко превратить в уютный кабинет, комнату для детей или кладовой, создавая дополнительный доходной потенциал и функциональность. Круглогодичное проживание гарантировано благодаря продуманной планировке: оттепелями, утепление и удобство внутренний тёплый климат обеспечивают комфорт в любую погоду. Дом без балконов, веранд и гаража позволяет сосредоточиться на внутреннем пространстве, создавая идеальную среду для семейных вечеров, чтения или работы. Просторные стены и светлые полы визуально увеличивают пространство, создавая ощущение воздушности и простора. Идеально подойдёт тем, кто ценит традиционные ценности и стремится к уюту, но при этом желает экономию и практичность. Этот дом — ваш персональный оазис спокойствия, где каждый день начинается с тепла и завершается ощущением полноценной домашней гармонии. Приезжайте, откройте новые возможности вашего личного пространства и окунитесь в атмосферу истинной домашней роскоши.

Характеристики дома

Архитектурный стиль
Автоматизированное регулирование параметров теплоносителя
Нет
Балконы/лоджии
Отсутствуют
Чердачное помещение
Да
Датчики протечки воды
Нет
Эксплуатируемая или зеленая кровля
Нет
Электроснабжение
Не предусмотрено
Газоснабжение
Не предусмотрено
Изоляция воздушного шума
Нет
Камин
Нет
Класс энергоэффективности
-
Класс энергосбережения
-
Количество надземных этажей
1
Круглогодичное проживание
Да
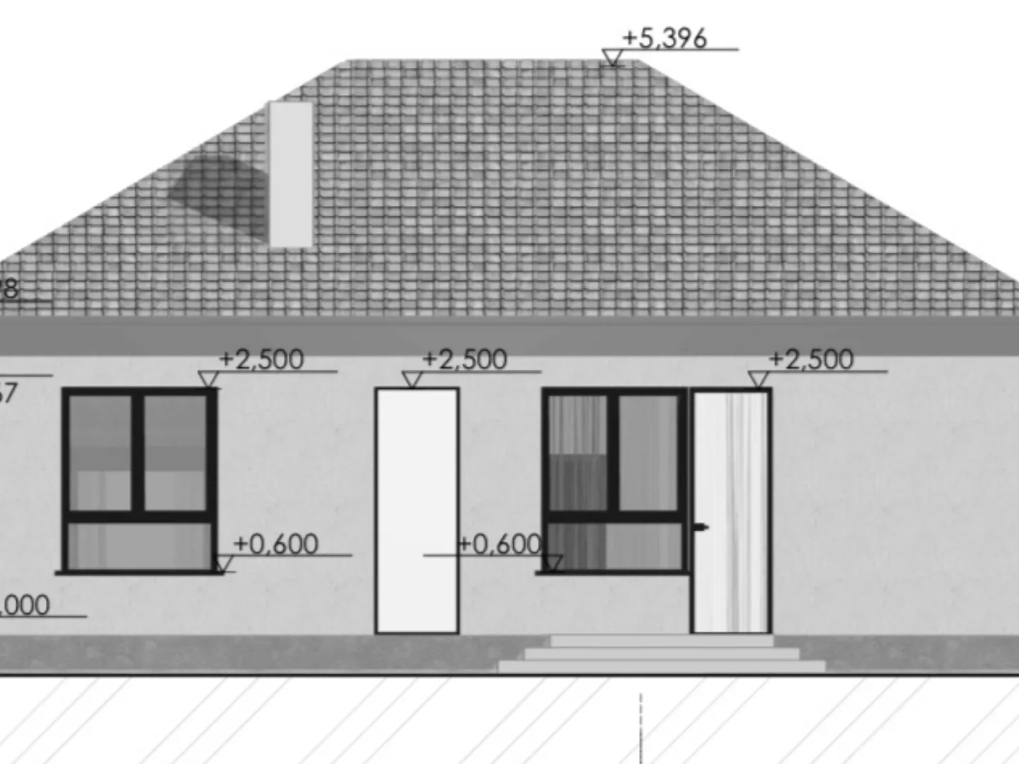
Материал кровли
Металлочерепица
Материал перекрытий
Деревянные
Материал внешних стен
Материал внутренних перегородок
Блочные
Модульное строительство с конструкциями заводского изготовления
Нет
Объем надземной части
474 м3
Основной материал фасадов
Штукатурка
Отопление
Не предусмотрено
Площадь дома
72 м2
Площадь застройки
88 м2
Подвальное помещение
Нет
Показатель компактности здания
-
Приборы учета тепловой энергии
Нет
Пристроенный гараж/крытая автостоянка
Нет
Противопожарная система
Нет
Санузлы
1
Совмещенная кухня-гостиная
Да
Спальни
2
Терраса
Нет
Тип фундамента
Свайно-ростверковый
Толщина внешних стен
300 мм
Толщина внутренних перегородок
120 мм
Улучшенные шумовые характеристики
Нет
Вентиляция
Естественная
Веранда
Нет
Водоотведение
Локальные очистные сооружения
Водоснабжение
Не предусмотрено
Высота дома
5.39 м
Высота потолков
3 м

Планировка

Фасад дома

Александр

Закажите выезд инженера

Александр

Выездной инженер
Закажите выезд инженера для точной диагностики и профессиональной консультации по инженерным системам. Специалист приедет в удобное время, проведёт осмотр, рассчитает стоимость работ и подберёт оптимальные решения для вашего дома.


    Похожие проекты

    Ипотека и
    рассрочка
    Авторский проект «Самар»
    Стоимость от:
    11 453 760
    Проект от: 73 800
    Этажей 2
    Санузлы 2
    Спальни 4
    Смотреть
    Ипотека и
    рассрочка
    Дом в Илеть
    Стоимость от:
    18 768 960
    Проект от: 118 800
    Этажей 2
    Санузлы 4
    Спальни 2
    Смотреть
    Ипотека и
    рассрочка
    ОД- 288
    Стоимость от:
    8 455 260
    Проект от: 62 100
    Этажей 1
    Санузлы 2
    Спальни 3
    Смотреть
    Ипотека и
    рассрочка
    Дом «Шонди»
    Стоимость от:
    5 759 380
    Проект от: 42 300
    Этажей 1
    Санузлы 1
    Спальни 3
    Смотреть
    Ипотека и
    рассрочка
    Загородный дом СТОУН-1
    Стоимость от:
    14 606 880
    Проект от: 90 900
    Этажей 2
    Санузлы 2
    Спальни 3
    Смотреть
    Ипотека и
    рассрочка
    Фаворит 6х7
    Стоимость от:
    4 491 960
    Проект от: 33 750
    Этажей 2
    Санузлы 1
    Спальни 3
    Смотреть

    Как узнать стоимость дома

    back
    Оставляете заявку
    Вы заполняете форму на сайте или звоните нам. Менеджер Лайвкрафт связывается с вами для уточнения деталей: тип дома, площадь, материалы, участок строительства.
    back
    Консультация и подбор решения
    Наш специалист помогает выбрать оптимальный тип дома и конструкцию с учётом бюджета, сроков и целей — будь то дом для постоянного проживания или дача.
    back
    Расчёт предварительной стоимости
    Инженер делает первичный расчёт стоимости строительства по вашим параметрам: фундамент, коробка, кровля, отделка. Вы получаете смету с разбивкой по этапам.
    back
    Корректировка и утверждение сметы
    При необходимости вносим изменения — например, замену материалов или сокращение этапов. После согласования формируется окончательная фиксированная смета.
    back
    Заключение договора и старт работ
    После утверждения сметы заключаем официальный договор с гарантией. Вы получаете прозрачный график и точную стоимость — без скрытых расходов.

    Заказать конусльтацию по:Волошина

    Фото 1 Волошина


      Наши
      контакты

      Дмитров
      Опорный проезд 28Б
      (индустриальный парк Ниагара)
      9:00 до 18:00

      Корзина