4.9
Рейтинг на основании 120 отзывов
Дмитров
Опорный проезд 28Б
(индустриальный парк Ниагара)
Бренд "Дмитров-Дело" c 2008 года на рынке строительства в Дмитрове
Звоните 9:00 до 18:00 8 (915) 055-33-61
Бренд "Дмитров-Дело" c 2008 года на рынке строительства в Дмитрове

Времена Года. Зима, лето, весна, осень. Комплектация Серебро.

Стоимость проекта от:
45 900 ₽
БЕСПЛАТНО! ПРИ ЗАКАЗЕ СТРОИТЕЛЬСТВА
Стоимость строительства от:
474 300 ₽
Артикул ART-4538
Дата 26.12.2025
Архитектурный стиль Русский
Количество надземных этажей 2
Круглогодичное проживание Да
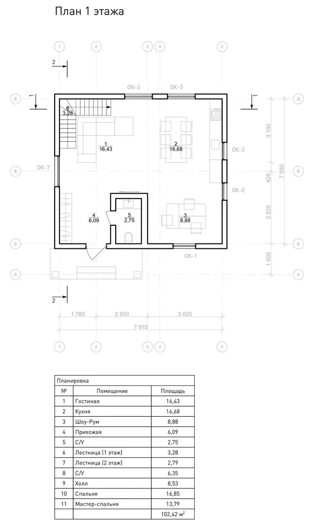
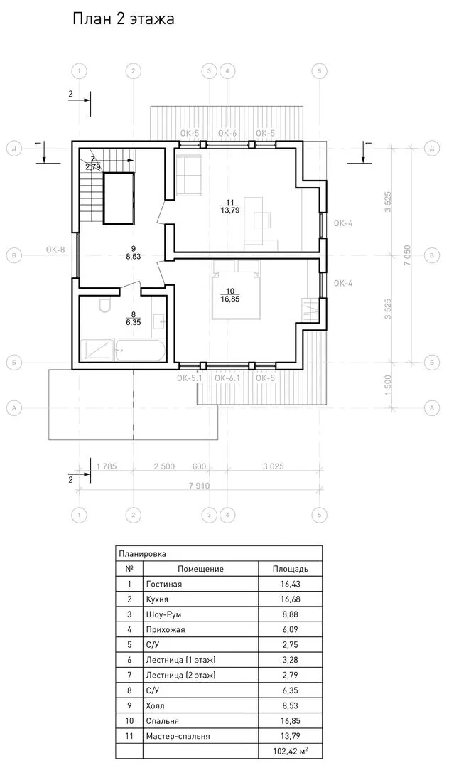
Площадь дома 102 м2
Санузлы 2
Спальни 2

Описание

Добро пожаловать в уютный уголок дома, где каждая порода времени раскрывает свою неповторимую волшебную палитру. Зимние морозы с зеркальной льдистой прелестью, весенние ароматы распускающейся зелени, летний свет, проникающий сквозь окна, и осенний золотой ковер, создают непрерывный калейдоскоп эмоций. В комплектации «Серебро» вы получите все необходимое для комфортной жизни, а два надземных этажа откроют просторные комнаты, где каждый сможет найти свой тихий уголок вдохновения. Архитектурный стиль дома – истинная русская классика, привлекающая взгляд своими гармоничными линиями и характерным очарованием. Стены из современных CLT‑панелей не только экономят энергию, но и придают квартире воздушную лёгкость. Четырехскатная (вальмовая) крыша защищает от непогоды и добавляет архитектурного визуального интереса. Дом оснащён двумя балконами и просторной верандой, открывающими доступ к свежему воздуху и живописным пейзажам. Круглогодичное проживание гарантировано благодаря продуманной теплоизоляции и энергоэффективности. Без пристроенного гаража и чердачного помещения дом остаётся открытым и лёгким, а отсутствие террасы подчёркивает практичность русской традиции. Здесь, в этом гармоничном союзе природы и современного комфорта, вы сможете наслаждаться каждым моментом, будь то тихие семейные вечера или солнечная прогулка по собственному двору в любое время года. Это ваш новый дом — ваш новый мир.

Характеристики дома

Архитектурный стиль
Автоматизированное регулирование параметров теплоносителя
-
Балконы/лоджии
2
Чердачное помещение
Нет
Датчики протечки воды
-
Эксплуатируемая или зеленая кровля
-
Электроснабжение
Не предусмотрено
Газоснабжение
Не предусмотрено
Изоляция воздушного шума
-
Камин
Нет
Класс энергоэффективности
-
Класс энергосбережения
-
Количество надземных этажей
2
Круглогодичное проживание
Да
Материал кровли
Фальцевая кровля кровля из оцинкованных стальных листов
Материал перекрытий
Деревянные
Материал внешних стен
Материал внутренних перегородок
Гипсокартонные
Модульное строительство с конструкциями заводского изготовления
Нет
Объем надземной части
510 м3
Основной материал фасадов
Дерево
Отопление
Не предусмотрено
Площадь дома
102 м2
Площадь застройки
69 м2
Подвальное помещение
Нет
Показатель компактности здания
-
Приборы учета тепловой энергии
-
Пристроенный гараж/крытая автостоянка
Нет
Противопожарная система
Нет
Санузлы
2
Совмещенная кухня-гостиная
Да
Спальни
2
Терраса
Нет
Тип фундамента
Свайно-винтовой
Толщина внешних стен
160 мм
Толщина внутренних перегородок
120 мм
Улучшенные шумовые характеристики
-
Вентиляция
Естественная
Веранда
Да
Водоотведение
Не предусмотрено
Водоснабжение
Не предусмотрено
Высота дома
9.45 м
Высота потолков
3 м

Планировка

Фасад дома

Александр

Закажите выезд инженера

Александр

Выездной инженер
Закажите выезд инженера для точной диагностики и профессиональной консультации по инженерным системам. Специалист приедет в удобное время, проведёт осмотр, рассчитает стоимость работ и подберёт оптимальные решения для вашего дома.


    Похожие проекты

    Ипотека и
    рассрочка
    Двухэтажный дом по проекту «Честер»
    Стоимость от:
    10 134 000
    Проект от: 65 250
    Этажей 2
    Санузлы 2
    Спальни 4
    Смотреть
    Ипотека и
    рассрочка
    Одноэтажный жилой дом № 1
    Стоимость от:
    5 225 880
    Проект от: 33 300
    Этажей 1
    Санузлы 1
    Спальни 2
    Смотреть
    Ипотека и
    рассрочка
    МАГДЕБУРГ-133
    Стоимость от:
    10 416 960
    Проект от: 64 800
    Этажей 2
    Санузлы 3
    Спальни 3
    Смотреть
    Ипотека и
    рассрочка
    Загородный дом проект М-235
    Стоимость от:
    10 290 940
    Проект от: 61 650
    Этажей 1
    Санузлы 2
    Спальни 3
    Смотреть
    Ипотека и
    рассрочка
    Авторский проект «Арлас»
    Стоимость от:
    5 296 500
    Проект от: 33 750
    Этажей 1
    Санузлы 1
    Спальни 2
    Смотреть
    Ипотека и
    рассрочка
    Каркасный дом с террасой
    Стоимость от:
    4 335 375
    Проект от: 33 750
    Этажей 1
    Санузлы 1
    Спальни 2
    Смотреть

    Как узнать стоимость дома

    back
    Оставляете заявку
    Вы заполняете форму на сайте или звоните нам. Менеджер Лайвкрафт связывается с вами для уточнения деталей: тип дома, площадь, материалы, участок строительства.
    back
    Консультация и подбор решения
    Наш специалист помогает выбрать оптимальный тип дома и конструкцию с учётом бюджета, сроков и целей — будь то дом для постоянного проживания или дача.
    back
    Расчёт предварительной стоимости
    Инженер делает первичный расчёт стоимости строительства по вашим параметрам: фундамент, коробка, кровля, отделка. Вы получаете смету с разбивкой по этапам.
    back
    Корректировка и утверждение сметы
    При необходимости вносим изменения — например, замену материалов или сокращение этапов. После согласования формируется окончательная фиксированная смета.
    back
    Заключение договора и старт работ
    После утверждения сметы заключаем официальный договор с гарантией. Вы получаете прозрачный график и точную стоимость — без скрытых расходов.

    Заказать конусльтацию по:Времена Года. Зима, лето, весна, осень. Комплектация Серебро.

    Фото 1 Времена Года. Зима, лето, весна, осень. Комплектация Серебро.


      Наши
      контакты

      Дмитров
      Опорный проезд 28Б
      (индустриальный парк Ниагара)
      9:00 до 18:00

      Корзина