4.9
Рейтинг на основании 120 отзывов
Дмитров
Опорный проезд 28Б
(индустриальный парк Ниагара)
Бренд "Дмитров-Дело" c 2008 года на рынке строительства в Дмитрове
Звоните 9:00 до 18:00 8 (915) 055-33-61
Бренд "Дмитров-Дело" c 2008 года на рынке строительства в Дмитрове

WG-теглицы

Стоимость проекта от:
70 650 ₽
БЕСПЛАТНО! ПРИ ЗАКАЗЕ СТРОИТЕЛЬСТВА
Стоимость строительства от:
11 087 340 ₽
Артикул ART-18398
Дата 26.12.2025
Архитектурный стиль Классический
Количество надземных этажей 1
Круглогодичное проживание Да
Площадь дома 157 м2
Санузлы 2
Спальни 4

Описание

Добро пожаловать в дом, где каждый уголок дышит уютом и классической элегантностью. Построенный по проекту WG‑Теглицы, он представляет собой один надземный этаж, но в полном объёме чувствуется простор и свет. Весь его дизайн ориентирован на круглогодичное проживание: изоляция газобетонных блоков надежно сохраняет тепло, а комбинированная крыша обеспечивает отличную устойчивость к погодным колебаниям. Звонкая симметрия фасада и строгие линии классической стилистики создают атмосферу уюта и комфорта, достойную любого современного семьи. Внешний интерьер впечатляет простотой и функциональностью: в доме нет балконов и лоджий, но зато есть просторная веранда и терраса, которые станут идеальными местами для завтраков и летних посиделок. Чёрдачное помещение добавляет дополнительную квадратуру для хранения вещей или для небольших творческих проектов. Внутри все пространство аккуратно разделено: уютная гостиная, светлая мастер‑квартира, полностью оборудованная кухня и две спальни, где каждый найдёт свое тихое убежище. Ключевая особенность — отсутствие прицепного гаража или закрытой автостоянки, что делает дом особенно привлекательным для тех, кто ценит свободу и минималистичный городской ритм. Тем не менее, компактный гараж внутри здания можно оформить по индивидуальным требованиям хозяев, превратив его в настоящий личный оазис. Этот дом — идеальная комбинация классики, практичности и современности, созданный для тех, кто хочет жить, вдохновляться и наслаждаться каждым моментом в окружении уюта и гармонии.

Характеристики дома

Архитектурный стиль
Автоматизированное регулирование параметров теплоносителя
Да
Балконы/лоджии
Отсутствуют
Чердачное помещение
Да
Датчики протечки воды
Нет
Эксплуатируемая или зеленая кровля
Нет
Электроснабжение
Индивидуальное
Газоснабжение
Индивидуальное
Изоляция воздушного шума
Нет
Камин
Нет
Класс энергоэффективности
A+
Класс энергосбережения
A+
Количество надземных этажей
1
Круглогодичное проживание
Да
Материал кровли
Металлочерепица
Материал перекрытий
Деревянные
Материал внешних стен
Материал внутренних перегородок
Блочные
Модульное строительство с конструкциями заводского изготовления
Нет
Объем надземной части
-
Основной материал фасадов
Штукатурка
Отопление
Индивидуальное
Площадь дома
157 м2
Площадь застройки
190 м2
Подвальное помещение
Нет
Показатель компактности здания
-
Приборы учета тепловой энергии
Да
Пристроенный гараж/крытая автостоянка
Нет
Противопожарная система
Нет
Санузлы
2
Совмещенная кухня-гостиная
Да
Спальни
4
Терраса
Да
Тип фундамента
Плитный
Тип кровли
Толщина внешних стен
375 мм
Толщина внутренних перегородок
300 мм
Улучшенные шумовые характеристики
Да
Вентиляция
Принудительная
Веранда
Да
Водоотведение
Локальные очистные сооружения
Водоснабжение
Индивидуальное
Высота дома
5.9 м
Высота потолков
3 м

Планировка

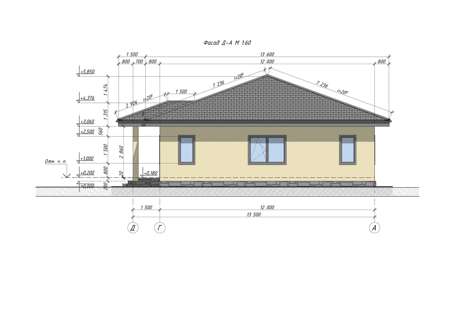
Фасад дома

Александр

Закажите выезд инженера

Александр

Выездной инженер
Закажите выезд инженера для точной диагностики и профессиональной консультации по инженерным системам. Специалист приедет в удобное время, проведёт осмотр, рассчитает стоимость работ и подберёт оптимальные решения для вашего дома.


    Похожие проекты

    Ипотека и
    рассрочка
    Одноэтажный дом площадью 92,9 кв.м.
    Стоимость от:
    7 199 060
    Проект от: 41 850
    Этажей 1
    Санузлы 2
    Спальни 3
    Смотреть
    Ипотека и
    рассрочка
    Загородный дом Unit-115
    Стоимость от:
    7 526 200
    Проект от: 49 500
    Этажей 1
    Санузлы 2
    Спальни 3
    Смотреть
    Ипотека и
    рассрочка
    Дом Мечта-1
    Стоимость от:
    6 567 660
    Проект от: 41 850
    Этажей 1
    Санузлы 2
    Спальни 3
    Смотреть
    Ипотека и
    рассрочка
    Запад 2- 83.28
    Стоимость от:
    6 019 920
    Проект от: 37 350
    Этажей 2
    Санузлы 1
    Спальни 3
    Смотреть
    Ипотека и
    рассрочка
    Загородный дом 117
    Стоимость от:
    7 753 680
    Проект от: 48 150
    Этажей 2
    Санузлы 2
    Спальни 4
    Смотреть
    Ипотека и
    рассрочка
    Скандинавский Дом 115
    Стоимость от:
    9 765 800
    Проект от: 58 500
    Этажей 1
    Санузлы 2
    Спальни 3
    Смотреть

    Как узнать стоимость дома

    back
    Оставляете заявку
    Вы заполняете форму на сайте или звоните нам. Менеджер Лайвкрафт связывается с вами для уточнения деталей: тип дома, площадь, материалы, участок строительства.
    back
    Консультация и подбор решения
    Наш специалист помогает выбрать оптимальный тип дома и конструкцию с учётом бюджета, сроков и целей — будь то дом для постоянного проживания или дача.
    back
    Расчёт предварительной стоимости
    Инженер делает первичный расчёт стоимости строительства по вашим параметрам: фундамент, коробка, кровля, отделка. Вы получаете смету с разбивкой по этапам.
    back
    Корректировка и утверждение сметы
    При необходимости вносим изменения — например, замену материалов или сокращение этапов. После согласования формируется окончательная фиксированная смета.
    back
    Заключение договора и старт работ
    После утверждения сметы заключаем официальный договор с гарантией. Вы получаете прозрачный график и точную стоимость — без скрытых расходов.

    Заказать конусльтацию по:WG-теглицы

    Фото 1 WG-теглицы


      Наши
      контакты

      Дмитров
      Опорный проезд 28Б
      (индустриальный парк Ниагара)
      9:00 до 18:00

      Корзина