4.9
Рейтинг на основании 120 отзывов
Дмитров
Опорный проезд 28Б
(индустриальный парк Ниагара)
Бренд "Дмитров-Дело" c 2008 года на рынке строительства в Дмитрове
Звоните 9:00 до 18:00 8 (915) 055-33-61
Бренд "Дмитров-Дело" c 2008 года на рынке строительства в Дмитрове

Юдино-5

Стоимость проекта от:
94 500 ₽
Стоимость строительства от:
15 184 800 ₽
Артикул ART-10490
Дата 25.12.2025
Архитектурный стиль Европейский
Количество надземных этажей 2
Круглогодичное проживание Да
Площадь дома 210 м2
Санузлы 2
Спальни 4

Описание

Юдино‑5 — это уютное двухэтажное помоще, созданное для тех, кто ценит комфорт и элегантность в повседневной жизни. В европейском стиле выполненный с чувством простора, он выглядит как настоящий дом из сказки: керамические блоки блеска от солнца, четко очерченная крыша вальмовой формы и целая веранда, где хочется проводить долгие летние вечера, обмениваясь разговорами с соседями и наблюдая за закатом. Планировка двух поверхов продумана до мелочей: просторные гостинные с большим окном, которые наполняются естественным светом; кухня‑столовая, способная удивлять даже самых взыскательных гурманов, и удобные спальни, где каждый найдет своё тихое убежище. Входная зона сразу ощущающая домашний уют – всё, что нужно для круглогодичного проживания. Не забываем и про практичность: пристроенный гараж и крытая автостоянка избавят от забот о машине в любое время года, а отсутствие чердачного и террасного пространства не мешает наслаждаться внутренней идиллической атмосферой. Юдино‑5 — это ваш новый дом, где европейская эстетика и практичность встречаются, создавая идеальный уголок для вашей семьи.

Характеристики дома

Архитектурный стиль
Европейский
Автоматизированное регулирование параметров теплоносителя
-
Балконы/лоджии
Отсутствуют
Чердачное помещение
Нет
Датчики протечки воды
-
Эксплуатируемая или зеленая кровля
-
Электроснабжение
Не предусмотрено
Газоснабжение
Не предусмотрено
Изоляция воздушного шума
-
Камин
Нет
Класс энергоэффективности
-
Класс энергосбережения
-
Количество надземных этажей
2
Круглогодичное проживание
Да
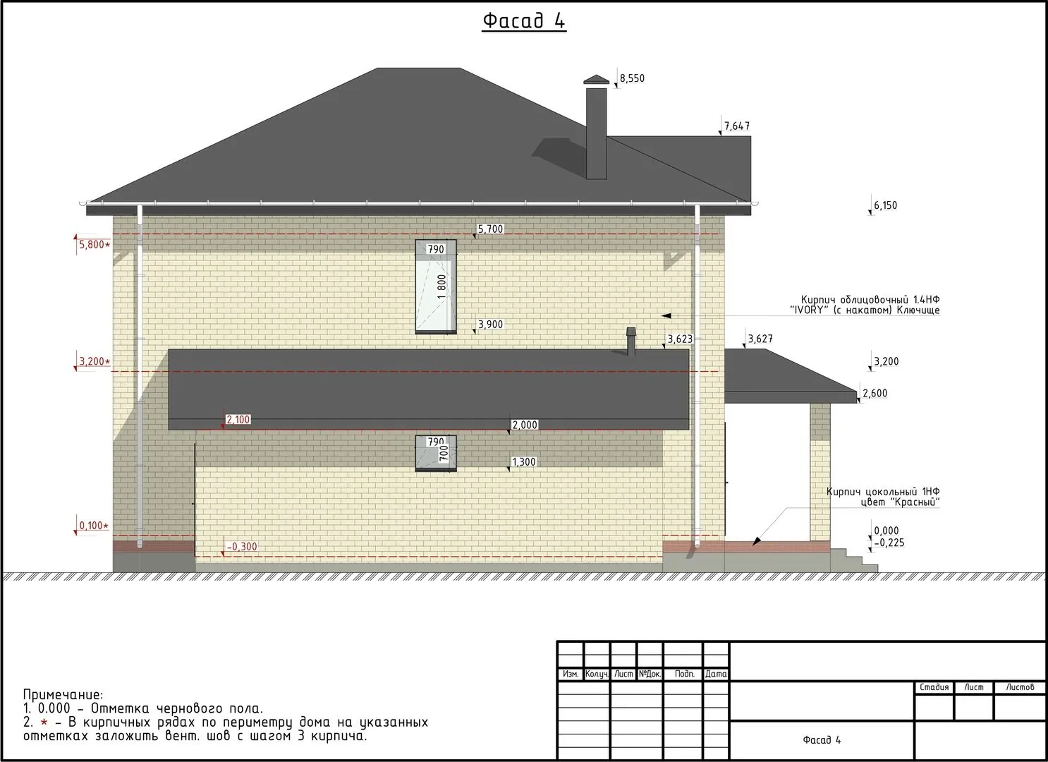
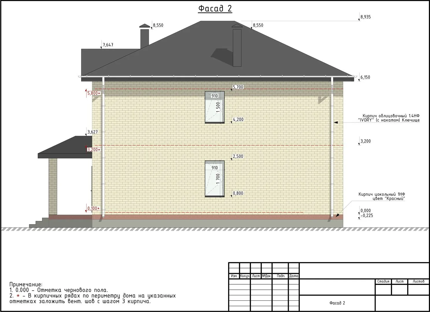
Материал кровли
Металлочерепица
Материал перекрытий
Сборные железобетонные многопустотные плиты
Материал внешних стен
Керамический блок
Материал внутренних перегородок
Кирпичные
Модульное строительство с конструкциями заводского изготовления
Нет
Объем надземной части
1000 м3
Основной материал фасадов
Облицовочный кирпич
Отопление
Индивидуальное
Площадь дома
210 м2
Площадь застройки
159 м2
Подвальное помещение
Нет
Показатель компактности здания
-
Приборы учета тепловой энергии
-
Пристроенный гараж/крытая автостоянка
Да
Противопожарная система
Нет
Санузлы
2
Совмещенная кухня-гостиная
Да
Спальни
4
Терраса
Нет
Тип фундамента
Свайно-ростверковый
Тип кровли
Четырехскатная (вальмовая)
Толщина внешних стен
490 мм
Толщина внутренних перегородок
120 мм
Улучшенные шумовые характеристики
-
Вентиляция
Естественная
Веранда
Да
Водоотведение
Локальные очистные сооружения
Водоснабжение
Не предусмотрено
Высота дома
9 м
Высота потолков
2.98 м

Планировка

Фасад дома

Александр

Закажите выезд инженера

Александр

Выездной инженер
Закажите выезд инженера для точной диагностики и профессиональной консультации по инженерным системам. Специалист приедет в удобное время, проведёт осмотр, рассчитает стоимость работ и подберёт оптимальные решения для вашего дома.


    Похожие проекты

    Ипотека и
    рассрочка
    СUBA 70 — Дом под ключ
    Стоимость от:
    4 907 760
    Проект от: 39 600
    Этажей 1
    Санузлы 2
    Спальни 3
    Смотреть
    Ипотека и
    рассрочка
    Одноэтажный дом FIXPLANS — 1943
    Стоимость от:
    12 923 460
    Проект от: 82 350
    Этажей 1
    Санузлы 2
    Спальни 4
    Смотреть
    Ипотека и
    рассрочка
    Urman-169
    Стоимость от:
    16 831 320
    Проект от: 110 700
    Этажей 1
    Санузлы 3
    Спальни 3
    Смотреть
    Ипотека и
    рассрочка
    Skandy с антресолью и террасой
    Стоимость от:
    8 187 120
    Проект от: 50 850
    Этажей 2
    Санузлы 1
    Спальни 3
    Смотреть
    Ипотека и
    рассрочка
    Просторный современный коттедж S3-252-1 (ZX30)
    Стоимость от:
    25 334 160
    Проект от: 152 550
    Этажей 2
    Санузлы 3
    Спальни 5
    Смотреть
    Ипотека и
    рассрочка
    ИНБРИГ-1.118
    Стоимость от:
    10 591 020
    Проект от: 63 450
    Этажей 1
    Санузлы 2
    Спальни 3
    Смотреть

    Как узнать стоимость дома

    back
    Оставляете заявку
    Вы заполняете форму на сайте или звоните нам. Менеджер Лайвкрафт связывается с вами для уточнения деталей: тип дома, площадь, материалы, участок строительства.
    back
    Консультация и подбор решения
    Наш специалист помогает выбрать оптимальный тип дома и конструкцию с учётом бюджета, сроков и целей — будь то дом для постоянного проживания или дача.
    back
    Расчёт предварительной стоимости
    Инженер делает первичный расчёт стоимости строительства по вашим параметрам: фундамент, коробка, кровля, отделка. Вы получаете смету с разбивкой по этапам.
    back
    Корректировка и утверждение сметы
    При необходимости вносим изменения — например, замену материалов или сокращение этапов. После согласования формируется окончательная фиксированная смета.
    back
    Заключение договора и старт работ
    После утверждения сметы заключаем официальный договор с гарантией. Вы получаете прозрачный график и точную стоимость — без скрытых расходов.

    Заказать конусльтацию по:Юдино-5

    Фото 1 Юдино-5


      Наши
      контакты

      Дмитров
      Опорный проезд 28Б
      (индустриальный парк Ниагара)
      9:00 до 18:00

      Корзина