4.9
Рейтинг на основании 120 отзывов
Дмитров
Опорный проезд 28Б
(индустриальный парк Ниагара)
Бренд "Дмитров-Дело" c 2008 года на рынке строительства в Дмитрове
Звоните 9:00 до 18:00 8 (915) 055-33-61
Бренд "Дмитров-Дело" c 2008 года на рынке строительства в Дмитрове

Юпитер-2

Стоимость проекта от:
46 800 ₽
БЕСПЛАТНО! ПРИ ЗАКАЗЕ СТРОИТЕЛЬСТВА
Стоимость строительства от:
7 263 360 ₽
Артикул ART-13969
Дата 25.12.2025
Архитектурный стиль Европейский
Количество надземных этажей 2
Круглогодичное проживание Да
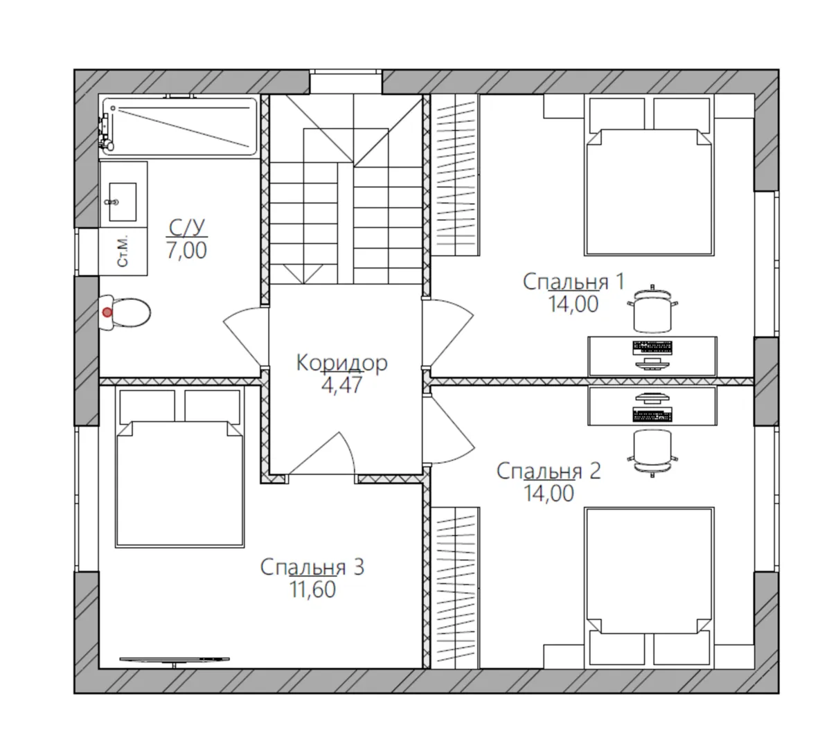
Площадь дома 104 м2
Санузлы 2
Спальни 3

Описание

**Жилой шедевр «Юпитер‑2» – ваш новый уголок европейского уюта** Насладитесь двойным комфортом двухнадземных этажей – в каждом они дарят пространство для истинного счастья. Дом выполнен в мягко‑теплом европейском стиле, где простота линий встречается с нежной элегантностью. Полистиролбетонные стены обеспечивают отличную тепло- и звукоизоляцию, а двускатная крыша придает зданию строгую, но романтичную форму. Отсутствие яркой внешней отделки превращает «Юпитер‑2» в лаконичное решение, которое в гармонии с природой создает идеальное место для круглогодичного проживания. Внутри вас ждёт просторный подъезд, открытой плановой гостиный зал, где солнечные лучи проникают сквозь большие окна, создавая атмосферу безмятежного уюта. Современные кухни с высоким функционалом, уютные мастер‑спальни с собственными ванных комнатами – каждая деталь проработана до мелочей. Чердачное помещение, преобразованное в стильный кабинет или игровую комнату, добавит вашему дому индивидуальности и поможет максимально использовать каждый квадратный метр. «Юпитер‑2» – это не просто дом, а пространство, в котором сочетаются практичность, комфорт и эстетика. Если вы цените качественное строительство, европейский вкус и возможность жить в уюте круглый год, этот дом станет для вас идеальным выбором. Приходите и убедитесь: ваше новое жильё уже ждёт вас!

Характеристики дома

Архитектурный стиль
Автоматизированное регулирование параметров теплоносителя
Да
Балконы/лоджии
Отсутствуют
Чердачное помещение
Да
Датчики протечки воды
Да
Эксплуатируемая или зеленая кровля
Нет
Электроснабжение
Центральное
Газоснабжение
Не предусмотрено
Изоляция воздушного шума
Да
Камин
Нет
Класс энергоэффективности
-
Класс энергосбережения
-
Количество надземных этажей
2
Круглогодичное проживание
Да
Материал кровли
Металлочерепица
Материал перекрытий
Иной вид материалов перекрытий
Материал внешних стен
Материал внутренних перегородок
Блочные
Модульное строительство с конструкциями заводского изготовления
Нет
Объем надземной части
-
Основной материал фасадов
Штукатурка
Отопление
Индивидуальное
Площадь дома
104 м2
Площадь застройки
67 м2
Подвальное помещение
Нет
Показатель компактности здания
-
Приборы учета тепловой энергии
Нет
Пристроенный гараж/крытая автостоянка
Нет
Противопожарная система
Нет
Санузлы
2
Совмещенная кухня-гостиная
Да
Спальни
3
Терраса
Нет
Тип фундамента
Плитный
Тип кровли
Толщина внешних стен
300 мм
Толщина внутренних перегородок
100 мм
Улучшенные шумовые характеристики
Да
Вентиляция
Естественная
Веранда
Нет
Водоотведение
Локальные очистные сооружения
Водоснабжение
Индивидуальное
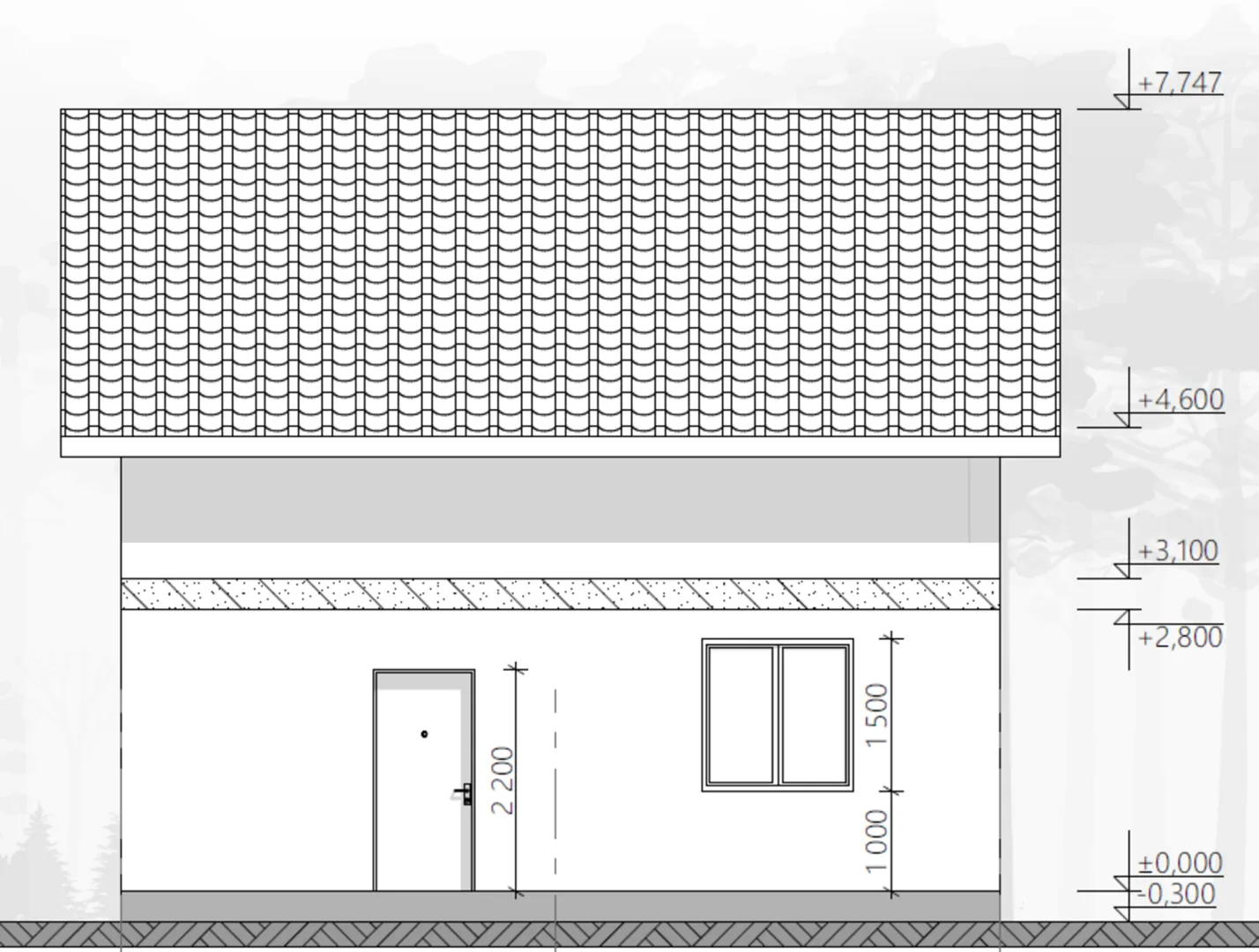
Высота дома
7.7 м
Высота потолков
3 м

Планировка

Фасад дома

Александр

Закажите выезд инженера

Александр

Выездной инженер
Закажите выезд инженера для точной диагностики и профессиональной консультации по инженерным системам. Специалист приедет в удобное время, проведёт осмотр, рассчитает стоимость работ и подберёт оптимальные решения для вашего дома.


    Похожие проекты

    Ипотека и
    рассрочка
    НОУКЕН
    Стоимость от:
    12 048 240
    Проект от: 72 450
    Этажей 2
    Санузлы 2
    Спальни 5
    Смотреть
    Ипотека и
    рассрочка
    Проект модульно дома КУБ100
    Стоимость от:
    6 249 540
    Проект от: 45 900
    Этажей 1
    Санузлы 2
    Спальни 3
    Смотреть
    Ипотека и
    рассрочка
    Двухэтажный каменный дом ДГ-5
    Стоимость от:
    10 704 720
    Проект от: 64 350
    Этажей 2
    Санузлы 3
    Спальни 3
    Смотреть
    Ипотека и
    рассрочка
    Одноэтажный каркасный дом ДК-68
    Стоимость от:
    5 795 680
    Проект от: 40 050
    Этажей 1
    Санузлы 1
    Спальни 3
    Смотреть
    Ипотека и
    рассрочка
    Каркасный дом Лангсдорф
    Стоимость от:
    5 843 520
    Проект от: 39 600
    Этажей 2
    Санузлы 2
    Спальни 4
    Смотреть
    Ипотека и
    рассрочка
    Дом с навесом 102,0 кв.м.
    Стоимость от:
    7 440 840
    Проект от: 45 900
    Этажей 1
    Санузлы 2
    Спальни 3
    Смотреть

    Как узнать стоимость дома

    back
    Оставляете заявку
    Вы заполняете форму на сайте или звоните нам. Менеджер Лайвкрафт связывается с вами для уточнения деталей: тип дома, площадь, материалы, участок строительства.
    back
    Консультация и подбор решения
    Наш специалист помогает выбрать оптимальный тип дома и конструкцию с учётом бюджета, сроков и целей — будь то дом для постоянного проживания или дача.
    back
    Расчёт предварительной стоимости
    Инженер делает первичный расчёт стоимости строительства по вашим параметрам: фундамент, коробка, кровля, отделка. Вы получаете смету с разбивкой по этапам.
    back
    Корректировка и утверждение сметы
    При необходимости вносим изменения — например, замену материалов или сокращение этапов. После согласования формируется окончательная фиксированная смета.
    back
    Заключение договора и старт работ
    После утверждения сметы заключаем официальный договор с гарантией. Вы получаете прозрачный график и точную стоимость — без скрытых расходов.

    Заказать конусльтацию по:Юпитер-2

    Фото 1 Юпитер-2


      Наши
      контакты

      Дмитров
      Опорный проезд 28Б
      (индустриальный парк Ниагара)
      9:00 до 18:00

      Корзина