4.9
Рейтинг на основании 120 отзывов
Дмитров
Опорный проезд 28Б
(индустриальный парк Ниагара)
Бренд "Дмитров-Дело" c 2008 года на рынке строительства в Дмитрове
Звоните 9:00 до 18:00 8 (915) 055-33-61
Бренд "Дмитров-Дело" c 2008 года на рынке строительства в Дмитрове

Загородный дом-100.3

Стоимость проекта от:
40 050 ₽
БЕСПЛАТНО! ПРИ ЗАКАЗЕ СТРОИТЕЛЬСТВА
Стоимость строительства от:
5 634 145 ₽
Артикул ART-20314
Дата 26.12.2025
Архитектурный стиль Американский/Канадский
Количество надземных этажей 1
Круглогодичное проживание Да
Площадь дома 89 м2
Санузлы 1
Спальни 3

Описание

Насладитесь жизнью в этом уютном загородном доме площадью 100,3 м², где каждое мгновение наполнено атмосферой спокойствия и уюта. Одно надземное с открытой планировкой пространство, выполненное в американском‑канадском стиле, сразу создаёт ощущение простора и свободы. Внутри царит гармония между современными удобствами и природным материалом: внешние стены из SIP‑панелей обеспечивают отличную тепло‑ и звукоизоляцию, а двускатная крыша добавляет нотку традиционной архитектуры, придавая дому характерный и аутентичный облик. Дома построенного на круглогодичном проживании вы обретете комфорт в любой сезон: лёгкая теплоизоляция и продуманные окна позволяют наслаждаться яркими лучами солнца летом и сохранять тепло зимой. Просторный чердачный уголок, открывающийся в полную высоту, трансформируется в функциональное пространство — мастер‑студия, игровая площадка для детей или уютное гостевое помещение. Отсутствие балконов и веранд не мешает вам ощутить широту загородной жизни: все детали проработаны так, чтобы внутреннее пространство компенсировало отсутствие наружных площадей, создавая ощущение «умиротворённой гавани» прямо у окон. Загородный дом без прицепа к гаражу, но с открытой зоной для автомобиля, предоставляет простое и удобное решение для тех, кто ценит свободу передвижения. Его американско‑канадский дизайн, сочетание теплых тонов и открытых линий, делает этот дом идеальным для семей, которые ищут гармонию, уединение и неповторимую атмосферу природы. Выбирая этот дом, вы выбираете не просто жильё, а стиль жизни, где каждый день начинается и заканчивается вдали от городского шума, в объятиях спокойствия и красоты природы.

Характеристики дома

Архитектурный стиль
Автоматизированное регулирование параметров теплоносителя
Нет
Балконы/лоджии
Отсутствуют
Чердачное помещение
Да
Датчики протечки воды
Нет
Эксплуатируемая или зеленая кровля
Нет
Электроснабжение
Центральное
Газоснабжение
Не предусмотрено
Изоляция воздушного шума
Нет
Камин
Нет
Класс энергоэффективности
-
Класс энергосбережения
-
Количество надземных этажей
1
Круглогодичное проживание
Да
Материал кровли
Металлочерепица
Материал перекрытий
Деревянные
Материал внешних стен
Материал внутренних перегородок
Деревянные
Модульное строительство с конструкциями заводского изготовления
Нет
Объем надземной части
400 м3
Основной материал фасадов
Сайдинг
Отопление
Индивидуальное
Площадь дома
89 м2
Площадь застройки
100 м2
Подвальное помещение
Нет
Показатель компактности здания
-
Приборы учета тепловой энергии
Нет
Пристроенный гараж/крытая автостоянка
Нет
Противопожарная система
Нет
Санузлы
1
Совмещенная кухня-гостиная
Да
Спальни
3
Терраса
Нет
Тип фундамента
Свайно-винтовой
Тип кровли
Толщина внешних стен
174 мм
Толщина внутренних перегородок
124 мм
Улучшенные шумовые характеристики
Нет
Вентиляция
Естественная
Веранда
Нет
Водоотведение
Локальные очистные сооружения
Водоснабжение
Индивидуальное
Высота дома
5 м
Высота потолков
2.8 м

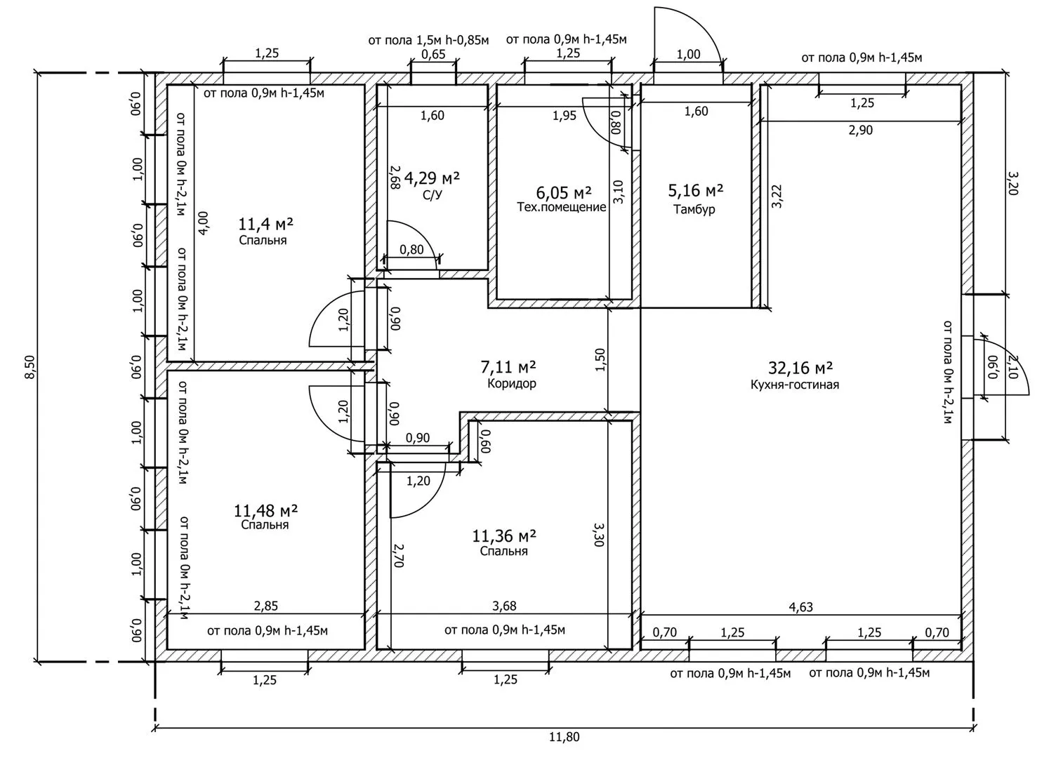
Планировка

Фасад дома

Александр

Закажите выезд инженера

Александр

Выездной инженер
Закажите выезд инженера для точной диагностики и профессиональной консультации по инженерным системам. Специалист приедет в удобное время, проведёт осмотр, рассчитает стоимость работ и подберёт оптимальные решения для вашего дома.


    Похожие проекты

    Ипотека и
    рассрочка
    Одноэтажный дом «Аврора-4»
    Стоимость от:
    6 371 200
    Проект от: 36 000
    Этажей 1
    Санузлы 1
    Спальни 3
    Смотреть
    Ипотека и
    рассрочка
    ШК № 4
    Стоимость от:
    5 789 740
    Проект от: 34 650
    Этажей 1
    Санузлы 1
    Спальни 3
    Смотреть
    Ипотека и
    рассрочка
    Каркасный дом D143-1
    Стоимость от:
    6 947 160
    Проект от: 46 350
    Этажей 1
    Санузлы 1
    Спальни 2
    Смотреть
    Ипотека и
    рассрочка
    Миллениум
    Стоимость от:
    7 417 410
    Проект от: 59 850
    Этажей 1
    Санузлы 1
    Спальни 3
    Смотреть
    Ипотека и
    рассрочка
    Одноэтажный дом с террасой ЦН-117
    Стоимость от:
    7 149 285
    Проект от: 52 650
    Этажей 1
    Санузлы 2
    Спальни 3
    Смотреть
    Ипотека и
    рассрочка
    Ермилов
    Стоимость от:
    9 550 080
    Проект от: 59 400
    Этажей 2
    Санузлы 2
    Спальни 5
    Смотреть

    Как узнать стоимость дома

    back
    Оставляете заявку
    Вы заполняете форму на сайте или звоните нам. Менеджер Лайвкрафт связывается с вами для уточнения деталей: тип дома, площадь, материалы, участок строительства.
    back
    Консультация и подбор решения
    Наш специалист помогает выбрать оптимальный тип дома и конструкцию с учётом бюджета, сроков и целей — будь то дом для постоянного проживания или дача.
    back
    Расчёт предварительной стоимости
    Инженер делает первичный расчёт стоимости строительства по вашим параметрам: фундамент, коробка, кровля, отделка. Вы получаете смету с разбивкой по этапам.
    back
    Корректировка и утверждение сметы
    При необходимости вносим изменения — например, замену материалов или сокращение этапов. После согласования формируется окончательная фиксированная смета.
    back
    Заключение договора и старт работ
    После утверждения сметы заключаем официальный договор с гарантией. Вы получаете прозрачный график и точную стоимость — без скрытых расходов.

    Заказать конусльтацию по:Загородный дом-100.3

    Фото 1 Загородный дом-100.3


      Наши
      контакты

      Дмитров
      Опорный проезд 28Б
      (индустриальный парк Ниагара)
      9:00 до 18:00

      Корзина