4.9
Рейтинг на основании 120 отзывов
Дмитров
Опорный проезд 28Б
(индустриальный парк Ниагара)
Бренд "Дмитров-Дело" c 2008 года на рынке строительства в Дмитрове
Звоните 9:00 до 18:00 8 (915) 055-33-61
Бренд "Дмитров-Дело" c 2008 года на рынке строительства в Дмитрове

Загородный дом — 113.01

Стоимость проекта от:
50 850 ₽
Стоимость строительства от:
7 980 060 ₽
Артикул ART-14307
Дата 25.12.2025
Архитектурный стиль Европейский
Количество надземных этажей 1
Круглогодичное проживание Да
Площадь дома 113 м2
Санузлы 2
Спальни 2

Описание

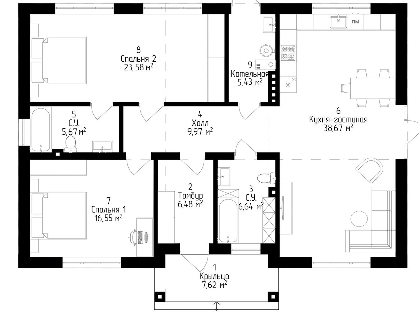
Незагромленный, но в то же время уютный загородный дом площадью 113 м² приглашает к спокойному круглогодичному отдыху под светлым небом. Его архитектура в европейском стиле, выполненная из яркого кирпича, создаёт ощущение тепла и надёжности, а четырехскатная кровля придает дому неповторимый шарм. На первом этаже есть просторная гостинная, оборудованная для встреч и семейных вечеров, а небольшая кухонная часть удобно соединена с барной зоной, что позволяет легко готовить и наслаждаться едой на свежем воздухе, даже без веранды. В доме предусмотрено полезное чердачное помещение, которое можно использовать как дополнительное кладовку, мастерскую или просто хранить редкие вещи, не заполняя основную жилую площадь. Больше места не понадобится, ведь в этом уютном жилье все, что нужно, находится в пределах рукопожатия: светлым балконы и лоджии здесь нет, но ощущение открытости и простора сохраняется благодаря светлым комнатам и красивой отделке. Пристроенный гараж или крытая автостоянка отсутствуют, однако это только подчеркивает свободу и легкость передвижения по окрестностям, где можно арендовать автомобиль по необходимости и отправиться в любое время на прогулку по природе.

Характеристики дома

Архитектурный стиль
Европейский
Автоматизированное регулирование параметров теплоносителя
Нет
Балконы/лоджии
Отсутствуют
Чердачное помещение
Да
Датчики протечки воды
Нет
Эксплуатируемая или зеленая кровля
Нет
Электроснабжение
Индивидуальное
Газоснабжение
Не предусмотрено
Изоляция воздушного шума
Нет
Камин
Нет
Класс энергоэффективности
-
Класс энергосбережения
-
Количество надземных этажей
1
Круглогодичное проживание
Да
Материал кровли
Металлочерепица
Материал перекрытий
Деревянные
Материал внешних стен
Кирпич
Материал внутренних перегородок
Кирпичные
Модульное строительство с конструкциями заводского изготовления
Нет
Объем надземной части
-
Основной материал фасадов
Облицовочный кирпич
Отопление
2 варианта
Площадь дома
113 м2
Площадь застройки
146 м2
Подвальное помещение
Нет
Показатель компактности здания
-
Приборы учета тепловой энергии
Нет
Пристроенный гараж/крытая автостоянка
Нет
Противопожарная система
Нет
Санузлы
2
Совмещенная кухня-гостиная
Да
Спальни
2
Терраса
Нет
Тип фундамента
Плитный
Тип кровли
Четырехскатная (вальмовая)
Толщина внешних стен
415 мм
Толщина внутренних перегородок
120 мм
Улучшенные шумовые характеристики
Нет
Вентиляция
2 варианта
Веранда
Нет
Водоотведение
Локальные очистные сооружения
Водоснабжение
Индивидуальное
Высота дома
5.4 м
Высота потолков
3 м

Планировка

Фасад дома

Александр

Закажите выезд инженера

Александр

Выездной инженер
Закажите выезд инженера для точной диагностики и профессиональной консультации по инженерным системам. Специалист приедет в удобное время, проведёт осмотр, рассчитает стоимость работ и подберёт оптимальные решения для вашего дома.


    Похожие проекты

    Ипотека и
    рассрочка
    Проект 2
    Стоимость от:
    27 733 680
    Проект от: 178 650
    Этажей 2
    Санузлы 3
    Спальни 4
    Смотреть
    Ипотека и
    рассрочка
    Дачник 6х7 с крыльцом
    Стоимость от:
    3 710 700
    Проект от: 27 900
    Этажей 2
    Санузлы 1
    Спальни 3
    Смотреть
    Ипотека и
    рассрочка
    Проект двухэтажного дома РЛ-150
    Стоимость от:
    12 439 680
    Проект от: 77 400
    Этажей 2
    Санузлы 3
    Спальни 4
    Смотреть
    Ипотека и
    рассрочка
    Индивидуальный жилой дом
    Стоимость от:
    9 915 840
    Проект от: 59 400
    Этажей 1
    Санузлы 2
    Спальни 3
    Смотреть
    Ипотека и
    рассрочка
    Загородный дом 65 м2
    Стоимость от:
    3 614 325
    Проект от: 29 250
    Этажей 1
    Санузлы 1
    Спальни 2
    Смотреть
    Ипотека и
    рассрочка
    Одноэтажный дом Fixplans-8216
    Стоимость от:
    10 818 720
    Проект от: 61 200
    Этажей 1
    Санузлы 2
    Спальни 3
    Смотреть

    Как узнать стоимость дома

    back
    Оставляете заявку
    Вы заполняете форму на сайте или звоните нам. Менеджер Лайвкрафт связывается с вами для уточнения деталей: тип дома, площадь, материалы, участок строительства.
    back
    Консультация и подбор решения
    Наш специалист помогает выбрать оптимальный тип дома и конструкцию с учётом бюджета, сроков и целей — будь то дом для постоянного проживания или дача.
    back
    Расчёт предварительной стоимости
    Инженер делает первичный расчёт стоимости строительства по вашим параметрам: фундамент, коробка, кровля, отделка. Вы получаете смету с разбивкой по этапам.
    back
    Корректировка и утверждение сметы
    При необходимости вносим изменения — например, замену материалов или сокращение этапов. После согласования формируется окончательная фиксированная смета.
    back
    Заключение договора и старт работ
    После утверждения сметы заключаем официальный договор с гарантией. Вы получаете прозрачный график и точную стоимость — без скрытых расходов.

    Заказать конусльтацию по:Загородный дом — 113.01

    Фото 1 Загородный дом — 113.01


      Наши
      контакты

      Дмитров
      Опорный проезд 28Б
      (индустриальный парк Ниагара)
      9:00 до 18:00