4.9
Рейтинг на основании 120 отзывов
Дмитров
Опорный проезд 28Б
(индустриальный парк Ниагара)
Бренд "Дмитров-Дело" c 2008 года на рынке строительства в Дмитрове
Звоните 9:00 до 18:00 8 (915) 055-33-61
Бренд "Дмитров-Дело" c 2008 года на рынке строительства в Дмитрове

Загородный дом 5

Стоимость проекта от:
56 250 ₽
БЕСПЛАТНО! ПРИ ЗАКАЗЕ СТРОИТЕЛЬСТВА
Стоимость строительства от:
9 390 700 ₽
Артикул ART-10486
Дата 25.12.2025
Архитектурный стиль Фахверк
Количество надземных этажей 1
Круглогодичное проживание Да
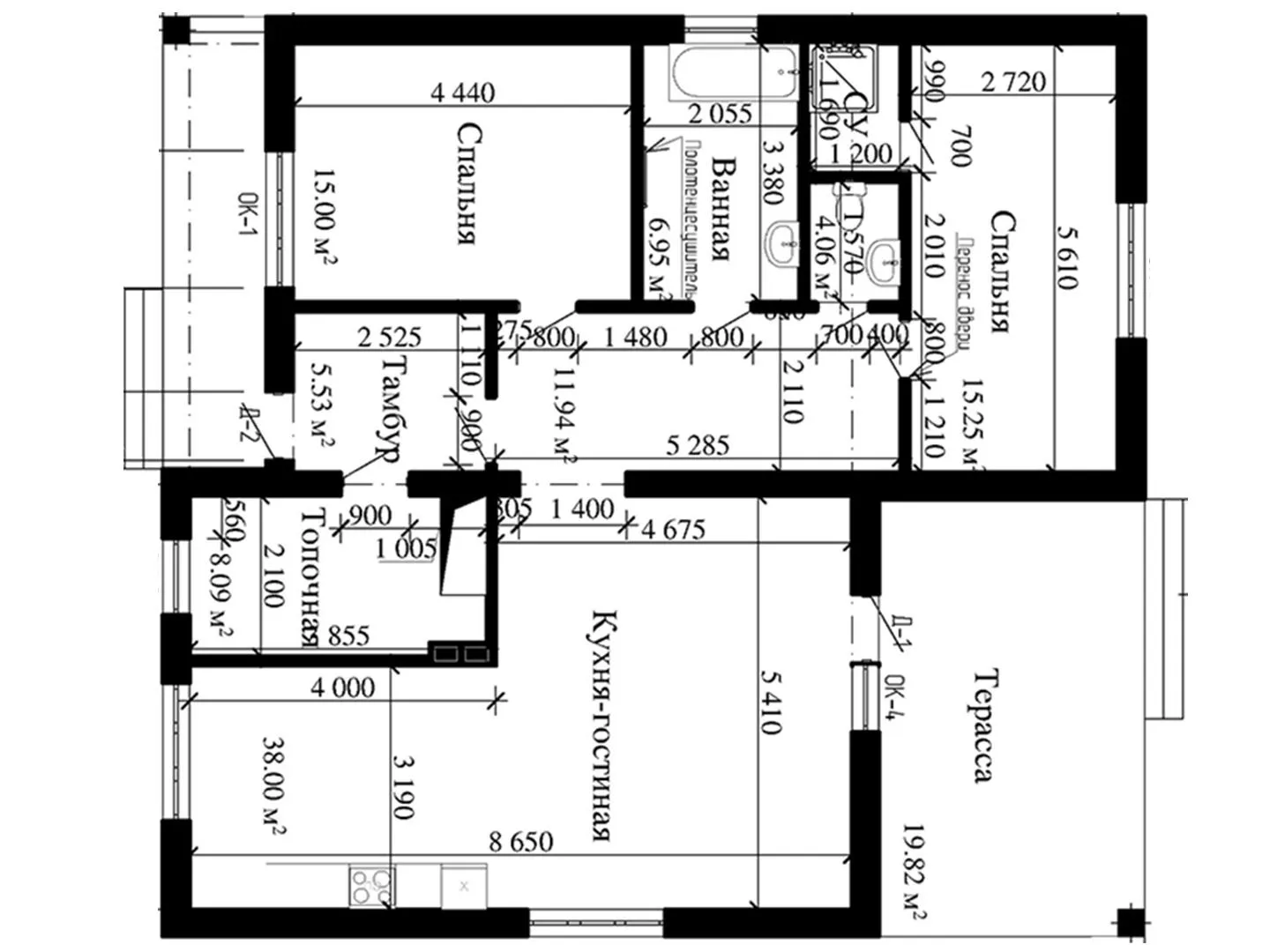
Площадь дома 125 м2
Санузлы 2
Спальни 2

Описание

Идеальное место, где природа встречается с комфортом и стилем. Этот загородный дом, построенный в традиционном фахверковом стиле, сочетает в себе уютное тепло деревянных элементов и современную прочность газобетонных блоков. С единственным надземным этажом вы сразу ощущаете лёгкость простора, а круглогодичное проживание позволяет наслаждаться этим уголком уюта в любое время года – от светлых летних дней до спокойных зимних вечеров. Терраса и просторное чердачное помещение создают дополнительные возможности для отдыха и творчества: вы сможете устроить вечерние посиделки у камина в подвале, а на террасе — наслаждаться ароматом домашних цветущих растений. Несмотря на отсутствие балконов и вернды, дом наполнен светом и открывает виды на живописную деревеньку. Удобная крытая часть для машин не предусмотрена, но это добавляет аутентичного сельского шарма, позволяющего полностью погрузиться в атмосферу идиллии. Такой дом — наш ответ на то, что значит жить рядом с природой, но не отречённым от удобств современного мира.

Характеристики дома

Архитектурный стиль
Автоматизированное регулирование параметров теплоносителя
Нет
Балконы/лоджии
Отсутствуют
Чердачное помещение
Да
Датчики протечки воды
Нет
Эксплуатируемая или зеленая кровля
Нет
Электроснабжение
Индивидуальное
Газоснабжение
Центральное
Изоляция воздушного шума
Нет
Камин
Нет
Класс энергоэффективности
-
Класс энергосбережения
-
Количество надземных этажей
1
Круглогодичное проживание
Да
Материал кровли
Металлочерепица
Материал перекрытий
Деревянные
Материал внешних стен
Материал внутренних перегородок
Кирпичные
Модульное строительство с конструкциями заводского изготовления
Нет
Объем надземной части
460 м3
Основной материал фасадов
Штукатурка
Отопление
Индивидуальное
Площадь дома
125 м2
Площадь застройки
143 м2
Подвальное помещение
Нет
Показатель компактности здания
-
Приборы учета тепловой энергии
Да
Пристроенный гараж/крытая автостоянка
Нет
Противопожарная система
Да
Санузлы
2
Совмещенная кухня-гостиная
Да
Спальни
2
Терраса
Да
Тип фундамента
Свайно-ростверковый
Тип кровли
Толщина внешних стен
400 мм
Толщина внутренних перегородок
150 мм
Улучшенные шумовые характеристики
Нет
Вентиляция
Естественная
Веранда
Нет
Водоотведение
Локальные очистные сооружения
Водоснабжение
Центральное
Высота дома
6.13 м
Высота потолков
3 м

Планировка

Фасад дома

Александр

Закажите выезд инженера

Александр

Выездной инженер
Закажите выезд инженера для точной диагностики и профессиональной консультации по инженерным системам. Специалист приедет в удобное время, проведёт осмотр, рассчитает стоимость работ и подберёт оптимальные решения для вашего дома.


    Похожие проекты

    Ипотека и
    рассрочка
    Загородный дом «Светлогорск 115»
    Стоимость от:
    6 920 760
    Проект от: 44 100
    Этажей 1
    Санузлы 2
    Спальни 3
    Смотреть
    Ипотека и
    рассрочка
    Дом из клееного бруса по индивидуальному проекту №105
    Стоимость от:
    8 251 100
    Проект от: 58 500
    Этажей 1
    Санузлы 2
    Спальни 3
    Смотреть
    Ипотека и
    рассрочка
    Дом с мансардным этажом «Юрма 2.0»
    Стоимость от:
    6 564 960
    Проект от: 42 300
    Этажей 2
    Санузлы 3
    Спальни 2
    Смотреть
    Ипотека и
    рассрочка
    «Новак»
    Стоимость от:
    5 147 100
    Проект от: 38 700
    Этажей 2
    Санузлы 2
    Спальни 3
    Смотреть
    Ипотека и
    рассрочка
    Загородный дом АС-275
    Стоимость от:
    10 755 360
    Проект от: 69 300
    Этажей 2
    Санузлы 2
    Спальни 3
    Смотреть
    Ипотека и
    рассрочка
    Индивидуальный дом по проекту S-129, Заречный
    Стоимость от:
    8 340 420
    Проект от: 49 950
    Этажей 1
    Санузлы 2
    Спальни 3
    Смотреть

    Как узнать стоимость дома

    back
    Оставляете заявку
    Вы заполняете форму на сайте или звоните нам. Менеджер Лайвкрафт связывается с вами для уточнения деталей: тип дома, площадь, материалы, участок строительства.
    back
    Консультация и подбор решения
    Наш специалист помогает выбрать оптимальный тип дома и конструкцию с учётом бюджета, сроков и целей — будь то дом для постоянного проживания или дача.
    back
    Расчёт предварительной стоимости
    Инженер делает первичный расчёт стоимости строительства по вашим параметрам: фундамент, коробка, кровля, отделка. Вы получаете смету с разбивкой по этапам.
    back
    Корректировка и утверждение сметы
    При необходимости вносим изменения — например, замену материалов или сокращение этапов. После согласования формируется окончательная фиксированная смета.
    back
    Заключение договора и старт работ
    После утверждения сметы заключаем официальный договор с гарантией. Вы получаете прозрачный график и точную стоимость — без скрытых расходов.

    Заказать конусльтацию по:Загородный дом 5

    Фото 1 Загородный дом 5


      Наши
      контакты

      Дмитров
      Опорный проезд 28Б
      (индустриальный парк Ниагара)
      9:00 до 18:00

      Корзина