4.9
Рейтинг на основании 120 отзывов
Дмитров
Опорный проезд 28Б
(индустриальный парк Ниагара)
Бренд "Дмитров-Дело" c 2008 года на рынке строительства в Дмитрове
Звоните 9:00 до 18:00 8 (915) 055-33-61
Бренд "Дмитров-Дело" c 2008 года на рынке строительства в Дмитрове

Загородный дом Ален

Стоимость проекта от:
40 050 ₽
Стоимость строительства от:
5 648 830 ₽
Артикул ART-10178
Дата 25.12.2025
Архитектурный стиль Классический
Количество надземных этажей 1
Круглогодичное проживание Да
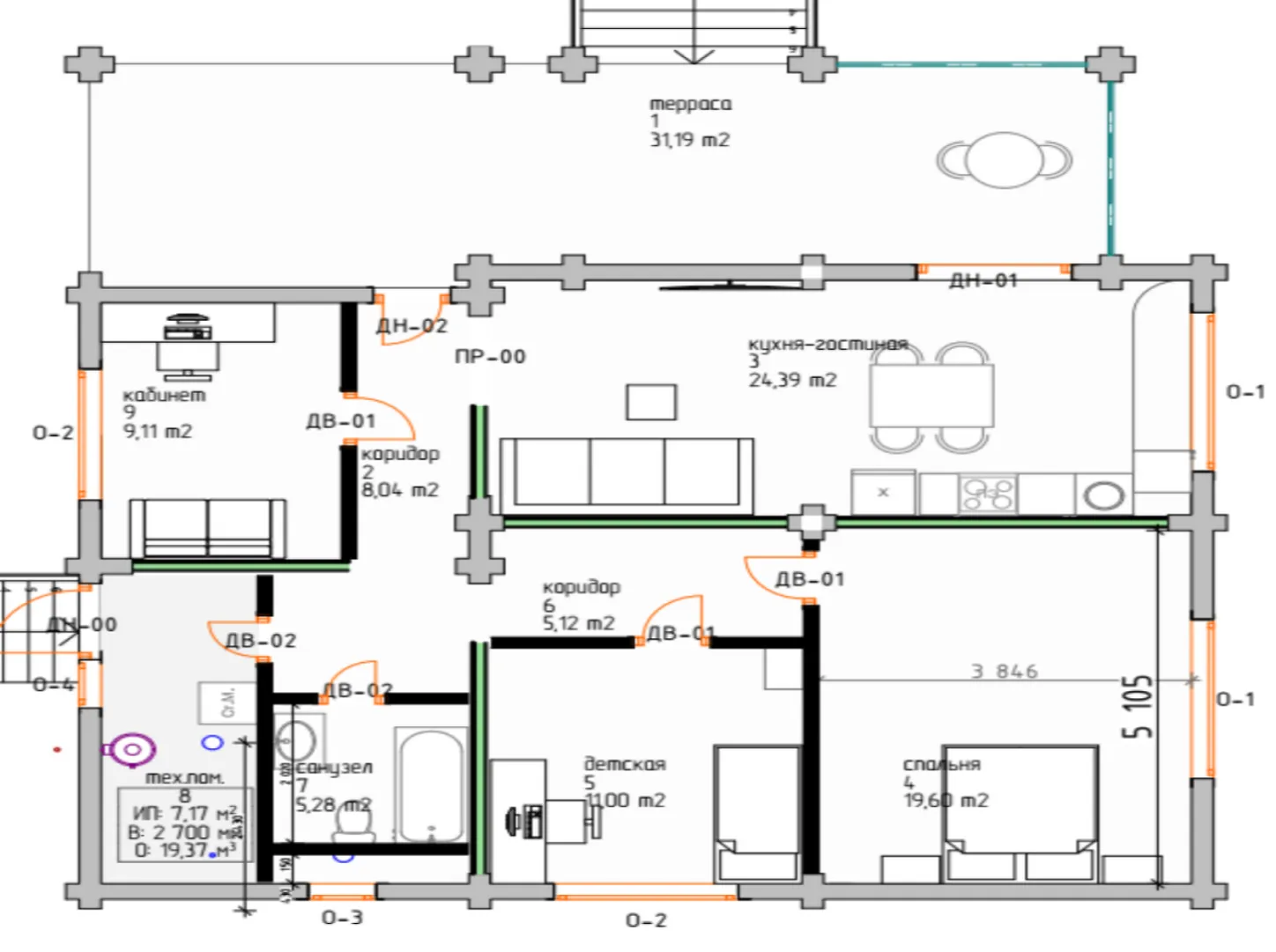
Площадь дома 89 м2
Санузлы 1
Спальни 2

Описание

Нарисуйте яркую картину того, где каждое утро начинается со свежести лесной росы, а вечером дремлет покой в тёплом, уютном пространстве. Дома «Ален» – это воплощение классической элегантности в окружении природы. Одноэтажная постройка, выполненная из тщательно обработанного, оцилиндрованного бревна, излучает естественную теплоту и прочность. Его обнажённые стены, словно старинные кирпичные пласти, сохраняют ощущение простора и открывают бесконечный диалог с окружающим лесом. Отсюда легко выйти к просторной террасе, где можно организовать домашний сад, обедать под открытым небом или просто наслаждаться лучами заката. Внутреннее пространство спроектировано так, чтобы жильё оставалось комфортным в любое время года: от зимних морозов до жарких летних дней. Здесь нет лишних балконов или лоджий, но каждая деталь усиливает единство с местом. Дом не включает в себя гараж или крытые стоянки, но открывает возможность строить будущие варианты: выстроить собственное жильё, расширить семейные связи и превратить этот уголок в настоящий семейный оазис. Дом «Ален» – это не просто здание, а приглашение жить, отдыхать и мечтать. Он соединяет в себе прочность классической архитектуры, экологичность натурального материала и практиченность, создавая идеальное место для тех, кто ценит гармонию с природой, уют домашнего очага и свободу творческого развития. Ваши будни могут стать более яркими, а вечера – спокойными, если вы решите назвать «Ален» своим домом.

Характеристики дома

Архитектурный стиль
Классический
Автоматизированное регулирование параметров теплоносителя
-
Балконы/лоджии
Отсутствуют
Чердачное помещение
Нет
Датчики протечки воды
-
Эксплуатируемая или зеленая кровля
-
Электроснабжение
Не предусмотрено
Газоснабжение
Не предусмотрено
Изоляция воздушного шума
-
Камин
Нет
Класс энергоэффективности
-
Класс энергосбережения
-
Количество надземных этажей
1
Круглогодичное проживание
Да
Материал кровли
Металлочерепица
Материал перекрытий
Деревянные
Материал внешних стен
Оцилиндрованное бревно
Материал внутренних перегородок
Деревянные
Модульное строительство с конструкциями заводского изготовления
Нет
Объем надземной части
450 м3
Основной материал фасадов
Дерево
Отопление
Не предусмотрено
Площадь дома
89 м2
Площадь застройки
137 м2
Подвальное помещение
Нет
Показатель компактности здания
-
Приборы учета тепловой энергии
-
Пристроенный гараж/крытая автостоянка
Нет
Противопожарная система
Нет
Санузлы
1
Совмещенная кухня-гостиная
Да
Спальни
2
Терраса
Да
Тип фундамента
Свайный
Тип кровли
Двускатная
Толщина внешних стен
220 мм
Толщина внутренних перегородок
220 мм
Улучшенные шумовые характеристики
-
Вентиляция
Естественная
Веранда
Нет
Водоотведение
Не предусмотрено
Водоснабжение
Не предусмотрено
Высота дома
6.17 м
Высота потолков
2.7 м

Планировка

Фасад дома

Александр

Закажите выезд инженера

Александр

Выездной инженер
Закажите выезд инженера для точной диагностики и профессиональной консультации по инженерным системам. Специалист приедет в удобное время, проведёт осмотр, рассчитает стоимость работ и подберёт оптимальные решения для вашего дома.


    Похожие проекты

    Ипотека и
    рассрочка
    Одноэтажный дом FK-98 Пятидворье
    Стоимость от:
    7 365 160
    Проект от: 44 100
    Этажей 1
    Санузлы 2
    Спальни 3
    Смотреть
    Ипотека и
    рассрочка
    Бесовец 3
    Стоимость от:
    5 991 040
    Проект от: 41 400
    Этажей 1
    Санузлы 2
    Спальни 2
    Смотреть
    Ипотека и
    рассрочка
    Двухэтажный жилой дом SA-180
    Стоимость от:
    12 521 520
    Проект от: 77 850
    Этажей 2
    Санузлы 2
    Спальни 4
    Смотреть
    Ипотека и
    рассрочка
    С1
    Стоимость от:
    7 959 600
    Проект от: 45 000
    Этажей 1
    Санузлы 1
    Спальни 3
    Смотреть
    Ипотека и
    рассрочка
    Нива
    Стоимость от:
    9 865 440
    Проект от: 65 700
    Этажей 2
    Санузлы 2
    Спальни 4
    Смотреть
    Ипотека и
    рассрочка
    Сканди-2(кирпич)
    Стоимость от:
    9 071 480
    Проект от: 51 300
    Этажей 1
    Санузлы 2
    Спальни 3
    Смотреть

    Как узнать стоимость дома

    back
    Оставляете заявку
    Вы заполняете форму на сайте или звоните нам. Менеджер Лайвкрафт связывается с вами для уточнения деталей: тип дома, площадь, материалы, участок строительства.
    back
    Консультация и подбор решения
    Наш специалист помогает выбрать оптимальный тип дома и конструкцию с учётом бюджета, сроков и целей — будь то дом для постоянного проживания или дача.
    back
    Расчёт предварительной стоимости
    Инженер делает первичный расчёт стоимости строительства по вашим параметрам: фундамент, коробка, кровля, отделка. Вы получаете смету с разбивкой по этапам.
    back
    Корректировка и утверждение сметы
    При необходимости вносим изменения — например, замену материалов или сокращение этапов. После согласования формируется окончательная фиксированная смета.
    back
    Заключение договора и старт работ
    После утверждения сметы заключаем официальный договор с гарантией. Вы получаете прозрачный график и точную стоимость — без скрытых расходов.

    Заказать конусльтацию по:Загородный дом Ален

    Фото 1 Загородный дом Ален


      Наши
      контакты

      Дмитров
      Опорный проезд 28Б
      (индустриальный парк Ниагара)
      9:00 до 18:00

      Корзина