4.9
Рейтинг на основании 120 отзывов
Дмитров
Опорный проезд 28Б
(индустриальный парк Ниагара)
Бренд "Дмитров-Дело" c 2008 года на рынке строительства в Дмитрове
Звоните 9:00 до 18:00 8 (915) 055-33-61
Бренд "Дмитров-Дело" c 2008 года на рынке строительства в Дмитрове

Загородный дом «Алькор»

Стоимость проекта от:
38 700 ₽
БЕСПЛАТНО! ПРИ ЗАКАЗЕ СТРОИТЕЛЬСТВА
Стоимость строительства от:
6 464 920 ₽
Артикул ART-20039
Дата 26.12.2025
Архитектурный стиль Классический
Количество надземных этажей 1
Круглогодичное проживание Да
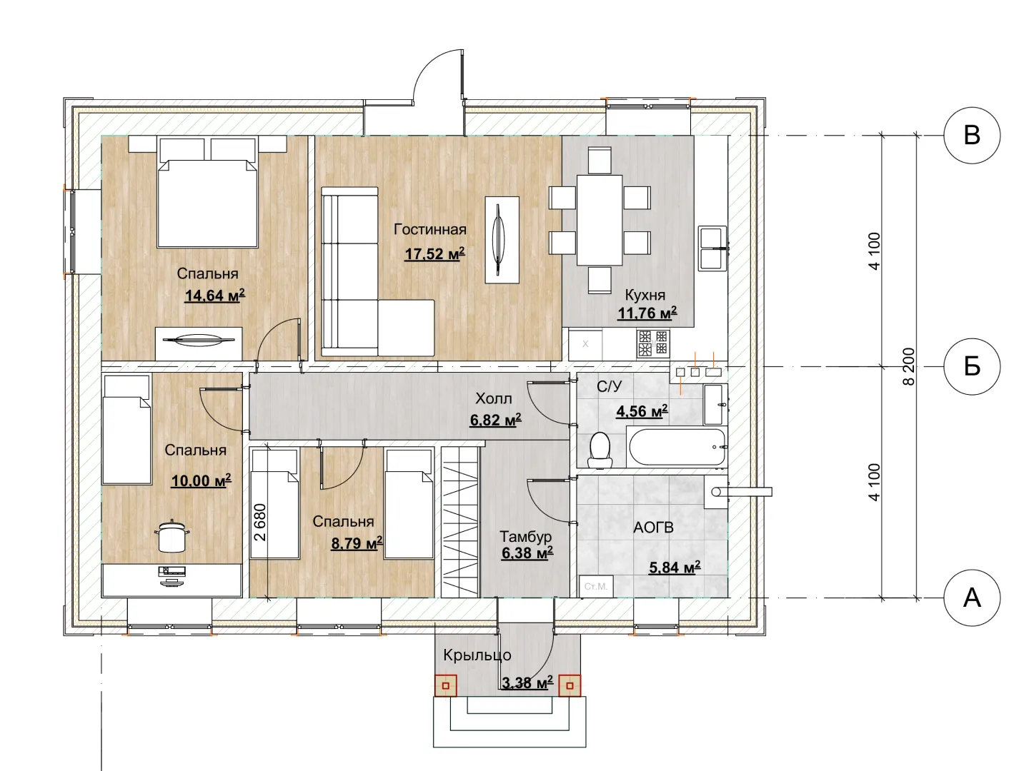
Площадь дома 86 м2
Санузлы 1
Спальни 3

Описание

**Добро пожаловать в «Алькор» — загородный уголок, где время идёт, а привычные заботы отрываются за пышную зелёную границу.** Этот единственный‑этажный дом сочетается с естественным ландшафтом, позволяя вам почувствовать лёгкий порыв ветра у окна, а в любой сезон наслаждаться полным спектром природных красок. Классический стиль придаёт дому элегантную простоту и гармонию, а прочные керамзитобетонные блоки гарантируют тепло, долговечность и уют в любое время года. Просторные светлые комнаты, обрамленные большим количеством окон, наполняются солнечным светом и открытыми видами на закат в поле. **«Алькор» — это ваш частный дом, где каждый элемент продуман, чтоб обеспечить полноценное круглогодичное проживание без лишних хлопот.** Жилой облик, без лишних балконов, веранд и чердачей, но при этом с четырёхскатной вальмовой крышей, обеспечивает надёжную защиту от непогоды и позволяет сохранять тепло внутри. Вместе с этим жильё просторно, без лишних перегородок, предоставляя свободу расстилать пространство под ваш собственный стиль. Приключение в этом доме — это уютное возвращение домой после долгой работы, лёгкое приготовление ужина на открытой кухне и вечерний отдых в теплом, благоприятном воздухе, который только создает классический дизайн. **Загородный дом «Алькор»** – ваш шанс обрести гармонию, уют и комфорт, соединяя в себе традиционный дизайн и современные решения, которые делают жизнь в нем действительно особенной.

Характеристики дома

Архитектурный стиль
Автоматизированное регулирование параметров теплоносителя
Да
Балконы/лоджии
Отсутствуют
Чердачное помещение
Нет
Датчики протечки воды
Да
Эксплуатируемая или зеленая кровля
Нет
Электроснабжение
2 варианта
Газоснабжение
2 варианта
Изоляция воздушного шума
Да
Камин
Нет
Класс энергоэффективности
-
Класс энергосбережения
-
Количество надземных этажей
1
Круглогодичное проживание
Да
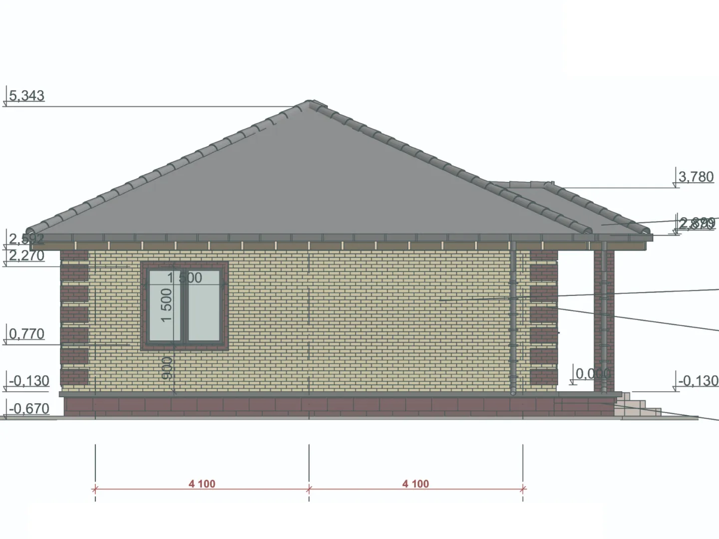
Материал кровли
Металлочерепица
Материал перекрытий
Монолитные железобетонные
Материал внешних стен
Материал внутренних перегородок
Блочные
Модульное строительство с конструкциями заводского изготовления
Нет
Объем надземной части
377 м3
Основной материал фасадов
Облицовочный кирпич
Отопление
2 варианта
Площадь дома
86 м2
Площадь застройки
120 м2
Подвальное помещение
Нет
Показатель компактности здания
-
Приборы учета тепловой энергии
Да
Пристроенный гараж/крытая автостоянка
Нет
Противопожарная система
Да
Санузлы
1
Совмещенная кухня-гостиная
Да
Спальни
3
Терраса
Нет
Тип фундамента
Свайно-ростверковый
Толщина внешних стен
630 мм
Толщина внутренних перегородок
200 мм
Улучшенные шумовые характеристики
Да
Вентиляция
2 варианта
Веранда
Нет
Водоотведение
2 варианта
Водоснабжение
2 варианта
Высота дома
5.34 м
Высота потолков
2.87 м

Планировка

Фасад дома

Александр

Закажите выезд инженера

Александр

Выездной инженер
Закажите выезд инженера для точной диагностики и профессиональной консультации по инженерным системам. Специалист приедет в удобное время, проведёт осмотр, рассчитает стоимость работ и подберёт оптимальные решения для вашего дома.


    Похожие проекты

    Ипотека и
    рассрочка
    Проект «Тихая гавань»
    Стоимость от:
    14 576 040
    Проект от: 99 450
    Этажей 2
    Санузлы 2
    Спальни 4
    Смотреть
    Ипотека и
    рассрочка
    Двухэтажный жилой дом Аполлон 218 кв.м. с гаражом
    Стоимость от:
    16 029 120
    Проект от: 98 100
    Этажей 2
    Санузлы 2
    Спальни 5
    Смотреть
    Ипотека и
    рассрочка
    Одноэтажный дом «Норвегия»
    Стоимость от:
    10 183 360
    Проект от: 57 600
    Этажей 1
    Санузлы 2
    Спальни 3
    Смотреть
    Ипотека и
    рассрочка
    Модульный дом FL 43 (ФО43)
    Стоимость от:
    3 625 050
    Проект от: 29 250
    Этажей 1
    Санузлы 1
    Спальни 2
    Смотреть
    Ипотека и
    рассрочка
    219-П
    Стоимость от:
    17 855 420
    Проект от: 103 950
    Этажей 1
    Санузлы 3
    Спальни 3
    Смотреть
    Ипотека и
    рассрочка
    КОМФОРТ
    Стоимость от:
    3 872 935
    Проект от: 30 150
    Этажей 1
    Санузлы 1
    Спальни 2
    Смотреть

    Как узнать стоимость дома

    back
    Оставляете заявку
    Вы заполняете форму на сайте или звоните нам. Менеджер Лайвкрафт связывается с вами для уточнения деталей: тип дома, площадь, материалы, участок строительства.
    back
    Консультация и подбор решения
    Наш специалист помогает выбрать оптимальный тип дома и конструкцию с учётом бюджета, сроков и целей — будь то дом для постоянного проживания или дача.
    back
    Расчёт предварительной стоимости
    Инженер делает первичный расчёт стоимости строительства по вашим параметрам: фундамент, коробка, кровля, отделка. Вы получаете смету с разбивкой по этапам.
    back
    Корректировка и утверждение сметы
    При необходимости вносим изменения — например, замену материалов или сокращение этапов. После согласования формируется окончательная фиксированная смета.
    back
    Заключение договора и старт работ
    После утверждения сметы заключаем официальный договор с гарантией. Вы получаете прозрачный график и точную стоимость — без скрытых расходов.

    Заказать конусльтацию по:Загородный дом «Алькор»

    Фото 1 Загородный дом «Алькор»


      Наши
      контакты

      Дмитров
      Опорный проезд 28Б
      (индустриальный парк Ниагара)
      9:00 до 18:00

      Корзина