4.9
Рейтинг на основании 120 отзывов
Дмитров
Опорный проезд 28Б
(индустриальный парк Ниагара)
Бренд "Дмитров-Дело" c 2008 года на рынке строительства в Дмитрове
Звоните 9:00 до 18:00 8 (915) 055-33-61
Бренд "Дмитров-Дело" c 2008 года на рынке строительства в Дмитрове

Загородный дом АС-210

Стоимость проекта от:
101 250 ₽
БЕСПЛАТНО! ПРИ ЗАКАЗЕ СТРОИТЕЛЬСТВА
Стоимость строительства от:
15 450 000 ₽
Артикул ART-13751
Дата 25.12.2025
Архитектурный стиль Минимализм
Количество надземных этажей 2
Круглогодичное проживание Да
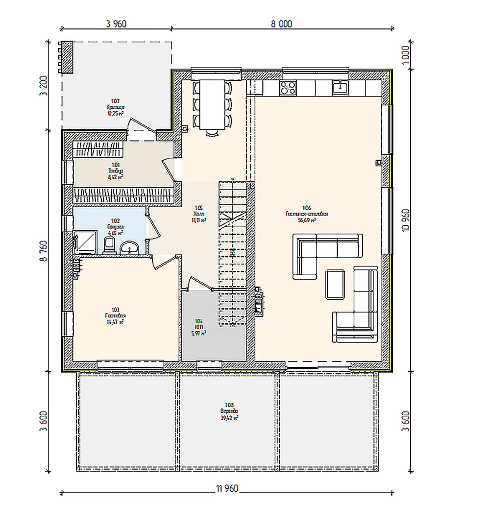
Площадь дома 225 м2
Санузлы 2
Спальни 3

Описание

Наслаждайтесь гармонией простоты и уюта в нашем загородном доме АС‑210. Этот двухэтажный шедевр минимализма, построенный из износостойких газобетонных блоков, сочетает в себе элегантную архитектуру и практичность. Плоская крыша обеспечивает максимальную гибкость в планировке, а большая веранда приглашает проводить время на открытом воздухе, наслаждаясь кристально чистым воздухом и живописным видом. Данный дом идеально подходит для круглогодичного проживания: просторная гостиная, где мягкое освещение создаёт атмосферу тепла, открытая кухня и уютные спальни ждут своих хозяев. Дополнительное чердачное помещение предоставляет возможность использовать его как рабочий кабинет, библиотеку или детскую игровую зону. Изолированные от внешнего шума стены гарантируют тихую и спокойную обстановку в любое время года. Если вы ищете идеальный уголок для жизни, где каждая деталь продумана, а комфорт превыше всего, здание АС‑210 станет вашим идеальным выбором. Позвоните нам, и мы поможем вам окунуться в мир простого, но качественного дома, где ваш уют станет приоритетом.

Характеристики дома

Архитектурный стиль
Автоматизированное регулирование параметров теплоносителя
Нет
Балконы/лоджии
Отсутствуют
Чердачное помещение
Да
Датчики протечки воды
Нет
Эксплуатируемая или зеленая кровля
Да
Электроснабжение
Центральное
Газоснабжение
Индивидуальное
Изоляция воздушного шума
Нет
Камин
Нет
Класс энергоэффективности
-
Класс энергосбережения
-
Количество надземных этажей
2
Круглогодичное проживание
Да
Материал кровли
ПВХ мембраны
Материал перекрытий
Монолитные железобетонные
Материал внешних стен
Материал внутренних перегородок
Блочные
Модульное строительство с конструкциями заводского изготовления
Нет
Объем надземной части
1324 м3
Основной материал фасадов
Штукатурка
Отопление
Индивидуальное
Площадь дома
225 м2
Площадь застройки
214 м2
Подвальное помещение
Нет
Показатель компактности здания
-
Приборы учета тепловой энергии
Нет
Пристроенный гараж/крытая автостоянка
Нет
Противопожарная система
Нет
Санузлы
2
Совмещенная кухня-гостиная
Да
Спальни
3
Терраса
Нет
Тип фундамента
Плитный
Тип кровли
Толщина внешних стен
300 мм
Толщина внутренних перегородок
100 мм
Улучшенные шумовые характеристики
Нет
Вентиляция
Естественная
Веранда
Да
Водоотведение
Локальные очистные сооружения
Водоснабжение
Центральное
Высота дома
6.95 м
Высота потолков
2.9 м

Планировка

Фасад дома

Александр

Закажите выезд инженера

Александр

Выездной инженер
Закажите выезд инженера для точной диагностики и профессиональной консультации по инженерным системам. Специалист приедет в удобное время, проведёт осмотр, рассчитает стоимость работ и подберёт оптимальные решения для вашего дома.


    Похожие проекты

    Ипотека и
    рассрочка
    Проект ГБ-175
    Стоимость от:
    12 018 000
    Проект от: 78 750
    Этажей 2
    Санузлы 2
    Спальни 3
    Смотреть
    Ипотека и
    рассрочка
    Одноэтажный дом СР-104
    Стоимость от:
    6 389 900
    Проект от: 38 250
    Этажей 1
    Санузлы 2
    Спальни 3
    Смотреть
    Ипотека и
    рассрочка
    Проект A022
    Стоимость от:
    5 639 700
    Проект от: 33 750
    Этажей 1
    Санузлы 1
    Спальни 3
    Смотреть
    Ипотека и
    рассрочка
    Жилой дом-100
    Стоимость от:
    7 483 200
    Проект от: 45 000
    Этажей 2
    Санузлы 2
    Спальни 3
    Смотреть
    Ипотека и
    рассрочка
    Рубленный деревянный двухэтажный дом «Кедр»
    Стоимость от:
    4 530 240
    Проект от: 29 700
    Этажей 2
    Санузлы 1
    Спальни 3
    Смотреть
    Ипотека и
    рассрочка
    Загородный дом 5
    Стоимость от:
    9 390 700
    Проект от: 56 250
    Этажей 1
    Санузлы 2
    Спальни 2
    Смотреть

    Как узнать стоимость дома

    back
    Оставляете заявку
    Вы заполняете форму на сайте или звоните нам. Менеджер Лайвкрафт связывается с вами для уточнения деталей: тип дома, площадь, материалы, участок строительства.
    back
    Консультация и подбор решения
    Наш специалист помогает выбрать оптимальный тип дома и конструкцию с учётом бюджета, сроков и целей — будь то дом для постоянного проживания или дача.
    back
    Расчёт предварительной стоимости
    Инженер делает первичный расчёт стоимости строительства по вашим параметрам: фундамент, коробка, кровля, отделка. Вы получаете смету с разбивкой по этапам.
    back
    Корректировка и утверждение сметы
    При необходимости вносим изменения — например, замену материалов или сокращение этапов. После согласования формируется окончательная фиксированная смета.
    back
    Заключение договора и старт работ
    После утверждения сметы заключаем официальный договор с гарантией. Вы получаете прозрачный график и точную стоимость — без скрытых расходов.

    Заказать конусльтацию по:Загородный дом АС-210

    Фото 1 Загородный дом АС-210


      Наши
      контакты

      Дмитров
      Опорный проезд 28Б
      (индустриальный парк Ниагара)
      9:00 до 18:00

      Корзина