4.9
Рейтинг на основании 120 отзывов
Дмитров
Опорный проезд 28Б
(индустриальный парк Ниагара)
Бренд "Дмитров-Дело" c 2008 года на рынке строительства в Дмитрове
Звоните 9:00 до 18:00 8 (915) 055-33-61
Бренд "Дмитров-Дело" c 2008 года на рынке строительства в Дмитрове

Загородный дом АС-212

Стоимость проекта от:
96 300 ₽
Стоимость строительства от:
14 945 760 ₽
Артикул ART-14413
Дата 25.12.2025
Архитектурный стиль Американский/Канадский
Количество надземных этажей 2
Круглогодичное проживание Да
Площадь дома 214 м2
Санузлы 2
Спальни 3

Описание

На первый взгляд, загородный дом АС‑212 поражает мягкой, почти «скандинавской» простотой внешнего облика, выполненной в американском и канадском традиционном стиле. Двухуровневое строение с двумя надземными этажами удобно организовано: каждый уровень раскрывается панорамными окнами, пропускающими естественный свет и открывающими вид на тихую местность. Крыша двухскатного профиля и использование керамзитобетонных блоков дарит дому тепло и прочность, а чердачное помещение придаёт пространство дополнительной гибкости — от подвала для хранения до уютного уголка для творчества. Круглогодичное проживание предусмотрено тщательно продуманным планированием: от теплоизоляции до систем вентиляции. Пристроенный гараж с крытой автостоянкой защищает автомобиль от непогоды и облегчает ежедневные поездки, а терраса, соединённая с террасой, создаёт идеальное место для семейных обедов на свежем воздухе и вечерних бесед под звездным небом. Отсутствие балконов и веранд позволяет сосредоточиться на внутреннем пространстве, где каждая деталь — от планировки до отделки — подчёркивает элегантность и функциональность. Этот дом – гармоничное сочетание практичности и эстетики, созданное для семей, ценящих комфорт и уют в своём уголке. Независимо от сезонных изменений, АС‑212 подарит вам ощущение безопасности и спокойствия, обернув ваш быт мягким, но стойким теплом североамериканского стиля.

Характеристики дома

Архитектурный стиль
Американский/Канадский
Автоматизированное регулирование параметров теплоносителя
Нет
Балконы/лоджии
Отсутствуют
Чердачное помещение
Да
Датчики протечки воды
Нет
Эксплуатируемая или зеленая кровля
Нет
Электроснабжение
Центральное
Газоснабжение
Индивидуальное
Изоляция воздушного шума
Нет
Камин
Нет
Класс энергоэффективности
-
Класс энергосбережения
-
Количество надземных этажей
2
Круглогодичное проживание
Да
Материал кровли
Металлочерепица
Материал перекрытий
Монолитные железобетонные
Материал внешних стен
Керамзитобетонные блоки
Материал внутренних перегородок
Блочные
Модульное строительство с конструкциями заводского изготовления
Нет
Объем надземной части
600 м3
Основной материал фасадов
Штукатурка
Отопление
Индивидуальное
Площадь дома
214 м2
Площадь застройки
215 м2
Подвальное помещение
Нет
Показатель компактности здания
-
Приборы учета тепловой энергии
Нет
Пристроенный гараж/крытая автостоянка
Да
Противопожарная система
Нет
Санузлы
2
Совмещенная кухня-гостиная
Да
Спальни
3
Терраса
Да
Тип фундамента
Плитный
Тип кровли
Двускатная
Толщина внешних стен
400 мм
Толщина внутренних перегородок
200 мм
Улучшенные шумовые характеристики
Нет
Вентиляция
Естественная
Веранда
Нет
Водоотведение
Локальные очистные сооружения
Водоснабжение
Центральное
Высота дома
7.76 м
Высота потолков
2.7 м

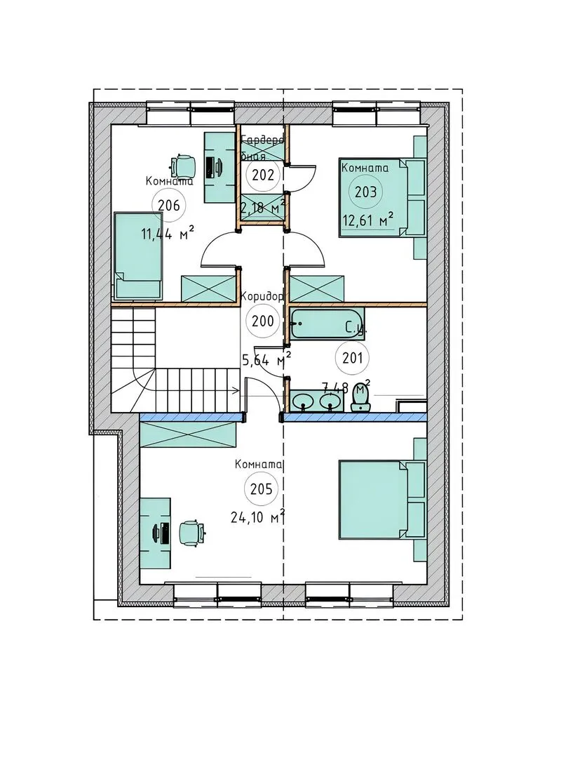
Планировка

Фасад дома

Александр

Закажите выезд инженера

Александр

Выездной инженер
Закажите выезд инженера для точной диагностики и профессиональной консультации по инженерным системам. Специалист приедет в удобное время, проведёт осмотр, рассчитает стоимость работ и подберёт оптимальные решения для вашего дома.


    Похожие проекты

    Ипотека и
    рассрочка
    Кедровник 15
    Стоимость от:
    7 149 560
    Проект от: 44 100
    Этажей 1
    Санузлы 1
    Спальни 3
    Смотреть
    Ипотека и
    рассрочка
    Загородный дом DN-2
    Стоимость от:
    13 121 900
    Проект от: 74 250
    Этажей 1
    Санузлы 2
    Спальни 4
    Смотреть
    Ипотека и
    рассрочка
    Фаворит 6х7
    Стоимость от:
    4 491 960
    Проект от: 33 750
    Этажей 2
    Санузлы 1
    Спальни 3
    Смотреть
    Ипотека и
    рассрочка
    Одноэтажный дом в классическом стиле К-71
    Стоимость от:
    5 760 755
    Проект от: 40 950
    Этажей 1
    Санузлы 2
    Спальни 2
    Смотреть
    Ипотека и
    рассрочка
    Индивидуальный жилой дом (тип L2), расположенный в п. Мичуринский
    Стоимость от:
    8 568 450
    Проект от: 60 750
    Этажей 1
    Санузлы 2
    Спальни 3
    Смотреть
    Ипотека и
    рассрочка
    120м2
    Стоимость от:
    8 824 420
    Проект от: 54 450
    Этажей 1
    Санузлы 1
    Спальни 3
    Смотреть

    Как узнать стоимость дома

    back
    Оставляете заявку
    Вы заполняете форму на сайте или звоните нам. Менеджер Лайвкрафт связывается с вами для уточнения деталей: тип дома, площадь, материалы, участок строительства.
    back
    Консультация и подбор решения
    Наш специалист помогает выбрать оптимальный тип дома и конструкцию с учётом бюджета, сроков и целей — будь то дом для постоянного проживания или дача.
    back
    Расчёт предварительной стоимости
    Инженер делает первичный расчёт стоимости строительства по вашим параметрам: фундамент, коробка, кровля, отделка. Вы получаете смету с разбивкой по этапам.
    back
    Корректировка и утверждение сметы
    При необходимости вносим изменения — например, замену материалов или сокращение этапов. После согласования формируется окончательная фиксированная смета.
    back
    Заключение договора и старт работ
    После утверждения сметы заключаем официальный договор с гарантией. Вы получаете прозрачный график и точную стоимость — без скрытых расходов.

    Заказать конусльтацию по:Загородный дом АС-212

    Фото 1 Загородный дом АС-212


      Наши
      контакты

      Дмитров
      Опорный проезд 28Б
      (индустриальный парк Ниагара)
      9:00 до 18:00