4.9
Рейтинг на основании 120 отзывов
Дмитров
Опорный проезд 28Б
(индустриальный парк Ниагара)
Бренд "Дмитров-Дело" c 2008 года на рынке строительства в Дмитрове
Звоните 9:00 до 18:00 8 (915) 055-33-61
Бренд "Дмитров-Дело" c 2008 года на рынке строительства в Дмитрове

Загородный дом АС-231

Стоимость проекта от:
140 400 ₽
БЕСПЛАТНО! ПРИ ЗАКАЗЕ СТРОИТЕЛЬСТВА
Стоимость строительства от:
21 347 040 ₽
Артикул ART-17301
Дата 26.12.2025
Архитектурный стиль Минимализм
Количество надземных этажей 1
Круглогодичное проживание Да
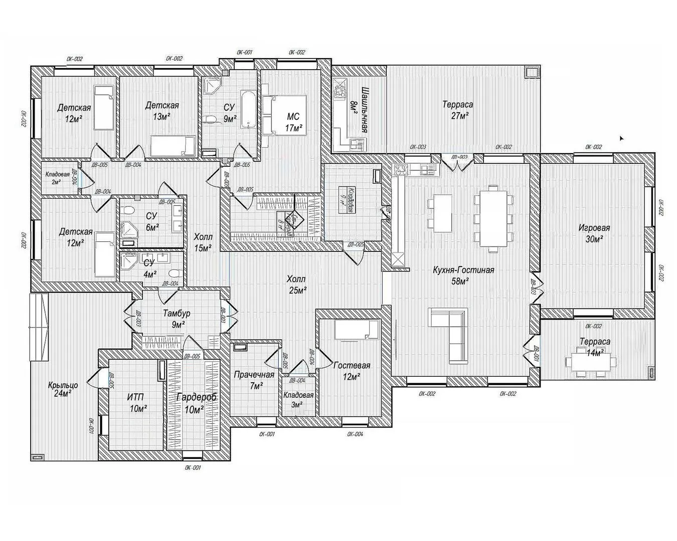
Площадь дома 312 м2
Санузлы 3
Спальни 5

Описание

Добро пожаловать в загородный дом АС‑231 – ваш уголок уюта и спокойствия, где простота стиля встречается с комфортом круготорного проживания. Это единственный надземный этаж, который создаёт ощущение пространства, а отсутствие навесов и лоджий гарантирует безмятежную связь с природой и возможность видеть бескрайние просторы прямо из вашего дома. Современный минимализм сконцентрирован на функциональности: чистые линии, открытые зонирование и продуманные детали делают каждый уголок пригодным для творчества и отдыха. Керамический керамзитобетонные блоки, из которых возведена фassade, не только придают зданию прочность, но и сохраняют тепло в холодных уголках России, обещая круглогодичную ую́тность. Плоская крыша добавляет современного очарования и открывает поле для возможной солнечной панели, а просторная терраса превратит ваш задний двор в идеальную площадку для завтраков на свежем воздухе, барбекю и летних вечеринок. Этот дом предназначен для тех, кто ценит простоту и функциональность, а также желает иметь гибкое пространство, которое легко адаптировать под различные нужды: семейный очаг, тихий дом для творчества, даже небольшое уютное предприятие. Погрузитесь в атмосферу уединения, где каждый день начинается с улыбки природы. Для более подробной информации и организации просмотра свяжитесь с нами – ваш новый дом ждёт!

Характеристики дома

Архитектурный стиль
Автоматизированное регулирование параметров теплоносителя
Нет
Балконы/лоджии
Отсутствуют
Чердачное помещение
Нет
Датчики протечки воды
Нет
Эксплуатируемая или зеленая кровля
Нет
Электроснабжение
Центральное
Газоснабжение
Индивидуальное
Изоляция воздушного шума
Нет
Камин
Нет
Класс энергоэффективности
-
Класс энергосбережения
-
Количество надземных этажей
1
Круглогодичное проживание
Да
Материал кровли
Цементно-песчаная черепица
Материал перекрытий
Монолитные железобетонные
Материал внешних стен
Материал внутренних перегородок
Кирпичные
Модульное строительство с конструкциями заводского изготовления
Нет
Объем надземной части
902 м3
Основной материал фасадов
Штукатурка
Отопление
Индивидуальное
Площадь дома
312 м2
Площадь застройки
418 м2
Подвальное помещение
Нет
Показатель компактности здания
-
Приборы учета тепловой энергии
Нет
Пристроенный гараж/крытая автостоянка
Нет
Противопожарная система
Нет
Санузлы
3
Совмещенная кухня-гостиная
Да
Спальни
5
Терраса
Да
Тип фундамента
Плитный
Тип кровли
Толщина внешних стен
440 мм
Толщина внутренних перегородок
120 мм
Улучшенные шумовые характеристики
Нет
Вентиляция
Естественная
Веранда
Нет
Водоотведение
Локальные очистные сооружения
Водоснабжение
Центральное
Высота дома
5.2 м
Высота потолков
3.9 м

Планировка

Фасад дома

Александр

Закажите выезд инженера

Александр

Выездной инженер
Закажите выезд инженера для точной диагностики и профессиональной консультации по инженерным системам. Специалист приедет в удобное время, проведёт осмотр, рассчитает стоимость работ и подберёт оптимальные решения для вашего дома.


    Похожие проекты

    Ипотека и
    рассрочка
    ЮС-О-121-1
    Стоимость от:
    9 627 420
    Проект от: 54 450
    Этажей 1
    Санузлы 2
    Спальни 3
    Смотреть
    Ипотека и
    рассрочка
    Мансардный дом Л-155
    Стоимость от:
    11 034 000
    Проект от: 69 750
    Этажей 2
    Санузлы 2
    Спальни 4
    Смотреть
    Ипотека и
    рассрочка
    Каменный дом Базис-71
    Стоимость от:
    5 014 020
    Проект от: 31 950
    Этажей 1
    Санузлы 2
    Спальни 3
    Смотреть
    Ипотека и
    рассрочка
    S 1-103
    Стоимость от:
    7 665 240
    Проект от: 45 900
    Этажей 1
    Санузлы 2
    Спальни 3
    Смотреть
    Ипотека и
    рассрочка
    S163
    Стоимость от:
    11 428 320
    Проект от: 71 100
    Этажей 2
    Санузлы 2
    Спальни 4
    Смотреть
    Ипотека и
    рассрочка
    Custom House — 157
    Стоимость от:
    17 938 560
    Проект от: 109 800
    Этажей 2
    Санузлы 3
    Спальни 3
    Смотреть

    Как узнать стоимость дома

    back
    Оставляете заявку
    Вы заполняете форму на сайте или звоните нам. Менеджер Лайвкрафт связывается с вами для уточнения деталей: тип дома, площадь, материалы, участок строительства.
    back
    Консультация и подбор решения
    Наш специалист помогает выбрать оптимальный тип дома и конструкцию с учётом бюджета, сроков и целей — будь то дом для постоянного проживания или дача.
    back
    Расчёт предварительной стоимости
    Инженер делает первичный расчёт стоимости строительства по вашим параметрам: фундамент, коробка, кровля, отделка. Вы получаете смету с разбивкой по этапам.
    back
    Корректировка и утверждение сметы
    При необходимости вносим изменения — например, замену материалов или сокращение этапов. После согласования формируется окончательная фиксированная смета.
    back
    Заключение договора и старт работ
    После утверждения сметы заключаем официальный договор с гарантией. Вы получаете прозрачный график и точную стоимость — без скрытых расходов.

    Заказать конусльтацию по:Загородный дом АС-231

    Фото 1 Загородный дом АС-231


      Наши
      контакты

      Дмитров
      Опорный проезд 28Б
      (индустриальный парк Ниагара)
      9:00 до 18:00

      Корзина