4.9
Рейтинг на основании 120 отзывов
Дмитров
Опорный проезд 28Б
(индустриальный парк Ниагара)
Бренд "Дмитров-Дело" c 2008 года на рынке строительства в Дмитрове
Звоните 9:00 до 18:00 8 (915) 055-33-61
Бренд "Дмитров-Дело" c 2008 года на рынке строительства в Дмитрове

Загородный дом АС-271

Стоимость проекта от:
114 750 ₽
БЕСПЛАТНО! ПРИ ЗАКАЗЕ СТРОИТЕЛЬСТВА
Стоимость строительства от:
17 509 200 ₽
Артикул ART-18203
Дата 26.12.2025
Архитектурный стиль Европейский
Количество надземных этажей 2
Круглогодичное проживание Да
Площадь дома 255 м2
Санузлы 3
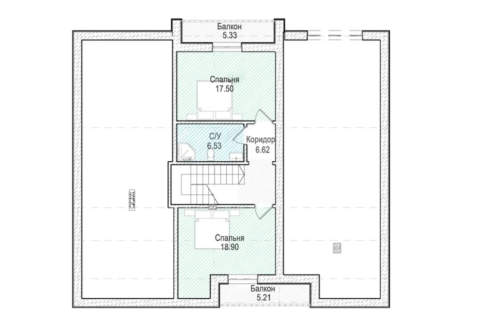
Спальни 4

Описание

Загородный дом АС‑271 – это воплощение европейской эстетики в живописном уголке природы. Двухэтажное строительство, выполненное из легких газобетонных блоков, обеспечивает тепло­изоляцию и быструю возвед­имость. Односкатная крыша и просторные балконы с лоджиями приглашают к уютным вечерам, а широкая веранда становится идеальным местом для приёма гостей под открытым небом. Гараж с крытой авто­стойкой и чердачное помещение позволяют хранить всё, что нужно, а круглогодичное проживание дарит комфорт независимо от погоды. Внутри дом раскрывается как произведение искусства: светлые, обширные просторы, где каждая комната пронизана атмосферой спокойствия и элегантности. Большие окна пропускают естественный свет, а мягкое освещение подчёркивает архитектурные детали. Просторная кухня, уютная гостиная, приватные спальни и современный санузел – всё задуманно так, чтобы каждый день начинался и заканчивался в атмосфере уюта и благополучия. На территории АС‑271 чувствуется настоящее спокойствие: живописные пейзажи, тихие прогулочные тропинки и возможность наслаждаться природой в любое время года. Дом удобно расположен вблизи транспортных артерий, но при этом сохраняет неприкосновенность и уединение. Это место, где каждый момент становится ценным, а жизнь – гармоничным фоном для ваших мечт. Ваша новая сказка начинается здесь, в загородном доме АС‑271.

Характеристики дома

Архитектурный стиль
Автоматизированное регулирование параметров теплоносителя
Нет
Балконы/лоджии
2
Чердачное помещение
Да
Датчики протечки воды
Нет
Эксплуатируемая или зеленая кровля
Нет
Электроснабжение
Центральное
Газоснабжение
Индивидуальное
Изоляция воздушного шума
Нет
Камин
Нет
Класс энергоэффективности
-
Класс энергосбережения
-
Количество надземных этажей
2
Круглогодичное проживание
Да
Материал кровли
Фальцевая кровля Кликфальц
Материал перекрытий
Монолитные железобетонные
Материал внешних стен
Материал внутренних перегородок
Блочные
Модульное строительство с конструкциями заводского изготовления
Нет
Объем надземной части
1086 м3
Основной материал фасадов
Штукатурка
Отопление
Индивидуальное
Площадь дома
255 м2
Площадь застройки
300 м2
Подвальное помещение
Нет
Показатель компактности здания
-
Приборы учета тепловой энергии
Нет
Пристроенный гараж/крытая автостоянка
Да
Противопожарная система
Нет
Санузлы
3
Совмещенная кухня-гостиная
Да
Спальни
4
Терраса
Нет
Тип фундамента
Плитный
Тип кровли
Толщина внешних стен
400 мм
Толщина внутренних перегородок
250 мм
Улучшенные шумовые характеристики
Нет
Вентиляция
Естественная
Веранда
Да
Водоотведение
Локальные очистные сооружения
Водоснабжение
Центральное
Высота дома
7.9 м
Высота потолков
3 м

Планировка

Фасад дома

Александр

Закажите выезд инженера

Александр

Выездной инженер
Закажите выезд инженера для точной диагностики и профессиональной консультации по инженерным системам. Специалист приедет в удобное время, проведёт осмотр, рассчитает стоимость работ и подберёт оптимальные решения для вашего дома.


    Похожие проекты

    Ипотека и
    рассрочка
    Дом «Хвоя 4.92» с большой студией и 4 спальнями
    Стоимость от:
    5 395 800
    Проект от: 41 400
    Этажей 2
    Санузлы 1
    Спальни 4
    Смотреть
    Ипотека и
    рассрочка
    ДомPRO 124-3К-КТ
    Стоимость от:
    12 565 960
    Проект от: 71 100
    Этажей 1
    Санузлы 2
    Спальни 3
    Смотреть
    Ипотека и
    рассрочка
    Загородный дом ВС-127
    Стоимость от:
    16 061 760
    Проект от: 105 300
    Этажей 2
    Санузлы 2
    Спальни 2
    Смотреть
    Ипотека и
    рассрочка
    Сlassic 5
    Стоимость от:
    7 590 220
    Проект от: 45 450
    Этажей 1
    Санузлы 2
    Спальни 2
    Смотреть
    Ипотека и
    рассрочка
    Прага
    Стоимость от:
    12 530 760
    Проект от: 94 050
    Этажей 2
    Санузлы 2
    Спальни 5
    Смотреть
    Ипотека и
    рассрочка
    Векшино
    Стоимость от:
    12 269 400
    Проект от: 87 750
    Этажей 1
    Санузлы 3
    Спальни 4
    Смотреть

    Как узнать стоимость дома

    back
    Оставляете заявку
    Вы заполняете форму на сайте или звоните нам. Менеджер Лайвкрафт связывается с вами для уточнения деталей: тип дома, площадь, материалы, участок строительства.
    back
    Консультация и подбор решения
    Наш специалист помогает выбрать оптимальный тип дома и конструкцию с учётом бюджета, сроков и целей — будь то дом для постоянного проживания или дача.
    back
    Расчёт предварительной стоимости
    Инженер делает первичный расчёт стоимости строительства по вашим параметрам: фундамент, коробка, кровля, отделка. Вы получаете смету с разбивкой по этапам.
    back
    Корректировка и утверждение сметы
    При необходимости вносим изменения — например, замену материалов или сокращение этапов. После согласования формируется окончательная фиксированная смета.
    back
    Заключение договора и старт работ
    После утверждения сметы заключаем официальный договор с гарантией. Вы получаете прозрачный график и точную стоимость — без скрытых расходов.

    Заказать конусльтацию по:Загородный дом АС-271

    Фото 1 Загородный дом АС-271


      Наши
      контакты

      Дмитров
      Опорный проезд 28Б
      (индустриальный парк Ниагара)
      9:00 до 18:00

      Корзина