4.9
Рейтинг на основании 120 отзывов
Дмитров
Опорный проезд 28Б
(индустриальный парк Ниагара)
Бренд "Дмитров-Дело" c 2008 года на рынке строительства в Дмитрове
Звоните 9:00 до 18:00 8 (915) 055-33-61
Бренд "Дмитров-Дело" c 2008 года на рынке строительства в Дмитрове

Загородный дом Барн 59

Стоимость проекта от:
26 550 ₽
БЕСПЛАТНО! ПРИ ЗАКАЗЕ СТРОИТЕЛЬСТВА
Стоимость строительства от:
3 150 895 ₽
Артикул ART-16952
Дата 26.12.2025
Архитектурный стиль Барнхаус
Количество надземных этажей 1
Круглогодичное проживание Да
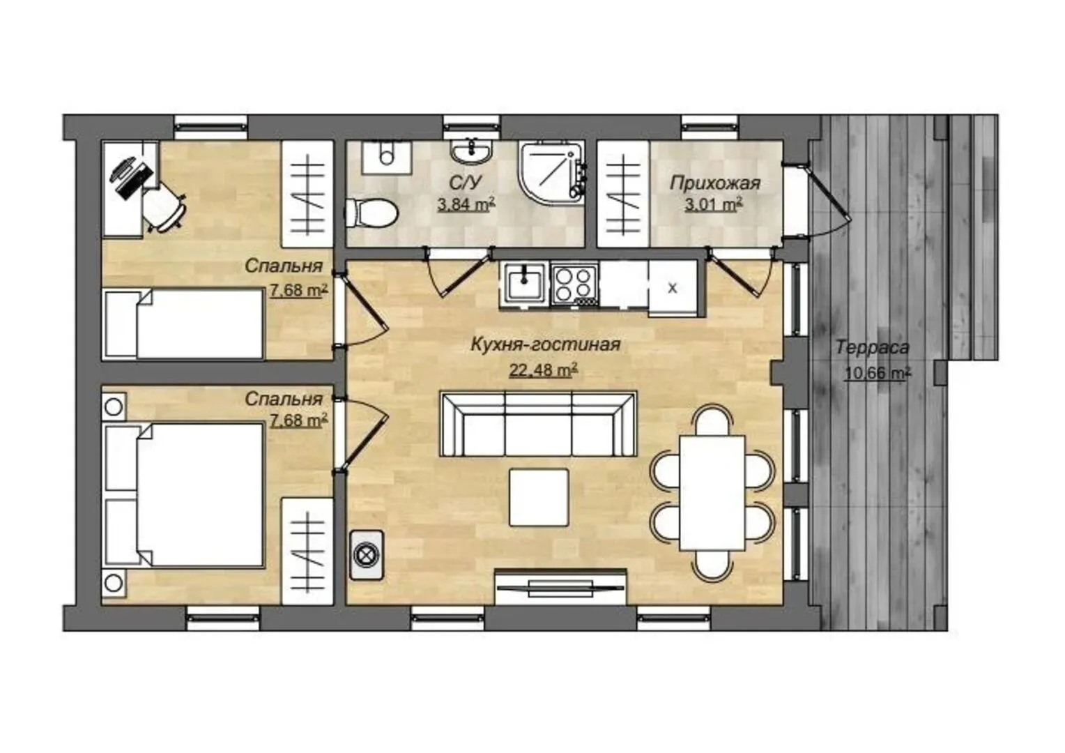
Площадь дома 59 м2
Санузлы 1
Спальни 2

Описание

Приглашаем вас в мир простоты, уюта и настоящей природной связи – в загородный дом Barn 59, где каждый элемент пронизан духом деревенского стиля и современного комфорта. Этот однокрылый дом в течение года остаётся вашим уютным убежищем, благодаря продуманной теплоизоляции и обилию светлых окон, которые наполняют пространство мягким солнечным светом. Внутри ожидает открытая планировка, где гостиная, столовая и кухня гармонично сплетаются в единый простор, создавая идеальную атмосферу для семейных обедов, долгих бесед и спонтанных праздников. Каркас из дерева, покрытый натуральной отделкой, не только подчёркивает стиль Barnhaus, но и дарит тепло, притягивая наружную природу внутрь. Пикниковые двускатные крыши, выполненные в традиционном стиле, обеспечивают стабильность и защиту от погодных капризов, а небольшая терраса – ваш личный уголок для вечерних посиделок и наслаждения тихой природой. Дом без лишних аксессуаров, таких как веранда и гараж, оставляет пространство для творчества: вы всегда можете самовыстроить отдельный павильон, придать свой сад неповторимый вид или создать уютный уголок для хранения техники. Ощутите всю прелесть настоящего загородного уединения: от спокойных прохладных ветров во времена года до тёплой домашней атмосферы. Barn 59 – это ваш притон среди живой природы, где каждый день начинается с вдохновения и заканчивается ощущением полного спокойствия – идеальное решение как для семейного отдыха, так и для долгосрочного жилья.

Характеристики дома

Архитектурный стиль
Автоматизированное регулирование параметров теплоносителя
Нет
Балконы/лоджии
Отсутствуют
Чердачное помещение
Нет
Датчики протечки воды
Нет
Эксплуатируемая или зеленая кровля
Нет
Электроснабжение
2 варианта
Газоснабжение
Не предусмотрено
Изоляция воздушного шума
Нет
Камин
Нет
Класс энергоэффективности
-
Класс энергосбережения
-
Количество надземных этажей
1
Круглогодичное проживание
Да
Материал кровли
Стальные листовые гофрированные профили
Материал перекрытий
Деревянные
Материал внешних стен
Материал внутренних перегородок
Деревянные
Модульное строительство с конструкциями заводского изготовления
Нет
Объем надземной части
116 м3
Основной материал фасадов
Планкен
Отопление
Индивидуальное
Площадь дома
59 м2
Площадь застройки
70 м2
Подвальное помещение
Нет
Показатель компактности здания
-
Приборы учета тепловой энергии
Нет
Пристроенный гараж/крытая автостоянка
Нет
Противопожарная система
Нет
Санузлы
1
Совмещенная кухня-гостиная
Да
Спальни
2
Терраса
Да
Тип фундамента
Свайно-винтовой
Тип кровли
Толщина внешних стен
200 мм
Толщина внутренних перегородок
100 мм
Улучшенные шумовые характеристики
Нет
Вентиляция
3 варианта
Веранда
Нет
Водоотведение
Локальные очистные сооружения
Водоснабжение
Индивидуальное
Высота дома
3.1 м
Высота потолков
2.45 м

Планировка

Фасад дома

Александр

Закажите выезд инженера

Александр

Выездной инженер
Закажите выезд инженера для точной диагностики и профессиональной консультации по инженерным системам. Специалист приедет в удобное время, проведёт осмотр, рассчитает стоимость работ и подберёт оптимальные решения для вашего дома.


    Похожие проекты

    Ипотека и
    рассрочка
    Авторский проект «Лелия 2.0»
    Стоимость от:
    6 564 960
    Проект от: 42 300
    Этажей 2
    Санузлы 2
    Спальни 2
    Смотреть
    Ипотека и
    рассрочка
    Загородный дом BARN136
    Стоимость от:
    9 101 400
    Проект от: 60 750
    Этажей 1
    Санузлы 2
    Спальни 3
    Смотреть
    Ипотека и
    рассрочка
    Загородный дом Ливерпуль
    Стоимость от:
    33 545 280
    Проект от: 212 400
    Этажей 2
    Санузлы 3
    Спальни 5
    Смотреть
    Ипотека и
    рассрочка
    80м2
    Стоимость от:
    5 838 800
    Проект от: 36 000
    Этажей 1
    Санузлы 1
    Спальни 3
    Смотреть
    Ипотека и
    рассрочка
    Каркасный дом «Барн 62»
    Стоимость от:
    3 594 140
    Проект от: 27 900
    Этажей 1
    Санузлы 1
    Спальни 2
    Смотреть
    Ипотека и
    рассрочка
    Одноэтажный дом «Бали»
    Стоимость от:
    314 600
    Проект от: 58 500
    Этажей 1
    Санузлы 2
    Спальни 3
    Смотреть

    Как узнать стоимость дома

    back
    Оставляете заявку
    Вы заполняете форму на сайте или звоните нам. Менеджер Лайвкрафт связывается с вами для уточнения деталей: тип дома, площадь, материалы, участок строительства.
    back
    Консультация и подбор решения
    Наш специалист помогает выбрать оптимальный тип дома и конструкцию с учётом бюджета, сроков и целей — будь то дом для постоянного проживания или дача.
    back
    Расчёт предварительной стоимости
    Инженер делает первичный расчёт стоимости строительства по вашим параметрам: фундамент, коробка, кровля, отделка. Вы получаете смету с разбивкой по этапам.
    back
    Корректировка и утверждение сметы
    При необходимости вносим изменения — например, замену материалов или сокращение этапов. После согласования формируется окончательная фиксированная смета.
    back
    Заключение договора и старт работ
    После утверждения сметы заключаем официальный договор с гарантией. Вы получаете прозрачный график и точную стоимость — без скрытых расходов.

    Заказать конусльтацию по:Загородный дом Барн 59

    Фото 1 Загородный дом Барн 59


      Наши
      контакты

      Дмитров
      Опорный проезд 28Б
      (индустриальный парк Ниагара)
      9:00 до 18:00

      Корзина