4.9
Рейтинг на основании 120 отзывов
Дмитров
Опорный проезд 28Б
(индустриальный парк Ниагара)
Бренд "Дмитров-Дело" c 2008 года на рынке строительства в Дмитрове
Звоните 9:00 до 18:00 8 (915) 055-33-61
Бренд "Дмитров-Дело" c 2008 года на рынке строительства в Дмитрове

Загородный дом Барнхаус

Стоимость проекта от:
40 500 ₽
БЕСПЛАТНО! ПРИ ЗАКАЗЕ СТРОИТЕЛЬСТВА
Стоимость строительства от:
5 278 500 ₽
Артикул ART-14002
Дата 25.12.2025
Архитектурный стиль Барнхаус
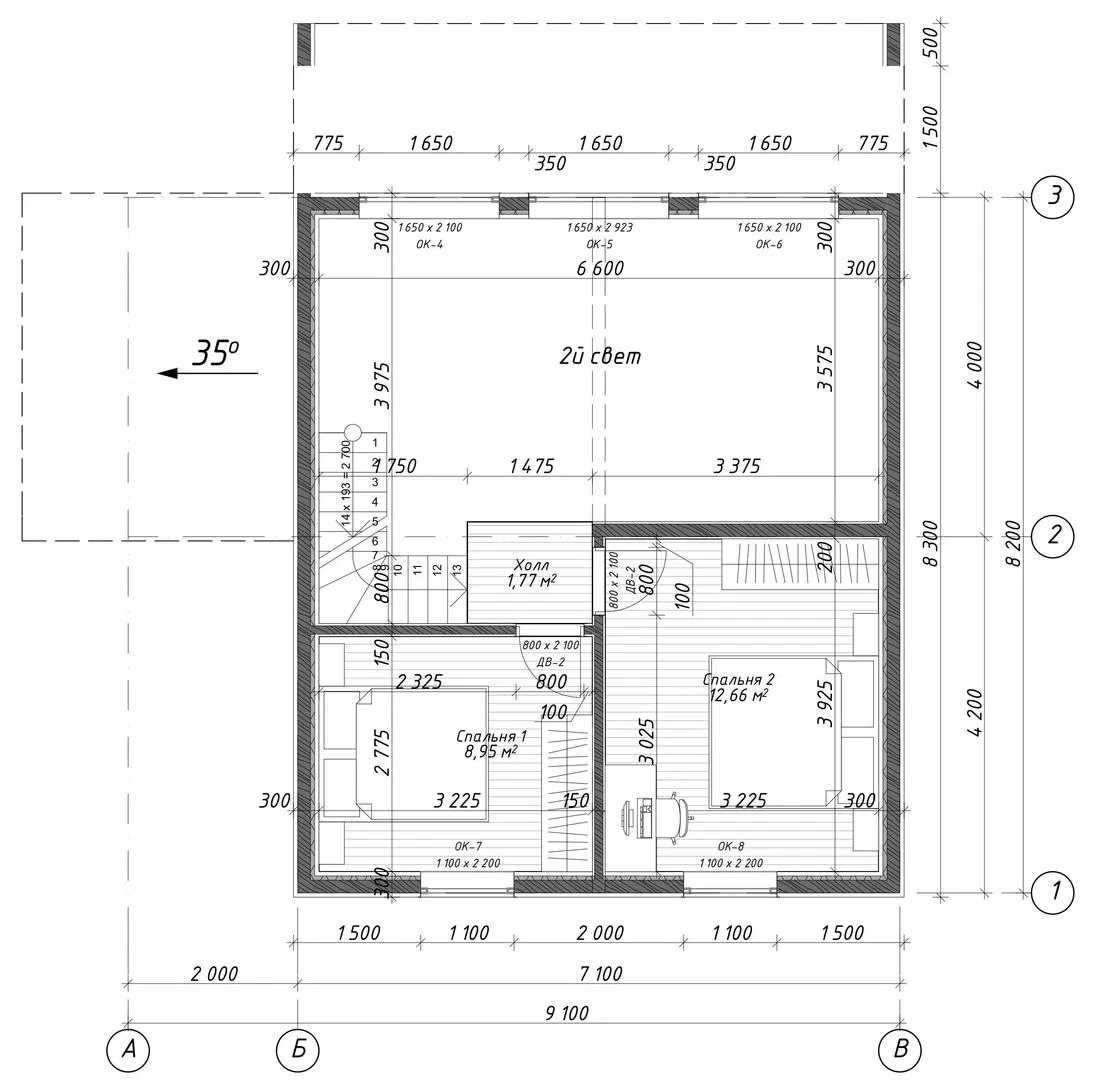
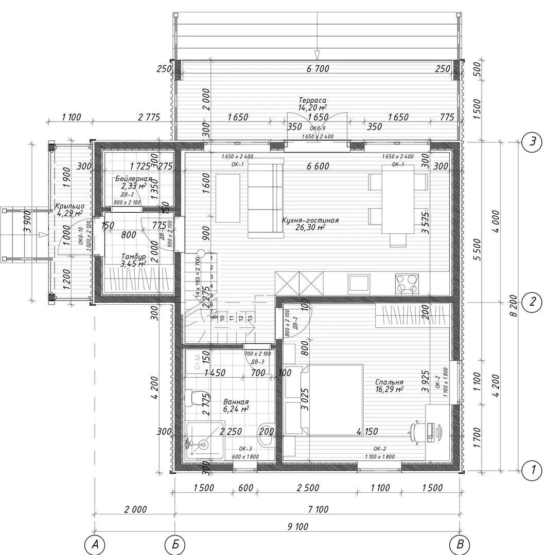
Количество надземных этажей 2
Круглогодичное проживание Да
Площадь дома 90 м2
Санузлы 1
Спальни 3

Описание

Добро пожаловать в уединённый уголок природы, где простота и уют встречаются с современными удобствами. Наш загородный дом в стиле **Барнхаус** – идеальное сочетание традиционного европейского колорита и современного комфорта. Строительство выполнено в прочном деревянном каркасе, который дарит дома тепло и естественность, при этом выдерживает все погодные условия. Двускатная крыша подчёркивает винтажный облик и создаёт ощущение, будто дом сам по себе защищает от ветра и дождя. Внутри вас ждут две светлые и просторные этажи, рассчитанные на круглогодичную жизнь. Оборудованный на уровень современного комфорта, дом оснащён уютной кухней, обеденной зоной и гостиной, где каждый уголок приглашает к отдыху. С большим окном открывается вид на зеленый луг, а открытая терраса становится вашим личным пространством для вечерних напитков, барбекю и встречи с друзьями под ясное небо. Сделка с этим домом – это не просто покупка недвижимости, а вложение в тихую гавань от городской суеты. Оставьте в прошлом шумные улицы и откройте для себя возможность жить в гармонии с природой, наслаждаясь спокойствием, уединением и вдохновляющей атмосферой фермерского дома, где каждый день начинает с запаха свежеиспечённого хлеба и заканчивается звуками ночного ветра. Ваша новая домашняя оаза уже ждет вас.

Характеристики дома

Архитектурный стиль
Автоматизированное регулирование параметров теплоносителя
Нет
Балконы/лоджии
Отсутствуют
Чердачное помещение
Нет
Датчики протечки воды
Нет
Эксплуатируемая или зеленая кровля
Нет
Электроснабжение
Индивидуальное
Газоснабжение
Не предусмотрено
Изоляция воздушного шума
Нет
Камин
Нет
Класс энергоэффективности
-
Класс энергосбережения
-
Количество надземных этажей
2
Круглогодичное проживание
Да
Материал кровли
Металлические листовые гофрированные профили
Материал перекрытий
Деревянные
Материал внешних стен
Материал внутренних перегородок
Деревянные
Модульное строительство с конструкциями заводского изготовления
Нет
Объем надземной части
-
Основной материал фасадов
Дерево
Отопление
Индивидуальное
Площадь дома
90 м2
Площадь застройки
86 м2
Подвальное помещение
Нет
Показатель компактности здания
-
Приборы учета тепловой энергии
Нет
Пристроенный гараж/крытая автостоянка
Нет
Противопожарная система
Нет
Санузлы
1
Совмещенная кухня-гостиная
Да
Спальни
3
Терраса
Да
Тип фундамента
Свайно-винтовой
Тип кровли
Толщина внешних стен
300 мм
Толщина внутренних перегородок
200 мм
Улучшенные шумовые характеристики
Нет
Вентиляция
Естественная
Веранда
Нет
Водоотведение
Локальные очистные сооружения
Водоснабжение
Индивидуальное
Высота дома
6.93 м
Высота потолков
2.5 м

Планировка

Фасад дома

Александр

Закажите выезд инженера

Александр

Выездной инженер
Закажите выезд инженера для точной диагностики и профессиональной консультации по инженерным системам. Специалист приедет в удобное время, проведёт осмотр, рассчитает стоимость работ и подберёт оптимальные решения для вашего дома.


    Похожие проекты

    Ипотека и
    рассрочка
    Одноэтажный современный дом
    Стоимость от:
    8 743 460
    Проект от: 50 850
    Этажей 1
    Санузлы 2
    Спальни 2
    Смотреть
    Ипотека и
    рассрочка
    Загородный дом Ulm K 1/130/2
    Стоимость от:
    9 392 460
    Проект от: 59 850
    Этажей 1
    Санузлы 2
    Спальни 3
    Смотреть
    Ипотека и
    рассрочка
    Загородный дом по проекту «Торвальд».
    Стоимость от:
    8 791 200
    Проект от: 60 750
    Этажей 1
    Санузлы 2
    Спальни 2
    Смотреть
    Ипотека и
    рассрочка
    Проект одноэтажного дома Марсель
    Стоимость от:
    13 441 780
    Проект от: 80 550
    Этажей 1
    Санузлы 2
    Спальни 3
    Смотреть
    Ипотека и
    рассрочка
    МК-01-2024 одноэтажный дом площадь 75 кв.м.
    Стоимость от:
    5 639 700
    Проект от: 33 750
    Этажей 1
    Санузлы 1
    Спальни 2
    Смотреть
    Ипотека и
    рассрочка
    Загородный дом Пион
    Стоимость от:
    5 649 600
    Проект от: 36 000
    Этажей 1
    Санузлы 2
    Спальни 3
    Смотреть

    Как узнать стоимость дома

    back
    Оставляете заявку
    Вы заполняете форму на сайте или звоните нам. Менеджер Лайвкрафт связывается с вами для уточнения деталей: тип дома, площадь, материалы, участок строительства.
    back
    Консультация и подбор решения
    Наш специалист помогает выбрать оптимальный тип дома и конструкцию с учётом бюджета, сроков и целей — будь то дом для постоянного проживания или дача.
    back
    Расчёт предварительной стоимости
    Инженер делает первичный расчёт стоимости строительства по вашим параметрам: фундамент, коробка, кровля, отделка. Вы получаете смету с разбивкой по этапам.
    back
    Корректировка и утверждение сметы
    При необходимости вносим изменения — например, замену материалов или сокращение этапов. После согласования формируется окончательная фиксированная смета.
    back
    Заключение договора и старт работ
    После утверждения сметы заключаем официальный договор с гарантией. Вы получаете прозрачный график и точную стоимость — без скрытых расходов.

    Заказать конусльтацию по:Загородный дом Барнхаус

    Фото 1 Загородный дом Барнхаус


      Наши
      контакты

      Дмитров
      Опорный проезд 28Б
      (индустриальный парк Ниагара)
      9:00 до 18:00

      Корзина