4.9
Рейтинг на основании 120 отзывов
Дмитров
Опорный проезд 28Б
(индустриальный парк Ниагара)
Бренд "Дмитров-Дело" c 2008 года на рынке строительства в Дмитрове
Звоните 9:00 до 18:00 8 (915) 055-33-61
Бренд "Дмитров-Дело" c 2008 года на рынке строительства в Дмитрове

Загородный дом БК «АДАМ-С»

Стоимость проекта от:
75 600 ₽
БЕСПЛАТНО! ПРИ ЗАКАЗЕ СТРОИТЕЛЬСТВА
Стоимость строительства от:
12 558 720 ₽
Артикул ART-17062
Дата 26.12.2025
Архитектурный стиль Классический
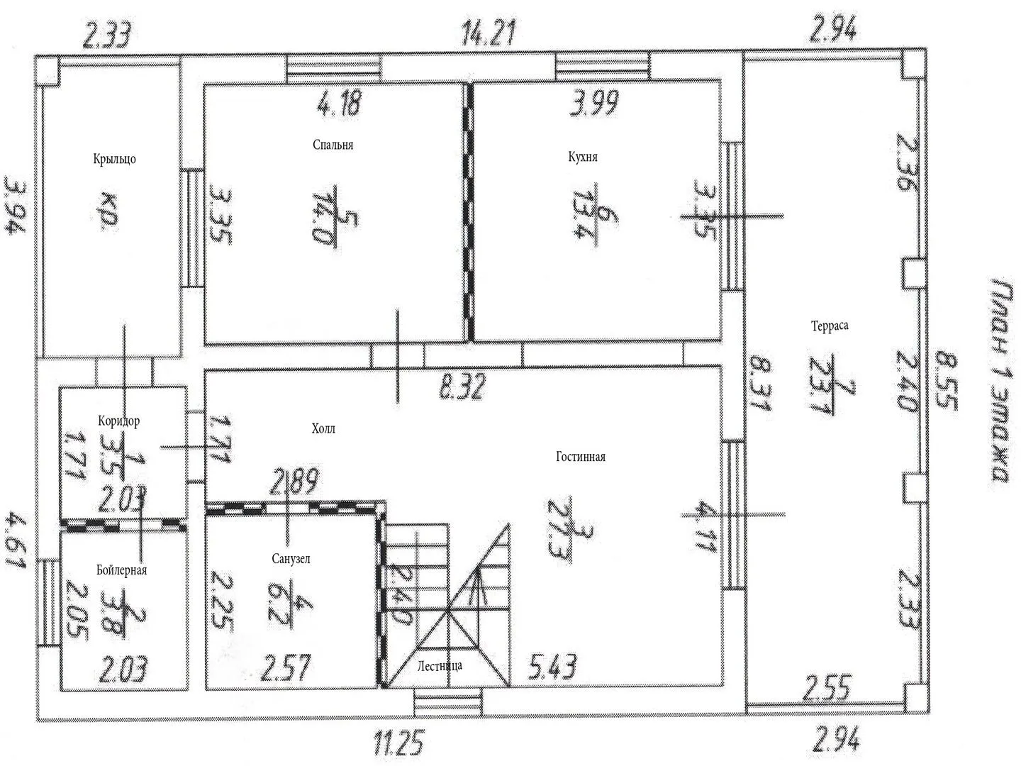
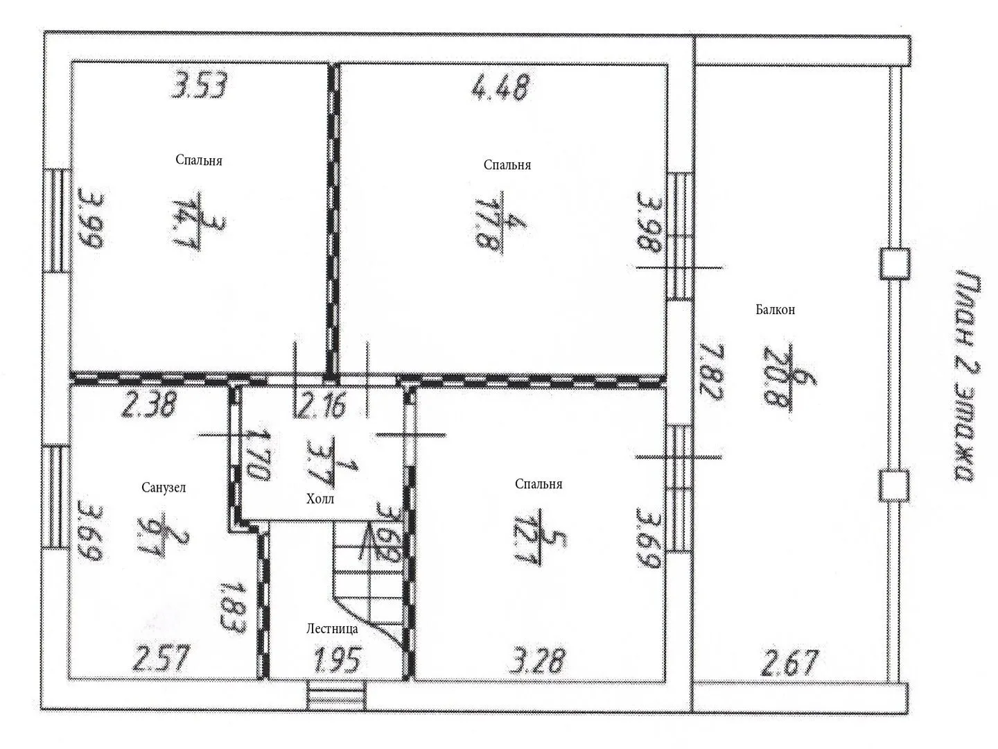
Количество надземных этажей 2
Круглогодичное проживание Да
Площадь дома 168 м2
Санузлы 2
Спальни 4

Описание

Добро пожаловать в уютный уголок, где каждая деталь пропитана теплом и классической элегантностью. Загородный дом БК «АДАМ‑С» сочетает в себе традиционный архитектурный стиль и современный комфорт. В его двух надземных этажах вы найдёте просторные комнаты, светлые и открытые, подходящие для круглогодичного проживания. Просторные окна, которые открывают вид на живописные пейзажи, создают ощущение лёгкости и свободы, а классическая архитектура с изысканными деталями придаёт дому особый шарм. Дом предлагает всё необходимое для семейного уюта: удобный балкон с видом на зелёные просторы, просторное чердачное помещение, которое можно превратить в уютную мастерскую или дополнительную гостиную, и террасы, где можно наслаждаться рассветами и закатами. Внешние стены из газобетонных блоков обеспечивают теплоизоляцию и долговечность, а двускатная кровля дополняет классический облик здания, подчёркивая его элегантность и надёжность. Хотя пристроенный гараж и крытая автостоянка отсутствуют, вы сможете насладиться свободой открытого пространства и возможностью организовать собственный комфортный задний двор. Дом БК «АДАМ‑С» — это гармония стиля, уюта и практичности, созданная для тех, кто ценит качество, уют и красоту природы вокруг. Вы будете наслаждаться каждым моментом, проведённым в этом уголке рая, где каждый день начинается с вдохновения и спокойствия.

Характеристики дома

Архитектурный стиль
Автоматизированное регулирование параметров теплоносителя
Нет
Балконы/лоджии
1
Чердачное помещение
Да
Датчики протечки воды
Нет
Эксплуатируемая или зеленая кровля
Нет
Электроснабжение
Центральное
Газоснабжение
Не предусмотрено
Изоляция воздушного шума
Да
Камин
Нет
Класс энергоэффективности
-
Класс энергосбережения
-
Количество надземных этажей
2
Круглогодичное проживание
Да
Материал кровли
Металлочерепица
Материал перекрытий
Монолитные железобетонные
Материал внешних стен
Материал внутренних перегородок
Блочные
Модульное строительство с конструкциями заводского изготовления
Нет
Объем надземной части
-
Основной материал фасадов
Облицовочный кирпич
Отопление
Индивидуальное
Площадь дома
168 м2
Площадь застройки
121 м2
Подвальное помещение
Нет
Показатель компактности здания
-
Приборы учета тепловой энергии
Нет
Пристроенный гараж/крытая автостоянка
Нет
Противопожарная система
Нет
Санузлы
2
Совмещенная кухня-гостиная
Нет
Спальни
4
Терраса
Да
Тип фундамента
Ленточный
Тип кровли
Толщина внешних стен
400 мм
Толщина внутренних перегородок
150 мм
Улучшенные шумовые характеристики
Да
Вентиляция
Принудительная
Веранда
Нет
Водоотведение
Локальные очистные сооружения
Водоснабжение
Индивидуальное
Высота дома
8.13 м
Высота потолков
2.9 м

Планировка

Фасад дома

Александр

Закажите выезд инженера

Александр

Выездной инженер
Закажите выезд инженера для точной диагностики и профессиональной консультации по инженерным системам. Специалист приедет в удобное время, проведёт осмотр, рассчитает стоимость работ и подберёт оптимальные решения для вашего дома.


    Похожие проекты

    Ипотека и
    рассрочка
    Одноэтажный дом К88
    Стоимость от:
    5 902 710
    Проект от: 41 850
    Этажей 1
    Санузлы 2
    Спальни 2
    Смотреть
    Ипотека и
    рассрочка
    Одноэтажный Дом Арти
    Стоимость от:
    6 748 170
    Проект от: 54 450
    Этажей 1
    Санузлы 2
    Спальни 2
    Смотреть
    Ипотека и
    рассрочка
    Двухэтажный дом FK-231 Самосырово
    Стоимость от:
    16 629 600
    Проект от: 103 500
    Этажей 2
    Санузлы 3
    Спальни 3
    Смотреть
    Ипотека и
    рассрочка
    Кирпичный дом (Пятидворье)
    Стоимость от:
    6 464 920
    Проект от: 38 700
    Этажей 1
    Санузлы 1
    Спальни 3
    Смотреть
    Ипотека и
    рассрочка
    Индивидуальный жилой дом проекта БАРН 106
    Стоимость от:
    6 116 550
    Проект от: 49 500
    Этажей 1
    Санузлы 1
    Спальни 3
    Смотреть
    Ипотека и
    рассрочка
    Истра
    Стоимость от:
    14 603 760
    Проект от: 94 050
    Этажей 2
    Санузлы 3
    Спальни 5
    Смотреть

    Как узнать стоимость дома

    back
    Оставляете заявку
    Вы заполняете форму на сайте или звоните нам. Менеджер Лайвкрафт связывается с вами для уточнения деталей: тип дома, площадь, материалы, участок строительства.
    back
    Консультация и подбор решения
    Наш специалист помогает выбрать оптимальный тип дома и конструкцию с учётом бюджета, сроков и целей — будь то дом для постоянного проживания или дача.
    back
    Расчёт предварительной стоимости
    Инженер делает первичный расчёт стоимости строительства по вашим параметрам: фундамент, коробка, кровля, отделка. Вы получаете смету с разбивкой по этапам.
    back
    Корректировка и утверждение сметы
    При необходимости вносим изменения — например, замену материалов или сокращение этапов. После согласования формируется окончательная фиксированная смета.
    back
    Заключение договора и старт работ
    После утверждения сметы заключаем официальный договор с гарантией. Вы получаете прозрачный график и точную стоимость — без скрытых расходов.

    Заказать конусльтацию по:Загородный дом БК «АДАМ-С»

    Фото 1 Загородный дом БК «АДАМ-С»


      Наши
      контакты

      Дмитров
      Опорный проезд 28Б
      (индустриальный парк Ниагара)
      9:00 до 18:00

      Корзина