4.9
Рейтинг на основании 120 отзывов
Дмитров
Опорный проезд 28Б
(индустриальный парк Ниагара)
Бренд "Дмитров-Дело" c 2008 года на рынке строительства в Дмитрове
Звоните 9:00 до 18:00 8 (915) 055-33-61
Бренд "Дмитров-Дело" c 2008 года на рынке строительства в Дмитрове

Загородный дом «Чехия»

Стоимость проекта от:
38 250 ₽
БЕСПЛАТНО! ПРИ ЗАКАЗЕ СТРОИТЕЛЬСТВА
Стоимость строительства от:
6 002 700 ₽
Артикул ART-3447
Дата 26.12.2025
Архитектурный стиль Европейский
Количество надземных этажей 1
Круглогодичное проживание Да
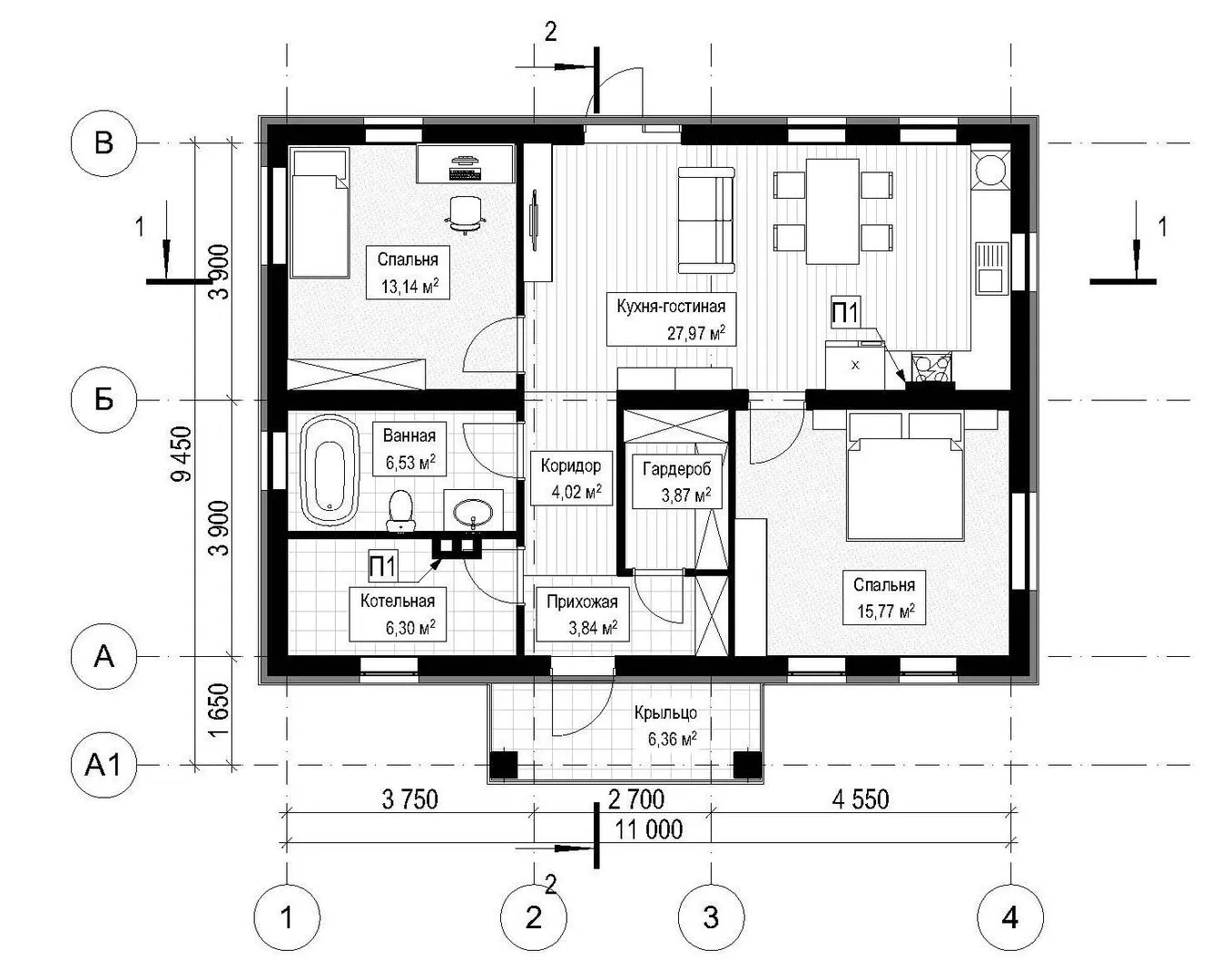
Площадь дома 85 м2
Санузлы 1
Спальни 2

Описание

**Загородный дом «Чехия»** – настоящий оазис гармонии и уюта. Вы ощутите атмосферу европейского стиля уже при первом шаге в просторную гостиную, где керамический блок и изысканные деревянные детали соединяются воедино, а четырехскатная крыш с характерным вальмовым профилем добавляет дому строгости и элегантности. Дом одноповерхный, что делает его особенно удобным для семейного обитания: отсутствие лестниц облегчает движение по дому, а открытая планировка создаёт ощущение простора и свободы. В «Чехии» круглогодичное проживание – не просто слово, а реальность. Плотные стены из керамического блока обеспечивают отличную теплоизоляцию, позволяя наслаждаться теплой и уютной атмосферой в любую погоду. Внутри вы найдете всё необходимое для комфортного быта: открытая кухне‑гостиную с большим столом, ванных комнат с современной сантехникой, а также достаточно пространства для хранения. Даже без прицепок и гаражей, дома предусмотрено достаточно места для хранения велосипедов, садового инвентаря и других вещей. Этот дом – идеальное место для тех, кто ценит сочетание классической красоты и современного комфорта. Вдохновлённый европейскими традициями, он приглашает к созданию новых семейных историй, уютных вечеров и ярких воспоминаний. «Чехия» – это ваш личный уголок спокойствия, который ждёт, чтобы стать частью вашей жизни.

Характеристики дома

Архитектурный стиль
Автоматизированное регулирование параметров теплоносителя
Да
Балконы/лоджии
Отсутствуют
Чердачное помещение
Нет
Датчики протечки воды
Нет
Эксплуатируемая или зеленая кровля
Нет
Электроснабжение
Центральное
Газоснабжение
Не предусмотрено
Изоляция воздушного шума
Нет
Камин
Нет
Класс энергоэффективности
-
Класс энергосбережения
-
Количество надземных этажей
1
Круглогодичное проживание
Да
Материал кровли
Металлочерепица
Материал перекрытий
Деревянные
Материал внешних стен
Материал внутренних перегородок
Блочные
Модульное строительство с конструкциями заводского изготовления
Нет
Объем надземной части
238 м3
Основной материал фасадов
Штукатурка
Отопление
Индивидуальное
Площадь дома
85 м2
Площадь застройки
91 м2
Подвальное помещение
Нет
Показатель компактности здания
-
Приборы учета тепловой энергии
Да
Пристроенный гараж/крытая автостоянка
Нет
Противопожарная система
Нет
Санузлы
1
Совмещенная кухня-гостиная
Да
Спальни
2
Терраса
Нет
Тип фундамента
Плитный
Толщина внешних стен
300 мм
Толщина внутренних перегородок
120 мм
Улучшенные шумовые характеристики
Нет
Вентиляция
Естественная
Веранда
Нет
Водоотведение
Локальные очистные сооружения
Водоснабжение
Индивидуальное
Высота дома
5.4 м
Высота потолков
2.8 м

Планировка

Фасад дома

Александр

Закажите выезд инженера

Александр

Выездной инженер
Закажите выезд инженера для точной диагностики и профессиональной консультации по инженерным системам. Специалист приедет в удобное время, проведёт осмотр, рассчитает стоимость работ и подберёт оптимальные решения для вашего дома.


    Похожие проекты

    Ипотека и
    рассрочка
    Домокомплект 120
    Стоимость от:
    10 878 780
    Проект от: 71 550
    Этажей 1
    Санузлы 3
    Спальни 4
    Смотреть
    Ипотека и
    рассрочка
    Леви-Р
    Стоимость от:
    5 449 180
    Проект от: 42 300
    Этажей 1
    Санузлы 1
    Спальни 3
    Смотреть
    Ипотека и
    рассрочка
    Двухэтажный дом с четырьмя спальнями S-204
    Стоимость от:
    17 956 080
    Проект от: 115 650
    Этажей 2
    Санузлы 2
    Спальни 4
    Смотреть
    Ипотека и
    рассрочка
    Статус 8х9 Яуза с террасами
    Стоимость от:
    4 219 765
    Проект от: 32 850
    Этажей 1
    Санузлы 1
    Спальни 2
    Смотреть
    Ипотека и
    рассрочка
    БД 1454
    Стоимость от:
    4 802 160
    Проект от: 30 600
    Этажей 1
    Санузлы 1
    Спальни 2
    Смотреть
    Ипотека и
    рассрочка
    Одноэтажный дом FIXPLANS — 2249
    Стоимость от:
    14 830 200
    Проект от: 94 500
    Этажей 1
    Санузлы 2
    Спальни 3
    Смотреть

    Как узнать стоимость дома

    back
    Оставляете заявку
    Вы заполняете форму на сайте или звоните нам. Менеджер Лайвкрафт связывается с вами для уточнения деталей: тип дома, площадь, материалы, участок строительства.
    back
    Консультация и подбор решения
    Наш специалист помогает выбрать оптимальный тип дома и конструкцию с учётом бюджета, сроков и целей — будь то дом для постоянного проживания или дача.
    back
    Расчёт предварительной стоимости
    Инженер делает первичный расчёт стоимости строительства по вашим параметрам: фундамент, коробка, кровля, отделка. Вы получаете смету с разбивкой по этапам.
    back
    Корректировка и утверждение сметы
    При необходимости вносим изменения — например, замену материалов или сокращение этапов. После согласования формируется окончательная фиксированная смета.
    back
    Заключение договора и старт работ
    После утверждения сметы заключаем официальный договор с гарантией. Вы получаете прозрачный график и точную стоимость — без скрытых расходов.

    Заказать конусльтацию по:Загородный дом «Чехия»

    Фото 1 Загородный дом «Чехия»


      Наши
      контакты

      Дмитров
      Опорный проезд 28Б
      (индустриальный парк Ниагара)
      9:00 до 18:00

      Корзина