4.9
Рейтинг на основании 120 отзывов
Дмитров
Опорный проезд 28Б
(индустриальный парк Ниагара)
Бренд "Дмитров-Дело" c 2008 года на рынке строительства в Дмитрове
Звоните 9:00 до 18:00 8 (915) 055-33-61
Бренд "Дмитров-Дело" c 2008 года на рынке строительства в Дмитрове

Загородный дом из газобетона «M»

Стоимость проекта от:
74 250 ₽
БЕСПЛАТНО! ПРИ ЗАКАЗЕ СТРОИТЕЛЬСТВА
Стоимость строительства от:
11 331 600 ₽
Артикул ART-1813
Дата 26.12.2025
Архитектурный стиль Классический
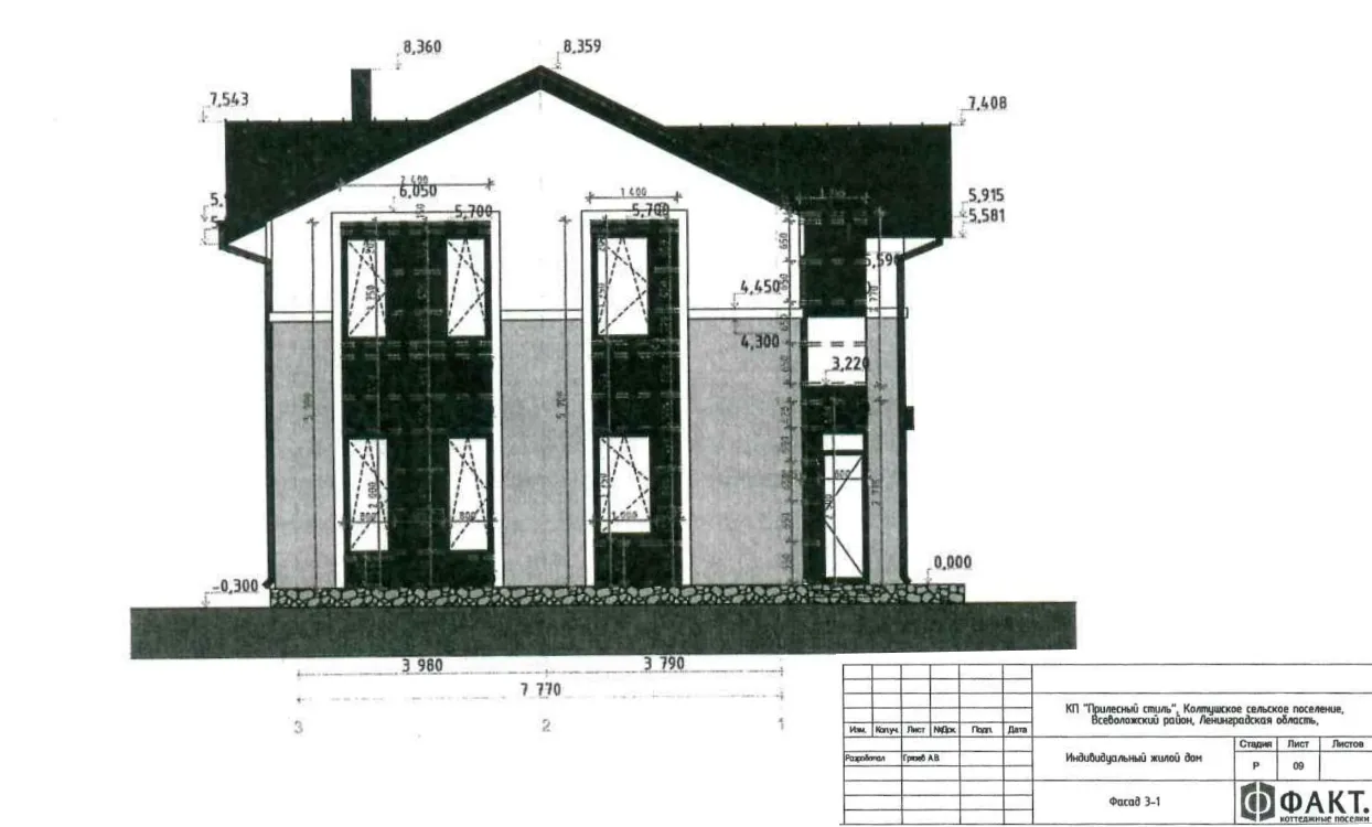
Количество надземных этажей 2
Круглогодичное проживание Да
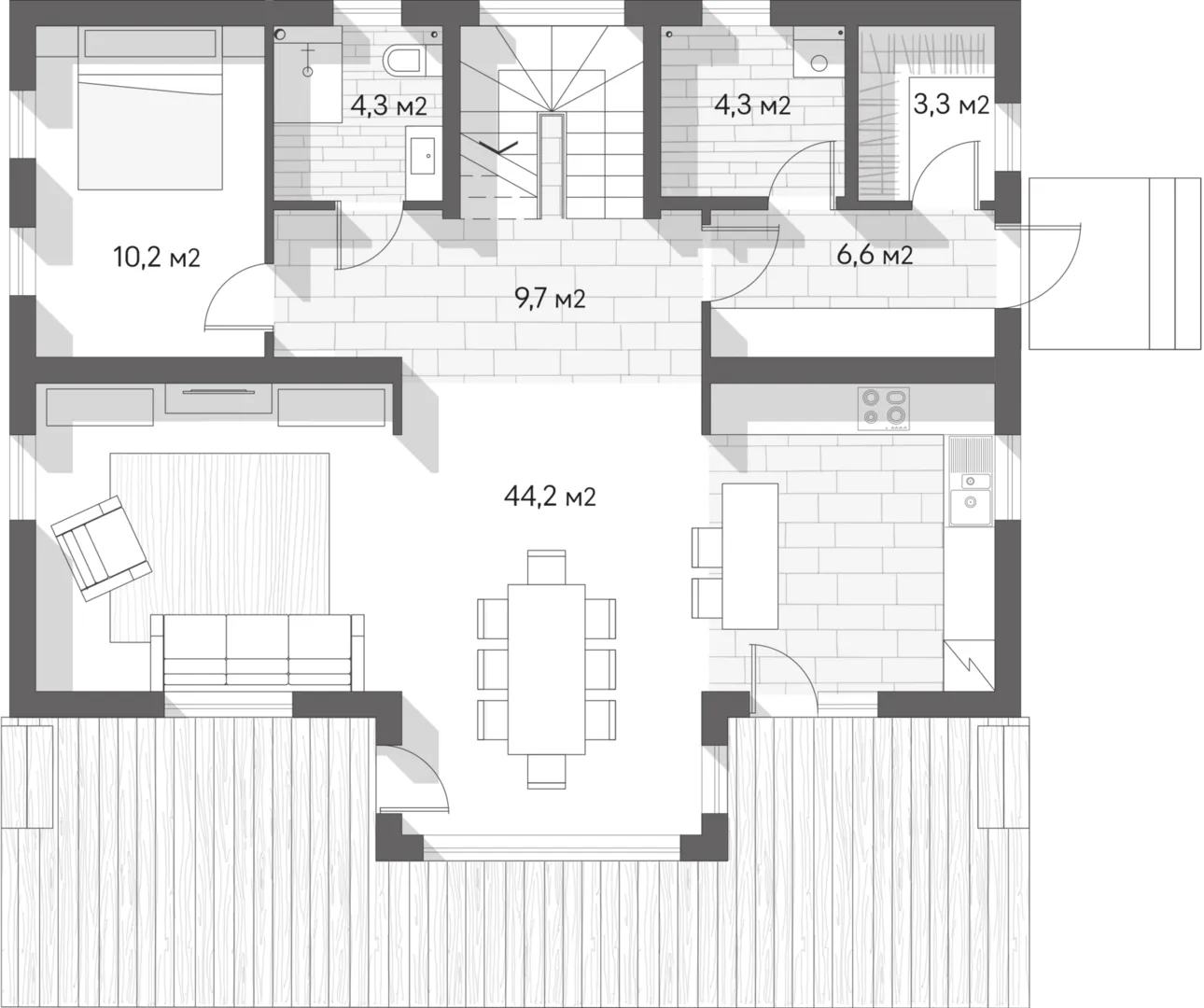
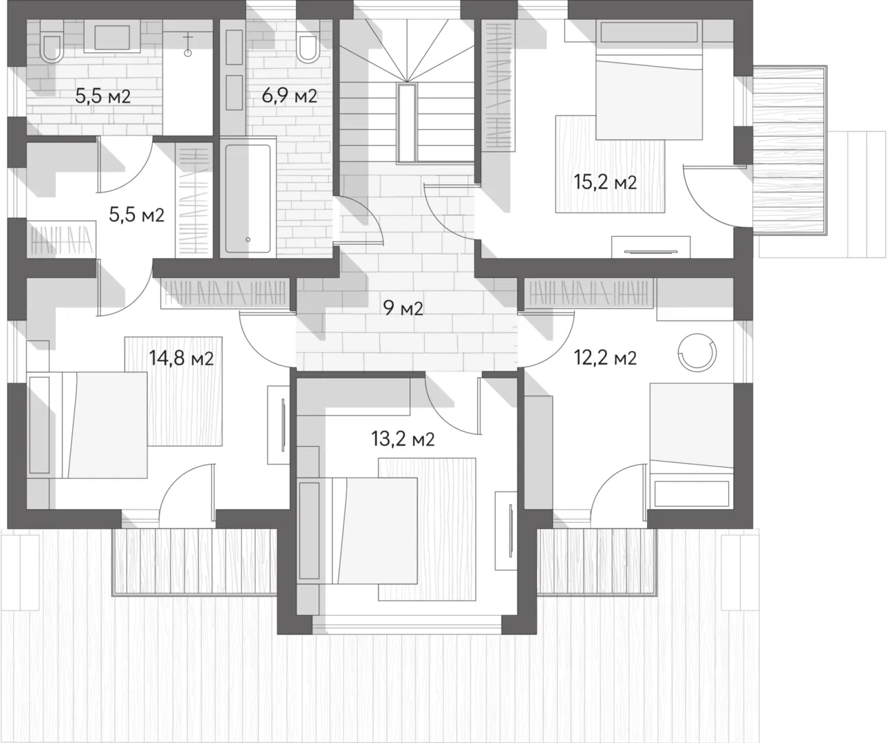
Площадь дома 165 м2
Санузлы 3
Спальни 5

Описание

Приглашаем вас открыть дверь в уютный уголок природы — загородный дом из газобетона «M», где каждая деталь продумана под комфорт и спокойствие. Два надземных этажа излучают классический шарм, а классический фасад сочетает элегантность с практичностью: легкие газобетонные блоки создают тёплую и звукоизолированную среду, а двускатная крыша придаёт дому величественность и защиту от погодных условий. Просторный балкон, открывающий вид на широту полей и леса, станет вашим личным окутанным уголком, где можно наслаждаться рассветом и закатом без суеты городского шума. Внутри дом пропитан светом и теплом. Каждый уголок – от гостиной до кухни – разрабатывался с учётом ваших потребностей: уютные стены, открытые пространства для семейных посиделок и спокойствующих вечеров. Кольцевое отопление и современные климатические решения позволяют круглогодично чувствовать себя комфортно, не тревожась погодой. Газобетонный материал отвечает высоким стандартам энергоэффективности, а отсутствие пристроенного гаража и чердачных помещений придаёт дому открытость и простоту, а также экономию времени и ресурсов. Этот дом — это реальность мечты о тихой, но живой жизни в окружении природы. Он приглашает вас отдать часть городской суеты, чтобы обнять простоту, спокойствие и аутентичную красоту классического образа жизни. Это место, где каждый день начинает свой собственный ритм, даря вам душевный уют и ощущение, что вернулись домой.

Характеристики дома

Архитектурный стиль
Автоматизированное регулирование параметров теплоносителя
-
Балконы/лоджии
1
Чердачное помещение
Нет
Датчики протечки воды
-
Эксплуатируемая или зеленая кровля
-
Электроснабжение
Центральное
Газоснабжение
Центральное
Изоляция воздушного шума
-
Камин
Нет
Класс энергоэффективности
-
Класс энергосбережения
-
Количество надземных этажей
2
Круглогодичное проживание
Да
Материал кровли
Фальцевая кровля кровля из оцинкованных стальных листов
Материал перекрытий
Монолитные железобетонные по металлическим балкам
Материал внешних стен
Материал внутренних перегородок
Гипсокартонные
Модульное строительство с конструкциями заводского изготовления
Нет
Объем надземной части
-
Основной материал фасадов
Дерево
Отопление
Центральное
Площадь дома
165 м2
Площадь застройки
243 м2
Подвальное помещение
Нет
Показатель компактности здания
-
Приборы учета тепловой энергии
-
Пристроенный гараж/крытая автостоянка
Нет
Противопожарная система
Да
Санузлы
3
Совмещенная кухня-гостиная
Да
Спальни
5
Терраса
Нет
Тип фундамента
Плитный
Тип кровли
Толщина внешних стен
350 мм
Толщина внутренних перегородок
300 мм
Улучшенные шумовые характеристики
-
Вентиляция
Принудительная
Веранда
Нет
Водоотведение
Центральное
Водоснабжение
Центральное
Высота дома
8.66 м
Высота потолков
3 м

Планировка

Фасад дома

Александр

Закажите выезд инженера

Александр

Выездной инженер
Закажите выезд инженера для точной диагностики и профессиональной консультации по инженерным системам. Специалист приедет в удобное время, проведёт осмотр, рассчитает стоимость работ и подберёт оптимальные решения для вашего дома.


    Похожие проекты

    Ипотека и
    рассрочка
    AR-102
    Стоимость от:
    7 665 240
    Проект от: 45 900
    Этажей 1
    Санузлы 2
    Спальни 3
    Смотреть
    Ипотека и
    рассрочка
    Проект Двухэтажный дом с навесом БРАИТ-32Г
    Стоимость от:
    10 916 640
    Проект от: 65 700
    Этажей 2
    Санузлы 2
    Спальни 4
    Смотреть
    Ипотека и
    рассрочка
    Одноэтажный дом Смарт 9х9
    Стоимость от:
    5 256 240
    Проект от: 32 400
    Этажей 1
    Санузлы 1
    Спальни 2
    Смотреть
    Ипотека и
    рассрочка
    Проект 2024-1
    Стоимость от:
    5 565 120
    Проект от: 43 200
    Этажей 1
    Санузлы 1
    Спальни 3
    Смотреть
    Ипотека и
    рассрочка
    Проект Шале
    Стоимость от:
    7 324 240
    Проект от: 41 400
    Этажей 1
    Санузлы 1
    Спальни 3
    Смотреть
    Ипотека и
    рассрочка
    Жилой дом DC 77
    Стоимость от:
    5 815 260
    Проект от: 32 850
    Этажей 1
    Санузлы 1
    Спальни 2
    Смотреть

    Как узнать стоимость дома

    back
    Оставляете заявку
    Вы заполняете форму на сайте или звоните нам. Менеджер Лайвкрафт связывается с вами для уточнения деталей: тип дома, площадь, материалы, участок строительства.
    back
    Консультация и подбор решения
    Наш специалист помогает выбрать оптимальный тип дома и конструкцию с учётом бюджета, сроков и целей — будь то дом для постоянного проживания или дача.
    back
    Расчёт предварительной стоимости
    Инженер делает первичный расчёт стоимости строительства по вашим параметрам: фундамент, коробка, кровля, отделка. Вы получаете смету с разбивкой по этапам.
    back
    Корректировка и утверждение сметы
    При необходимости вносим изменения — например, замену материалов или сокращение этапов. После согласования формируется окончательная фиксированная смета.
    back
    Заключение договора и старт работ
    После утверждения сметы заключаем официальный договор с гарантией. Вы получаете прозрачный график и точную стоимость — без скрытых расходов.

    Заказать конусльтацию по:Загородный дом из газобетона «M»

    Фото 1 Загородный дом из газобетона «M»


      Наши
      контакты

      Дмитров
      Опорный проезд 28Б
      (индустриальный парк Ниагара)
      9:00 до 18:00

      Корзина