4.9
Рейтинг на основании 120 отзывов
Дмитров
Опорный проезд 28Б
(индустриальный парк Ниагара)
Бренд "Дмитров-Дело" c 2008 года на рынке строительства в Дмитрове
Звоните 9:00 до 18:00 8 (915) 055-33-61
Бренд "Дмитров-Дело" c 2008 года на рынке строительства в Дмитрове

Загородный дом из полистиролбетона серии MODERN 61

Стоимость проекта от:
25 650 ₽
БЕСПЛАТНО! ПРИ ЗАКАЗЕ СТРОИТЕЛЬСТВА
Стоимость строительства от:
3 899 940 ₽
Артикул ART-4764
Дата 26.12.2025
Архитектурный стиль Минимализм
Количество надземных этажей 1
Круглогодичное проживание Да
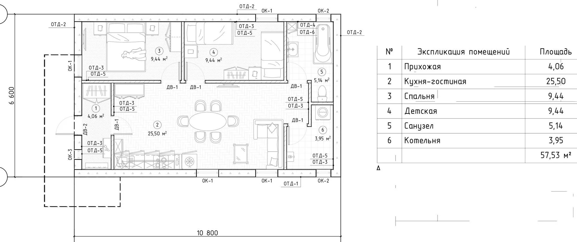
Площадь дома 57 м2
Санузлы 1
Спальни 2

Описание

Погрузитесь в атмосферу спокойствия и простоты, которую дарит наш загородный дом серии **MODERN 61**. Изогнутые линии и лаконичные формы отражают дух минимализма, приумножая ощущение уюта и современности. Полистиролбетонные стены, укрепленные по всем стандартам, обеспечивают тепло и звуконепроницаемость, а плоская крыша открывает просторные, светлые холлы и просторные спальни, где каждый обитатель найдёт свой уголок для отдыха. Несмотря на отсутствие балконов, веранд и гаражей, дом сохраняет функциональность благодаря продуманной планировке: просторный кухонный уголок, где кулинарные шедевры оживают на светлой столешнице, смежный с открытой гостиной, создающей ощущение единого пространства. Внутреннее освещение и большие окна наполняют комнаты естественным светом, а простая конфигурация позволяет легко адаптировать жильё под любые потребности: будь то домашний офис, детская комната или место для творческих занятий. Жизнь в таком доме – это не просто быт. Это возможность проводить вечера в тишине и уединении, наслаждаясь видом на зеленую застройку, а также экономить затраты на отопление и энергообеспечение благодаря современной теплоизоляции из полистиролбетона. Выберите **MODERN 61** и откройте для себя новый уровень простоты и комфортного житья в гармонии с природой.

Характеристики дома

Архитектурный стиль
Автоматизированное регулирование параметров теплоносителя
Нет
Балконы/лоджии
Отсутствуют
Чердачное помещение
Нет
Датчики протечки воды
Нет
Эксплуатируемая или зеленая кровля
Да
Электроснабжение
Индивидуальное
Газоснабжение
Индивидуальное
Изоляция воздушного шума
Нет
Камин
Нет
Класс энергоэффективности
-
Класс энергосбережения
A
Количество надземных этажей
1
Круглогодичное проживание
Да
Материал кровли
Битумная мастика
Материал перекрытий
Иной вид материалов перекрытий
Материал внешних стен
Материал внутренних перегородок
Модульное строительство с конструкциями заводского изготовления
Нет
Объем надземной части
256 м3
Основной материал фасадов
Штукатурка
Отопление
Индивидуальное
Площадь дома
57 м2
Площадь застройки
71 м2
Подвальное помещение
Нет
Показатель компактности здания
-
Приборы учета тепловой энергии
Нет
Пристроенный гараж/крытая автостоянка
Нет
Противопожарная система
Нет
Санузлы
1
Совмещенная кухня-гостиная
Да
Спальни
2
Терраса
Нет
Тип фундамента
Плитный
Тип кровли
Толщина внешних стен
300 мм
Толщина внутренних перегородок
100 мм
Улучшенные шумовые характеристики
Да
Вентиляция
Естественная
Веранда
Нет
Водоотведение
Локальные очистные сооружения
Водоснабжение
Индивидуальное
Высота дома
3.6 м
Высота потолков
2.9 м

Планировка

Фасад дома

Александр

Закажите выезд инженера

Александр

Выездной инженер
Закажите выезд инженера для точной диагностики и профессиональной консультации по инженерным системам. Специалист приедет в удобное время, проведёт осмотр, рассчитает стоимость работ и подберёт оптимальные решения для вашего дома.


    Похожие проекты

    Ипотека и
    рассрочка
    Бавария 95
    Стоимость от:
    7 140 100
    Проект от: 42 750
    Этажей 1
    Санузлы 1
    Спальни 3
    Смотреть
    Ипотека и
    рассрочка
    COMFORT-003
    Стоимость от:
    7 721 340
    Проект от: 43 650
    Этажей 1
    Санузлы 1
    Спальни 3
    Смотреть
    Ипотека и
    рассрочка
    Моя Атмосфера
    Стоимость от:
    8 333 160
    Проект от: 53 100
    Этажей 1
    Санузлы 2
    Спальни 3
    Смотреть
    Ипотека и
    рассрочка
    Жилой дом «Уют1»
    Стоимость от:
    11 396 320
    Проект от: 68 400
    Этажей 3
    Санузлы 1
    Спальни 3
    Смотреть
    Ипотека и
    рассрочка
    Дом с мансардным этажом «Бернина 2.0»
    Стоимость от:
    5 977 680
    Проект от: 39 150
    Этажей 2
    Санузлы 2
    Спальни 4
    Смотреть
    Ипотека и
    рассрочка
    Двухэтажный жилой дом ЛЬЕЖ
    Стоимость от:
    9 198 480
    Проект от: 57 150
    Этажей 2
    Санузлы 1
    Спальни 2
    Смотреть

    Как узнать стоимость дома

    back
    Оставляете заявку
    Вы заполняете форму на сайте или звоните нам. Менеджер Лайвкрафт связывается с вами для уточнения деталей: тип дома, площадь, материалы, участок строительства.
    back
    Консультация и подбор решения
    Наш специалист помогает выбрать оптимальный тип дома и конструкцию с учётом бюджета, сроков и целей — будь то дом для постоянного проживания или дача.
    back
    Расчёт предварительной стоимости
    Инженер делает первичный расчёт стоимости строительства по вашим параметрам: фундамент, коробка, кровля, отделка. Вы получаете смету с разбивкой по этапам.
    back
    Корректировка и утверждение сметы
    При необходимости вносим изменения — например, замену материалов или сокращение этапов. После согласования формируется окончательная фиксированная смета.
    back
    Заключение договора и старт работ
    После утверждения сметы заключаем официальный договор с гарантией. Вы получаете прозрачный график и точную стоимость — без скрытых расходов.

    Заказать конусльтацию по:Загородный дом из полистиролбетона серии MODERN 61

    Фото 1 Загородный дом из полистиролбетона серии MODERN 61


      Наши
      контакты

      Дмитров
      Опорный проезд 28Б
      (индустриальный парк Ниагара)
      9:00 до 18:00

      Корзина