4.9
Рейтинг на основании 120 отзывов
Дмитров
Опорный проезд 28Б
(индустриальный парк Ниагара)
Бренд "Дмитров-Дело" c 2008 года на рынке строительства в Дмитрове
Звоните 9:00 до 18:00 8 (915) 055-33-61
Бренд "Дмитров-Дело" c 2008 года на рынке строительства в Дмитрове

Загородный дом ХАУС110

Стоимость проекта от:
55 350 ₽
Стоимость строительства от:
8 415 660 ₽
Артикул ART-6462
Дата 26.12.2025
Архитектурный стиль Минимализм
Количество надземных этажей 1
Круглогодичное проживание Да
Площадь дома 123 м2
Санузлы 2
Спальни 3

Описание

Дом ХАУС110 – это воплощение спокойного, гармоничного обитания в стиле минимализма, где каждая деталь создаёт ощущение простоты и уюта. На одном уютном надземном этаже располагается просторное жилое пространство, полностью пригодное для круглогодичного проживания: тепло, свет и комфорт в любое время года. Экономичная конструкция из газобетонных блоков гарантирует надёжную теплоизоляцию и лёгкость обслуживания, а чётрёхскатная, вальмовая крыша добавляет дому элегантного силуэта и защищает от непогоды. В интерьере выделяется открытая веранда и просторная терраса, которые расширяют жилую площадь и создают идеальное место для отдыха и семейных посиделок. Чердачное помещение, выполненное в лаконичном стиле, можно легко превратить в дополнительную спальню, домашний офис или уютное хобби‑уголок, при этом сохраняя общую чистую эстетику дома. Несмотря на отсутствие прилагаемого гаража, в придомовой территории достаточно места для безопасной и удобной автостоянки. Дом ХАУС110 – ваш личный уголок без лишних шумов и суеты, где минимализм соединяется с практичностью, а естественная теплоизоляция и открытые площадки дарят ощущение свободного и приятного дома. Это идеальное решение для тех, кто ценит дизайн, экономию и желание жить в гармонии с природой.

Характеристики дома

Архитектурный стиль
Минимализм
Автоматизированное регулирование параметров теплоносителя
-
Балконы/лоджии
Отсутствуют
Чердачное помещение
Да
Датчики протечки воды
-
Эксплуатируемая или зеленая кровля
-
Электроснабжение
2 варианта
Газоснабжение
Индивидуальное
Изоляция воздушного шума
-
Камин
Нет
Класс энергоэффективности
-
Класс энергосбережения
-
Количество надземных этажей
1
Круглогодичное проживание
Да
Материал кровли
Битумная черепица
Материал перекрытий
Деревянные
Материал внешних стен
Газобетонные блоки
Материал внутренних перегородок
Пенобетонные
Модульное строительство с конструкциями заводского изготовления
Нет
Объем надземной части
825 м3
Основной материал фасадов
Облицовочный кирпич
Отопление
Индивидуальное
Площадь дома
123 м2
Площадь застройки
167 м2
Подвальное помещение
Нет
Показатель компактности здания
-
Приборы учета тепловой энергии
-
Пристроенный гараж/крытая автостоянка
Нет
Противопожарная система
Нет
Санузлы
2
Совмещенная кухня-гостиная
Да
Спальни
3
Терраса
Да
Тип фундамента
Плитный
Тип кровли
Четырехскатная (вальмовая)
Толщина внешних стен
400 мм
Толщина внутренних перегородок
100 мм
Улучшенные шумовые характеристики
-
Вентиляция
2 варианта
Веранда
Да
Водоотведение
Локальные очистные сооружения
Водоснабжение
Индивидуальное
Высота дома
6 м
Высота потолков
3 м

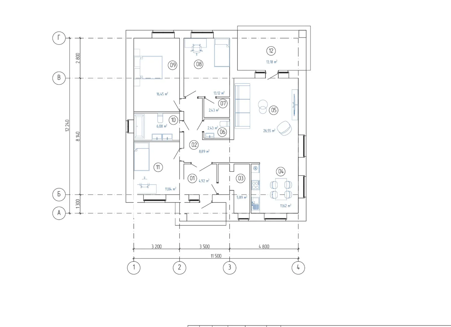
Планировка

Фасад дома

Александр

Закажите выезд инженера

Александр

Выездной инженер
Закажите выезд инженера для точной диагностики и профессиональной консультации по инженерным системам. Специалист приедет в удобное время, проведёт осмотр, рассчитает стоимость работ и подберёт оптимальные решения для вашего дома.


    Похожие проекты

    Ипотека и
    рассрочка
    Брусовой дом ТА-94
    Стоимость от:
    6 922 560
    Проект от: 42 300
    Этажей 2
    Санузлы 1
    Спальни 1
    Смотреть
    Ипотека и
    рассрочка
    Суксун-59
    Стоимость от:
    8 374 080
    Проект от: 54 900
    Этажей 2
    Санузлы 2
    Спальни 4
    Смотреть
    Ипотека и
    рассрочка
    «Евладенко»
    Стоимость от:
    8 625 600
    Проект от: 60 750
    Этажей 2
    Санузлы 3
    Спальни 4
    Смотреть
    Ипотека и
    рассрочка
    ЭКОДОМ
    Стоимость от:
    4 814 480
    Проект от: 28 800
    Этажей 1
    Санузлы 1
    Спальни 2
    Смотреть
    Ипотека и
    рассрочка
    Одноэтажный дом СР-100
    Стоимость от:
    6 847 720
    Проект от: 38 700
    Этажей 1
    Санузлы 2
    Спальни 3
    Смотреть
    Ипотека и
    рассрочка
    Одноэтажный дом В-205
    Стоимость от:
    8 689 340
    Проект от: 57 150
    Этажей 1
    Санузлы 2
    Спальни 3
    Смотреть

    Как узнать стоимость дома

    back
    Оставляете заявку
    Вы заполняете форму на сайте или звоните нам. Менеджер Лайвкрафт связывается с вами для уточнения деталей: тип дома, площадь, материалы, участок строительства.
    back
    Консультация и подбор решения
    Наш специалист помогает выбрать оптимальный тип дома и конструкцию с учётом бюджета, сроков и целей — будь то дом для постоянного проживания или дача.
    back
    Расчёт предварительной стоимости
    Инженер делает первичный расчёт стоимости строительства по вашим параметрам: фундамент, коробка, кровля, отделка. Вы получаете смету с разбивкой по этапам.
    back
    Корректировка и утверждение сметы
    При необходимости вносим изменения — например, замену материалов или сокращение этапов. После согласования формируется окончательная фиксированная смета.
    back
    Заключение договора и старт работ
    После утверждения сметы заключаем официальный договор с гарантией. Вы получаете прозрачный график и точную стоимость — без скрытых расходов.

    Заказать конусльтацию по:Загородный дом ХАУС110

    Фото 1 Загородный дом ХАУС110


      Наши
      контакты

      Дмитров
      Опорный проезд 28Б
      (индустриальный парк Ниагара)
      9:00 до 18:00

      Корзина