4.9
Рейтинг на основании 120 отзывов
Дмитров
Опорный проезд 28Б
(индустриальный парк Ниагара)
Бренд "Дмитров-Дело" c 2008 года на рынке строительства в Дмитрове
Звоните 9:00 до 18:00 8 (915) 055-33-61
Бренд "Дмитров-Дело" c 2008 года на рынке строительства в Дмитрове

Загородный дом «Кит»

Стоимость проекта от:
26 550 ₽
Стоимость строительства от:
4 166 580 ₽
Артикул ART-12712
Дата 25.12.2025
Архитектурный стиль Классический
Количество надземных этажей 1
Круглогодичное проживание Да
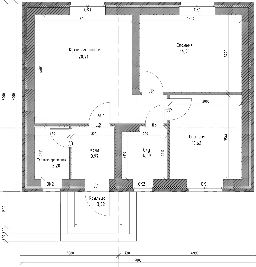
Площадь дома 59 м2
Санузлы 1
Спальни 2

Описание

Дом «Кит» – это шедевр классической архитектуры, созданный для тех, кто ценит уединение и комфорт в сердце природы. Одна этация, рассчитанная на круглогодичную жизнь, дарит ощущение простоты и тепла, где каждый уголок наполнен мягким светом и уютной атмосферой. Величественная, но лаконичная фасады, выполненные из керамзитобетонных блоков, сохраняют тепло и одновременно выглядят стильно и современно, а двускатная крыша придает дому внушительный силуэт и защищает от непогоды. «Кит» – это пространство, где нет лишних отделок, таких как балконы или веранда, а именно наоборот: здесь вы сможете полностью погрузиться в гармонию с природой, наслаждаясь спокойным окружением. Отсутствие прицепного гаража и чердачного помещения не мешают чувствовать простор: каждый комнатный уголок обустроен рационально, чтобы предлагать максимум функциональности и эстетики. Внутреннее пространство аккуратно распределено, а материалы, применённые в строительстве, гарантируют долгий срок службы и надёжность конструкции. Это дом, где можно построить свою маленькую вселенную, обрамлённую классикой и комфортом.

Характеристики дома

Архитектурный стиль
Классический
Автоматизированное регулирование параметров теплоносителя
Нет
Балконы/лоджии
Отсутствуют
Чердачное помещение
Нет
Датчики протечки воды
Нет
Эксплуатируемая или зеленая кровля
Нет
Электроснабжение
Центральное
Газоснабжение
Не предусмотрено
Изоляция воздушного шума
Да
Камин
Нет
Класс энергоэффективности
-
Класс энергосбережения
-
Количество надземных этажей
1
Круглогодичное проживание
Да
Материал кровли
Металлочерепица
Материал перекрытий
Деревянные
Материал внешних стен
Керамзитобетонные блоки
Материал внутренних перегородок
Блочные
Модульное строительство с конструкциями заводского изготовления
Нет
Объем надземной части
105 м3
Основной материал фасадов
Облицовочный кирпич
Отопление
Индивидуальное
Площадь дома
59 м2
Площадь застройки
78 м2
Подвальное помещение
Нет
Показатель компактности здания
-
Приборы учета тепловой энергии
Нет
Пристроенный гараж/крытая автостоянка
Нет
Противопожарная система
Нет
Санузлы
1
Совмещенная кухня-гостиная
Да
Спальни
2
Терраса
Нет
Тип фундамента
Плитный
Тип кровли
Двускатная
Толщина внешних стен
300 мм
Толщина внутренних перегородок
100 мм
Улучшенные шумовые характеристики
Да
Вентиляция
Принудительная
Веранда
Нет
Водоотведение
Локальные очистные сооружения
Водоснабжение
Индивидуальное
Высота дома
5.6 м
Высота потолков
3 м

Планировка

Фасад дома

Александр

Закажите выезд инженера

Александр

Выездной инженер
Закажите выезд инженера для точной диагностики и профессиональной консультации по инженерным системам. Специалист приедет в удобное время, проведёт осмотр, рассчитает стоимость работ и подберёт оптимальные решения для вашего дома.


    Похожие проекты

    Ипотека и
    рассрочка
    Одноэтажный дом ХАУС90
    Стоимость от:
    6 567 000
    Проект от: 40 500
    Этажей 1
    Санузлы 1
    Спальни 3
    Смотреть
    Ипотека и
    рассрочка
    Двухэтажный Дом А-019
    Стоимость от:
    5 215 680
    Проект от: 32 400
    Этажей 2
    Санузлы 2
    Спальни 2
    Смотреть
    Ипотека и
    рассрочка
    Каркасный жилой дом «СУМАТРА»
    Стоимость от:
    9 929 160
    Проект от: 76 050
    Этажей 2
    Санузлы 2
    Спальни 3
    Смотреть
    Ипотека и
    рассрочка
    Индивидуальный жилой дом 124 м2
    Стоимость от:
    9 865 680
    Проект от: 55 800
    Этажей 1
    Санузлы 1
    Спальни 3
    Смотреть
    Ипотека и
    рассрочка
    Петергоф
    Стоимость от:
    19 524 300
    Проект от: 135 900
    Этажей 2
    Санузлы 3
    Спальни 6
    Смотреть
    Ипотека и
    рассрочка
    УЮТ-120
    Стоимость от:
    8 683 200
    Проект от: 54 000
    Этажей 2
    Санузлы 2
    Спальни 4
    Смотреть

    Как узнать стоимость дома

    back
    Оставляете заявку
    Вы заполняете форму на сайте или звоните нам. Менеджер Лайвкрафт связывается с вами для уточнения деталей: тип дома, площадь, материалы, участок строительства.
    back
    Консультация и подбор решения
    Наш специалист помогает выбрать оптимальный тип дома и конструкцию с учётом бюджета, сроков и целей — будь то дом для постоянного проживания или дача.
    back
    Расчёт предварительной стоимости
    Инженер делает первичный расчёт стоимости строительства по вашим параметрам: фундамент, коробка, кровля, отделка. Вы получаете смету с разбивкой по этапам.
    back
    Корректировка и утверждение сметы
    При необходимости вносим изменения — например, замену материалов или сокращение этапов. После согласования формируется окончательная фиксированная смета.
    back
    Заключение договора и старт работ
    После утверждения сметы заключаем официальный договор с гарантией. Вы получаете прозрачный график и точную стоимость — без скрытых расходов.

    Заказать конусльтацию по:Загородный дом «Кит»

    Фото 1 Загородный дом «Кит»


      Наши
      контакты

      Дмитров
      Опорный проезд 28Б
      (индустриальный парк Ниагара)
      9:00 до 18:00