4.9
Рейтинг на основании 120 отзывов
Дмитров
Опорный проезд 28Б
(индустриальный парк Ниагара)
Бренд "Дмитров-Дело" c 2008 года на рынке строительства в Дмитрове
Звоните 9:00 до 18:00 8 (915) 055-33-61
Бренд "Дмитров-Дело" c 2008 года на рынке строительства в Дмитрове

Загородный дом «Комфорт+»

Стоимость проекта от:
45 900 ₽
БЕСПЛАТНО! ПРИ ЗАКАЗЕ СТРОИТЕЛЬСТВА
Стоимость строительства от:
7 203 240 ₽
Артикул ART-15679
Дата 25.12.2025
Архитектурный стиль Классический
Количество надземных этажей 1
Круглогодичное проживание Да
Площадь дома 102 м2
Санузлы 1
Спальни 3

Описание

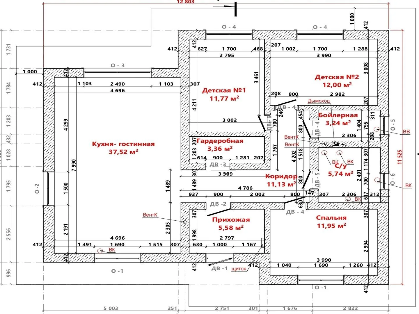
Добро пожаловать в уютный загородный дом *«Комфорт+»* – идеальное сочетание классической эстетики и практичности, созданное, чтобы стать вашим личным оазисом в сердце природы. Одна открытая планировка, выполненная из дышащего газобетонного стекла, дарит ощущение лёгкости и тепла на протяжении всего года. Вальмовая, четырехскатная крыша нежно обрамляет просторные зоны и защищает от непогоды, в то время как терраса приглашает открыть окно в мир, где можно наслаждаться утренним кофе или вечерним закатом. Весь дом пропитан светом, благодаря широким окнам и продуманному освещению, создавая атмосферу уюта и благополучия. Дом «Комфорт+» спроектирован так, чтобы полностью удовлетворить потребности современного стиля жизни. Классический архитектурный стиль подчёркивает элегантность и непритязательность, а отсутствие балконов и веранд позволяет сосредоточиться на гармоничной, открытой планировке. Внутри пространство удобно разделено, а просторное жилое коридорное пространство обеспечивает комфортное движение по дому. Хотя прицепного гаража нет, предусмотрена крытая автостоянка, а свободные участки вокруг дома дают возможность при необходимости установить парковку или заправить автозапчасти. Этот дом идеален для тех, кто ценит простоту, безопасность и возможность наслаждаться природой без лишних изысков.
Сделайте шаг к своему новому дому – «Комфорт+» ждёт вас, чтобы стать вашим безопасным убежищем, где каждый день открывает дверь к новому началу.

Характеристики дома

Архитектурный стиль
Автоматизированное регулирование параметров теплоносителя
Да
Балконы/лоджии
Отсутствуют
Чердачное помещение
Нет
Датчики протечки воды
Нет
Эксплуатируемая или зеленая кровля
Нет
Электроснабжение
Центральное
Газоснабжение
Не предусмотрено
Изоляция воздушного шума
Да
Камин
Нет
Класс энергоэффективности
A+
Класс энергосбережения
A+
Количество надземных этажей
1
Круглогодичное проживание
Да
Материал кровли
Металлочерепица
Материал перекрытий
Деревянные
Материал внешних стен
Материал внутренних перегородок
Блочные
Модульное строительство с конструкциями заводского изготовления
Нет
Объем надземной части
102 м3
Основной материал фасадов
Штукатурка
Отопление
Индивидуальное
Площадь дома
102 м2
Площадь застройки
136 м2
Подвальное помещение
Нет
Показатель компактности здания
-
Приборы учета тепловой энергии
Нет
Пристроенный гараж/крытая автостоянка
Нет
Противопожарная система
Да
Санузлы
1
Совмещенная кухня-гостиная
Да
Спальни
3
Терраса
Да
Тип фундамента
Плитный
Толщина внешних стен
500 мм
Толщина внутренних перегородок
200 мм
Улучшенные шумовые характеристики
Нет
Вентиляция
Система кондиционирования
Веранда
Нет
Водоотведение
Локальные очистные сооружения
Водоснабжение
Центральное
Высота дома
5.16 м
Высота потолков
2.9 м

Планировка

Фасад дома

Александр

Закажите выезд инженера

Александр

Выездной инженер
Закажите выезд инженера для точной диагностики и профессиональной консультации по инженерным системам. Специалист приедет в удобное время, проведёт осмотр, рассчитает стоимость работ и подберёт оптимальные решения для вашего дома.


    Похожие проекты

    Ипотека и
    рассрочка
    Одноэтажный коттедж КС 041
    Стоимость от:
    9 771 080
    Проект от: 60 300
    Этажей 1
    Санузлы 2
    Спальни 3
    Смотреть
    Ипотека и
    рассрочка
    Загородный каркасный дом для большой семьи 8,4х8,9 — 126 м²
    Стоимость от:
    7 552 440
    Проект от: 56 700
    Этажей 2
    Санузлы 2
    Спальни 3
    Смотреть
    Ипотека и
    рассрочка
    Двухэтажный дом Мендоса
    Стоимость от:
    11 451 120
    Проект от: 68 850
    Этажей 2
    Санузлы 2
    Спальни 4
    Смотреть
    Ипотека и
    рассрочка
    Дом «Престон 215» в стиле барнхаус
    Стоимость от:
    12 428 075
    Проект от: 96 750
    Этажей 1
    Санузлы 2
    Спальни 4
    Смотреть
    Ипотека и
    рассрочка
    Мансардный дома Ю-180
    Стоимость от:
    12 571 200
    Проект от: 81 000
    Этажей 2
    Санузлы 2
    Спальни 4
    Смотреть
    Ипотека и
    рассрочка
    Загородный дом ГОГЕН — 125
    Стоимость от:
    8 484 080
    Проект от: 55 800
    Этажей 1
    Санузлы 2
    Спальни 3
    Смотреть

    Как узнать стоимость дома

    back
    Оставляете заявку
    Вы заполняете форму на сайте или звоните нам. Менеджер Лайвкрафт связывается с вами для уточнения деталей: тип дома, площадь, материалы, участок строительства.
    back
    Консультация и подбор решения
    Наш специалист помогает выбрать оптимальный тип дома и конструкцию с учётом бюджета, сроков и целей — будь то дом для постоянного проживания или дача.
    back
    Расчёт предварительной стоимости
    Инженер делает первичный расчёт стоимости строительства по вашим параметрам: фундамент, коробка, кровля, отделка. Вы получаете смету с разбивкой по этапам.
    back
    Корректировка и утверждение сметы
    При необходимости вносим изменения — например, замену материалов или сокращение этапов. После согласования формируется окончательная фиксированная смета.
    back
    Заключение договора и старт работ
    После утверждения сметы заключаем официальный договор с гарантией. Вы получаете прозрачный график и точную стоимость — без скрытых расходов.

    Заказать конусльтацию по:Загородный дом «Комфорт+»

    Фото 1 Загородный дом «Комфорт+»


      Наши
      контакты

      Дмитров
      Опорный проезд 28Б
      (индустриальный парк Ниагара)
      9:00 до 18:00

      Корзина