4.9
Рейтинг на основании 120 отзывов
Дмитров
Опорный проезд 28Б
(индустриальный парк Ниагара)
Бренд "Дмитров-Дело" c 2008 года на рынке строительства в Дмитрове
Звоните 9:00 до 18:00 8 (915) 055-33-61
Бренд "Дмитров-Дело" c 2008 года на рынке строительства в Дмитрове

Загородный дом «Кристел»

Стоимость проекта от:
72 450 ₽
БЕСПЛАТНО! ПРИ ЗАКАЗЕ СТРОИТЕЛЬСТВА
Стоимость строительства от:
8 978 970 ₽
Артикул ART-16856
Дата 26.12.2025
Архитектурный стиль Барнхаус
Количество надземных этажей 1
Круглогодичное проживание Да
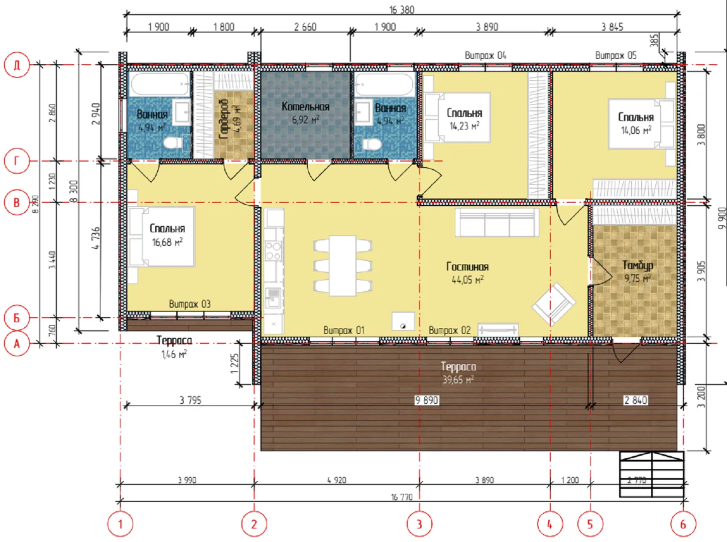
Площадь дома 161 м2
Санузлы 2
Спальни 3

Описание

Загородный дом «Кристел» — это гармоничное сочетание уютного камрадского деревенского шарма и современного комфорта. На открытых просторах, где слышен только шёпот ветра и пение птиц, этот одиннадцатилетний, но живой дом дарит спокойствие и атмосферу уюта. Архитектурный стиль барнхауса подчёркивает его природную простоту: широкие надстройки, массивные деревянные балки и обилие естественного света создают ощущение гармонии с природой. Собственники оценят отсутствие лишних элементов – никаких балконов, веранд, гаража и чердака. Это позволяет сконцентрировать внимание на главном – качественной строительной задаче и открытой террасе, где можно отдыхать, жарить шашлыки или просто наблюдать за закатом. Деревянный каркас и двускатная кровля не только прекрасно выглядят, но и обеспечивают теплоизоляцию, позволяя проживать здесь круглый год, наслаждаясь всеми преимуществами зимних и летних сезонов. Дом «Кристел» сочетает в себе эстетику прошлого и практичность настоящего. Он — убежище от городской суеты, где каждый день начинается с ароматов свежей природы, а каждый вечер завершается золотой световой гаммой заката над спокойным полями. Выбирая этот загородный дом, вы выбираете гармонию, простоту и настоящий комфорт.

Характеристики дома

Архитектурный стиль
Автоматизированное регулирование параметров теплоносителя
Да
Балконы/лоджии
Отсутствуют
Чердачное помещение
Нет
Датчики протечки воды
Да
Эксплуатируемая или зеленая кровля
Нет
Электроснабжение
Центральное
Газоснабжение
Центральное
Изоляция воздушного шума
Да
Камин
Да
Класс энергоэффективности
-
Класс энергосбережения
-
Количество надземных этажей
1
Круглогодичное проживание
Да
Материал кровли
Фальцевая кровля Кликфальц
Материал перекрытий
Деревянные
Материал внешних стен
Материал внутренних перегородок
Деревянные
Модульное строительство с конструкциями заводского изготовления
Нет
Объем надземной части
447 м3
Основной материал фасадов
Дерево
Отопление
Индивидуальное
Площадь дома
161 м2
Площадь застройки
175 м2
Подвальное помещение
Нет
Показатель компактности здания
-
Приборы учета тепловой энергии
Да
Пристроенный гараж/крытая автостоянка
Нет
Противопожарная система
Да
Санузлы
2
Совмещенная кухня-гостиная
Да
Спальни
3
Терраса
Да
Тип фундамента
Свайный
Тип кровли
Толщина внешних стен
200 мм
Толщина внутренних перегородок
100 мм
Улучшенные шумовые характеристики
Да
Вентиляция
2 варианта
Веранда
Нет
Водоотведение
Локальные очистные сооружения
Водоснабжение
2 варианта
Высота дома
5 м
Высота потолков
4 м

Планировка

Фасад дома

Александр

Закажите выезд инженера

Александр

Выездной инженер
Закажите выезд инженера для точной диагностики и профессиональной консультации по инженерным системам. Специалист приедет в удобное время, проведёт осмотр, рассчитает стоимость работ и подберёт оптимальные решения для вашего дома.


    Похожие проекты

    Ипотека и
    рассрочка
    Проект каркасного дома Лестер
    Стоимость от:
    4 392 795
    Проект от: 35 550
    Этажей 1
    Санузлы 1
    Спальни 2
    Смотреть
    Ипотека и
    рассрочка
    Двухэтажный каркасный дом «Миа-Вита»
    Стоимость от:
    9 755 280
    Проект от: 61 650
    Этажей 2
    Санузлы 1
    Спальни 2
    Смотреть
    Ипотека и
    рассрочка
    Загородный дом АС-259
    Стоимость от:
    8 211 000
    Проект от: 63 000
    Этажей 2
    Санузлы 2
    Спальни 3
    Смотреть
    Ипотека и
    рассрочка
    Двухэтажный дом с верхней террасой и большим гаражом S3-278 (Zx22)
    Стоимость от:
    28 807 680
    Проект от: 176 400
    Этажей 2
    Санузлы 5
    Спальни 5
    Смотреть
    Ипотека и
    рассрочка
    «Загородный дом Нептун»
    Стоимость от:
    13 173 050
    Проект от: 96 750
    Этажей 1
    Санузлы 2
    Спальни 4
    Смотреть
    Ипотека и
    рассрочка
    WOODY-9
    Стоимость от:
    4 167 680
    Проект от: 28 800
    Этажей 1
    Санузлы 1
    Спальни 2
    Смотреть

    Как узнать стоимость дома

    back
    Оставляете заявку
    Вы заполняете форму на сайте или звоните нам. Менеджер Лайвкрафт связывается с вами для уточнения деталей: тип дома, площадь, материалы, участок строительства.
    back
    Консультация и подбор решения
    Наш специалист помогает выбрать оптимальный тип дома и конструкцию с учётом бюджета, сроков и целей — будь то дом для постоянного проживания или дача.
    back
    Расчёт предварительной стоимости
    Инженер делает первичный расчёт стоимости строительства по вашим параметрам: фундамент, коробка, кровля, отделка. Вы получаете смету с разбивкой по этапам.
    back
    Корректировка и утверждение сметы
    При необходимости вносим изменения — например, замену материалов или сокращение этапов. После согласования формируется окончательная фиксированная смета.
    back
    Заключение договора и старт работ
    После утверждения сметы заключаем официальный договор с гарантией. Вы получаете прозрачный график и точную стоимость — без скрытых расходов.

    Заказать конусльтацию по:Загородный дом «Кристел»

    Фото 1 Загородный дом «Кристел»


      Наши
      контакты

      Дмитров
      Опорный проезд 28Б
      (индустриальный парк Ниагара)
      9:00 до 18:00

      Корзина