4.9
Рейтинг на основании 120 отзывов
Дмитров
Опорный проезд 28Б
(индустриальный парк Ниагара)
Бренд "Дмитров-Дело" c 2008 года на рынке строительства в Дмитрове
Звоните 9:00 до 18:00 8 (915) 055-33-61
Бренд "Дмитров-Дело" c 2008 года на рынке строительства в Дмитрове

Загородный дом «Лайт»

Стоимость проекта от:
55 800 ₽
БЕСПЛАТНО! ПРИ ЗАКАЗЕ СТРОИТЕЛЬСТВА
Стоимость строительства от:
8 756 880 ₽
Артикул ART-16360
Дата 26.12.2025
Архитектурный стиль Классический
Количество надземных этажей 1
Круглогодичное проживание Да
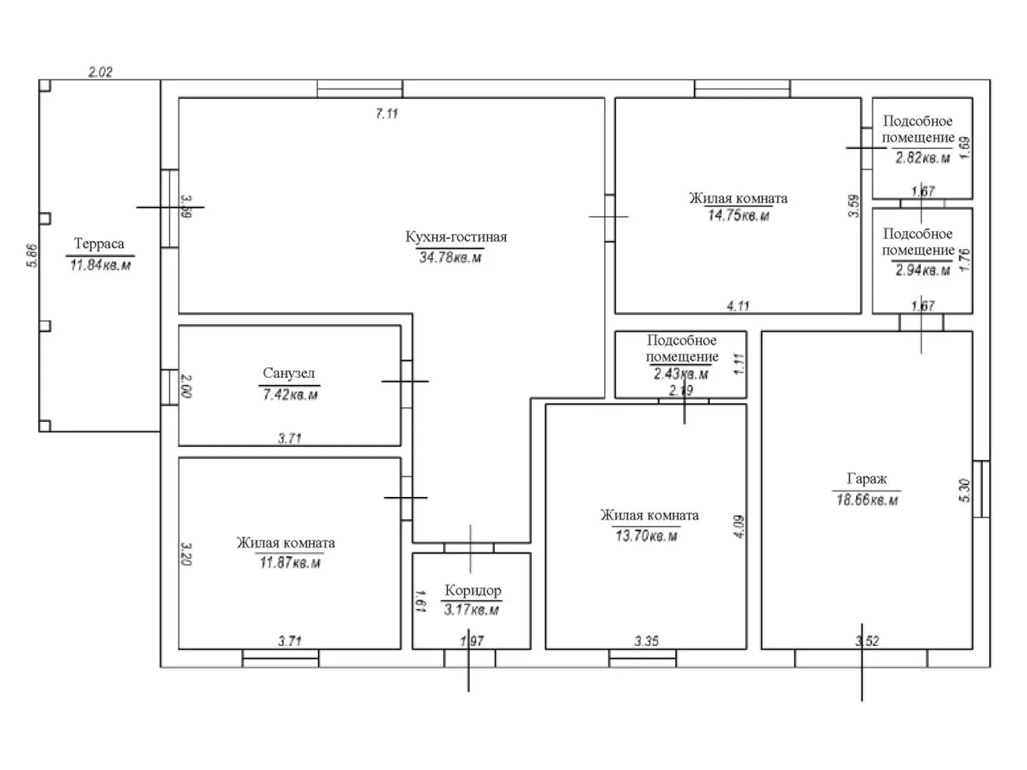
Площадь дома 124 м2
Санузлы 1
Спальни 3

Описание

Добро пожаловать в уютный уголок покоя – загородный дом «Лайт», где классика встречается с практичностью. Его элегантный фасад, выполненный из газобетонных блоков, не только эстетически привлекательный, но и обеспечивает тепло- и звукоизоляцию, позволяя жить здесь круглый год без лишних огорчений. Одноэтажная планировка делает дом удобным для всех возрастов, а просторные комнаты, оформленные в светлых тонах, наполняют пространство ощущением открытости и безмятежности. Дом оснащен всеми удобствами, которые ценятся в современных семейных условиях. Пристроенный гараж и крытая автостоянка гарантируют безопасность и комфорт для ваших автомобилей, а чердачное помещение открывает дополнительные возможности для хранения или самостоятельного развития вашего творчества. На террасе, где можно насладиться утренним кофе или вечерними огоньками, открывается панорамный вид на живописную окрестность, создавая идеальное место для отдыха и вдохновения. «Лайт» – это не просто жильё, а целый образ жизни. Четырёхскатная, вальмовая крыша, выполненная с соблюдением классических пропорций, не только добавляет дому аутентичности, но и защищает от непогоды, предоставляя вам спокойствие и безопасность. Позвоните сейчас, и мы организуем просмотр, чтобы вы ощутили всю красоту and уют этого дома лично. Это ваш шанс открыть новый этап в жизни, где каждый день начинается с вдохновения и заканчивается тёплой домашней атмосферой.

Характеристики дома

Архитектурный стиль
Автоматизированное регулирование параметров теплоносителя
Да
Балконы/лоджии
Отсутствуют
Чердачное помещение
Да
Датчики протечки воды
Да
Эксплуатируемая или зеленая кровля
Нет
Электроснабжение
Центральное
Газоснабжение
Центральное
Изоляция воздушного шума
Да
Камин
Нет
Класс энергоэффективности
A++
Класс энергосбережения
A++
Количество надземных этажей
1
Круглогодичное проживание
Да
Материал кровли
Металлочерепица
Материал перекрытий
Деревянные
Материал внешних стен
Материал внутренних перегородок
Блочные
Модульное строительство с конструкциями заводского изготовления
Нет
Объем надземной части
105 м3
Основной материал фасадов
Штукатурка
Отопление
Индивидуальное
Площадь дома
124 м2
Площадь застройки
140 м2
Подвальное помещение
Нет
Показатель компактности здания
0.69
Приборы учета тепловой энергии
Да
Пристроенный гараж/крытая автостоянка
Да
Противопожарная система
Да
Санузлы
1
Совмещенная кухня-гостиная
Да
Спальни
3
Терраса
Да
Тип фундамента
Плитный
Толщина внешних стен
400 мм
Толщина внутренних перегородок
300 мм
Улучшенные шумовые характеристики
Да
Вентиляция
Рекуперация
Веранда
Нет
Водоотведение
2 варианта
Водоснабжение
2 варианта
Высота дома
5.1 м
Высота потолков
2.7 м

Планировка

Фасад дома

Александр

Закажите выезд инженера

Александр

Выездной инженер
Закажите выезд инженера для точной диагностики и профессиональной консультации по инженерным системам. Специалист приедет в удобное время, проведёт осмотр, рассчитает стоимость работ и подберёт оптимальные решения для вашего дома.


    Похожие проекты

    Ипотека и
    рассрочка
    D 244 с террасой
    Стоимость от:
    7 965 320
    Проект от: 47 700
    Этажей 1
    Санузлы 2
    Спальни 4
    Смотреть
    Ипотека и
    рассрочка
    «Байройт-150»
    Стоимость от:
    10 476 000
    Проект от: 67 500
    Этажей 2
    Санузлы 2
    Спальни 4
    Смотреть
    Ипотека и
    рассрочка
    Одноэтажный кирпичный дом BUSINESS — 131 m2 Серый облицовочный кирпич
    Стоимость от:
    7 800 760
    Проект от: 44 100
    Этажей 1
    Санузлы 2
    Спальни 3
    Смотреть
    Ипотека и
    рассрочка
    Одноэтажный дом с верандой в стиле минимализм
    Стоимость от:
    14 983 980
    Проект от: 98 550
    Этажей 1
    Санузлы 3
    Спальни 3
    Смотреть
    Ипотека и
    рассрочка
    Зальцбург
    Стоимость от:
    8 894 600
    Проект от: 58 500
    Этажей 1
    Санузлы 2
    Спальни 3
    Смотреть
    Ипотека и
    рассрочка
    Авторский проект «Памир»
    Стоимость от:
    8 520 480
    Проект от: 54 900
    Этажей 2
    Санузлы 2
    Спальни 5
    Смотреть

    Как узнать стоимость дома

    back
    Оставляете заявку
    Вы заполняете форму на сайте или звоните нам. Менеджер Лайвкрафт связывается с вами для уточнения деталей: тип дома, площадь, материалы, участок строительства.
    back
    Консультация и подбор решения
    Наш специалист помогает выбрать оптимальный тип дома и конструкцию с учётом бюджета, сроков и целей — будь то дом для постоянного проживания или дача.
    back
    Расчёт предварительной стоимости
    Инженер делает первичный расчёт стоимости строительства по вашим параметрам: фундамент, коробка, кровля, отделка. Вы получаете смету с разбивкой по этапам.
    back
    Корректировка и утверждение сметы
    При необходимости вносим изменения — например, замену материалов или сокращение этапов. После согласования формируется окончательная фиксированная смета.
    back
    Заключение договора и старт работ
    После утверждения сметы заключаем официальный договор с гарантией. Вы получаете прозрачный график и точную стоимость — без скрытых расходов.

    Заказать конусльтацию по:Загородный дом «Лайт»

    Фото 1 Загородный дом «Лайт»


      Наши
      контакты

      Дмитров
      Опорный проезд 28Б
      (индустриальный парк Ниагара)
      9:00 до 18:00

      Корзина