4.9
Рейтинг на основании 120 отзывов
Дмитров
Опорный проезд 28Б
(индустриальный парк Ниагара)
Бренд "Дмитров-Дело" c 2008 года на рынке строительства в Дмитрове
Звоните 9:00 до 18:00 8 (915) 055-33-61
Бренд "Дмитров-Дело" c 2008 года на рынке строительства в Дмитрове

Загородный дом М-63

Стоимость проекта от:
43 650 ₽
Стоимость строительства от:
7 290 140 ₽
Артикул ART-14451
Дата 25.12.2025
Архитектурный стиль Классический
Количество надземных этажей 1
Круглогодичное проживание Да
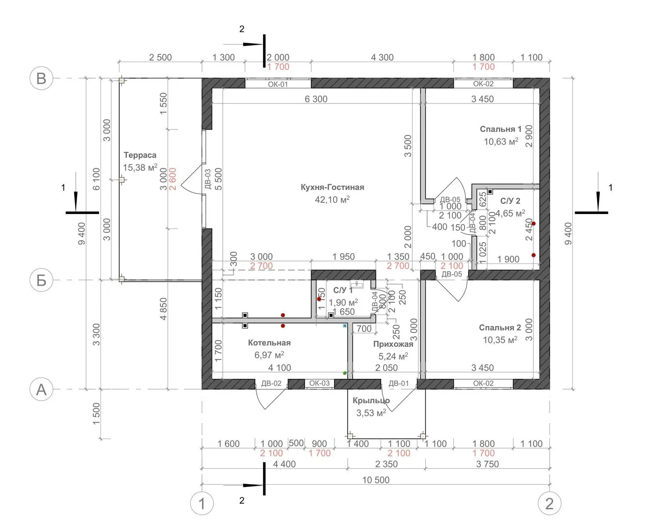
Площадь дома 97 м2
Санузлы 2
Спальни 2

Описание

Добро пожаловать в уголок русской роскоши, где каждая деталь создана для вашего уюта. Загородный дом М‑63 сочетает в себе строгую классическую элегантность и современный комфорт. Окружен живыми садами и тихими водоемами, он приглашает к спокойствиям, свободе от городской суеты, но при этом сохраняя доступность всех удобств. Внутри вас ждёт простор, наполненный светом: один надземный этаж удобно распределён по функциональным зонам, а четырёхскатная крыша с валмовой панелью защищает от любых погодных условий, гарантируя круглогодичное проживание. Стены, выполненные из газобетонных блоков, обеспечивают естественную тепло- и звукоизоляцию, а терракотовая терраса становится идеальным местом для летних барбекью и уютных вечеров. В доме нет балконов и веранд, но их отсутствие лишь подчёркивает лаконичность и чистоту дизайна, направляя ваш взгляд в сторону больших открытых пространств. Эстетика и практичность идут рука об руку: отсутствие прицепленного гаража и чердака сделало бы дома менее загромождёнными, даря вам свободное пространство для хранения вещей и более чистый внешний вид. А классический стиль, выполненный в строгих тонах, делает этот дом идеальным отражением вашего вкуса и статуса. Это место, где каждый ваш вздох наполняется ощущением истинного уюта и покоя.

Характеристики дома

Архитектурный стиль
Классический
Автоматизированное регулирование параметров теплоносителя
Нет
Балконы/лоджии
Отсутствуют
Чердачное помещение
Нет
Датчики протечки воды
Нет
Эксплуатируемая или зеленая кровля
Нет
Электроснабжение
Центральное
Газоснабжение
Центральное
Изоляция воздушного шума
Нет
Камин
Нет
Класс энергоэффективности
-
Класс энергосбережения
-
Количество надземных этажей
1
Круглогодичное проживание
Да
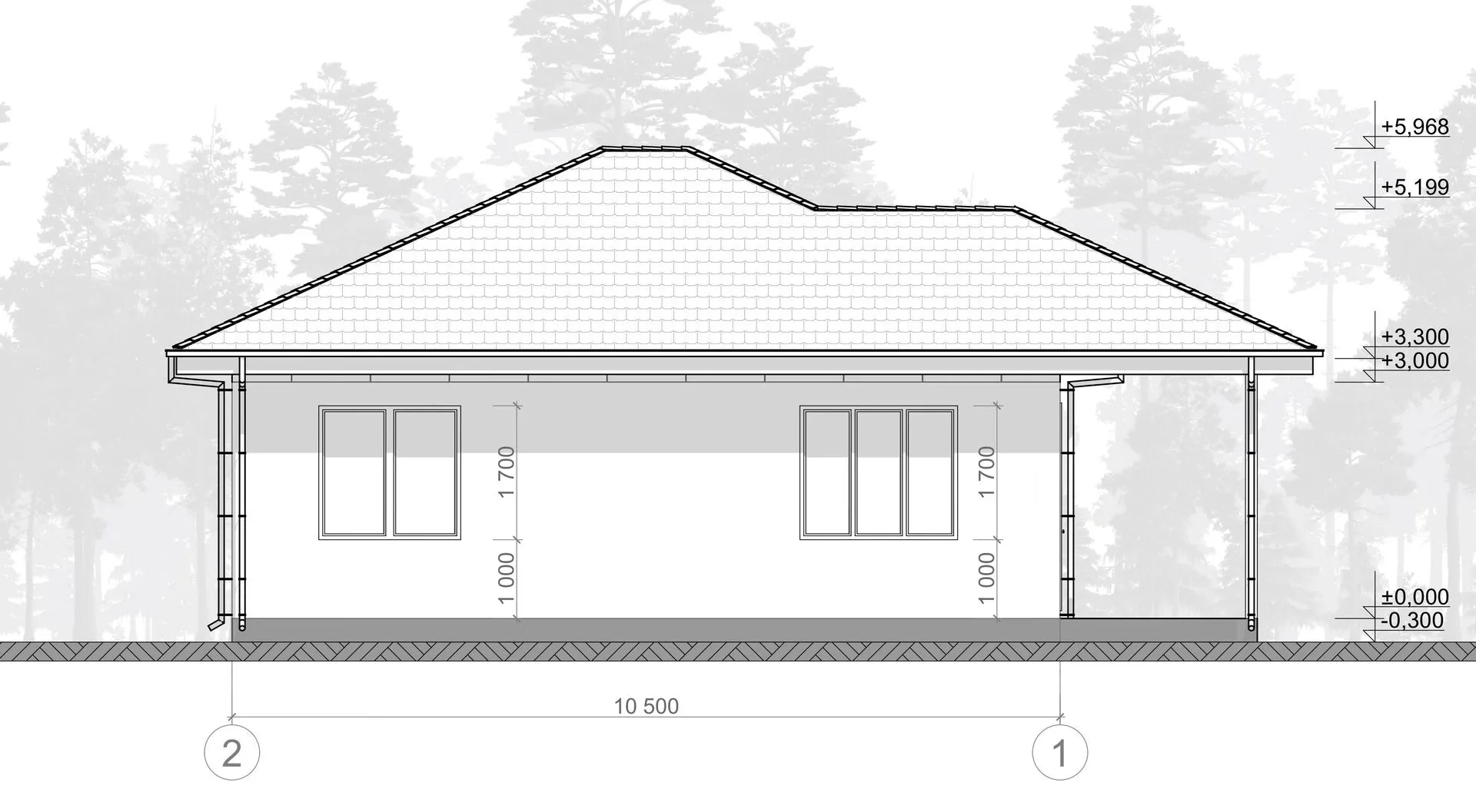
Материал кровли
Металлочерепица
Материал перекрытий
Деревянные
Материал внешних стен
Газобетонные блоки
Материал внутренних перегородок
Блочные
Модульное строительство с конструкциями заводского изготовления
Нет
Объем надземной части
-
Основной материал фасадов
Штукатурка
Отопление
Индивидуальное
Площадь дома
97 м2
Площадь застройки
100 м2
Подвальное помещение
Нет
Показатель компактности здания
-
Приборы учета тепловой энергии
Нет
Пристроенный гараж/крытая автостоянка
Нет
Противопожарная система
Да
Санузлы
2
Совмещенная кухня-гостиная
Да
Спальни
2
Терраса
Да
Тип фундамента
Свайно-ростверковый
Тип кровли
Четырехскатная (вальмовая)
Толщина внешних стен
400 мм
Толщина внутренних перегородок
155 мм
Улучшенные шумовые характеристики
Нет
Вентиляция
Естественная
Веранда
Нет
Водоотведение
Центральное
Водоснабжение
Индивидуальное
Высота дома
5.96 м
Высота потолков
3 м

Планировка

Фасад дома

Александр

Закажите выезд инженера

Александр

Выездной инженер
Закажите выезд инженера для точной диагностики и профессиональной консультации по инженерным системам. Специалист приедет в удобное время, проведёт осмотр, рассчитает стоимость работ и подберёт оптимальные решения для вашего дома.


    Похожие проекты

    Ипотека и
    рассрочка
    Двухэтажный дом №24
    Стоимость от:
    10 319 520
    Проект от: 62 100
    Этажей 2
    Санузлы 2
    Спальни 4
    Смотреть
    Ипотека и
    рассрочка
    БХ-104
    Стоимость от:
    6 543 680
    Проект от: 46 800
    Этажей 1
    Санузлы 1
    Спальни 2
    Смотреть
    Ипотека и
    рассрочка
    Грата 1-120
    Стоимость от:
    9 015 600
    Проект от: 54 000
    Этажей 1
    Санузлы 2
    Спальни 3
    Смотреть
    Ипотека и
    рассрочка
    Одноэтажный дом Е-33
    Стоимость от:
    6 028 880
    Проект от: 46 800
    Этажей 1
    Санузлы 1
    Спальни 3
    Смотреть
    Ипотека и
    рассрочка
    Доношово
    Стоимость от:
    3 362 260
    Проект от: 26 100
    Этажей 1
    Санузлы 2
    Спальни 1
    Смотреть
    Ипотека и
    рассрочка
    Шолохова
    Стоимость от:
    4 514 400
    Проект от: 27 000
    Этажей 1
    Санузлы 1
    Спальни 3
    Смотреть

    Как узнать стоимость дома

    back
    Оставляете заявку
    Вы заполняете форму на сайте или звоните нам. Менеджер Лайвкрафт связывается с вами для уточнения деталей: тип дома, площадь, материалы, участок строительства.
    back
    Консультация и подбор решения
    Наш специалист помогает выбрать оптимальный тип дома и конструкцию с учётом бюджета, сроков и целей — будь то дом для постоянного проживания или дача.
    back
    Расчёт предварительной стоимости
    Инженер делает первичный расчёт стоимости строительства по вашим параметрам: фундамент, коробка, кровля, отделка. Вы получаете смету с разбивкой по этапам.
    back
    Корректировка и утверждение сметы
    При необходимости вносим изменения — например, замену материалов или сокращение этапов. После согласования формируется окончательная фиксированная смета.
    back
    Заключение договора и старт работ
    После утверждения сметы заключаем официальный договор с гарантией. Вы получаете прозрачный график и точную стоимость — без скрытых расходов.

    Заказать конусльтацию по:Загородный дом М-63

    Фото 1 Загородный дом М-63


      Наши
      контакты

      Дмитров
      Опорный проезд 28Б
      (индустриальный парк Ниагара)
      9:00 до 18:00