4.9
Рейтинг на основании 120 отзывов
Дмитров
Опорный проезд 28Б
(индустриальный парк Ниагара)
Бренд "Дмитров-Дело" c 2008 года на рынке строительства в Дмитрове
Звоните 9:00 до 18:00 8 (915) 055-33-61
Бренд "Дмитров-Дело" c 2008 года на рынке строительства в Дмитрове

Загородный дом Малахит

Стоимость проекта от:
52 200 ₽
БЕСПЛАТНО! ПРИ ЗАКАЗЕ СТРОИТЕЛЬСТВА
Стоимость строительства от:
8 191 920 ₽
Артикул ART-15577
Дата 25.12.2025
Архитектурный стиль Классический
Количество надземных этажей 1
Круглогодичное проживание Да
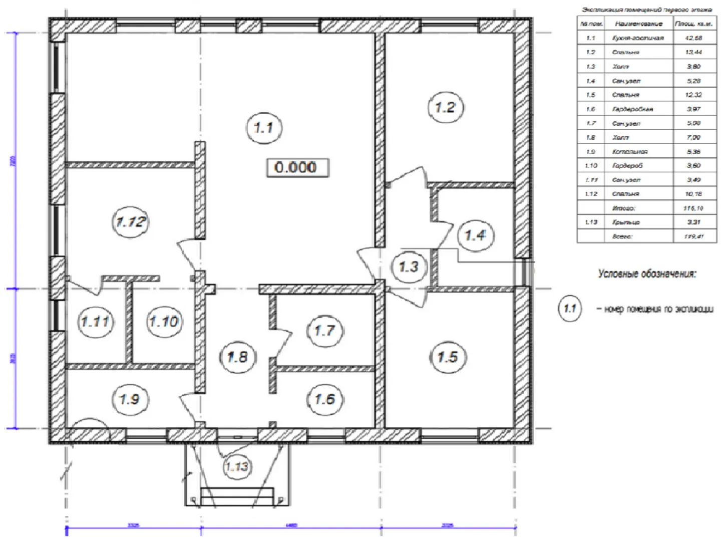
Площадь дома 116 м2
Санузлы 3
Спальни 3

Описание

В уютном уголке родного края стоит загородный дом «Малахит», воплощение спокойствия и гармонии с природой. Его простая, но изящная классическая архитектура, выполненная из газобетонных блоков, гарантирует прочность и тепло, а четыре слёпа вальмовой крыши придают дому характерный, почти сказочный силуэт. Одиннадцать квадратных метров, где каждый уголок пропитан светом и природой, создают идеальное пространство для круглый год, обеспечивая комфорт даже в прохладные зимы и жаркие летние дни. С первого взгляда вы почувствуете, как «Малахит» приглашает к жизни в атмосфере уединения и спокойствия. Здесь нет лишних деталей – нет балконов, веранд и гаражей, но зато есть пространство, где вы можете погрузиться в тишину, послушать щебетание птиц и насладиться дыханием свежего лесного воздуха. Внутренние помещения, открытые и светлые, легко преобразуются в современный семейный дом, где каждая комната рассказывает свою историю уютного дома. Этот дом – ваш личный оазис, где прошлое и настоящее встречаются, создавая идеальное место для отдыха, уединения и семейных праздников.

Характеристики дома

Архитектурный стиль
Автоматизированное регулирование параметров теплоносителя
Да
Балконы/лоджии
Отсутствуют
Чердачное помещение
Нет
Датчики протечки воды
Нет
Эксплуатируемая или зеленая кровля
Нет
Электроснабжение
2 варианта
Газоснабжение
2 варианта
Изоляция воздушного шума
Нет
Камин
Нет
Класс энергоэффективности
-
Класс энергосбережения
-
Количество надземных этажей
1
Круглогодичное проживание
Да
Материал кровли
Металлочерепица
Материал перекрытий
Деревянные
Материал внешних стен
Материал внутренних перегородок
Блочные
Модульное строительство с конструкциями заводского изготовления
Нет
Объем надземной части
308 м3
Основной материал фасадов
Штукатурка
Отопление
2 варианта
Площадь дома
116 м2
Площадь застройки
145 м2
Подвальное помещение
Нет
Показатель компактности здания
-
Приборы учета тепловой энергии
Нет
Пристроенный гараж/крытая автостоянка
Нет
Противопожарная система
Нет
Санузлы
3
Совмещенная кухня-гостиная
Да
Спальни
3
Терраса
Нет
Тип фундамента
Плитный
Толщина внешних стен
400 мм
Толщина внутренних перегородок
100 мм
Улучшенные шумовые характеристики
Да
Вентиляция
3 варианта
Веранда
Нет
Водоотведение
2 варианта
Водоснабжение
2 варианта
Высота дома
5.9 м
Высота потолков
2.9 м

Планировка

Фасад дома

Александр

Закажите выезд инженера

Александр

Выездной инженер
Закажите выезд инженера для точной диагностики и профессиональной консультации по инженерным системам. Специалист приедет в удобное время, проведёт осмотр, рассчитает стоимость работ и подберёт оптимальные решения для вашего дома.


    Похожие проекты

    Ипотека и
    рассрочка
    Одноэтажный Family 99
    Стоимость от:
    8 332 720
    Проект от: 61 200
    Этажей 1
    Санузлы 2
    Спальни 3
    Смотреть
    Ипотека и
    рассрочка
    Двухэтажный дом Beige Г-5
    Стоимость от:
    9 860 160
    Проект от: 60 300
    Этажей 2
    Санузлы 2
    Спальни 4
    Смотреть
    Ипотека и
    рассрочка
    Индивидуальный жилой дом
    Стоимость от:
    9 125 280
    Проект от: 54 900
    Этажей 2
    Санузлы 1
    Спальни 4
    Смотреть
    Ипотека и
    рассрочка
    Загородный дом из газобетона «L»
    Стоимость от:
    13 390 800
    Проект от: 87 750
    Этажей 2
    Санузлы 3
    Спальни 5
    Смотреть
    Ипотека и
    рассрочка
    Одноэтажный дом СР-100-2
    Стоимость от:
    6 847 720
    Проект от: 38 700
    Этажей 1
    Санузлы 2
    Спальни 3
    Смотреть
    Ипотека и
    рассрочка
    Одноэтажный дом с тремя спальнями, камином и террасой
    Стоимость от:
    7 440 180
    Проект от: 44 550
    Этажей 1
    Санузлы 2
    Спальни 3
    Смотреть

    Как узнать стоимость дома

    back
    Оставляете заявку
    Вы заполняете форму на сайте или звоните нам. Менеджер Лайвкрафт связывается с вами для уточнения деталей: тип дома, площадь, материалы, участок строительства.
    back
    Консультация и подбор решения
    Наш специалист помогает выбрать оптимальный тип дома и конструкцию с учётом бюджета, сроков и целей — будь то дом для постоянного проживания или дача.
    back
    Расчёт предварительной стоимости
    Инженер делает первичный расчёт стоимости строительства по вашим параметрам: фундамент, коробка, кровля, отделка. Вы получаете смету с разбивкой по этапам.
    back
    Корректировка и утверждение сметы
    При необходимости вносим изменения — например, замену материалов или сокращение этапов. После согласования формируется окончательная фиксированная смета.
    back
    Заключение договора и старт работ
    После утверждения сметы заключаем официальный договор с гарантией. Вы получаете прозрачный график и точную стоимость — без скрытых расходов.

    Заказать конусльтацию по:Загородный дом Малахит

    Фото 1 Загородный дом Малахит


      Наши
      контакты

      Дмитров
      Опорный проезд 28Б
      (индустриальный парк Ниагара)
      9:00 до 18:00

      Корзина