4.9
Рейтинг на основании 120 отзывов
Дмитров
Опорный проезд 28Б
(индустриальный парк Ниагара)
Бренд "Дмитров-Дело" c 2008 года на рынке строительства в Дмитрове
Звоните 9:00 до 18:00 8 (915) 055-33-61
Бренд "Дмитров-Дело" c 2008 года на рынке строительства в Дмитрове

Загородный дом Онтарио № 40501

Стоимость проекта от:
55 350 ₽
БЕСПЛАТНО! ПРИ ЗАКАЗЕ СТРОИТЕЛЬСТВА
Стоимость строительства от:
8 171 520 ₽
Артикул ART-15785
Дата 25.12.2025
Архитектурный стиль Скандинавский
Количество надземных этажей 2
Круглогодичное проживание Да
Площадь дома 123 м2
Санузлы 2
Спальни 5

Описание

Загородный дом "Онтарио" № 40501 — это настоящий оазис уюта и гармонии, где каждый элемент продуман до мелочей. Разумно разделённые два надземных этажа открывают простор для роста вашей семьи, а круглогодичная планировка позволяет наслаждаться комфортом даже в самые тёплые и холодные сезоны. Вдохновлённый скандинавский стиль придаёт интерьеру лёгкость и светлую чистоту, подчёркивая природную красоту окружающей среды. Внешний облик дома подчёркнут деревянным каркасом, который не только придаёт теплоту, но и обеспечивает надёжную защиту от перемен погоды. Двускатная крыша добавляет нотку колорита, а просторная терраса становится идеальной площадкой для семейных барбекю, чтения книг на свежем воздухе или просто наблюдения за рассветами и закатами. Отсутствие балконов, веранд и приёма гаражей позволяет сосредоточиться на открытой, воздушной атмосфере. "Онтарио" — это больше, чем просто жильё; это возможность создать свой собственный уголок спокойствия, где современные стандарты сосредоточены вокруг простоты, изящества и взаимопонимания с природой. Если вы ищете дом, где время идёт медленно, а каждая комната напоминает о теплом семейном уюте, этот загородный дом приглашает вас погрузиться в мир истинного спокойствия и гармонии.

Характеристики дома

Архитектурный стиль
Автоматизированное регулирование параметров теплоносителя
Нет
Балконы/лоджии
Отсутствуют
Чердачное помещение
Нет
Датчики протечки воды
Нет
Эксплуатируемая или зеленая кровля
Нет
Электроснабжение
Индивидуальное
Газоснабжение
Не предусмотрено
Изоляция воздушного шума
Да
Камин
Нет
Класс энергоэффективности
A
Класс энергосбережения
A+
Количество надземных этажей
2
Круглогодичное проживание
Да
Материал кровли
Металлочерепица
Материал перекрытий
Деревянные
Материал внешних стен
Материал внутренних перегородок
Деревянные
Модульное строительство с конструкциями заводского изготовления
Нет
Объем надземной части
401 м3
Основной материал фасадов
Фасадная плитка
Отопление
Индивидуальное
Площадь дома
123 м2
Площадь застройки
104 м2
Подвальное помещение
Нет
Показатель компактности здания
1
Приборы учета тепловой энергии
Да
Пристроенный гараж/крытая автостоянка
Нет
Противопожарная система
Нет
Санузлы
2
Совмещенная кухня-гостиная
Да
Спальни
5
Терраса
Да
Тип фундамента
Свайно-ростверковый
Тип кровли
Толщина внешних стен
225 мм
Толщина внутренних перегородок
200 мм
Улучшенные шумовые характеристики
Да
Вентиляция
2 варианта
Веранда
Нет
Водоотведение
Локальные очистные сооружения
Водоснабжение
Индивидуальное
Высота дома
7.03 м
Высота потолков
2.6 м

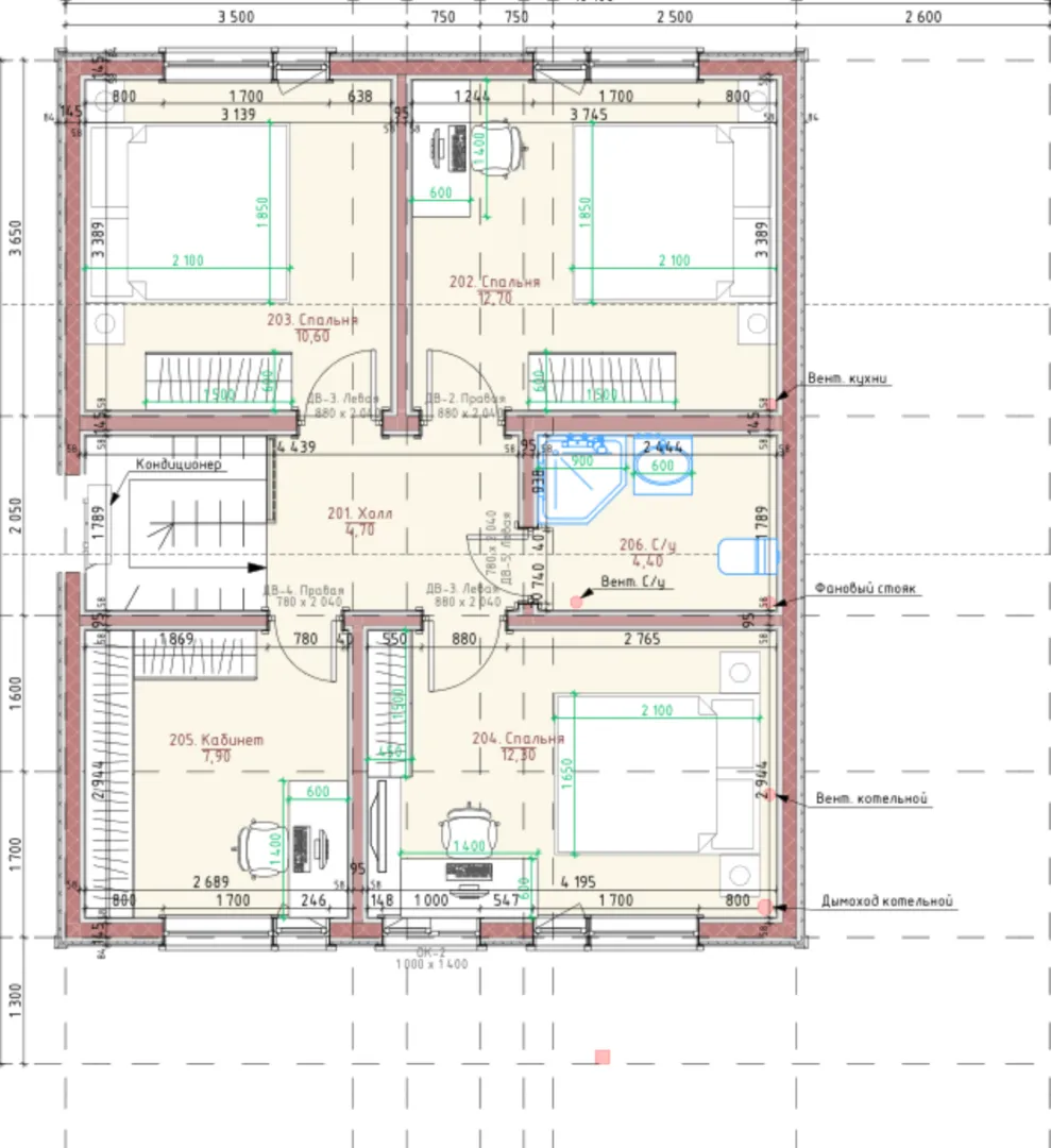
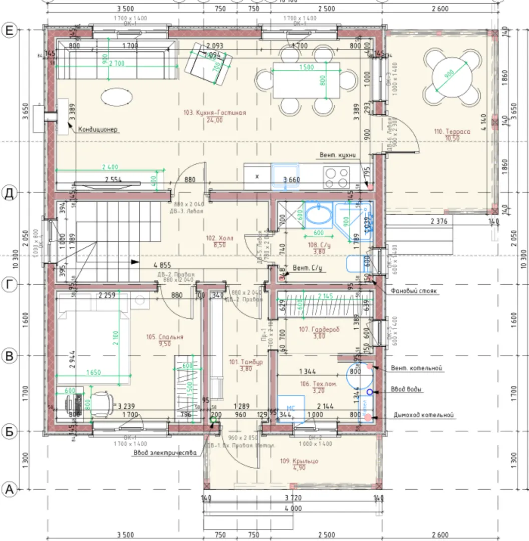
Планировка

Фасад дома

Александр

Закажите выезд инженера

Александр

Выездной инженер
Закажите выезд инженера для точной диагностики и профессиональной консультации по инженерным системам. Специалист приедет в удобное время, проведёт осмотр, рассчитает стоимость работ и подберёт оптимальные решения для вашего дома.


    Похожие проекты

    Ипотека и
    рассрочка
    Двухэтажный жилой дом Аполлон 218 кв.м. с гаражом
    Стоимость от:
    16 029 120
    Проект от: 98 100
    Этажей 2
    Санузлы 2
    Спальни 5
    Смотреть
    Ипотека и
    рассрочка
    Кирпичный дом (Раифа)
    Стоимость от:
    10 561 440
    Проект от: 65 700
    Этажей 2
    Санузлы 3
    Спальни 5
    Смотреть
    Ипотека и
    рассрочка
    Дом Лили Лофт
    Стоимость от:
    3 534 360
    Проект от: 26 550
    Этажей 2
    Санузлы 1
    Спальни 1
    Смотреть
    Ипотека и
    рассрочка
    PH-50
    Стоимость от:
    3 421 000
    Проект от: 22 500
    Этажей 1
    Санузлы 1
    Спальни 1
    Смотреть
    Ипотека и
    рассрочка
    Гранит 101
    Стоимость от:
    8 403 780
    Проект от: 53 550
    Этажей 1
    Санузлы 1
    Спальни 3
    Смотреть
    Ипотека и
    рассрочка
    Одноэтажный дом «Индивидуальный проект»
    Стоимость от:
    13 216 720
    Проект от: 79 200
    Этажей 1
    Санузлы 2
    Спальни 4
    Смотреть

    Как узнать стоимость дома

    back
    Оставляете заявку
    Вы заполняете форму на сайте или звоните нам. Менеджер Лайвкрафт связывается с вами для уточнения деталей: тип дома, площадь, материалы, участок строительства.
    back
    Консультация и подбор решения
    Наш специалист помогает выбрать оптимальный тип дома и конструкцию с учётом бюджета, сроков и целей — будь то дом для постоянного проживания или дача.
    back
    Расчёт предварительной стоимости
    Инженер делает первичный расчёт стоимости строительства по вашим параметрам: фундамент, коробка, кровля, отделка. Вы получаете смету с разбивкой по этапам.
    back
    Корректировка и утверждение сметы
    При необходимости вносим изменения — например, замену материалов или сокращение этапов. После согласования формируется окончательная фиксированная смета.
    back
    Заключение договора и старт работ
    После утверждения сметы заключаем официальный договор с гарантией. Вы получаете прозрачный график и точную стоимость — без скрытых расходов.

    Заказать конусльтацию по:Загородный дом Онтарио № 40501

    Фото 1 Загородный дом Онтарио № 40501


      Наши
      контакты

      Дмитров
      Опорный проезд 28Б
      (индустриальный парк Ниагара)
      9:00 до 18:00

      Корзина