4.9
Рейтинг на основании 120 отзывов
Дмитров
Опорный проезд 28Б
(индустриальный парк Ниагара)
Бренд "Дмитров-Дело" c 2008 года на рынке строительства в Дмитрове
Звоните 9:00 до 18:00 8 (915) 055-33-61
Бренд "Дмитров-Дело" c 2008 года на рынке строительства в Дмитрове

Загородный дом ПД — 92

Стоимость проекта от:
41 400 ₽
БЕСПЛАТНО! ПРИ ЗАКАЗЕ СТРОИТЕЛЬСТВА
Стоимость строительства от:
6 497 040 ₽
Артикул ART-16699
Дата 26.12.2025
Архитектурный стиль Классический
Количество надземных этажей 1
Круглогодичное проживание Да
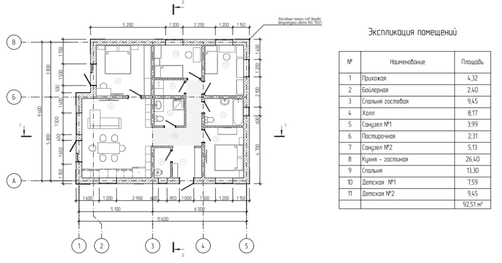
Площадь дома 92 м2
Санузлы 2
Спальни 4

Описание

В этом уютном загородном доме P‑D 92 ощущение простора и уюта гармонично сочетается с классическим стилем архитектуры, достойным настоящей семейной истории. Полюбуйтесь безмятежностью открытых окон, через которые впадает мягкий свет и вид на живописную природу вокруг. Внутренний план открывает просторную гостиную, где уютные уголки создают атмосферу тепла и дружеского общения. Круглогодичное проживание обеспечено благодаря продуманной теплоизоляции газобетонных блоков и классическому четырёхскатному (вальмовому) череповому покрытию, которое удерживает тепло в зиму и придаёт свежесть летним дням. Каждый надземный этаж — это полноценный дом, где каждая деталь продумана до мелочей. Объект отличается простотой и элегантностью: здесь нет балконов, веранд и чердачных помещений, но в каждом уголке чувствуется баланс между функциональностью и эстетикой. Пространство внутри организовано так, чтобы вы могли легко разместить мебель и личные вещи, создавая личную оазис уюта. Простой, но гармоничный фасад с классическими деталями придаёт дому стойкость и внушительность, а чистые линии и строгий цвет делают его идеальным выбором для тех, кто ценит традиционное строётельное искусство и заботится о собственном комфорте. Этот дом — это не просто стены и крыша, а целый мир, созданный для того, чтобы ваш дом стал тем самым уютным уголком, куда хочется возвращаться каждый день.

Характеристики дома

Архитектурный стиль
Автоматизированное регулирование параметров теплоносителя
Нет
Балконы/лоджии
Отсутствуют
Чердачное помещение
Нет
Датчики протечки воды
Нет
Эксплуатируемая или зеленая кровля
Нет
Электроснабжение
Центральное
Газоснабжение
Не предусмотрено
Изоляция воздушного шума
Нет
Камин
Нет
Класс энергоэффективности
-
Класс энергосбережения
-
Количество надземных этажей
1
Круглогодичное проживание
Да
Материал кровли
Металлочерепица
Материал перекрытий
Деревянные
Материал внешних стен
Материал внутренних перегородок
Блочные
Модульное строительство с конструкциями заводского изготовления
Нет
Объем надземной части
-
Основной материал фасадов
Штукатурка
Отопление
Индивидуальное
Площадь дома
92 м2
Площадь застройки
116 м2
Подвальное помещение
Нет
Показатель компактности здания
-
Приборы учета тепловой энергии
Нет
Пристроенный гараж/крытая автостоянка
Нет
Противопожарная система
Нет
Санузлы
2
Совмещенная кухня-гостиная
Да
Спальни
4
Терраса
Нет
Тип фундамента
Плитный
Толщина внешних стен
400 мм
Толщина внутренних перегородок
200 мм
Улучшенные шумовые характеристики
Нет
Вентиляция
Естественная
Веранда
Нет
Водоотведение
Локальные очистные сооружения
Водоснабжение
Индивидуальное
Высота дома
4.99 м
Высота потолков
3 м

Планировка

Фасад дома

Александр

Закажите выезд инженера

Александр

Выездной инженер
Закажите выезд инженера для точной диагностики и профессиональной консультации по инженерным системам. Специалист приедет в удобное время, проведёт осмотр, рассчитает стоимость работ и подберёт оптимальные решения для вашего дома.


    Похожие проекты

    Ипотека и
    рассрочка
    Загородный дом ВС-138
    Стоимость от:
    15 923 520
    Проект от: 102 600
    Этажей 2
    Санузлы 3
    Спальни 5
    Смотреть
    Ипотека и
    рассрочка
    Одноэтажный дом от компании UNIT серии Классика 96 ТК
    Стоимость от:
    8 096 220
    Проект от: 49 950
    Этажей 1
    Санузлы 2
    Спальни 3
    Смотреть
    Ипотека и
    рассрочка
    Проект Ладога
    Стоимость от:
    7 085 980
    Проект от: 40 050
    Этажей 1
    Санузлы 1
    Спальни 3
    Смотреть
    Ипотека и
    рассрочка
    ТН-156
    Стоимость от:
    9 496 850
    Проект от: 69 750
    Этажей 1
    Санузлы 2
    Спальни 3
    Смотреть
    Ипотека и
    рассрочка
    К 2-88
    Стоимость от:
    5 875 440
    Проект от: 36 450
    Этажей 2
    Санузлы 2
    Спальни 3
    Смотреть
    Ипотека и
    рассрочка
    Каркасный дом Гелион-113,85
    Стоимость от:
    7 109 960
    Проект от: 50 850
    Этажей 1
    Санузлы 2
    Спальни 2
    Смотреть

    Как узнать стоимость дома

    back
    Оставляете заявку
    Вы заполняете форму на сайте или звоните нам. Менеджер Лайвкрафт связывается с вами для уточнения деталей: тип дома, площадь, материалы, участок строительства.
    back
    Консультация и подбор решения
    Наш специалист помогает выбрать оптимальный тип дома и конструкцию с учётом бюджета, сроков и целей — будь то дом для постоянного проживания или дача.
    back
    Расчёт предварительной стоимости
    Инженер делает первичный расчёт стоимости строительства по вашим параметрам: фундамент, коробка, кровля, отделка. Вы получаете смету с разбивкой по этапам.
    back
    Корректировка и утверждение сметы
    При необходимости вносим изменения — например, замену материалов или сокращение этапов. После согласования формируется окончательная фиксированная смета.
    back
    Заключение договора и старт работ
    После утверждения сметы заключаем официальный договор с гарантией. Вы получаете прозрачный график и точную стоимость — без скрытых расходов.

    Заказать конусльтацию по:Загородный дом ПД — 92

    Фото 1 Загородный дом ПД — 92


      Наши
      контакты

      Дмитров
      Опорный проезд 28Б
      (индустриальный парк Ниагара)
      9:00 до 18:00

      Корзина