4.9
Рейтинг на основании 120 отзывов
Дмитров
Опорный проезд 28Б
(индустриальный парк Ниагара)
Бренд "Дмитров-Дело" c 2008 года на рынке строительства в Дмитрове
Звоните 9:00 до 18:00 8 (915) 055-33-61
Бренд "Дмитров-Дело" c 2008 года на рынке строительства в Дмитрове

Загородный дом ПСК-79

Стоимость проекта от:
35 550 ₽
БЕСПЛАТНО! ПРИ ЗАКАЗЕ СТРОИТЕЛЬСТВА
Стоимость строительства от:
4 840 330 ₽
Артикул ART-13903
Дата 25.12.2025
Архитектурный стиль Классический
Количество надземных этажей 1
Круглогодичное проживание Да
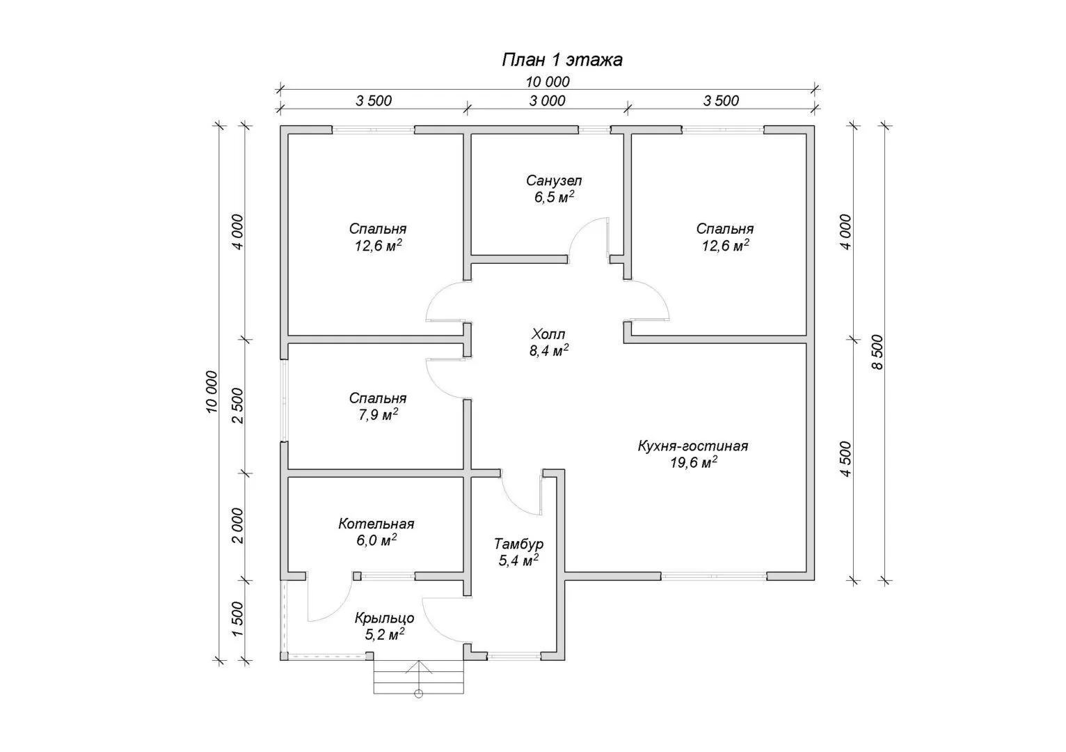
Площадь дома 79 м2
Санузлы 1
Спальни 3

Описание

**ПСК‑79 – ваш уголок спокойствия в сердце природы** Этот одностайный загородный дом в классическом стиле воплощает в себе идеальное сочетание утончённого дизайна и практичности. От того, что он рассчитан на круглогодичное проживание, до продуманной планировки, каждый уголок пронизан уютом и комфортом. Здесь вас ждут светлые, просторные помещения, обрамлённые красивыми окнами и изящными балконами, а открытая планировка позволяет легко адаптировать пространство под любые потребности. Главный акцент ставится на качество и энергоэффективность. Внешние стены выполнены из SIP‑панелей, обеспечивающих отличные тепло- и шумоизоляционные свойства, а двускатная крыша придает дому статусный облик и защищает от непогоды. Один надземный этаж обеспечивает простоту передвижения, а отсутствие дополнительных наружных конструкций – веранда, подземка, чердачное помещение – делает интерьер ещё более открытым и воздушным. Дом готов к мгновенному заселению — вы можете сразу погрузиться в атмосферу уюта и спокойствия, не тратя время на доработки. **Пусть ваш дом станет местом, где каждый день будет напоминать о счастье простого, но полноценного бытия.** С нами вы получите не просто квартиру – вы получите спокойствие, уют и возможность наслаждаться природой, не отрываясь от своей жизни. Присоединившись к владельцам PСК‑79, вы открываете дверь в новый, лучший образ жизни. Свяжитесь с нами уже сегодня и убедитесь, что мечта о собственном загородном доме может стать реальностью!

Характеристики дома

Архитектурный стиль
Автоматизированное регулирование параметров теплоносителя
Нет
Балконы/лоджии
Отсутствуют
Чердачное помещение
Нет
Датчики протечки воды
Нет
Эксплуатируемая или зеленая кровля
Нет
Электроснабжение
Центральное
Газоснабжение
Не предусмотрено
Изоляция воздушного шума
Нет
Камин
Нет
Класс энергоэффективности
-
Класс энергосбережения
-
Количество надземных этажей
1
Круглогодичное проживание
Да
Материал кровли
Фальцевая кровля Кликфальц
Материал перекрытий
Деревянные
Материал внешних стен
Материал внутренних перегородок
Деревянные
Модульное строительство с конструкциями заводского изготовления
Нет
Объем надземной части
-
Основной материал фасадов
Дерево
Отопление
Индивидуальное
Площадь дома
79 м2
Площадь застройки
92 м2
Подвальное помещение
Нет
Показатель компактности здания
-
Приборы учета тепловой энергии
Нет
Пристроенный гараж/крытая автостоянка
Нет
Противопожарная система
Нет
Санузлы
1
Совмещенная кухня-гостиная
Да
Спальни
3
Терраса
Нет
Тип фундамента
Свайный
Тип кровли
Толщина внешних стен
174 мм
Толщина внутренних перегородок
124 мм
Улучшенные шумовые характеристики
Нет
Вентиляция
Естественная
Веранда
Нет
Водоотведение
Локальные очистные сооружения
Водоснабжение
Индивидуальное
Высота дома
6 м
Высота потолков
3 м

Планировка

Фасад дома

Александр

Закажите выезд инженера

Александр

Выездной инженер
Закажите выезд инженера для точной диагностики и профессиональной консультации по инженерным системам. Специалист приедет в удобное время, проведёт осмотр, рассчитает стоимость работ и подберёт оптимальные решения для вашего дома.


    Похожие проекты

    Ипотека и
    рассрочка
    Сказка 160
    Стоимость от:
    10 891 920
    Проект от: 68 850
    Этажей 2
    Санузлы 2
    Спальни 4
    Смотреть
    Ипотека и
    рассрочка
    Одноэтажный дом «Велета»
    Стоимость от:
    5 296 500
    Проект от: 33 750
    Этажей 1
    Санузлы 1
    Спальни 2
    Смотреть
    Ипотека и
    рассрочка
    Проект дома 200-87
    Стоимость от:
    15 787 200
    Проект от: 103 500
    Этажей 2
    Санузлы 4
    Спальни 5
    Смотреть
    Ипотека и
    рассрочка
    Одноэтажный проект GRADE-1
    Стоимость от:
    9 165 640
    Проект от: 54 900
    Этажей 1
    Санузлы 1
    Спальни 3
    Смотреть
    Ипотека и
    рассрочка
    Мансардный дом 120м2
    Стоимость от:
    7 934 400
    Проект от: 54 000
    Этажей 2
    Санузлы 2
    Спальни 3
    Смотреть
    Ипотека и
    рассрочка
    Жилой Дом № 7
    Стоимость от:
    6 765 000
    Проект от: 40 500
    Этажей 1
    Санузлы 2
    Спальни 3
    Смотреть

    Как узнать стоимость дома

    back
    Оставляете заявку
    Вы заполняете форму на сайте или звоните нам. Менеджер Лайвкрафт связывается с вами для уточнения деталей: тип дома, площадь, материалы, участок строительства.
    back
    Консультация и подбор решения
    Наш специалист помогает выбрать оптимальный тип дома и конструкцию с учётом бюджета, сроков и целей — будь то дом для постоянного проживания или дача.
    back
    Расчёт предварительной стоимости
    Инженер делает первичный расчёт стоимости строительства по вашим параметрам: фундамент, коробка, кровля, отделка. Вы получаете смету с разбивкой по этапам.
    back
    Корректировка и утверждение сметы
    При необходимости вносим изменения — например, замену материалов или сокращение этапов. После согласования формируется окончательная фиксированная смета.
    back
    Заключение договора и старт работ
    После утверждения сметы заключаем официальный договор с гарантией. Вы получаете прозрачный график и точную стоимость — без скрытых расходов.

    Заказать конусльтацию по:Загородный дом ПСК-79

    Фото 1 Загородный дом ПСК-79


      Наши
      контакты

      Дмитров
      Опорный проезд 28Б
      (индустриальный парк Ниагара)
      9:00 до 18:00

      Корзина