4.9
Рейтинг на основании 120 отзывов
Дмитров
Опорный проезд 28Б
(индустриальный парк Ниагара)
Бренд "Дмитров-Дело" c 2008 года на рынке строительства в Дмитрове
Звоните 9:00 до 18:00 8 (915) 055-33-61
Бренд "Дмитров-Дело" c 2008 года на рынке строительства в Дмитрове

Загородный дом «Расим»

Стоимость проекта от:
36 000 ₽
БЕСПЛАТНО! ПРИ ЗАКАЗЕ СТРОИТЕЛЬСТВА
Стоимость строительства от:
4 901 600 ₽
Артикул ART-17343
Дата 26.12.2025
Архитектурный стиль Классический
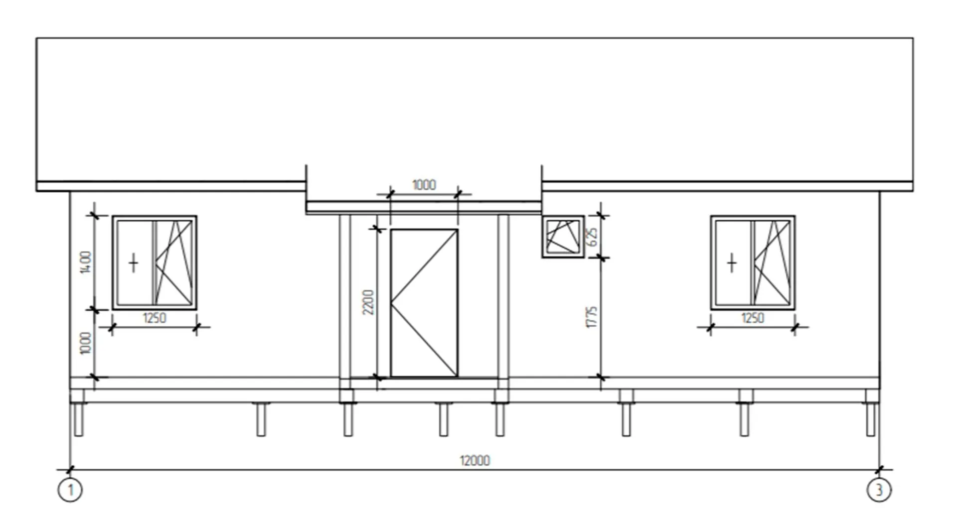
Количество надземных этажей 1
Круглогодичное проживание Да
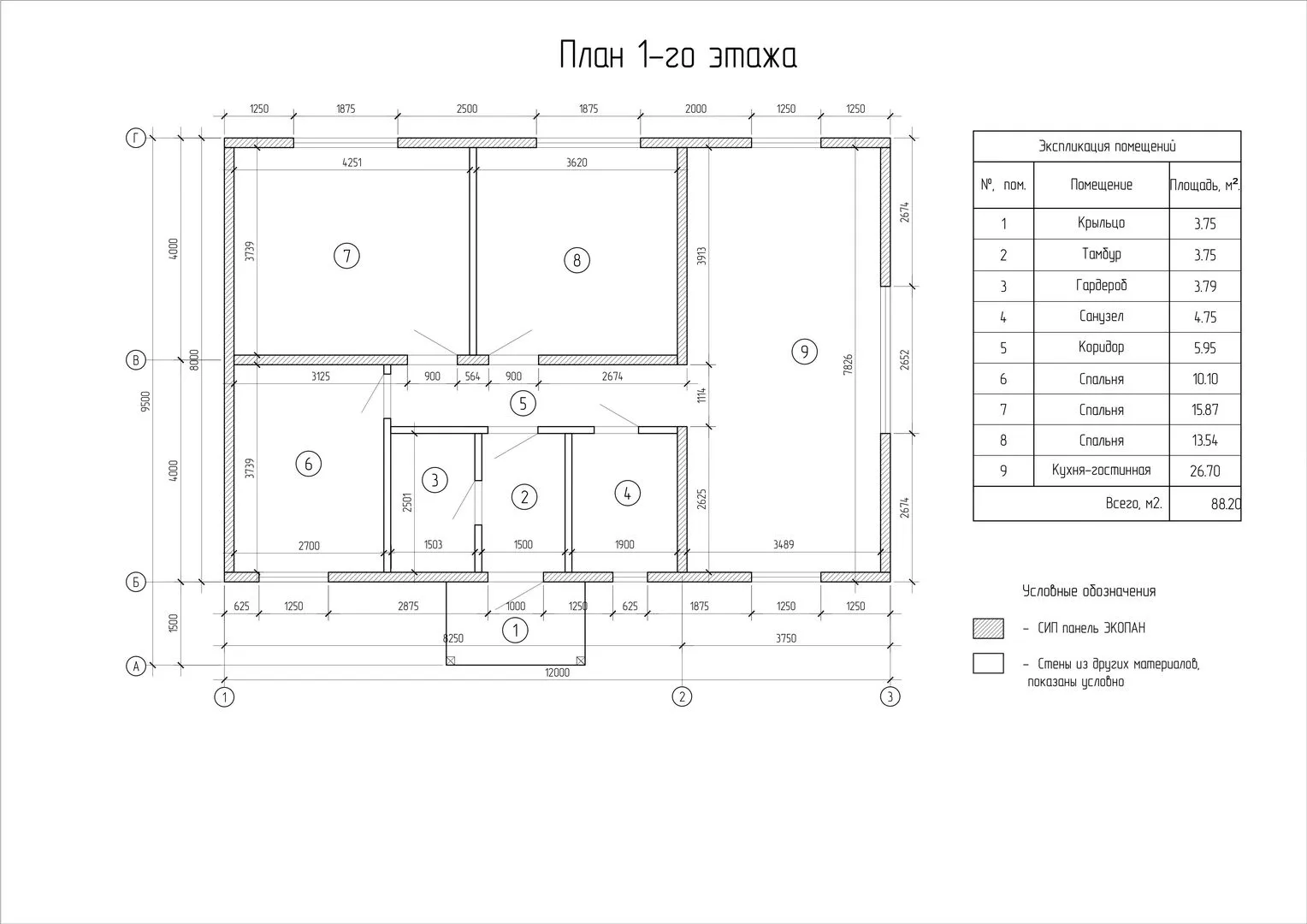
Площадь дома 80 м2
Санузлы 1
Спальни 3

Описание

**Дом «Расим»** – уютная, непринужденная зона уединения, где каждая деталь продумана для гармонии с природой и комфортом семьи. Просторный открытый единожды этажный план позволяет свободно перемещаться по дому, а традиционный классический стиль с элегантными архитектурными линиями подчёркивает благородство простоты. Внутреннее пространство обволакивает тепло и свет, создавая атмосферу домашнего очарования. Благодаря использованию SIP‑панелей на внешних стенах, ваш дом обладает надёжной теплоизоляцией и высокими эксплуатационными характеристиками, а двойнокорточная крыша обеспечивает надёжную защиту от непогоды. В крыше сохранён чердачное помещение, которое можно преобразовать в уютный кабинет, альянс для семейных хобби или просто хранить сезонные вещи. «Расим» создан для круглогодичного проживания: от кристально чистой зимы до яркого лета, каждый уголок будет радовать. Без лишних отделок, без балконов, без веранд, без прикреплённого гаража, этот дом подчеркивает свою простоту и функциональность. Это место, где каждый прожитый день становится частью семейной сказки, а окружающая природа – вашим неизменным другом. Позвольте себе отдохнуть и вдохнуть, выбирая «Расим» – дом, в котором каждый звук природы кажется стихией, а каждая тень - дружеским объятием.

Характеристики дома

Архитектурный стиль
Автоматизированное регулирование параметров теплоносителя
Нет
Балконы/лоджии
Отсутствуют
Чердачное помещение
Да
Датчики протечки воды
Нет
Эксплуатируемая или зеленая кровля
Нет
Электроснабжение
Центральное
Газоснабжение
Центральное
Изоляция воздушного шума
Да
Камин
Нет
Класс энергоэффективности
A
Класс энергосбережения
A
Количество надземных этажей
1
Круглогодичное проживание
Да
Материал кровли
Металлические рулонные или листовые материалы
Материал перекрытий
Деревянные
Материал внешних стен
Материал внутренних перегородок
Гипсокартонные
Модульное строительство с конструкциями заводского изготовления
Нет
Объем надземной части
413 м3
Основной материал фасадов
Фасадная плитка
Отопление
Индивидуальное
Площадь дома
80 м2
Площадь застройки
99 м2
Подвальное помещение
Нет
Показатель компактности здания
1
Приборы учета тепловой энергии
Да
Пристроенный гараж/крытая автостоянка
Нет
Противопожарная система
Нет
Санузлы
1
Совмещенная кухня-гостиная
Да
Спальни
3
Терраса
Нет
Тип фундамента
Свайный
Тип кровли
Толщина внешних стен
174 мм
Толщина внутренних перегородок
124 мм
Улучшенные шумовые характеристики
Да
Вентиляция
Естественная
Веранда
Нет
Водоотведение
Локальные очистные сооружения
Водоснабжение
Центральное
Высота дома
5.5 м
Высота потолков
2.8 м

Планировка

Фасад дома

Александр

Закажите выезд инженера

Александр

Выездной инженер
Закажите выезд инженера для точной диагностики и профессиональной консультации по инженерным системам. Специалист приедет в удобное время, проведёт осмотр, рассчитает стоимость работ и подберёт оптимальные решения для вашего дома.


    Похожие проекты

    Ипотека и
    рассрочка
    Одноэтажный современный дом
    Стоимость от:
    8 743 460
    Проект от: 50 850
    Этажей 1
    Санузлы 2
    Спальни 2
    Смотреть
    Ипотека и
    рассрочка
    Барн 6*8
    Стоимость от:
    2 243 010
    Проект от: 18 900
    Этажей 1
    Санузлы 1
    Спальни 1
    Смотреть
    Ипотека и
    рассрочка
    П1-60-СП2
    Стоимость от:
    4 782 800
    Проект от: 27 000
    Этажей 1
    Санузлы 1
    Спальни 2
    Смотреть
    Ипотека и
    рассрочка
    Одноэтажный дом Графит Скала
    Стоимость от:
    6 314 880
    Проект от: 37 800
    Этажей 1
    Санузлы 1
    Спальни 3
    Смотреть
    Ипотека и
    рассрочка
    Двухэтажный дом Г-300
    Стоимость от:
    20 532 960
    Проект от: 132 300
    Этажей 2
    Санузлы 2
    Спальни 5
    Смотреть
    Ипотека и
    рассрочка
    Дом из клееного бруса БД-103
    Стоимость от:
    6 283 530
    Проект от: 44 550
    Этажей 1
    Санузлы 2
    Спальни 3
    Смотреть

    Как узнать стоимость дома

    back
    Оставляете заявку
    Вы заполняете форму на сайте или звоните нам. Менеджер Лайвкрафт связывается с вами для уточнения деталей: тип дома, площадь, материалы, участок строительства.
    back
    Консультация и подбор решения
    Наш специалист помогает выбрать оптимальный тип дома и конструкцию с учётом бюджета, сроков и целей — будь то дом для постоянного проживания или дача.
    back
    Расчёт предварительной стоимости
    Инженер делает первичный расчёт стоимости строительства по вашим параметрам: фундамент, коробка, кровля, отделка. Вы получаете смету с разбивкой по этапам.
    back
    Корректировка и утверждение сметы
    При необходимости вносим изменения — например, замену материалов или сокращение этапов. После согласования формируется окончательная фиксированная смета.
    back
    Заключение договора и старт работ
    После утверждения сметы заключаем официальный договор с гарантией. Вы получаете прозрачный график и точную стоимость — без скрытых расходов.

    Заказать конусльтацию по:Загородный дом «Расим»

    Фото 1 Загородный дом «Расим»


      Наши
      контакты

      Дмитров
      Опорный проезд 28Б
      (индустриальный парк Ниагара)
      9:00 до 18:00

      Корзина