4.9
Рейтинг на основании 120 отзывов
Дмитров
Опорный проезд 28Б
(индустриальный парк Ниагара)
Бренд "Дмитров-Дело" c 2008 года на рынке строительства в Дмитрове
Звоните 9:00 до 18:00 8 (915) 055-33-61
Бренд "Дмитров-Дело" c 2008 года на рынке строительства в Дмитрове

Загородный дом — СК-86

Стоимость проекта от:
38 700 ₽
БЕСПЛАТНО! ПРИ ЗАКАЗЕ СТРОИТЕЛЬСТВА
Стоимость строительства от:
6 464 920 ₽
Артикул ART-18301
Дата 26.12.2025
Архитектурный стиль Классический
Количество надземных этажей 1
Круглогодичное проживание Да
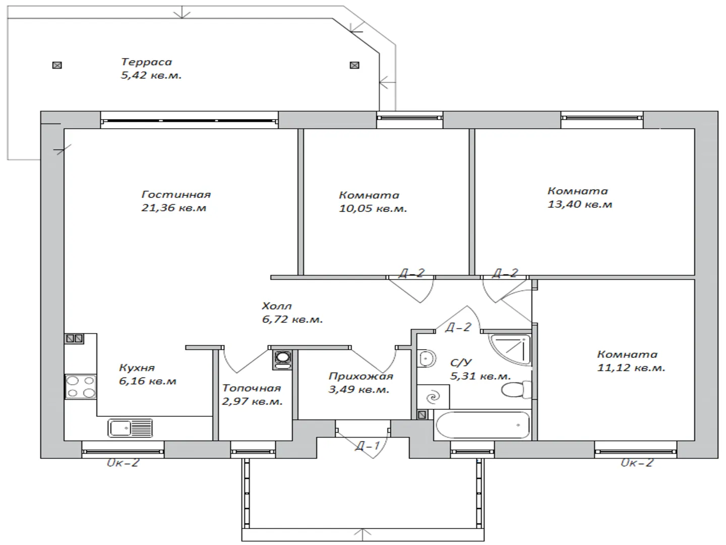
Площадь дома 86 м2
Санузлы 1
Спальни 3

Описание

Великолепный загородный дом **СК‑86** приглашает вас открыть двери в мир уюта и гармонии. Величественный классический стиль в сочетании с мягкими теплыми оттенками газобетонных блоков создаёт ощущение надёжности и устойчивости, которое ощущается с самого первого шага в помещение. Дом рассчитан на круглогодичное проживание: уютные комнаты обогреваются в холодные дни, а солнечные лучи нежно вливаются в просторные окна, создавая светлую и живую атмосферу. Величественная двускатная крыша, выполненная из качественного материала, придаёт дому элегантный профиль, а отсутствие лишних балконов и веранд позволяет сконцентрировать внимание на внутреннем пространстве, где каждый уголок пронизан романтичным классическим декором. Тепло и спокойствие пронизывают все помещения, где большие окна открывают панорамный вид на природу, создавая ощущение, будто вы живёте в собственном резиденции. Ароматы свежего дерева и хвои, которые навеваются с просторной террасы, делают ваш отдых незабываемым. Здесь вы можете устроить уютный вечер у камина, насладиться обедом на свежем воздухе и просто потеряться в гармонии с природой. Дом **СК‑86** – это настоящий оазис, где каждый момент превращается в неповторимое событие. Это место, где ценятся простые радости, а каждая деталь продумана с любовью к комфорту и стилю. Приготовьтесь открывать для себя новую главу вашего счастья, где уютные комнаты и природная красота сливаются в безупречном единстве.

Характеристики дома

Архитектурный стиль
Автоматизированное регулирование параметров теплоносителя
Нет
Балконы/лоджии
Отсутствуют
Чердачное помещение
Нет
Датчики протечки воды
Нет
Эксплуатируемая или зеленая кровля
Нет
Электроснабжение
2 варианта
Газоснабжение
2 варианта
Изоляция воздушного шума
Нет
Камин
Нет
Класс энергоэффективности
-
Класс энергосбережения
-
Количество надземных этажей
1
Круглогодичное проживание
Да
Материал кровли
Металлочерепица
Материал перекрытий
Деревянные
Материал внешних стен
Материал внутренних перегородок
Блочные
Модульное строительство с конструкциями заводского изготовления
Нет
Объем надземной части
-
Основной материал фасадов
Штукатурка
Отопление
2 варианта
Площадь дома
86 м2
Площадь застройки
103 м2
Подвальное помещение
Нет
Показатель компактности здания
-
Приборы учета тепловой энергии
Нет
Пристроенный гараж/крытая автостоянка
Нет
Противопожарная система
Нет
Санузлы
1
Совмещенная кухня-гостиная
Да
Спальни
3
Терраса
Да
Тип фундамента
Свайно-ростверковый
Тип кровли
Толщина внешних стен
300 мм
Толщина внутренних перегородок
100 мм
Улучшенные шумовые характеристики
Да
Вентиляция
3 варианта
Веранда
Нет
Водоотведение
2 варианта
Водоснабжение
2 варианта
Высота дома
4.81 м
Высота потолков
2.7 м

Планировка

Фасад дома

Александр

Закажите выезд инженера

Александр

Выездной инженер
Закажите выезд инженера для точной диагностики и профессиональной консультации по инженерным системам. Специалист приедет в удобное время, проведёт осмотр, рассчитает стоимость работ и подберёт оптимальные решения для вашего дома.


    Похожие проекты

    Ипотека и
    рассрочка
    Загородный дом АС-245
    Стоимость от:
    8 977 500
    Проект от: 67 500
    Этажей 2
    Санузлы 2
    Спальни 3
    Смотреть
    Ипотека и
    рассрочка
    Загородный дом по проекту «Виктор».
    Стоимость от:
    4 297 920
    Проект от: 29 700
    Этажей 1
    Санузлы 1
    Спальни 2
    Смотреть
    Ипотека и
    рассрочка
    Валенсия К125-1 (Каркасный дом)
    Стоимость от:
    7 246 250
    Проект от: 56 250
    Этажей 1
    Санузлы 3
    Спальни 3
    Смотреть
    Ипотека и
    рассрочка
    Дом из бруса с мансардой БД-47
    Стоимость от:
    11 653 200
    Проект от: 81 000
    Этажей 2
    Санузлы 1
    Спальни 3
    Смотреть
    Ипотека и
    рассрочка
    Каменный загородный дом SHILO-М
    Стоимость от:
    7 273 860
    Проект от: 46 350
    Этажей 1
    Санузлы 2
    Спальни 3
    Смотреть
    Ипотека и
    рассрочка
    Лестер
    Стоимость от:
    6 878 795
    Проект от: 53 550
    Этажей 1
    Санузлы 3
    Спальни 2
    Смотреть

    Как узнать стоимость дома

    back
    Оставляете заявку
    Вы заполняете форму на сайте или звоните нам. Менеджер Лайвкрафт связывается с вами для уточнения деталей: тип дома, площадь, материалы, участок строительства.
    back
    Консультация и подбор решения
    Наш специалист помогает выбрать оптимальный тип дома и конструкцию с учётом бюджета, сроков и целей — будь то дом для постоянного проживания или дача.
    back
    Расчёт предварительной стоимости
    Инженер делает первичный расчёт стоимости строительства по вашим параметрам: фундамент, коробка, кровля, отделка. Вы получаете смету с разбивкой по этапам.
    back
    Корректировка и утверждение сметы
    При необходимости вносим изменения — например, замену материалов или сокращение этапов. После согласования формируется окончательная фиксированная смета.
    back
    Заключение договора и старт работ
    После утверждения сметы заключаем официальный договор с гарантией. Вы получаете прозрачный график и точную стоимость — без скрытых расходов.

    Заказать конусльтацию по:Загородный дом — СК-86

    Фото 1 Загородный дом — СК-86


      Наши
      контакты

      Дмитров
      Опорный проезд 28Б
      (индустриальный парк Ниагара)
      9:00 до 18:00

      Корзина