4.9
Рейтинг на основании 120 отзывов
Дмитров
Опорный проезд 28Б
(индустриальный парк Ниагара)
Бренд "Дмитров-Дело" c 2008 года на рынке строительства в Дмитрове
Звоните 9:00 до 18:00 8 (915) 055-33-61
Бренд "Дмитров-Дело" c 2008 года на рынке строительства в Дмитрове

Загородный дом Сселигер

Стоимость проекта от:
33 300 ₽
Стоимость строительства от:
4 533 980 ₽
Артикул ART-14419
Дата 25.12.2025
Архитектурный стиль Барнхаус
Количество надземных этажей 1
Круглогодичное проживание Да
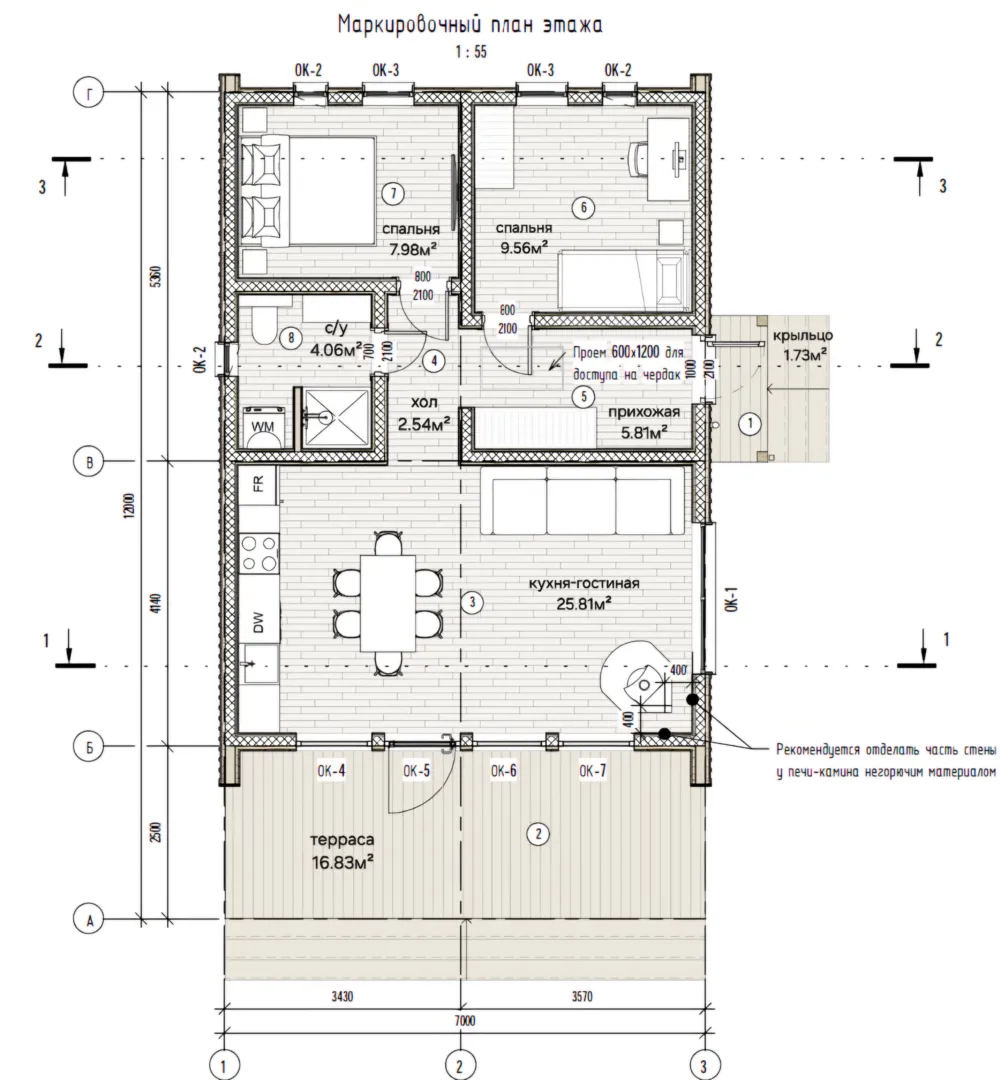
Площадь дома 74 м2
Санузлы 1
Спальни 2

Описание

Загородный дом Сселигер – это настоящий оазис уюта и гармонии в стиле барнхаус. Внешний вид напоминает старинную фермерскую усадьбу, однако внутри вы найдёте все удобства современного жилья: открытые площадки, естественное освещение и, главное, одно изокровной планировки, позволяющей без лишних перегородок удобно организовать пространство для семьи или гостей. Плотно обустроенное чердачное помещение добавит вам возможностей для хранения или же превратится в уютный детский зал, офис или место для хобби. Климатически непривязанный, этот дом рассчитан на круглогодичное проживание: утепленный каркасно‑панельный стеновой облик и надёжная двускатная крыша сохранят тепло в холодные дни и обеспечат прохладу летом. Терраса открывает прекрасные виды на окрестную природу и становится идеальным местом для семейных барбекю, вечерних бесед или тихой чашки кофе под открытым небом. Без фурнитуры традиционных балконов и веранд хозяева могут свободно использовать всю площадь дома для творчества и создания приватных уголков. Выбирая Сселигер, вы открываете дверь в мир простоты, комфорта и настоящего уединения. Идеальное решение для тех, кто ищет гармоничное сочетание исторической эстетики и современных удобств, а также желает жить вдали от городской суеты – но при этом с доступом ко всем необходимым услугам и инфраструктуре. Ваш новый дом ждёт вас, готовый стать местом, где каждая деталь создаёт ощущение дома и вдохновение для новых начинаний.

Характеристики дома

Архитектурный стиль
Барнхаус
Автоматизированное регулирование параметров теплоносителя
Да
Балконы/лоджии
Отсутствуют
Чердачное помещение
Да
Датчики протечки воды
Нет
Эксплуатируемая или зеленая кровля
Нет
Электроснабжение
Центральное
Газоснабжение
Не предусмотрено
Изоляция воздушного шума
Нет
Камин
Да
Класс энергоэффективности
A
Класс энергосбережения
A
Количество надземных этажей
1
Круглогодичное проживание
Да
Материал кровли
Металлические листовые гофрированные профили
Материал перекрытий
Деревянные
Материал внешних стен
Каркасно-панельная технология
Материал внутренних перегородок
Деревянные
Модульное строительство с конструкциями заводского изготовления
Нет
Объем надземной части
175 м3
Основной материал фасадов
Дерево
Отопление
Индивидуальное
Площадь дома
74 м2
Площадь застройки
86 м2
Подвальное помещение
Нет
Показатель компактности здания
0.82
Приборы учета тепловой энергии
Нет
Пристроенный гараж/крытая автостоянка
Нет
Противопожарная система
Нет
Санузлы
1
Совмещенная кухня-гостиная
Да
Спальни
2
Терраса
Да
Тип фундамента
Свайный
Тип кровли
Двускатная
Толщина внешних стен
277 мм
Толщина внутренних перегородок
239 мм
Улучшенные шумовые характеристики
Нет
Вентиляция
Естественная
Веранда
Нет
Водоотведение
Локальные очистные сооружения
Водоснабжение
Индивидуальное
Высота дома
5.5 м
Высота потолков
2.7 м

Планировка

Фасад дома

Александр

Закажите выезд инженера

Александр

Выездной инженер
Закажите выезд инженера для точной диагностики и профессиональной консультации по инженерным системам. Специалист приедет в удобное время, проведёт осмотр, рассчитает стоимость работ и подберёт оптимальные решения для вашего дома.


    Похожие проекты

    Ипотека и
    рассрочка
    24ПФ06.00 Дом от Строй и Живи
    Стоимость от:
    6 782 490
    Проект от: 52 650
    Этажей 1
    Санузлы 2
    Спальни 3
    Смотреть
    Ипотека и
    рассрочка
    Одноэтажный дом София
    Стоимость от:
    7 273 860
    Проект от: 46 350
    Этажей 1
    Санузлы 2
    Спальни 3
    Смотреть
    Ипотека и
    рассрочка
    Проект 4
    Стоимость от:
    9 016 560
    Проект от: 58 050
    Этажей 2
    Санузлы 3
    Спальни 4
    Смотреть
    Ипотека и
    рассрочка
    Проект Жванецкого
    Стоимость от:
    4 889 500
    Проект от: 29 250
    Этажей 1
    Санузлы 1
    Спальни 3
    Смотреть
    Ипотека и
    рассрочка
    02-24 ДО 11,73х12,92/143,12
    Стоимость от:
    6 376 700
    Проект от: 49 500
    Этажей 1
    Санузлы 2
    Спальни 3
    Смотреть
    Ипотека и
    рассрочка
    86,80
    Стоимость от:
    5 974 100
    Проект от: 33 750
    Этажей 1
    Санузлы 1
    Спальни 2
    Смотреть

    Как узнать стоимость дома

    back
    Оставляете заявку
    Вы заполняете форму на сайте или звоните нам. Менеджер Лайвкрафт связывается с вами для уточнения деталей: тип дома, площадь, материалы, участок строительства.
    back
    Консультация и подбор решения
    Наш специалист помогает выбрать оптимальный тип дома и конструкцию с учётом бюджета, сроков и целей — будь то дом для постоянного проживания или дача.
    back
    Расчёт предварительной стоимости
    Инженер делает первичный расчёт стоимости строительства по вашим параметрам: фундамент, коробка, кровля, отделка. Вы получаете смету с разбивкой по этапам.
    back
    Корректировка и утверждение сметы
    При необходимости вносим изменения — например, замену материалов или сокращение этапов. После согласования формируется окончательная фиксированная смета.
    back
    Заключение договора и старт работ
    После утверждения сметы заключаем официальный договор с гарантией. Вы получаете прозрачный график и точную стоимость — без скрытых расходов.

    Заказать конусльтацию по:Загородный дом Сселигер

    Фото 1 Загородный дом Сселигер


      Наши
      контакты

      Дмитров
      Опорный проезд 28Б
      (индустриальный парк Ниагара)
      9:00 до 18:00