4.9
Рейтинг на основании 120 отзывов
Дмитров
Опорный проезд 28Б
(индустриальный парк Ниагара)
Бренд "Дмитров-Дело" c 2008 года на рынке строительства в Дмитрове
Звоните 9:00 до 18:00 8 (915) 055-33-61
Бренд "Дмитров-Дело" c 2008 года на рынке строительства в Дмитрове

Загородный дом Татьяна К-300

Стоимость проекта от:
55 800 ₽
БЕСПЛАТНО! ПРИ ЗАКАЗЕ СТРОИТЕЛЬСТВА
Стоимость строительства от:
8 484 080 ₽
Артикул ART-2219
Дата 26.12.2025
Архитектурный стиль Русский
Количество надземных этажей 1
Круглогодичное проживание Да
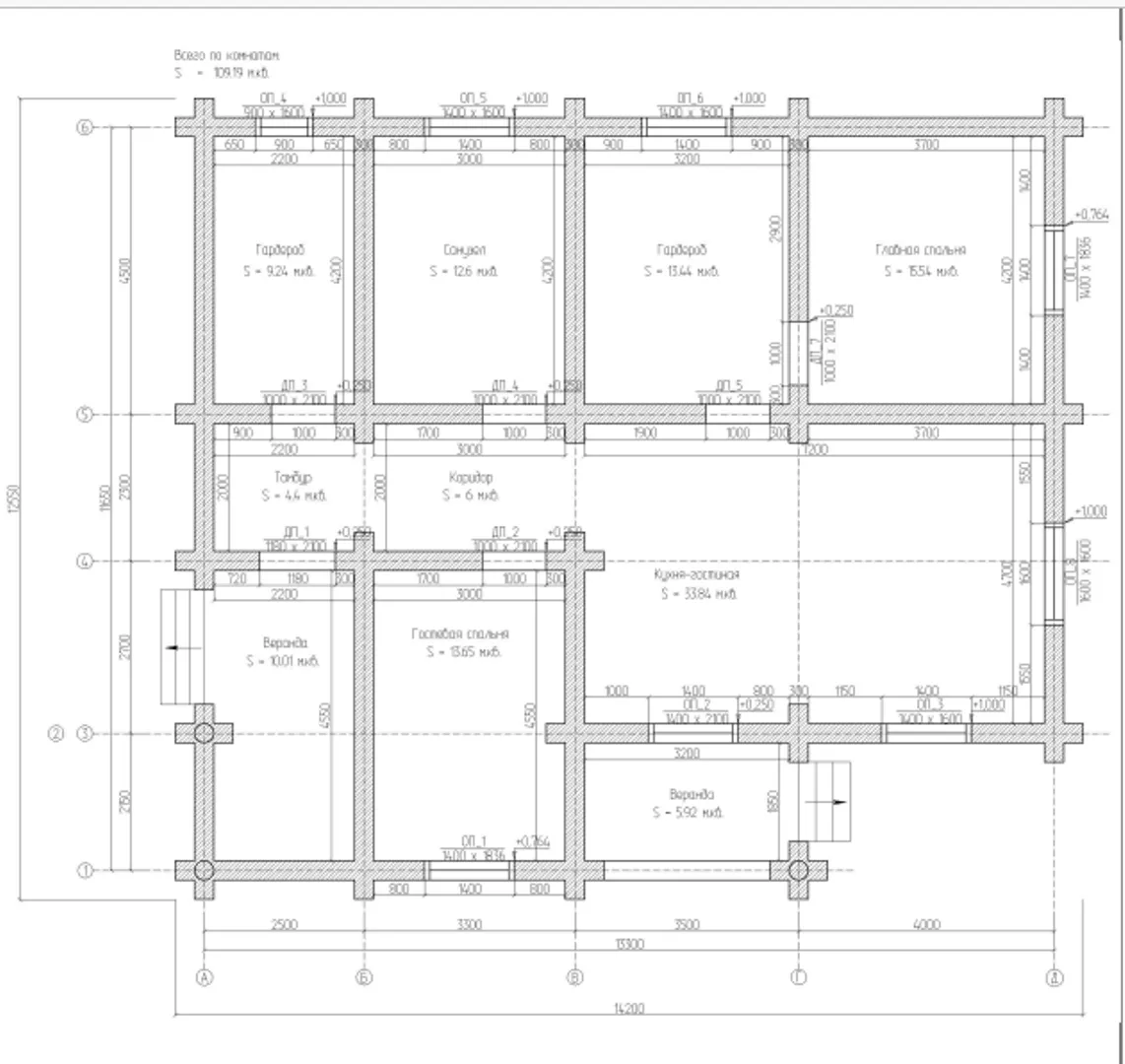
Площадь дома 124 м2
Санузлы 1
Спальни 2

Описание

Вас приветствует уютный загородный дом «Татьяна К‑300» – воплощение традиционной русской архитектуры, где каждая деталь пронизана теплом и вниманием к деталям. Одноэтажный дом, выполненный из натуральных срубовых конструкций, обрамлён просторной верандой, приглашая к простому отдыху на свежем воздухе. Двускатная крыша и просторный чердачный уголок создают ощущение открытого пространства, позволяя вам наслаждаться светом и прохладой даже в самые жаркие летние дни. Круглогодичное проживание гарантирует комфорт в любое время года: утеплённые стенки и качественная изоляция сохранят тепло в холодных ночах, а естественный свет, проникающий сквозь большие окна, создаст ощущение тепла и уюта. Несмотря на отсутствие прицепных гаражей, вы сможете спокойно хранить свой автомобиль в открытом пространстве, не нарушив гармоничности дома. «Татьяна К-300» – это идеальное сочетание русской традиции и современных удобств, созданное для того, чтобы каждый день вы находили в нём мгновенную радость и умиротворение.

Характеристики дома

Архитектурный стиль
Автоматизированное регулирование параметров теплоносителя
-
Балконы/лоджии
Отсутствуют
Чердачное помещение
Да
Датчики протечки воды
-
Эксплуатируемая или зеленая кровля
-
Электроснабжение
Центральное
Газоснабжение
Не предусмотрено
Изоляция воздушного шума
-
Камин
Нет
Класс энергоэффективности
-
Класс энергосбережения
-
Количество надземных этажей
1
Круглогодичное проживание
Да
Материал кровли
Битумная черепица
Материал перекрытий
Деревянные
Материал внешних стен
Материал внутренних перегородок
Деревянные
Модульное строительство с конструкциями заводского изготовления
Нет
Объем надземной части
820 м3
Основной материал фасадов
Дерево
Отопление
Индивидуальное
Площадь дома
124 м2
Площадь застройки
180 м2
Подвальное помещение
Нет
Показатель компактности здания
-
Приборы учета тепловой энергии
-
Пристроенный гараж/крытая автостоянка
Нет
Противопожарная система
Нет
Санузлы
1
Совмещенная кухня-гостиная
Да
Спальни
2
Терраса
Нет
Тип фундамента
Плитный
Тип кровли
Толщина внешних стен
300 мм
Толщина внутренних перегородок
300 мм
Улучшенные шумовые характеристики
-
Вентиляция
Естественная
Веранда
Да
Водоотведение
Локальные очистные сооружения
Водоснабжение
Индивидуальное
Высота дома
6.33 м
Высота потолков
3.08 м

Планировка

Фасад дома

Александр

Закажите выезд инженера

Александр

Выездной инженер
Закажите выезд инженера для точной диагностики и профессиональной консультации по инженерным системам. Специалист приедет в удобное время, проведёт осмотр, рассчитает стоимость работ и подберёт оптимальные решения для вашего дома.


    Похожие проекты

    Ипотека и
    рассрочка
    Генуя
    Стоимость от:
    6 581 300
    Проект от: 38 250
    Этажей 1
    Санузлы 1
    Спальни 3
    Смотреть
    Ипотека и
    рассрочка
    Дом 1 этажный ХайТек 120
    Стоимость от:
    7 320 940
    Проект от: 48 150
    Этажей 1
    Санузлы 2
    Спальни 3
    Смотреть
    Ипотека и
    рассрочка
    Одноэтажный дом FIXPLANS — 1799
    Стоимость от:
    8 820 680
    Проект от: 51 300
    Этажей 1
    Санузлы 2
    Спальни 3
    Смотреть
    Ипотека и
    рассрочка
    Одно этажный брусовый дом с террасой
    Стоимость от:
    11 295 240
    Проект от: 63 900
    Этажей 1
    Санузлы 1
    Спальни 3
    Смотреть
    Ипотека и
    рассрочка
    Дом из CLT «Монако»
    Стоимость от:
    1 422 000
    Проект от: 135 000
    Этажей 2
    Санузлы 2
    Спальни 4
    Смотреть
    Ипотека и
    рассрочка
    Индивидуальный жилой дом площадью 60м²
    Стоимость от:
    4 782 800
    Проект от: 27 000
    Этажей 1
    Санузлы 1
    Спальни 2
    Смотреть

    Как узнать стоимость дома

    back
    Оставляете заявку
    Вы заполняете форму на сайте или звоните нам. Менеджер Лайвкрафт связывается с вами для уточнения деталей: тип дома, площадь, материалы, участок строительства.
    back
    Консультация и подбор решения
    Наш специалист помогает выбрать оптимальный тип дома и конструкцию с учётом бюджета, сроков и целей — будь то дом для постоянного проживания или дача.
    back
    Расчёт предварительной стоимости
    Инженер делает первичный расчёт стоимости строительства по вашим параметрам: фундамент, коробка, кровля, отделка. Вы получаете смету с разбивкой по этапам.
    back
    Корректировка и утверждение сметы
    При необходимости вносим изменения — например, замену материалов или сокращение этапов. После согласования формируется окончательная фиксированная смета.
    back
    Заключение договора и старт работ
    После утверждения сметы заключаем официальный договор с гарантией. Вы получаете прозрачный график и точную стоимость — без скрытых расходов.

    Заказать конусльтацию по:Загородный дом Татьяна К-300

    Фото 1 Загородный дом Татьяна К-300


      Наши
      контакты

      Дмитров
      Опорный проезд 28Б
      (индустриальный парк Ниагара)
      9:00 до 18:00

      Корзина