4.9
Рейтинг на основании 120 отзывов
Дмитров
Опорный проезд 28Б
(индустриальный парк Ниагара)
Бренд "Дмитров-Дело" c 2008 года на рынке строительства в Дмитрове
Звоните 9:00 до 18:00 8 (915) 055-33-61
Бренд "Дмитров-Дело" c 2008 года на рынке строительства в Дмитрове

Загородный дом — Тип 2

Стоимость проекта от:
42 750 ₽
БЕСПЛАТНО! ПРИ ЗАКАЗЕ СТРОИТЕЛЬСТВА
Стоимость строительства от:
7 562 500 ₽
Артикул ART-11754
Дата 25.12.2025
Архитектурный стиль Европейский
Количество надземных этажей 1
Круглогодичное проживание Да
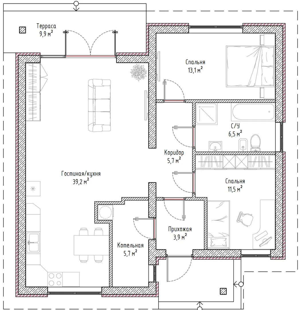
Площадь дома 95 м2
Санузлы 1
Спальни 2

Описание

Загородный дом-тип 2, построенный в изысканном европейском стиле, – это настоящий уголок уюта, где архитектура встречается с природой. Стиль дома отличается элегантностью фасада, классическими линиями крыши и гармоничными пропорциями, создающими ощущение тепла и спокойствия. Одноэтажный дом сконструирован из газобетонных блоков – прочного и энергоэффективного материала, который обеспечивает теплоизоляцию и устойчивость к климатическим нагрузкам. Четырехскатная, вальмовая крыша добавляет изюминку, отбрасывая мягкие тени и защищая пространство от непогоды. Отсюда открывается просторная терраса, где можно наслаждаться закатами, обедать и пить кофе на свежем воздухе, а также проводить приятные вечера в компании близких. Без балконов, веранд и прицепного гаража дом оставляет больше места для вашего воображения: можно развести зимний сад, оформить детскую игровую площадку или просто украсить задний двор садами. Круглогодичное проживание обеспечивается не только качественной теплоизоляцией, но и продуманным внутренним планированием, позволяющим удобно жить в любой сезон. Эпоха удобства и уединения сочетается в каждом квадратном метре – от уютной гостиной до светлой кухни и удобных спальных комнат. Дом, открывающийся на бесконечные рощи и зеленые просторы, станет вашим убежищем от суеты города, местом для творческого вдохновения и отдыха всей семьи. Здесь каждый найдет своё место для силы, гармонии и радости – ведь настоящий уголок не просто живет под ветром, он дышит и зовёт своим гостеприимством.

Характеристики дома

Архитектурный стиль
Автоматизированное регулирование параметров теплоносителя
Нет
Балконы/лоджии
Отсутствуют
Чердачное помещение
Нет
Датчики протечки воды
Нет
Эксплуатируемая или зеленая кровля
Нет
Электроснабжение
Центральное
Газоснабжение
Центральное
Изоляция воздушного шума
Да
Камин
Нет
Класс энергоэффективности
-
Класс энергосбережения
-
Количество надземных этажей
1
Круглогодичное проживание
Да
Материал кровли
Металлочерепица
Материал перекрытий
Деревянные
Материал внешних стен
Материал внутренних перегородок
Блочные
Модульное строительство с конструкциями заводского изготовления
Нет
Объем надземной части
-
Основной материал фасадов
Штукатурка
Отопление
Индивидуальное
Площадь дома
95 м2
Площадь застройки
105 м2
Подвальное помещение
Нет
Показатель компактности здания
-
Приборы учета тепловой энергии
Нет
Пристроенный гараж/крытая автостоянка
Нет
Противопожарная система
Нет
Санузлы
1
Совмещенная кухня-гостиная
Да
Спальни
2
Терраса
Да
Тип фундамента
Ленточный
Толщина внешних стен
400 мм
Толщина внутренних перегородок
200 мм
Улучшенные шумовые характеристики
Да
Вентиляция
Естественная
Веранда
Нет
Водоотведение
Локальные очистные сооружения
Водоснабжение
Индивидуальное
Высота дома
6.6 м
Высота потолков
3 м

Планировка

Фасад дома

Александр

Закажите выезд инженера

Александр

Выездной инженер
Закажите выезд инженера для точной диагностики и профессиональной консультации по инженерным системам. Специалист приедет в удобное время, проведёт осмотр, рассчитает стоимость работ и подберёт оптимальные решения для вашего дома.


    Похожие проекты

    Ипотека и
    рассрочка
    НОРДВЕЙ 115 с террасой
    Стоимость от:
    6 393 805
    Проект от: 45 450
    Этажей 1
    Санузлы 1
    Спальни 3
    Смотреть
    Ипотека и
    рассрочка
    Одноэтажный дом Fixplans — 1979
    Стоимость от:
    13 064 700
    Проект от: 83 250
    Этажей 1
    Санузлы 2
    Спальни 3
    Смотреть
    Ипотека и
    рассрочка
    Загородный дом из газобетона «L»
    Стоимость от:
    13 390 800
    Проект от: 87 750
    Этажей 2
    Санузлы 3
    Спальни 5
    Смотреть
    Ипотека и
    рассрочка
    Индивидуальный жилой дом 831-13-10/22-АР
    Стоимость от:
    9 765 800
    Проект от: 58 500
    Этажей 1
    Санузлы 2
    Спальни 2
    Смотреть
    Ипотека и
    рассрочка
    D198-1
    Стоимость от:
    8 360 880
    Проект от: 55 800
    Этажей 1
    Санузлы 2
    Спальни 3
    Смотреть
    Ипотека и
    рассрочка
    Балтика КД24/09/01-1Д
    Стоимость от:
    6 202 790
    Проект от: 48 150
    Этажей 1
    Санузлы 2
    Спальни 3
    Смотреть

    Как узнать стоимость дома

    back
    Оставляете заявку
    Вы заполняете форму на сайте или звоните нам. Менеджер Лайвкрафт связывается с вами для уточнения деталей: тип дома, площадь, материалы, участок строительства.
    back
    Консультация и подбор решения
    Наш специалист помогает выбрать оптимальный тип дома и конструкцию с учётом бюджета, сроков и целей — будь то дом для постоянного проживания или дача.
    back
    Расчёт предварительной стоимости
    Инженер делает первичный расчёт стоимости строительства по вашим параметрам: фундамент, коробка, кровля, отделка. Вы получаете смету с разбивкой по этапам.
    back
    Корректировка и утверждение сметы
    При необходимости вносим изменения — например, замену материалов или сокращение этапов. После согласования формируется окончательная фиксированная смета.
    back
    Заключение договора и старт работ
    После утверждения сметы заключаем официальный договор с гарантией. Вы получаете прозрачный график и точную стоимость — без скрытых расходов.

    Заказать конусльтацию по:Загородный дом — Тип 2

    Фото 1 Загородный дом — Тип 2


      Наши
      контакты

      Дмитров
      Опорный проезд 28Б
      (индустриальный парк Ниагара)
      9:00 до 18:00

      Корзина