4.9
Рейтинг на основании 120 отзывов
Дмитров
Опорный проезд 28Б
(индустриальный парк Ниагара)
Бренд "Дмитров-Дело" c 2008 года на рынке строительства в Дмитрове
Звоните 9:00 до 18:00 8 (915) 055-33-61
Бренд "Дмитров-Дело" c 2008 года на рынке строительства в Дмитрове

Загородный дом В-222

Стоимость проекта от:
46 800 ₽
БЕСПЛАТНО! ПРИ ЗАКАЗЕ СТРОИТЕЛЬСТВА
Стоимость строительства от:
8 277 280 ₽
Артикул ART-12940
Дата 25.12.2025
Архитектурный стиль Европейский
Количество надземных этажей 1
Круглогодичное проживание Да
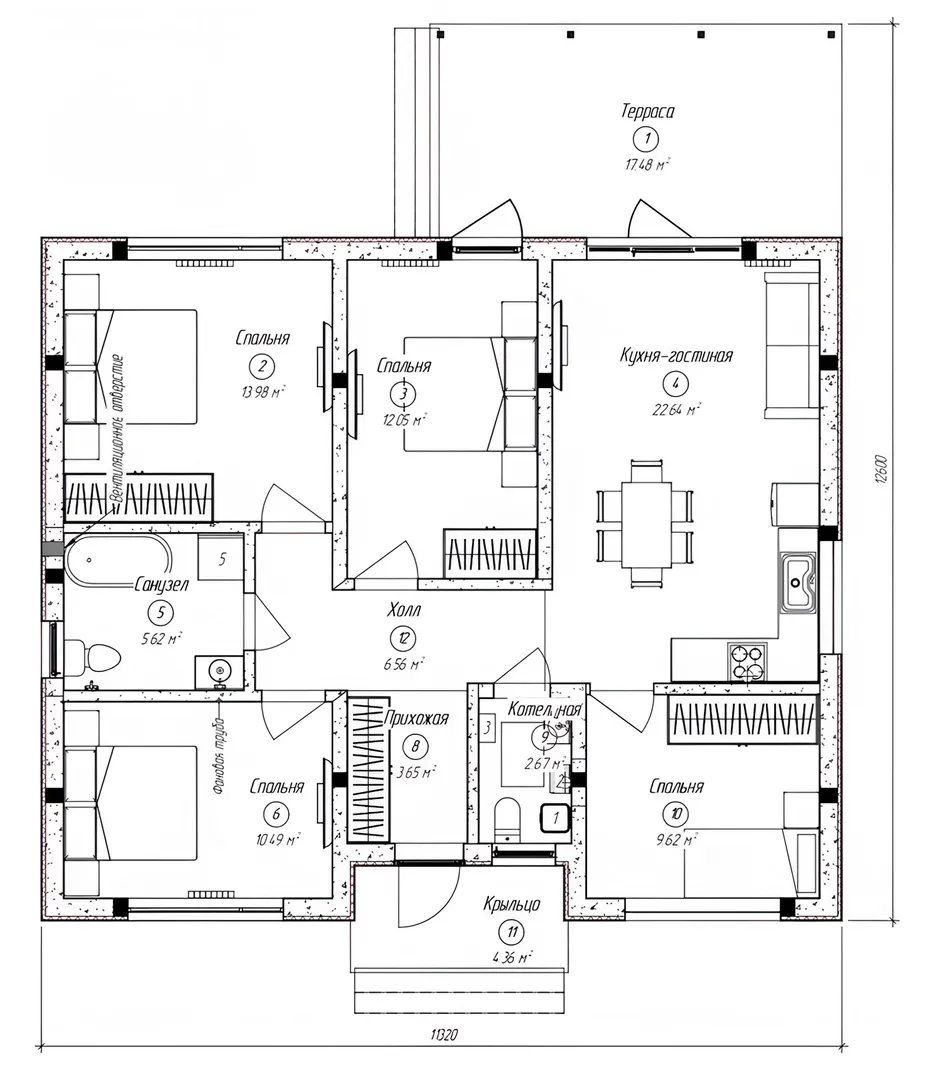
Площадь дома 104 м2
Санузлы 1
Спальни 4

Описание

Дом семейного уюта, который словно вышел из живописных европейских усадебных кварталов, приглашает вас шагнуть в мир гармонии и спокойствия. Содержащий только один надземный этаж, он идеально подходит для круглогодичного проживания: от просторного гостинного зала до уютного спальника, где шум города становится лишь отдалённой тенью. Стеклянные стены, выполненные из газобетонного блока, придают фасаду лёгкость и светлое настроение, а четыре скатных крыши в вальмовой системе не только подчёркивают европейский стиль, но и обеспечивают надёжную защиту от непогоды. Терраса, выходящая с задней части дома, – это собственный оазис; здесь можно устроить барбекю в летнюю жару, насладиться утренним кофе у прохладного ветра или простым отдыхом после долгого дня. Отсутствие балконов и веранд не убавляет привлекательности: на их месте создаётся целый просторный открытый двор с зелёной растительностью и возможностью устроить собственный сад. Благодаря отсутствию прибрежных гаражей, автостоянки и чердачных помещений, пространство внутри освобождается для ваших личных проектов и дизайна. Покорите эту маленькую жемчужину, в которой каждая деталь продумана с любовью к комфорту и эстетике. Пространство, материалы и архитектура гармонично сочетаются, создавая домашний уголок, где хочется жить и возвращаться. Не упустите шанс стать владельцем этого уникального дома, где европейский шарм и современное удобство встречаются воедино.

Характеристики дома

Архитектурный стиль
Автоматизированное регулирование параметров теплоносителя
Нет
Балконы/лоджии
Отсутствуют
Чердачное помещение
Нет
Датчики протечки воды
Нет
Эксплуатируемая или зеленая кровля
Нет
Электроснабжение
Центральное
Газоснабжение
Не предусмотрено
Изоляция воздушного шума
Нет
Камин
Нет
Класс энергоэффективности
-
Класс энергосбережения
-
Количество надземных этажей
1
Круглогодичное проживание
Да
Материал кровли
Металлочерепица
Материал перекрытий
Деревянные
Материал внешних стен
Материал внутренних перегородок
Блочные
Модульное строительство с конструкциями заводского изготовления
Нет
Объем надземной части
298 м3
Основной материал фасадов
Штукатурка
Отопление
Индивидуальное
Площадь дома
104 м2
Площадь застройки
109 м2
Подвальное помещение
Нет
Показатель компактности здания
-
Приборы учета тепловой энергии
Нет
Пристроенный гараж/крытая автостоянка
Нет
Противопожарная система
Нет
Санузлы
1
Совмещенная кухня-гостиная
Да
Спальни
4
Терраса
Да
Тип фундамента
Ленточный
Толщина внешних стен
300 мм
Толщина внутренних перегородок
120 мм
Улучшенные шумовые характеристики
Нет
Вентиляция
Естественная
Веранда
Нет
Водоотведение
Локальные очистные сооружения
Водоснабжение
2 варианта
Высота дома
5 м
Высота потолков
2.8 м

Планировка

Фасад дома

Александр

Закажите выезд инженера

Александр

Выездной инженер
Закажите выезд инженера для точной диагностики и профессиональной консультации по инженерным системам. Специалист приедет в удобное время, проведёт осмотр, рассчитает стоимость работ и подберёт оптимальные решения для вашего дома.


    Похожие проекты

    Ипотека и
    рассрочка
    Дом в стиле Барнхаус
    Стоимость от:
    7 762 320
    Проект от: 50 850
    Этажей 2
    Санузлы 2
    Спальни 2
    Смотреть
    Ипотека и
    рассрочка
    Загородный дом АС-247
    Стоимость от:
    13 688 640
    Проект от: 88 200
    Этажей 2
    Санузлы 2
    Спальни 4
    Смотреть
    Ипотека и
    рассрочка
    Каменный дом Vento
    Стоимость от:
    8 060 690
    Проект от: 57 150
    Этажей 1
    Санузлы 1
    Спальни 3
    Смотреть
    Ипотека и
    рассрочка
    Авторский проект «Сейнав»
    Стоимость от:
    9 251 220
    Проект от: 58 950
    Этажей 1
    Санузлы 1
    Спальни 2
    Смотреть
    Ипотека и
    рассрочка
    Одноэтажный дом FIXPLANS — 2105
    Стоимость от:
    9 945 100
    Проект от: 56 250
    Этажей 1
    Санузлы 1
    Спальни 2
    Смотреть
    Ипотека и
    рассрочка
    Одноэтажный жилой дом СВ-130 в декоративной штукатурке
    Стоимость от:
    8 347 240
    Проект от: 54 900
    Этажей 1
    Санузлы 1
    Спальни 3
    Смотреть

    Как узнать стоимость дома

    back
    Оставляете заявку
    Вы заполняете форму на сайте или звоните нам. Менеджер Лайвкрафт связывается с вами для уточнения деталей: тип дома, площадь, материалы, участок строительства.
    back
    Консультация и подбор решения
    Наш специалист помогает выбрать оптимальный тип дома и конструкцию с учётом бюджета, сроков и целей — будь то дом для постоянного проживания или дача.
    back
    Расчёт предварительной стоимости
    Инженер делает первичный расчёт стоимости строительства по вашим параметрам: фундамент, коробка, кровля, отделка. Вы получаете смету с разбивкой по этапам.
    back
    Корректировка и утверждение сметы
    При необходимости вносим изменения — например, замену материалов или сокращение этапов. После согласования формируется окончательная фиксированная смета.
    back
    Заключение договора и старт работ
    После утверждения сметы заключаем официальный договор с гарантией. Вы получаете прозрачный график и точную стоимость — без скрытых расходов.

    Заказать конусльтацию по:Загородный дом В-222

    Фото 1 Загородный дом В-222


      Наши
      контакты

      Дмитров
      Опорный проезд 28Б
      (индустриальный парк Ниагара)
      9:00 до 18:00

      Корзина