4.9
Рейтинг на основании 120 отзывов
Дмитров
Опорный проезд 28Б
(индустриальный парк Ниагара)
Бренд "Дмитров-Дело" c 2008 года на рынке строительства в Дмитрове
Звоните 9:00 до 18:00 8 (915) 055-33-61
Бренд "Дмитров-Дело" c 2008 года на рынке строительства в Дмитрове

Загородный дом Виноградный

Стоимость проекта от:
33 300 ₽
БЕСПЛАТНО! ПРИ ЗАКАЗЕ СТРОИТЕЛЬСТВА
Стоимость строительства от:
5 542 560 ₽
Артикул ART-15750
Дата 25.12.2025
Архитектурный стиль Классический
Количество надземных этажей 2
Круглогодичное проживание Да
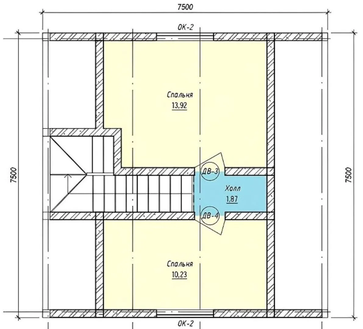
Площадь дома 74 м2
Санузлы 1
Спальни 3

Описание

Откройте для себя истинный уют загородной жизни в доме «Виноградный», где каждая деталь пронизана классическим шармом. Расположенный в живописном уголке, он сочетает два надземных этажа, создавая достаточно пространства для семьи разных возрастов, а круглогодичное проживание гарантирует комфорт даже в самые холодные месяцы. Тело дома облицовано прочными керамзитобетонными блоками, что обеспечивает тепло и звукоизоляцию, а двускатная крыша придает зданию строгий, но аутентичный облик. Этот дом – идеальный баланс между практичностью и эстетикой. Несмотря на отсутствие внешних балконов, веранд и гаражей, каждая комната наполнена светом благодаря проработанным окнам, а внутренний план предусматривает открытые соединения, которые создают ощущение простора и свободы. Завораживающая перспектива виноградных грядок, живущих вдоль участка, добавляет особую глубину и романтику в повседневную жизнь. В «Виноградном» вы сможете насладиться тихими вечерами под звёздным небом и завтракать надёжно, зная, что ваш дом - это крепость от внешних влияний. Таким образом, «Виноградный» – это не просто здание, а пространство, где классическая эстетика соединяется с высокими стандартами комфорта, создавая идеальное место для тех, кто ценит спокойствие, эстетичность и функциональность в одном элегантном пакете.

Характеристики дома

Архитектурный стиль
Автоматизированное регулирование параметров теплоносителя
Нет
Балконы/лоджии
Отсутствуют
Чердачное помещение
Нет
Датчики протечки воды
Нет
Эксплуатируемая или зеленая кровля
Нет
Электроснабжение
Индивидуальное
Газоснабжение
Не предусмотрено
Изоляция воздушного шума
Нет
Камин
Нет
Класс энергоэффективности
-
Класс энергосбережения
-
Количество надземных этажей
2
Круглогодичное проживание
Да
Материал кровли
Металлочерепица
Материал перекрытий
Монолитные железобетонные
Материал внешних стен
Материал внутренних перегородок
Блочные
Модульное строительство с конструкциями заводского изготовления
Нет
Объем надземной части
-
Основной материал фасадов
Штукатурка
Отопление
Индивидуальное
Площадь дома
74 м2
Площадь застройки
56 м2
Подвальное помещение
Нет
Показатель компактности здания
-
Приборы учета тепловой энергии
Нет
Пристроенный гараж/крытая автостоянка
Нет
Противопожарная система
Нет
Санузлы
1
Совмещенная кухня-гостиная
Да
Спальни
3
Терраса
Нет
Тип фундамента
Ленточный
Тип кровли
Толщина внешних стен
200 мм
Толщина внутренних перегородок
200 мм
Улучшенные шумовые характеристики
Нет
Вентиляция
2 варианта
Веранда
Нет
Водоотведение
Локальные очистные сооружения
Водоснабжение
Индивидуальное
Высота дома
6.91 м
Высота потолков
2.8 м

Планировка

Фасад дома

Александр

Закажите выезд инженера

Александр

Выездной инженер
Закажите выезд инженера для точной диагностики и профессиональной консультации по инженерным системам. Специалист приедет в удобное время, проведёт осмотр, рассчитает стоимость работ и подберёт оптимальные решения для вашего дома.


    Похожие проекты

    Ипотека и
    рассрочка
    Дом ИЖС 100/Р
    Стоимость от:
    8 403 780
    Проект от: 53 550
    Этажей 1
    Санузлы 1
    Спальни 3
    Смотреть
    Ипотека и
    рассрочка
    LAGOM
    Стоимость от:
    6 338 970
    Проект от: 51 300
    Этажей 1
    Санузлы 1
    Спальни 3
    Смотреть
    Ипотека и
    рассрочка
    «Ромашка» Двухэтажный дом 7.5х7.5 с террасой
    Стоимость от:
    7 385 280
    Проект от: 50 400
    Этажей 2
    Санузлы 2
    Спальни 4
    Смотреть
    Ипотека и
    рассрочка
    Дом Wi-KiNG 5300
    Стоимость от:
    4 985 420
    Проект от: 38 700
    Этажей 1
    Санузлы 1
    Спальни 2
    Смотреть
    Ипотека и
    рассрочка
    Nordic 157
    Стоимость от:
    10 619 640
    Проект от: 72 450
    Этажей 2
    Санузлы 2
    Спальни 4
    Смотреть
    Ипотека и
    рассрочка
    Йонкерс
    Стоимость от:
    8 199 360
    Проект от: 53 550
    Этажей 2
    Санузлы 2
    Спальни 5
    Смотреть

    Как узнать стоимость дома

    back
    Оставляете заявку
    Вы заполняете форму на сайте или звоните нам. Менеджер Лайвкрафт связывается с вами для уточнения деталей: тип дома, площадь, материалы, участок строительства.
    back
    Консультация и подбор решения
    Наш специалист помогает выбрать оптимальный тип дома и конструкцию с учётом бюджета, сроков и целей — будь то дом для постоянного проживания или дача.
    back
    Расчёт предварительной стоимости
    Инженер делает первичный расчёт стоимости строительства по вашим параметрам: фундамент, коробка, кровля, отделка. Вы получаете смету с разбивкой по этапам.
    back
    Корректировка и утверждение сметы
    При необходимости вносим изменения — например, замену материалов или сокращение этапов. После согласования формируется окончательная фиксированная смета.
    back
    Заключение договора и старт работ
    После утверждения сметы заключаем официальный договор с гарантией. Вы получаете прозрачный график и точную стоимость — без скрытых расходов.

    Заказать конусльтацию по:Загородный дом Виноградный

    Фото 1 Загородный дом Виноградный


      Наши
      контакты

      Дмитров
      Опорный проезд 28Б
      (индустриальный парк Ниагара)
      9:00 до 18:00

      Корзина