4.9
Рейтинг на основании 120 отзывов
Дмитров
Опорный проезд 28Б
(индустриальный парк Ниагара)
Бренд "Дмитров-Дело" c 2008 года на рынке строительства в Дмитрове
Звоните 9:00 до 18:00 8 (915) 055-33-61
Бренд "Дмитров-Дело" c 2008 года на рынке строительства в Дмитрове

Загородный дом «Владимир»

Стоимость проекта от:
26 550 ₽
Стоимость строительства от:
3 534 360 ₽
Артикул ART-14381
Дата 25.12.2025
Архитектурный стиль Европейский
Количество надземных этажей 2
Круглогодичное проживание Да
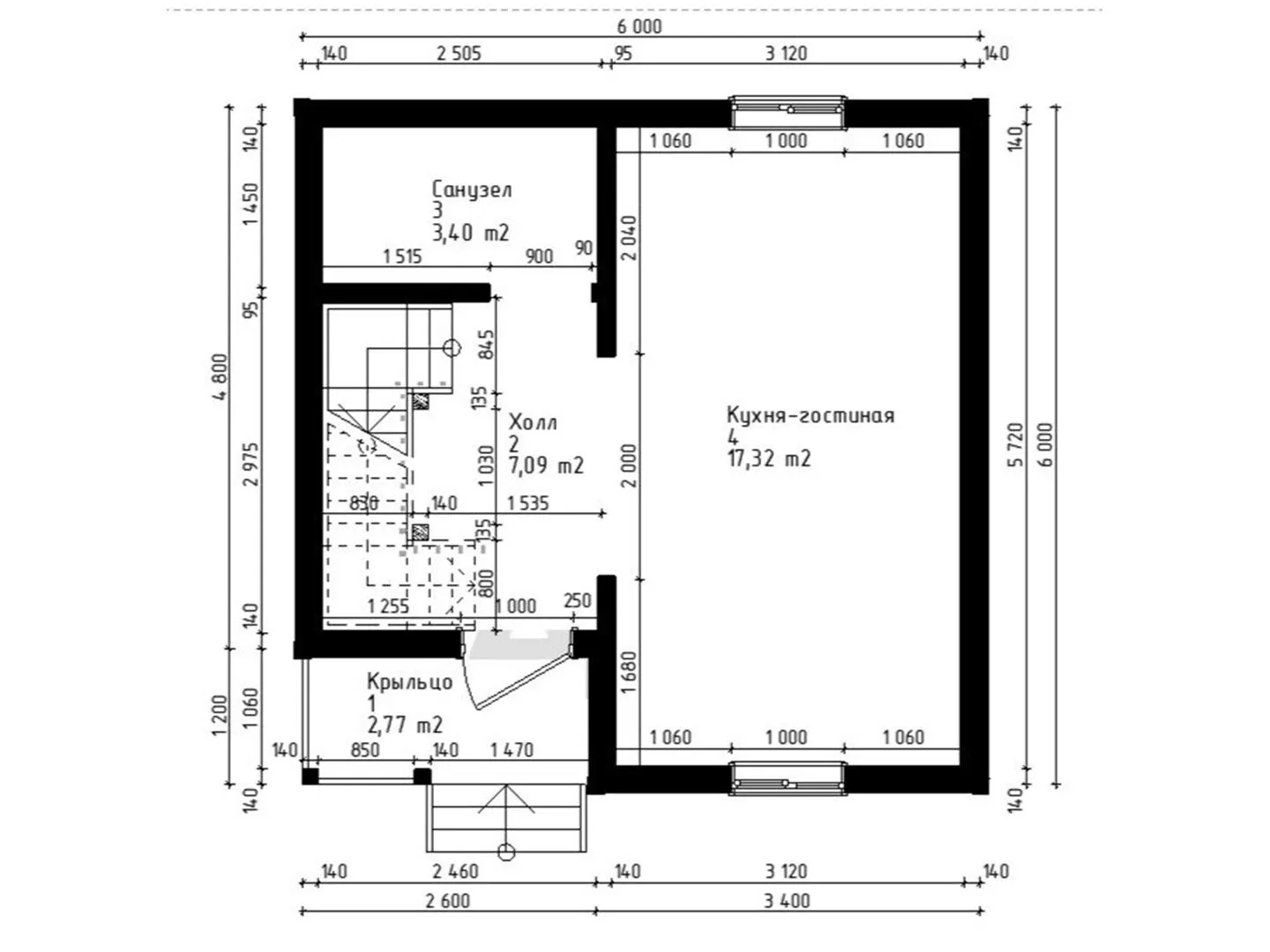
Площадь дома 59 м2
Санузлы 1
Спальни 1

Описание

Добро пожаловать в уютный уголок «Владимир» – загородный дом, где европейская элегантность соединяется с теплом домашнего очага. Его изящный двухэтажный фасад в деревянном каркасном исполнении привлекает внимание уже с первого взгляда. Внутри вы встретите просторную и светлую планировку, которая позволяет наслаждаться жизнью круглый год: в зимний холод и в летний жар вы почувствуете себя как дома. Дизайн, вдохновлённый европейскими традициями, в сочетании с продуманными деталями, создаёт гармоничную атмосферу, где каждая стена будто шепчет сказку о спокойствии и уединении. Ключевым акцентом «Владимир» является его одноокончательный балкон – идеальное место для утреннего кофе, вечернего заката или просто для того, чтобы поплавать взглядом в зелёные просторы вокруг. Окружающий двор украшен природным ландшафтом, а двускатная крыша подчёркивает классический облик дома, придавая ему неповторимый шарм. Нет лишних ограждений – нет пристроенного гаража, придающего дому чрезмерную урбанизацию, нет чердака, который мог бы отвлекать от простого удовольствия жить в настоящем. Всё, что нужно – это уютные комнаты, мягкие естественные материалы и близость к природе. Если вы мечтаете об этом спокойном уголке для себя и своей семьи, «Владимир» предложит вам мир от городской суеты, удобства современных технологий и душевность традиций. Здесь каждый день наполнится уютом, а ночь – звуками шепчущего ветра. Приходите, откройте для себя свой новый дом, где история и комфорт идут рука об руку.

Характеристики дома

Архитектурный стиль
Европейский
Автоматизированное регулирование параметров теплоносителя
Нет
Балконы/лоджии
1
Чердачное помещение
Нет
Датчики протечки воды
Нет
Эксплуатируемая или зеленая кровля
Нет
Электроснабжение
Не предусмотрено
Газоснабжение
Не предусмотрено
Изоляция воздушного шума
Да
Камин
Нет
Класс энергоэффективности
-
Класс энергосбережения
-
Количество надземных этажей
2
Круглогодичное проживание
Да
Материал кровли
Металлочерепица
Материал перекрытий
Деревянные
Материал внешних стен
Деревянные каркасные
Материал внутренних перегородок
Деревянные
Модульное строительство с конструкциями заводского изготовления
Нет
Объем надземной части
203 м3
Основной материал фасадов
Сайдинг
Отопление
Не предусмотрено
Площадь дома
59 м2
Площадь застройки
36 м2
Подвальное помещение
Нет
Показатель компактности здания
-
Приборы учета тепловой энергии
Нет
Пристроенный гараж/крытая автостоянка
Нет
Противопожарная система
Нет
Санузлы
1
Совмещенная кухня-гостиная
Да
Спальни
1
Терраса
Нет
Тип фундамента
Свайно-винтовой
Тип кровли
Двускатная
Толщина внешних стен
265 мм
Толщина внутренних перегородок
155 мм
Улучшенные шумовые характеристики
Да
Вентиляция
Естественная
Веранда
Нет
Водоотведение
Не предусмотрено
Водоснабжение
Не предусмотрено
Высота дома
6.6 м
Высота потолков
2.7 м

Планировка

Фасад дома

Александр

Закажите выезд инженера

Александр

Выездной инженер
Закажите выезд инженера для точной диагностики и профессиональной консультации по инженерным системам. Специалист приедет в удобное время, проведёт осмотр, рассчитает стоимость работ и подберёт оптимальные решения для вашего дома.


    Похожие проекты

    Ипотека и
    рассрочка
    Двухэтажный дом из газобетона 7,9*9,5 «БС-158»
    Стоимость от:
    7 354 800
    Проект от: 47 250
    Этажей 2
    Санузлы 2
    Спальни 4
    Смотреть
    Ипотека и
    рассрочка
    Загородный дом АС-207
    Стоимость от:
    18 268 140
    Проект от: 120 150
    Этажей 1
    Санузлы 3
    Спальни 4
    Смотреть
    Ипотека и
    рассрочка
    ЧЗ-108
    Стоимость от:
    7 515 200
    Проект от: 45 000
    Этажей 1
    Санузлы 1
    Спальни 3
    Смотреть
    Ипотека и
    рассрочка
    Орлово
    Стоимость от:
    5 800 080
    Проект от: 46 800
    Этажей 1
    Санузлы 1
    Спальни 3
    Смотреть
    Ипотека и
    рассрочка
    Одноэтажный дом Д-99
    Стоимость от:
    6 410 470
    Проект от: 45 450
    Этажей 1
    Санузлы 1
    Спальни 3
    Смотреть
    Ипотека и
    рассрочка
    Времена Года. Зима, лето, весна, осень. Комплектация Серебро.
    Стоимость от:
    474 300
    Проект от: 45 900
    Этажей 2
    Санузлы 2
    Спальни 2
    Смотреть

    Как узнать стоимость дома

    back
    Оставляете заявку
    Вы заполняете форму на сайте или звоните нам. Менеджер Лайвкрафт связывается с вами для уточнения деталей: тип дома, площадь, материалы, участок строительства.
    back
    Консультация и подбор решения
    Наш специалист помогает выбрать оптимальный тип дома и конструкцию с учётом бюджета, сроков и целей — будь то дом для постоянного проживания или дача.
    back
    Расчёт предварительной стоимости
    Инженер делает первичный расчёт стоимости строительства по вашим параметрам: фундамент, коробка, кровля, отделка. Вы получаете смету с разбивкой по этапам.
    back
    Корректировка и утверждение сметы
    При необходимости вносим изменения — например, замену материалов или сокращение этапов. После согласования формируется окончательная фиксированная смета.
    back
    Заключение договора и старт работ
    После утверждения сметы заключаем официальный договор с гарантией. Вы получаете прозрачный график и точную стоимость — без скрытых расходов.

    Заказать конусльтацию по:Загородный дом «Владимир»

    Фото 1 Загородный дом «Владимир»


      Наши
      контакты

      Дмитров
      Опорный проезд 28Б
      (индустриальный парк Ниагара)
      9:00 до 18:00