4.9
Рейтинг на основании 120 отзывов
Дмитров
Опорный проезд 28Б
(индустриальный парк Ниагара)
Бренд "Дмитров-Дело" c 2008 года на рынке строительства в Дмитрове
Звоните 9:00 до 18:00 8 (915) 055-33-61
Бренд "Дмитров-Дело" c 2008 года на рынке строительства в Дмитрове

Загородный дом ВС-118

Стоимость проекта от:
185 400 ₽
БЕСПЛАТНО! ПРИ ЗАКАЗЕ СТРОИТЕЛЬСТВА
Стоимость строительства от:
28 279 680 ₽
Артикул ART-20499
Дата 26.12.2025
Архитектурный стиль Хайтек
Количество надземных этажей 2
Круглогодичное проживание Да
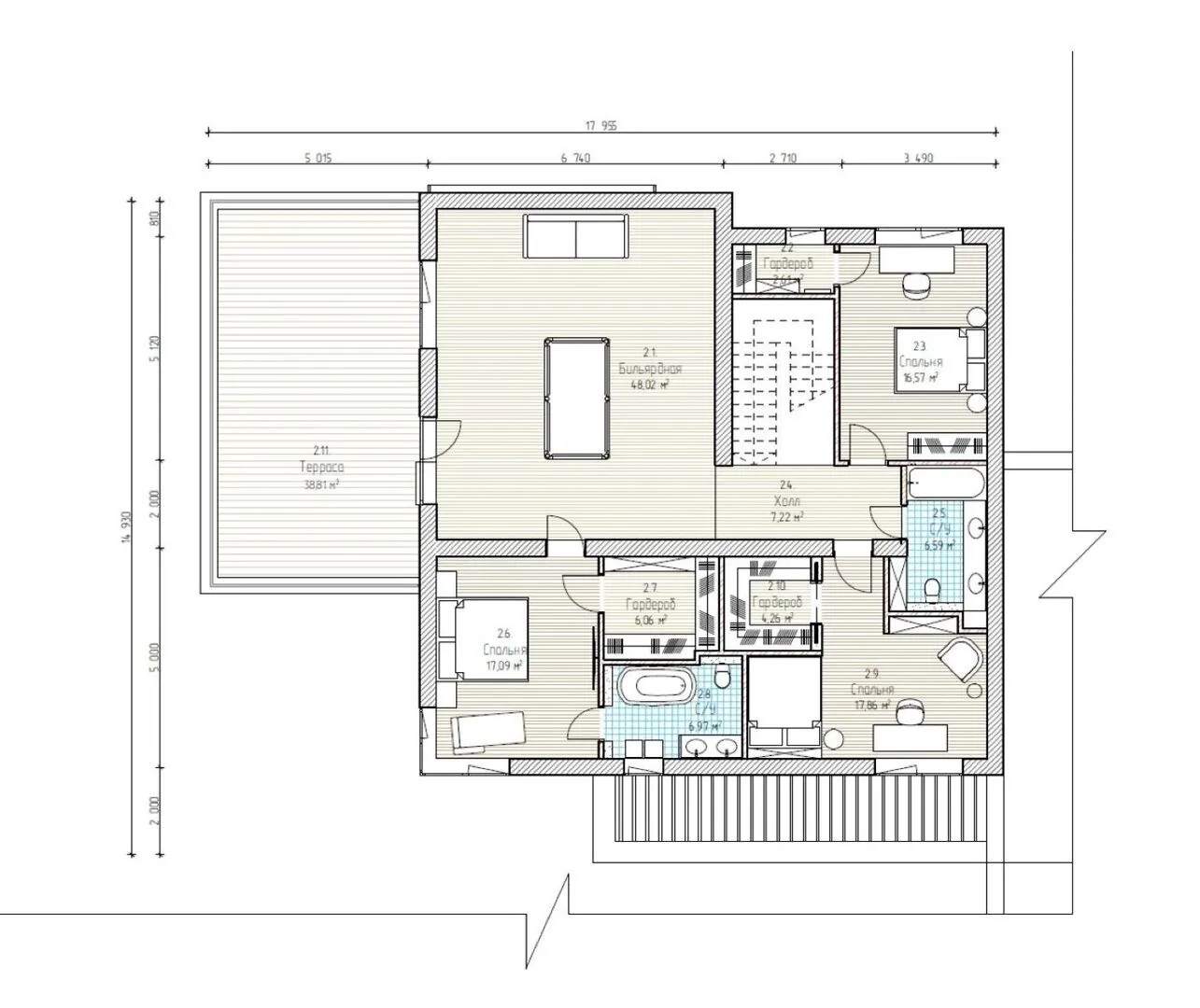
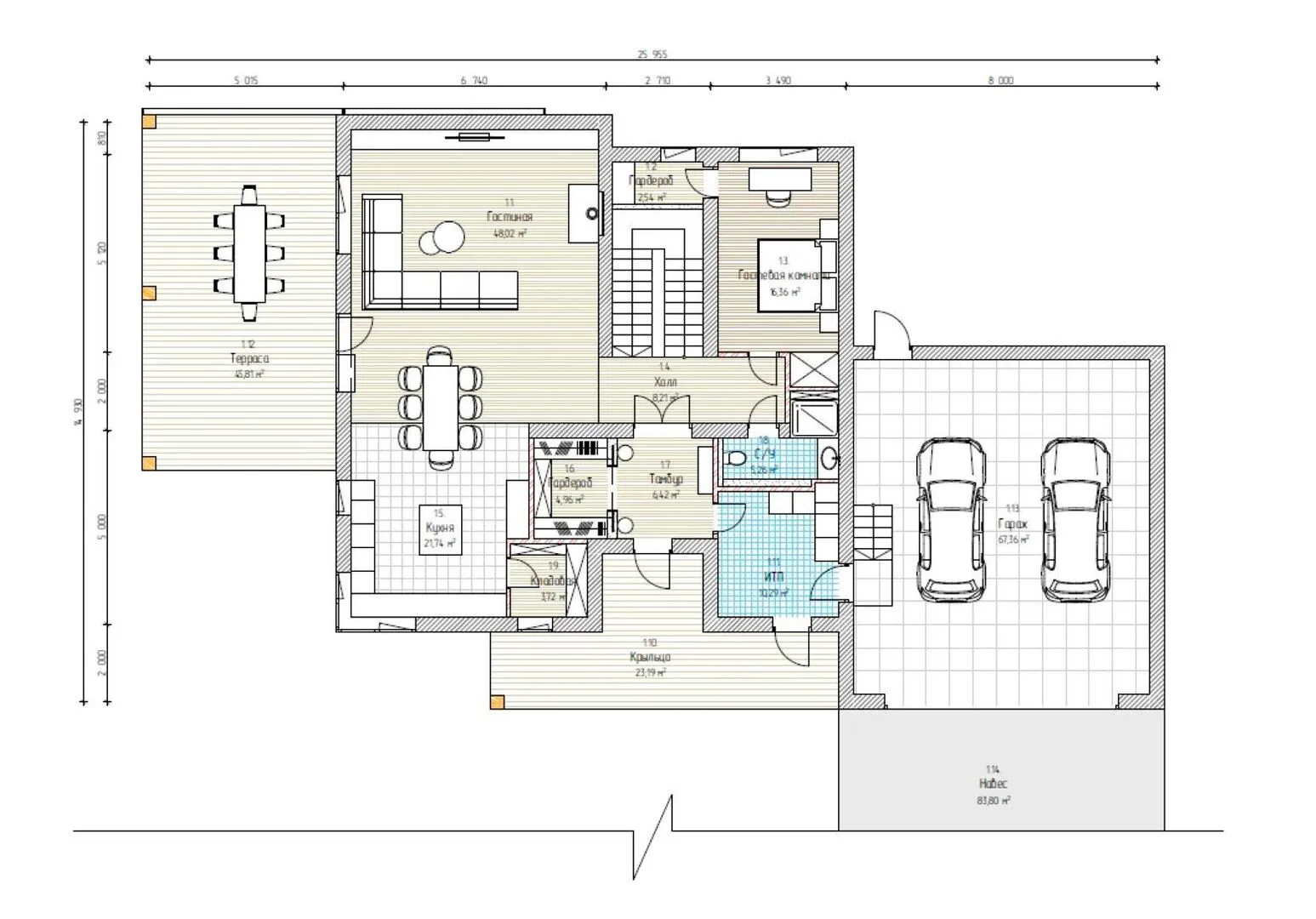
Площадь дома 412 м2
Санузлы 3
Спальни 4

Описание

Совершенный комфорт и современный дизайн ждут вас в загородном доме ВС‑118. С двумя надземными этажами он создан для круглогодичного проживания: в любых погодных условиях вы будете чувствовать себя уютно и тепло. Архитектурный стиль хай‑тек подчёркивает элегантность и практичность: чистые линии и большие стеклянные фасады придают дому уникальную современную атмосферу, а керамический блок, обрамляющий стены, обеспечивает надёжную защиту от влаги и долговечность конструкции. Плоская крыша не только придаёт дому строгий стиль, но и открывает возможность использования в качестве дополнительного пространства, а приёмная площадка с террасой позволит вам наслаждаться свежим воздухом и красивыми видами. В доме нет лишних балконов, лоджий и веранд — всё пространство задуманно максимально эффективно. Удобный пристроенный гараж и крытая автостоянка убережут ваше транспортное средство от непогоды и обеспечивают легкий доступ даже в дождливые дни. Благодаря продуманным инженерным решениям, внутренние помещения оформлены в простом, но при этом гармоничном стиле, с элементами высоких технологий, которые сохраняют энергоэффективность и комфорт в течение всего года. Это идеальное место для тех, кто ценит баланс между функциональностью и эстетикой, а также готов открыть новую главу жизни в элегантном и удобном загородном доме.

Характеристики дома

Архитектурный стиль
Автоматизированное регулирование параметров теплоносителя
Нет
Балконы/лоджии
Отсутствуют
Чердачное помещение
Нет
Датчики протечки воды
Нет
Эксплуатируемая или зеленая кровля
Нет
Электроснабжение
Центральное
Газоснабжение
Индивидуальное
Изоляция воздушного шума
Нет
Камин
Да
Класс энергоэффективности
-
Класс энергосбережения
-
Количество надземных этажей
2
Круглогодичное проживание
Да
Материал кровли
ПВХ мембраны
Материал перекрытий
Монолитные железобетонные
Материал внешних стен
Материал внутренних перегородок
Кирпичные
Модульное строительство с конструкциями заводского изготовления
Нет
Объем надземной части
3000 м3
Основной материал фасадов
Штукатурка
Отопление
Индивидуальное
Площадь дома
412 м2
Площадь застройки
395 м2
Подвальное помещение
Нет
Показатель компактности здания
-
Приборы учета тепловой энергии
Нет
Пристроенный гараж/крытая автостоянка
Да
Противопожарная система
Нет
Санузлы
3
Совмещенная кухня-гостиная
Да
Спальни
4
Терраса
Да
Тип фундамента
Плитный
Тип кровли
Толщина внешних стен
380 мм
Толщина внутренних перегородок
100 мм
Улучшенные шумовые характеристики
Нет
Вентиляция
Естественная
Веранда
Нет
Водоотведение
Локальные очистные сооружения
Водоснабжение
Центральное
Высота дома
7.33 м
Высота потолков
3.2 м

Планировка

Фасад дома

Александр

Закажите выезд инженера

Александр

Выездной инженер
Закажите выезд инженера для точной диагностики и профессиональной консультации по инженерным системам. Специалист приедет в удобное время, проведёт осмотр, рассчитает стоимость работ и подберёт оптимальные решения для вашего дома.


    Похожие проекты

    Ипотека и
    рассрочка
    Вега К177-2 (Каркасный дом)
    Стоимость от:
    10 612 680
    Проект от: 79 650
    Этажей 2
    Санузлы 2
    Спальни 4
    Смотреть
    Ипотека и
    рассрочка
    Дом Люкс 160 м2
    Стоимость от:
    10 975 920
    Проект от: 74 700
    Этажей 2
    Санузлы 2
    Спальни 3
    Смотреть
    Ипотека и
    рассрочка
    Двухэтажный дом со вторым светом в гостиной S-136-2
    Стоимость от:
    10 170 240
    Проект от: 61 200
    Этажей 2
    Санузлы 2
    Спальни 6
    Смотреть
    Ипотека и
    рассрочка
    Проект одноэтажного дома «Каир»
    Стоимость от:
    6 499 900
    Проект от: 42 750
    Этажей 1
    Санузлы 1
    Спальни 3
    Смотреть
    Ипотека и
    рассрочка
    Каменный одноэтажный дом «Гармония»
    Стоимость от:
    8 552 500
    Проект от: 56 250
    Этажей 1
    Санузлы 2
    Спальни 3
    Смотреть
    Ипотека и
    рассрочка
    Тускул ОБ
    Стоимость от:
    8 277 280
    Проект от: 46 800
    Этажей 1
    Санузлы 1
    Спальни 4
    Смотреть

    Как узнать стоимость дома

    back
    Оставляете заявку
    Вы заполняете форму на сайте или звоните нам. Менеджер Лайвкрафт связывается с вами для уточнения деталей: тип дома, площадь, материалы, участок строительства.
    back
    Консультация и подбор решения
    Наш специалист помогает выбрать оптимальный тип дома и конструкцию с учётом бюджета, сроков и целей — будь то дом для постоянного проживания или дача.
    back
    Расчёт предварительной стоимости
    Инженер делает первичный расчёт стоимости строительства по вашим параметрам: фундамент, коробка, кровля, отделка. Вы получаете смету с разбивкой по этапам.
    back
    Корректировка и утверждение сметы
    При необходимости вносим изменения — например, замену материалов или сокращение этапов. После согласования формируется окончательная фиксированная смета.
    back
    Заключение договора и старт работ
    После утверждения сметы заключаем официальный договор с гарантией. Вы получаете прозрачный график и точную стоимость — без скрытых расходов.

    Заказать конусльтацию по:Загородный дом ВС-118

    Фото 1 Загородный дом ВС-118


      Наши
      контакты

      Дмитров
      Опорный проезд 28Б
      (индустриальный парк Ниагара)
      9:00 до 18:00

      Корзина