4.9
Рейтинг на основании 120 отзывов
Дмитров
Опорный проезд 28Б
(индустриальный парк Ниагара)
Бренд "Дмитров-Дело" c 2008 года на рынке строительства в Дмитрове
Звоните 9:00 до 18:00 8 (915) 055-33-61
Бренд "Дмитров-Дело" c 2008 года на рынке строительства в Дмитрове

Загородный дом ВС-123

Стоимость проекта от:
80 100 ₽
БЕСПЛАТНО! ПРИ ЗАКАЗЕ СТРОИТЕЛЬСТВА
Стоимость строительства от:
12 570 360 ₽
Артикул ART-20508
Дата 26.12.2025
Архитектурный стиль Европейский
Количество надземных этажей 1
Круглогодичное проживание Да
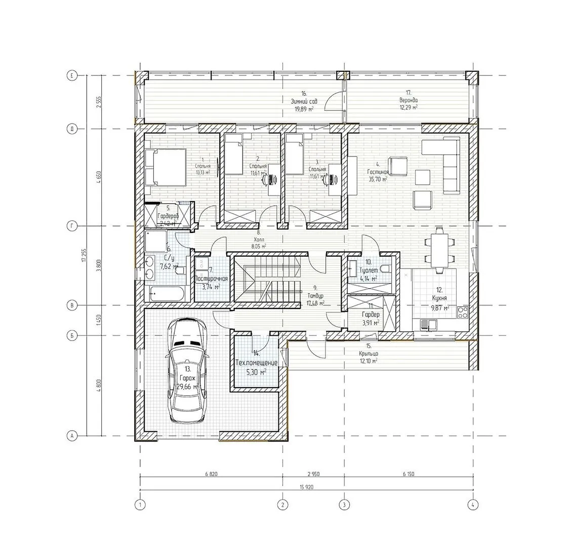
Площадь дома 178 м2
Санузлы 2
Спальни 3

Описание

Шикарный загородный дом ВС‑123 приглашает вас погрузиться в атмосферу уюта и гармонии с природой. С одной надземной площадью он создан для того, чтобы каждый день чувствовать себя дома, а круглогодичное проживание позволяет насладиться спокойствием даже в самые суровые ветра и снегопады. Дизайн в европейском стиле, выполненный из крепких газобетонных блоков, гармонично вписывается в ландшафт, придавая дому элегантную, но одновременно дружелюбную внешность. В просторных интерьерах вас ждёт уютная веранда, где можно проводить время в тепле, наблюдая за рассветом и закатами. Пристроенный гараж и крытая автостоянка обеспечат надежную защиту вашего автомобиля от непогоды. Чердачное помещение, обустроемое по желанию владельца, открывает много возможностей для хранения или создания дополнительного комфортного пространства. Двускатная крыша, покрытая качественными материалами, не только придаёт дому строгую европейскую симметрию, но и обеспечивает отличную теплоизоляцию и защиту от дождя. Этот дом – ваша личная оазис, где каждая деталь продумана для вашего комфорта и уюта. Создайте своё идеальное место, где комфорт встречи с природой превращается в повседневную реальность.

Характеристики дома

Архитектурный стиль
Автоматизированное регулирование параметров теплоносителя
Нет
Балконы/лоджии
Отсутствуют
Чердачное помещение
Да
Датчики протечки воды
Нет
Эксплуатируемая или зеленая кровля
Нет
Электроснабжение
Центральное
Газоснабжение
Индивидуальное
Изоляция воздушного шума
Нет
Камин
Нет
Класс энергоэффективности
-
Класс энергосбережения
-
Количество надземных этажей
1
Круглогодичное проживание
Да
Материал кровли
Металлочерепица
Материал перекрытий
Монолитные железобетонные
Материал внешних стен
Материал внутренних перегородок
Блочные
Модульное строительство с конструкциями заводского изготовления
Нет
Объем надземной части
1592 м3
Основной материал фасадов
Штукатурка
Отопление
Индивидуальное
Площадь дома
178 м2
Площадь застройки
260 м2
Подвальное помещение
Нет
Показатель компактности здания
-
Приборы учета тепловой энергии
Нет
Пристроенный гараж/крытая автостоянка
Да
Противопожарная система
Нет
Санузлы
2
Совмещенная кухня-гостиная
Да
Спальни
3
Терраса
Нет
Тип фундамента
Плитный
Тип кровли
Толщина внешних стен
400 мм
Толщина внутренних перегородок
200 мм
Улучшенные шумовые характеристики
Нет
Вентиляция
Естественная
Веранда
Да
Водоотведение
Локальные очистные сооружения
Водоснабжение
Центральное
Высота дома
6.12 м
Высота потолков
3 м

Планировка

Фасад дома

Александр

Закажите выезд инженера

Александр

Выездной инженер
Закажите выезд инженера для точной диагностики и профессиональной консультации по инженерным системам. Специалист приедет в удобное время, проведёт осмотр, рассчитает стоимость работ и подберёт оптимальные решения для вашего дома.


    Похожие проекты

    Ипотека и
    рассрочка
    Проект загородного дома NHD-110
    Стоимость от:
    7 753 680
    Проект от: 48 150
    Этажей 2
    Санузлы 2
    Спальни 3
    Смотреть
    Ипотека и
    рассрочка
    Одноэтажный дом «Анаксис»
    Стоимость от:
    9 786 260
    Проект от: 55 350
    Этажей 1
    Санузлы 1
    Спальни 4
    Смотреть
    Ипотека и
    рассрочка
    Загородный дом Сибиряк -96
    Стоимость от:
    6 779 520
    Проект от: 43 200
    Этажей 1
    Санузлы 1
    Спальни 3
    Смотреть
    Ипотека и
    рассрочка
    Загородный дом 15
    Стоимость от:
    12 683 880
    Проект от: 78 300
    Этажей 1
    Санузлы 2
    Спальни 3
    Смотреть
    Ипотека и
    рассрочка
    Светлич
    Стоимость от:
    4 569 840
    Проект от: 32 400
    Этажей 1
    Санузлы 1
    Спальни 2
    Смотреть
    Ипотека и
    рассрочка
    Загородный дом АС-218
    Стоимость от:
    22 104 060
    Проект от: 140 850
    Этажей 1
    Санузлы 3
    Спальни 4
    Смотреть

    Как узнать стоимость дома

    back
    Оставляете заявку
    Вы заполняете форму на сайте или звоните нам. Менеджер Лайвкрафт связывается с вами для уточнения деталей: тип дома, площадь, материалы, участок строительства.
    back
    Консультация и подбор решения
    Наш специалист помогает выбрать оптимальный тип дома и конструкцию с учётом бюджета, сроков и целей — будь то дом для постоянного проживания или дача.
    back
    Расчёт предварительной стоимости
    Инженер делает первичный расчёт стоимости строительства по вашим параметрам: фундамент, коробка, кровля, отделка. Вы получаете смету с разбивкой по этапам.
    back
    Корректировка и утверждение сметы
    При необходимости вносим изменения — например, замену материалов или сокращение этапов. После согласования формируется окончательная фиксированная смета.
    back
    Заключение договора и старт работ
    После утверждения сметы заключаем официальный договор с гарантией. Вы получаете прозрачный график и точную стоимость — без скрытых расходов.

    Заказать конусльтацию по:Загородный дом ВС-123

    Фото 1 Загородный дом ВС-123


      Наши
      контакты

      Дмитров
      Опорный проезд 28Б
      (индустриальный парк Ниагара)
      9:00 до 18:00

      Корзина