4.9
Рейтинг на основании 120 отзывов
Дмитров
Опорный проезд 28Б
(индустриальный парк Ниагара)
Бренд "Дмитров-Дело" c 2008 года на рынке строительства в Дмитрове
Звоните 9:00 до 18:00 8 (915) 055-33-61
Бренд "Дмитров-Дело" c 2008 года на рынке строительства в Дмитрове

Загородный дом ВС-138

Стоимость проекта от:
102 600 ₽
БЕСПЛАТНО! ПРИ ЗАКАЗЕ СТРОИТЕЛЬСТВА
Стоимость строительства от:
15 923 520 ₽
Артикул ART-20631
Дата 26.12.2025
Архитектурный стиль Классический
Количество надземных этажей 2
Круглогодичное проживание Да
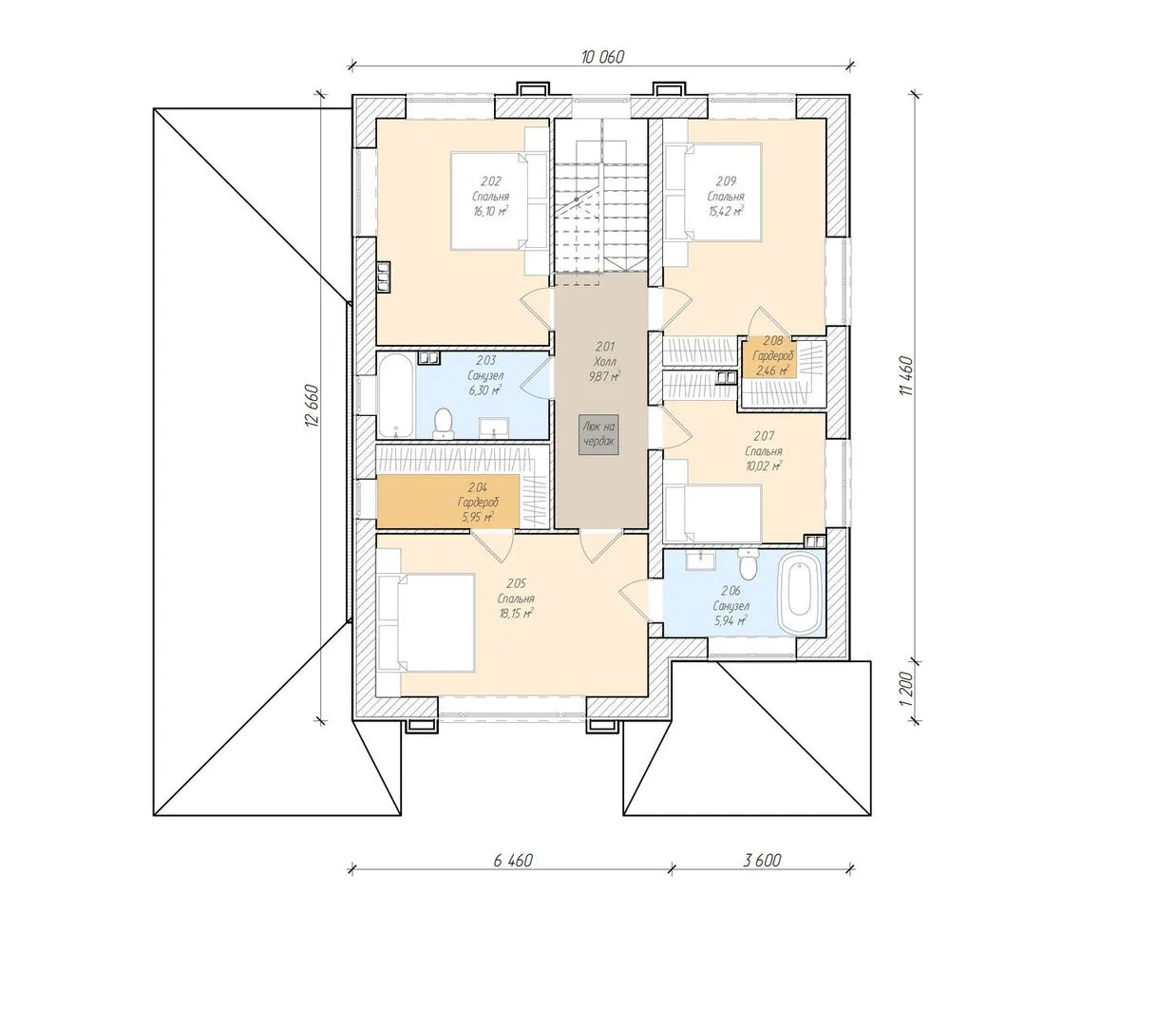
Площадь дома 228 м2
Санузлы 3
Спальни 5

Описание

**Очаровательный загородный шедевр ВС‑138 – ваш персональный уголок уединения** Где бы вы ни находились, этот двухэтажный классический дом, созданный с вниманием к каждой детали, предлагает идеальное сочетание уюта и современного комфорта. Уже с первых шагов к двери вы ощупываете неповторимую гармонию строгой архитектуры и природного ритма: массивные газобетонные стены, способные сохранить тепло и стать нежным обрамлением яркой летней и зимней прохлады. Многопурпиновая кровля, выполненная с высочайшим мастерством, придает дому величественный характер и гарантирует долгую службу в любое время года. **Ключевые особенности, которые делают ВС‑138 особенным** Дом обеспечивает круглогодичное проживание, а просторный чердачный отсек открывает дополнительное жилое или складовое пространство – идеальное решение для творческих проектов или семейных архивов. Терраса приглашает к вечерним беседам под звездами, а отсутствие балконов и веранд делает фасад более чистым и элегантным. Внутренний план, продуманный до мелочей, позволяет создать открытые зоны гостиной, кухни и столовой с высокими потолками, подчеркивающими классический стиль. Ваша личная зона отдыха здесь – это не просто дом, а место, где каждая деталь работает на ваше благополучие и комфорт. **Подарите себе и своей семье идеальное сочетание стиля и практичности** Дом ВС‑138 готов стать вашей крепостью, где каждый член семьи найдет свой уголок покоя и вдохновения. Свяжитесь с нами уже сегодня, чтобы узнать, как этот архитектурный шедевр может стать вашим новым домом. Мы будем рады организовать экскурсию и показать, как каждая из его особенностей отвечает самым высоким требованиям современного образа жизни.

Характеристики дома

Архитектурный стиль
Автоматизированное регулирование параметров теплоносителя
Нет
Балконы/лоджии
Отсутствуют
Чердачное помещение
Да
Датчики протечки воды
Нет
Эксплуатируемая или зеленая кровля
Нет
Электроснабжение
Центральное
Газоснабжение
Индивидуальное
Изоляция воздушного шума
Нет
Камин
Нет
Класс энергоэффективности
-
Класс энергосбережения
-
Количество надземных этажей
2
Круглогодичное проживание
Да
Материал кровли
Металлочерепица
Материал перекрытий
Монолитные железобетонные
Материал внешних стен
Материал внутренних перегородок
Блочные
Модульное строительство с конструкциями заводского изготовления
Нет
Объем надземной части
965 м3
Основной материал фасадов
Фасадная плитка
Отопление
Индивидуальное
Площадь дома
228 м2
Площадь застройки
189 м2
Подвальное помещение
Нет
Показатель компактности здания
-
Приборы учета тепловой энергии
Нет
Пристроенный гараж/крытая автостоянка
Нет
Противопожарная система
Нет
Санузлы
3
Совмещенная кухня-гостиная
Нет
Спальни
5
Терраса
Да
Тип фундамента
Плитный
Тип кровли
Толщина внешних стен
400 мм
Толщина внутренних перегородок
100 мм
Улучшенные шумовые характеристики
Нет
Вентиляция
Естественная
Веранда
Нет
Водоотведение
Локальные очистные сооружения
Водоснабжение
Центральное
Высота дома
8.07 м
Высота потолков
3 м

Планировка

Фасад дома

Александр

Закажите выезд инженера

Александр

Выездной инженер
Закажите выезд инженера для точной диагностики и профессиональной консультации по инженерным системам. Специалист приедет в удобное время, проведёт осмотр, рассчитает стоимость работ и подберёт оптимальные решения для вашего дома.


    Похожие проекты

    Ипотека и
    рассрочка
    КД «Краснодар №9-22»
    Стоимость от:
    8 139 600
    Проект от: 61 200
    Этажей 2
    Санузлы 2
    Спальни 4
    Смотреть
    Ипотека и
    рассрочка
    Жилой дом
    Стоимость от:
    6 433 350
    Проект от: 47 250
    Этажей 1
    Санузлы 2
    Спальни 3
    Смотреть
    Ипотека и
    рассрочка
    Сканди-135
    Стоимость от:
    8 355 600
    Проект от: 54 000
    Этажей 1
    Санузлы 1
    Спальни 3
    Смотреть
    Ипотека и
    рассрочка
    Левашово-12
    Стоимость от:
    8 939 520
    Проект от: 57 600
    Этажей 2
    Санузлы 3
    Спальни 4
    Смотреть
    Ипотека и
    рассрочка
    А-100 combo из газоблока с мастер-спальней
    Стоимость от:
    6 765 000
    Проект от: 40 500
    Этажей 1
    Санузлы 2
    Спальни 3
    Смотреть
    Ипотека и
    рассрочка
    Проект дома Карат
    Стоимость от:
    9 309 740
    Проект от: 52 650
    Этажей 1
    Санузлы 2
    Спальни 3
    Смотреть

    Как узнать стоимость дома

    back
    Оставляете заявку
    Вы заполняете форму на сайте или звоните нам. Менеджер Лайвкрафт связывается с вами для уточнения деталей: тип дома, площадь, материалы, участок строительства.
    back
    Консультация и подбор решения
    Наш специалист помогает выбрать оптимальный тип дома и конструкцию с учётом бюджета, сроков и целей — будь то дом для постоянного проживания или дача.
    back
    Расчёт предварительной стоимости
    Инженер делает первичный расчёт стоимости строительства по вашим параметрам: фундамент, коробка, кровля, отделка. Вы получаете смету с разбивкой по этапам.
    back
    Корректировка и утверждение сметы
    При необходимости вносим изменения — например, замену материалов или сокращение этапов. После согласования формируется окончательная фиксированная смета.
    back
    Заключение договора и старт работ
    После утверждения сметы заключаем официальный договор с гарантией. Вы получаете прозрачный график и точную стоимость — без скрытых расходов.

    Заказать конусльтацию по:Загородный дом ВС-138

    Фото 1 Загородный дом ВС-138


      Наши
      контакты

      Дмитров
      Опорный проезд 28Б
      (индустриальный парк Ниагара)
      9:00 до 18:00

      Корзина