4.9
Рейтинг на основании 120 отзывов
Дмитров
Опорный проезд 28Б
(индустриальный парк Ниагара)
Бренд "Дмитров-Дело" c 2008 года на рынке строительства в Дмитрове
Звоните 9:00 до 18:00 8 (915) 055-33-61
Бренд "Дмитров-Дело" c 2008 года на рынке строительства в Дмитрове

Загородный коттедж с жилой мансардой s3-181-5 (Z160 A)

Стоимость проекта от:
110 250 ₽
БЕСПЛАТНО! ПРИ ЗАКАЗЕ СТРОИТЕЛЬСТВА
Стоимость строительства от:
18 318 000 ₽
Артикул ART-3876
Дата 26.12.2025
Архитектурный стиль Европейский
Количество надземных этажей 2
Круглогодичное проживание Да
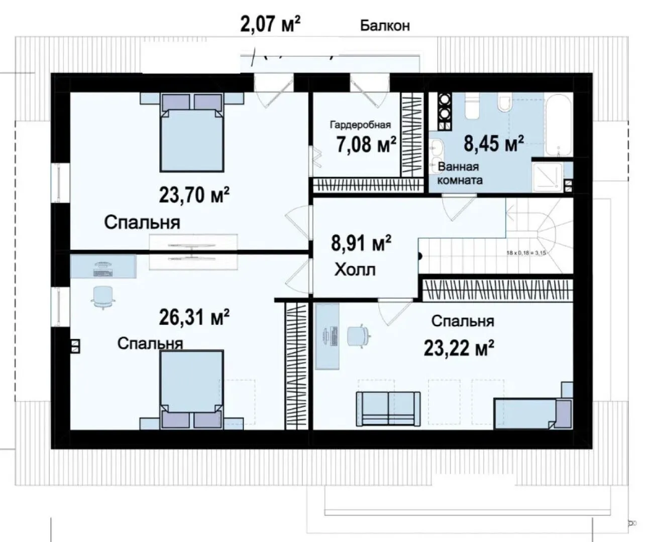
Площадь дома 245 м2
Санузлы 2
Спальни 4

Описание

**Загородный коттедж «Садовая гармония» – где европейская элегантность встречается с комфортом круглый год.** Этот уютный двухэтажный дом (s3-181-5, Z160 A) поражает своей продуманной планировкой и светлым, просторным интерьером. Открытый мансардный задаток, выполненный из прочных и теплоизолирующих газобетонных блоков, придает зданию современный характер и позволяет создать дополнительные уютные уголки, например, домашний кабинет или игровой зал. Двускатный металлодетский покров обеспечивает надёжную защиту от непогоды, а в то же время добавляет образу характерный европейский шарм. **Комфорт и тепло в каждой детали.** Квартирный план рассчитан на круглогодичное проживание: большие панорамные окна пропускают естественный свет, создавая ощущение простора и открытости. Балкон/лоджия с открытой панорамой позволяет наслаждаться свежим воздухом и видами окрестностей, а просторная терраса – идеальное место для летних барбекю и уютных вечеров на свежем воздухе. Несмотря на отсутствие прицепленного гаража, в доме предусмотрено современное решение для безопасной парковки – крытая автостоянка, позволяющая сохранить автомобиль защищенным от стихий. **Эстетика и практичность в гармонии.** Экзотический европейский стиль сочетает в себе черты классики и модерн, при этом каждый элемент подчёркнут вниманием к деталям: от декоративных балконных перил до лаконичных чердачных пространств, превращённых в дополнительные уютные зоны. Выбор газобетонных блоков обеспечивает энергоэффективность и долговечность, в то время как двухскатный крытый покров добавляет завершённости и эстетической привлекательности. Такой загородный коттедж – идеальный вариант для тех, кто ценит сочетание комфорта, качества и неподражаемого стиля жизни.

Характеристики дома

Архитектурный стиль
Автоматизированное регулирование параметров теплоносителя
Да
Балконы/лоджии
1
Чердачное помещение
Да
Датчики протечки воды
Да
Эксплуатируемая или зеленая кровля
Нет
Электроснабжение
Центральное
Газоснабжение
Центральное
Изоляция воздушного шума
Да
Камин
Нет
Класс энергоэффективности
-
Класс энергосбережения
-
Количество надземных этажей
2
Круглогодичное проживание
Да
Материал кровли
Металлочерепица
Материал перекрытий
Монолитные железобетонные
Материал внешних стен
Материал внутренних перегородок
Блочные
Модульное строительство с конструкциями заводского изготовления
Нет
Объем надземной части
-
Основной материал фасадов
Штукатурка
Отопление
Центральное
Площадь дома
245 м2
Площадь застройки
294 м2
Подвальное помещение
Нет
Показатель компактности здания
-
Приборы учета тепловой энергии
Да
Пристроенный гараж/крытая автостоянка
Нет
Противопожарная система
Да
Санузлы
2
Совмещенная кухня-гостиная
Да
Спальни
4
Терраса
Да
Тип фундамента
Ленточный
Тип кровли
Толщина внешних стен
425 мм
Толщина внутренних перегородок
100 мм
Улучшенные шумовые характеристики
Да
Вентиляция
Естественная
Веранда
Нет
Водоотведение
Локальные очистные сооружения
Водоснабжение
Центральное
Высота дома
-
Высота потолков
3 м

Планировка

Фасад дома

Александр

Закажите выезд инженера

Александр

Выездной инженер
Закажите выезд инженера для точной диагностики и профессиональной консультации по инженерным системам. Специалист приедет в удобное время, проведёт осмотр, рассчитает стоимость работ и подберёт оптимальные решения для вашего дома.


    Похожие проекты

    Ипотека и
    рассрочка
    140Т
    Стоимость от:
    9 886 800
    Проект от: 63 000
    Этажей 1
    Санузлы 2
    Спальни 3
    Смотреть
    Ипотека и
    рассрочка
    ЭЛЕГАНТ ПРАВЫЙ
    Стоимость от:
    10 468 800
    Проект от: 63 000
    Этажей 2
    Санузлы 2
    Спальни 4
    Смотреть
    Ипотека и
    рассрочка
    Минимал-95
    Стоимость от:
    7 140 100
    Проект от: 42 750
    Этажей 1
    Санузлы 1
    Спальни 3
    Смотреть
    Ипотека и
    рассрочка
    Двухэтажный каркасный дом Пион-2
    Стоимость от:
    9 413 880
    Проект от: 70 650
    Этажей 2
    Санузлы 3
    Спальни 5
    Смотреть
    Ипотека и
    рассрочка
    Одноэтажный дом SS-164
    Стоимость от:
    11 016 720
    Проект от: 70 200
    Этажей 1
    Санузлы 2
    Спальни 4
    Смотреть
    Ипотека и
    рассрочка
    Гармония пространства
    Стоимость от:
    11 221 200
    Проект от: 69 750
    Этажей 2
    Санузлы 2
    Спальни 6
    Смотреть

    Как узнать стоимость дома

    back
    Оставляете заявку
    Вы заполняете форму на сайте или звоните нам. Менеджер Лайвкрафт связывается с вами для уточнения деталей: тип дома, площадь, материалы, участок строительства.
    back
    Консультация и подбор решения
    Наш специалист помогает выбрать оптимальный тип дома и конструкцию с учётом бюджета, сроков и целей — будь то дом для постоянного проживания или дача.
    back
    Расчёт предварительной стоимости
    Инженер делает первичный расчёт стоимости строительства по вашим параметрам: фундамент, коробка, кровля, отделка. Вы получаете смету с разбивкой по этапам.
    back
    Корректировка и утверждение сметы
    При необходимости вносим изменения — например, замену материалов или сокращение этапов. После согласования формируется окончательная фиксированная смета.
    back
    Заключение договора и старт работ
    После утверждения сметы заключаем официальный договор с гарантией. Вы получаете прозрачный график и точную стоимость — без скрытых расходов.

    Заказать конусльтацию по:Загородный коттедж с жилой мансардой s3-181-5 (Z160 A)

    Фото 1 Загородный коттедж с жилой мансардой s3-181-5 (Z160 A)


      Наши
      контакты

      Дмитров
      Опорный проезд 28Б
      (индустриальный парк Ниагара)
      9:00 до 18:00

      Корзина