4.9
Рейтинг на основании 120 отзывов
Дмитров
Опорный проезд 28Б
(индустриальный парк Ниагара)
Бренд "Дмитров-Дело" c 2008 года на рынке строительства в Дмитрове
Звоните 9:00 до 18:00 8 (915) 055-33-61
Бренд "Дмитров-Дело" c 2008 года на рынке строительства в Дмитрове

Загородный жилой дом №4

Стоимость проекта от:
53 550 ₽
БЕСПЛАТНО! ПРИ ЗАКАЗЕ СТРОИТЕЛЬСТВА
Стоимость строительства от:
8 940 580 ₽
Артикул ART-18296
Дата 26.12.2025
Архитектурный стиль Минимализм
Количество надземных этажей 1
Круглогодичное проживание Да
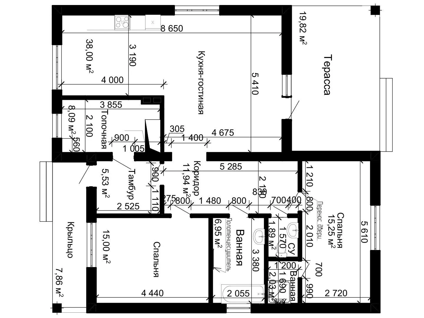
Площадь дома 119 м2
Санузлы 3
Спальни 2

Описание

Загородный дом № 4 – это место, где встречаются спокойствие природы и комфорт современной жизни. Благодаря одному открытому этажу, всем необходимым помещениям, и круглогодичному обустройству, вам и вашей семье не придется переживать о холодных ветрах или жаре – каждый уголок рассчитан на приятную температуру и достаточное естественное освещение. Минималистичный дизайн превращает интерьер в просторную и уютную зону, где важна функция, а не лишняя отделка. В доме нет балконов и веранды, но есть просторная терраса, где можно утренний кофе поласкивать солнечными лучами, а вечером наслаждаться звездами над сельским ландшафтом. Стены, построенные из газобетонных блоков, не только выглядят стильно, но и обеспечивают отличную тепло- и звукоизоляцию, позволяя экономить энергию и оставаться комфортным даже в самые холодные месяцы. Пятнистый, величественный четырехскатный (вальмовой) чердак добавляет характеру и предлагает практическое пространство для хранения или творчества. Отсутствие гаража и крытых стоянок поднимает уровень приватности, а открытый характер участка позволяет создать собственную, индивидуальную обстановку – от уютного сада до широкого огорода. Такой дом – идеальный выбор для тех, кто ценит простоту, функциональность и качественную связь с природой. Загородная жизнь становится доступной без лишних компромиссов, а каждая деталь продумана, чтобы вы чувствовали себя уюто и вдохновлено каждый день. Превратите ваш образ жизни в гармоничное сочетание пространства, света и энергии, открывая новые горизонты в собственном уголке природы.

Характеристики дома

Архитектурный стиль
Автоматизированное регулирование параметров теплоносителя
Нет
Балконы/лоджии
Отсутствуют
Чердачное помещение
Да
Датчики протечки воды
Нет
Эксплуатируемая или зеленая кровля
Нет
Электроснабжение
Центральное
Газоснабжение
Центральное
Изоляция воздушного шума
Нет
Камин
Нет
Класс энергоэффективности
-
Класс энергосбережения
-
Количество надземных этажей
1
Круглогодичное проживание
Да
Материал кровли
Металлочерепица
Материал перекрытий
Деревянные
Материал внешних стен
Материал внутренних перегородок
Кирпичные
Модульное строительство с конструкциями заводского изготовления
Нет
Объем надземной части
460 м3
Основной материал фасадов
Штукатурка
Отопление
Индивидуальное
Площадь дома
119 м2
Площадь застройки
143 м2
Подвальное помещение
Нет
Показатель компактности здания
-
Приборы учета тепловой энергии
Да
Пристроенный гараж/крытая автостоянка
Нет
Противопожарная система
Да
Санузлы
3
Совмещенная кухня-гостиная
Да
Спальни
2
Терраса
Да
Тип фундамента
Свайно-ростверковый
Толщина внешних стен
400 мм
Толщина внутренних перегородок
150 мм
Улучшенные шумовые характеристики
Нет
Вентиляция
Естественная
Веранда
Нет
Водоотведение
Локальные очистные сооружения
Водоснабжение
Индивидуальное
Высота дома
6.13 м
Высота потолков
3 м

Планировка

Фасад дома

Александр

Закажите выезд инженера

Александр

Выездной инженер
Закажите выезд инженера для точной диагностики и профессиональной консультации по инженерным системам. Специалист приедет в удобное время, проведёт осмотр, рассчитает стоимость работ и подберёт оптимальные решения для вашего дома.


    Похожие проекты

    Ипотека и
    рассрочка
    Дом РСК Монолит
    Стоимость от:
    5 444 230
    Проект от: 38 700
    Этажей 1
    Санузлы 1
    Спальни 3
    Смотреть
    Ипотека и
    рассрочка
    Проект А014
    Стоимость от:
    10 065 360
    Проект от: 62 550
    Этажей 2
    Санузлы 2
    Спальни 4
    Смотреть
    Ипотека и
    рассрочка
    Одноэтажный каркасный дом «БС-166»
    Стоимость от:
    6 361 740
    Проект от: 48 600
    Этажей 1
    Санузлы 1
    Спальни 3
    Смотреть
    Ипотека и
    рассрочка
    Двухэтажный дом с гаражом «Линда»
    Стоимость от:
    14 287 440
    Проект от: 85 950
    Этажей 2
    Санузлы 2
    Спальни 5
    Смотреть
    Ипотека и
    рассрочка
    Загородный дом «Оливер»
    Стоимость от:
    9 039 360
    Проект от: 57 600
    Этажей 1
    Санузлы 2
    Спальни 3
    Смотреть
    Ипотека и
    рассрочка
    ПРОЕКТ А004
    Стоимость от:
    14 462 400
    Проект от: 90 000
    Этажей 2
    Санузлы 2
    Спальни 3
    Смотреть

    Как узнать стоимость дома

    back
    Оставляете заявку
    Вы заполняете форму на сайте или звоните нам. Менеджер Лайвкрафт связывается с вами для уточнения деталей: тип дома, площадь, материалы, участок строительства.
    back
    Консультация и подбор решения
    Наш специалист помогает выбрать оптимальный тип дома и конструкцию с учётом бюджета, сроков и целей — будь то дом для постоянного проживания или дача.
    back
    Расчёт предварительной стоимости
    Инженер делает первичный расчёт стоимости строительства по вашим параметрам: фундамент, коробка, кровля, отделка. Вы получаете смету с разбивкой по этапам.
    back
    Корректировка и утверждение сметы
    При необходимости вносим изменения — например, замену материалов или сокращение этапов. После согласования формируется окончательная фиксированная смета.
    back
    Заключение договора и старт работ
    После утверждения сметы заключаем официальный договор с гарантией. Вы получаете прозрачный график и точную стоимость — без скрытых расходов.

    Заказать конусльтацию по:Загородный жилой дом №4

    Фото 1 Загородный жилой дом №4


      Наши
      контакты

      Дмитров
      Опорный проезд 28Б
      (индустриальный парк Ниагара)
      9:00 до 18:00

      Корзина