4.9
Рейтинг на основании 120 отзывов
Дмитров
Опорный проезд 28Б
(индустриальный парк Ниагара)
Бренд "Дмитров-Дело" c 2008 года на рынке строительства в Дмитрове
Звоните 9:00 до 18:00 8 (915) 055-33-61
Бренд "Дмитров-Дело" c 2008 года на рынке строительства в Дмитрове

Замена 3-х комнатной квартиры проект «Оптимальный»

Стоимость проекта от:
40 500 ₽
БЕСПЛАТНО! ПРИ ЗАКАЗЕ СТРОИТЕЛЬСТВА
Стоимость строительства от:
7 165 400 ₽
Артикул ART-3661
Дата 26.12.2025
Архитектурный стиль Русский
Количество надземных этажей 1
Круглогодичное проживание Да
Площадь дома 90 м2
Санузлы 2
Спальни 3

Описание

Добро пожаловать в уютный уголок, где простота встречается с комфортом – наш проект «Оптимальный» представляет собой 3‑комнатную квартиру, созданную для тех, кто ценит тепло домашнего очага и функциональность. Архитектурный стиль в русском духе, выполненный из газобетонных блоков, придаёт помещению не только тепло, но и надёжную изоляцию, обеспечивая круглогодичное проживание в любой погоды. Классический двускатный покров и аккуратные детали подчеркивают традиционность, а тем не менее современный подход к материалам сохраняет лёгкость и экологичность. Просторный внутренний мир квартиры раскрывается благодаря продуманному плану: уютная гостиная, светлая спальня и функциональная кухня – всё, что нужно для комфортной жизни. Отсутствие балконов не делает наш объект менее привлекательным – на их месте стоит просторная терраса, где можно провести время за чашкой кофе, наблюдать за рассветами или устроить уединённый ужин под звёздами. А ещё, в закрытом чердачном помещении скрыта гибкая зона хранения и возможность использовать её как дополнительный личный кабинет или мини‑офис. Если вы ищете дом, где каждый уголок продуман, а простота дизайна сочетается с уютом, квартира проекта «Оптимальный» – это ваш выбор. Здесь вы почувствуете себя дома уже с первого шага: от тёплой стены до светлого окна, приглашая к релаксации и радостным моментам, которые останутся в памяти навсегда.

Характеристики дома

Архитектурный стиль
Автоматизированное регулирование параметров теплоносителя
Нет
Балконы/лоджии
Отсутствуют
Чердачное помещение
Да
Датчики протечки воды
Да
Эксплуатируемая или зеленая кровля
Нет
Электроснабжение
Индивидуальное
Газоснабжение
Не предусмотрено
Изоляция воздушного шума
Нет
Камин
Нет
Класс энергоэффективности
-
Класс энергосбережения
-
Количество надземных этажей
1
Круглогодичное проживание
Да
Материал кровли
Металлочерепица
Материал перекрытий
Деревянные
Материал внешних стен
Материал внутренних перегородок
Блочные
Модульное строительство с конструкциями заводского изготовления
Нет
Объем надземной части
270 м3
Основной материал фасадов
Облицовочный кирпич
Отопление
Индивидуальное
Площадь дома
90 м2
Площадь застройки
125 м2
Подвальное помещение
Нет
Показатель компактности здания
-
Приборы учета тепловой энергии
Нет
Пристроенный гараж/крытая автостоянка
Нет
Противопожарная система
Нет
Санузлы
2
Совмещенная кухня-гостиная
Да
Спальни
3
Терраса
Да
Тип фундамента
Ленточный
Тип кровли
Толщина внешних стен
395 мм
Толщина внутренних перегородок
250 мм
Улучшенные шумовые характеристики
Нет
Вентиляция
Принудительная
Веранда
Нет
Водоотведение
Локальные очистные сооружения
Водоснабжение
Индивидуальное
Высота дома
5.95 м
Высота потолков
3 м

Планировка

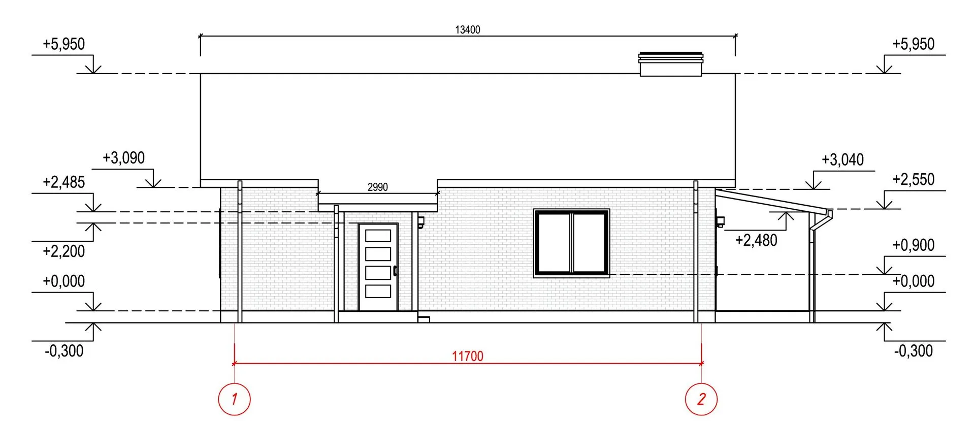
Фасад дома

Александр

Закажите выезд инженера

Александр

Выездной инженер
Закажите выезд инженера для точной диагностики и профессиональной консультации по инженерным системам. Специалист приедет в удобное время, проведёт осмотр, рассчитает стоимость работ и подберёт оптимальные решения для вашего дома.


    Похожие проекты

    Ипотека и
    рассрочка
    Дом МИЛЛИ 56 м2
    Стоимость от:
    4 465 120
    Проект от: 25 200
    Этажей 1
    Санузлы 1
    Спальни 2
    Смотреть
    Ипотека и
    рассрочка
    Проект дома 200-87
    Стоимость от:
    15 787 200
    Проект от: 103 500
    Этажей 2
    Санузлы 4
    Спальни 5
    Смотреть
    Ипотека и
    рассрочка
    Одноэтажный П-105
    Стоимость от:
    7 203 240
    Проект от: 45 900
    Этажей 1
    Санузлы 2
    Спальни 3
    Смотреть
    Ипотека и
    рассрочка
    К 1-90-1
    Стоимость от:
    6 689 980
    Проект от: 40 050
    Этажей 1
    Санузлы 2
    Спальни 3
    Смотреть
    Ипотека и
    рассрочка
    Каркасный дом К-01
    Стоимость от:
    4 161 960
    Проект от: 32 400
    Этажей 1
    Санузлы 1
    Спальни 2
    Смотреть
    Ипотека и
    рассрочка
    Модульный дом Барн 75
    Стоимость от:
    4 227 630
    Проект от: 31 050
    Этажей 1
    Санузлы 1
    Спальни 2
    Смотреть

    Как узнать стоимость дома

    back
    Оставляете заявку
    Вы заполняете форму на сайте или звоните нам. Менеджер Лайвкрафт связывается с вами для уточнения деталей: тип дома, площадь, материалы, участок строительства.
    back
    Консультация и подбор решения
    Наш специалист помогает выбрать оптимальный тип дома и конструкцию с учётом бюджета, сроков и целей — будь то дом для постоянного проживания или дача.
    back
    Расчёт предварительной стоимости
    Инженер делает первичный расчёт стоимости строительства по вашим параметрам: фундамент, коробка, кровля, отделка. Вы получаете смету с разбивкой по этапам.
    back
    Корректировка и утверждение сметы
    При необходимости вносим изменения — например, замену материалов или сокращение этапов. После согласования формируется окончательная фиксированная смета.
    back
    Заключение договора и старт работ
    После утверждения сметы заключаем официальный договор с гарантией. Вы получаете прозрачный график и точную стоимость — без скрытых расходов.

    Заказать конусльтацию по:Замена 3-х комнатной квартиры проект «Оптимальный»

    Фото 1 Замена 3-х комнатной квартиры проект «Оптимальный»


      Наши
      контакты

      Дмитров
      Опорный проезд 28Б
      (индустриальный парк Ниагара)
      9:00 до 18:00

      Корзина