4.9
Рейтинг на основании 120 отзывов
Дмитров
Опорный проезд 28Б
(индустриальный парк Ниагара)
Бренд "Дмитров-Дело" c 2008 года на рынке строительства в Дмитрове
Звоните 9:00 до 18:00 8 (915) 055-33-61
Бренд "Дмитров-Дело" c 2008 года на рынке строительства в Дмитрове

Жилой Дом № 3

Стоимость проекта от:
44 550 ₽
Стоимость строительства от:
7 440 180 ₽
Артикул ART-10294
Дата 25.12.2025
Архитектурный стиль Классический
Количество надземных этажей 1
Круглогодичное проживание Да
Площадь дома 99 м2
Санузлы 1
Спальни 3

Описание

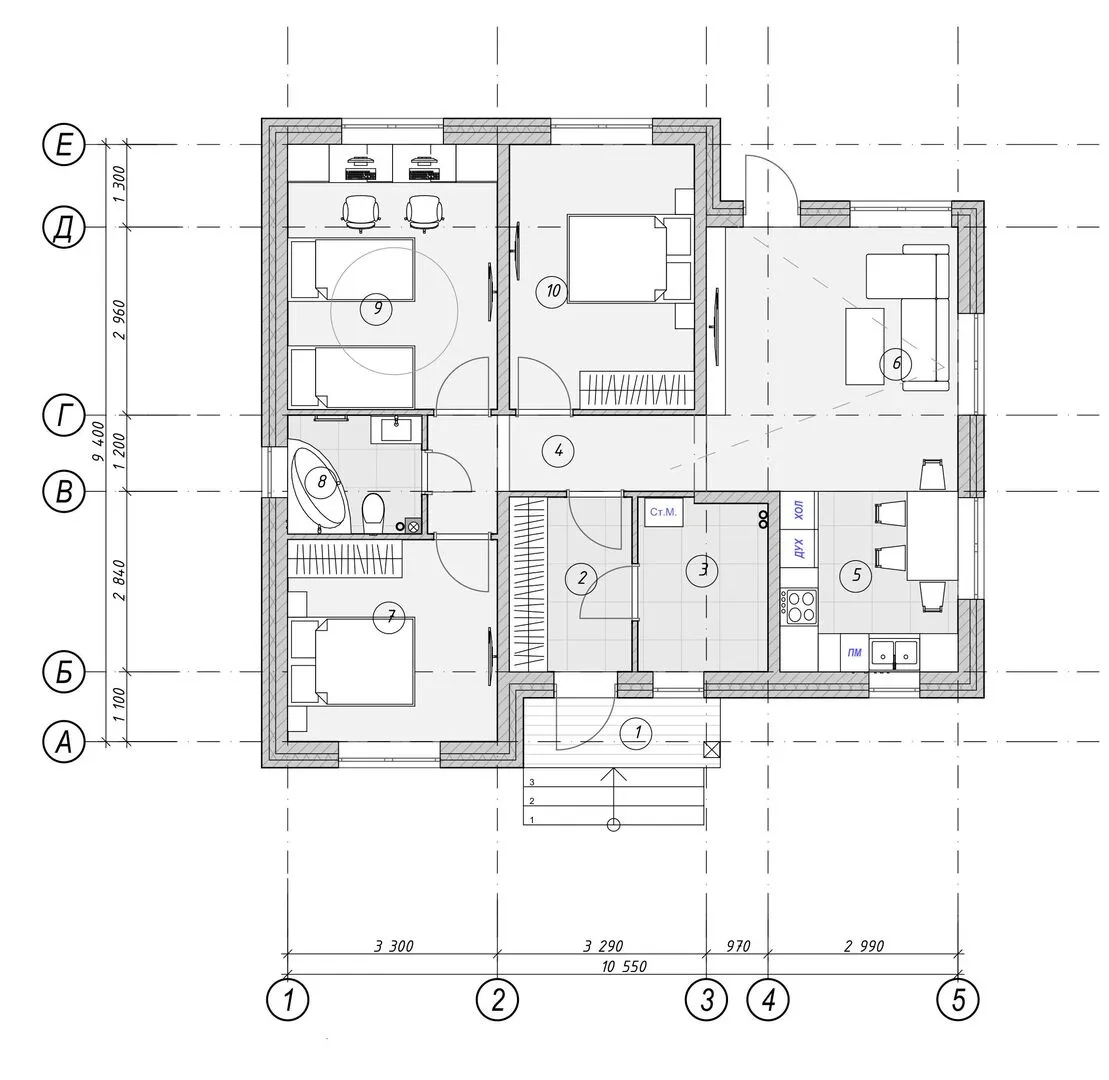
Жилой дом № 3 — это воплощение классической элегантности и простоты в каждой детали. Его один надземный этаж, построенный из прочных керамзитобетонных блоков, обеспечивает тепло- и звукоизоляцию, а высокое качество строительства гарантирует долгий срок эксплуатации. Удобная, планомерная планировка позволяет создать уютный семейный уголок, а ровная, четырехскатная (вальмовая) крыша придает фасаду изящный, но строгий вид, подчеркивая симметрию и гармонию стиля. Каждый квадратный метр в этом доме пропитан атмосферой тепла и уюта. Внутренние стены из керамзитобетонных блоков сохраняют стабильную температуру, а широкие окна, открывающие вид на живописные окрестности, делают комнату яркой и светлой во всём году. Отсутствие лишних элементов, таких как веранда или чердачное помещение, делает дом лаконичным и функциональным, обеспечивая максимальную простоту ухода за имуществом. Дом № 3 — это идеальное сочетание традиционной архитектурной ценности и современных требований к комфортному бытию. С его помощью вы сможете создать настоящий дом, где каждая деталь продумана, а уют и тепло становятся вашими постоянными спутниками. Приглашаем вас открыть для себя мир, где класс и качество встречаются в одном месте.

Характеристики дома

Архитектурный стиль
Классический
Автоматизированное регулирование параметров теплоносителя
-
Балконы/лоджии
Отсутствуют
Чердачное помещение
Нет
Датчики протечки воды
-
Эксплуатируемая или зеленая кровля
-
Электроснабжение
Центральное
Газоснабжение
Не предусмотрено
Изоляция воздушного шума
-
Камин
Нет
Класс энергоэффективности
-
Класс энергосбережения
-
Количество надземных этажей
1
Круглогодичное проживание
Да
Материал кровли
Металлочерепица
Материал перекрытий
Деревянные
Материал внешних стен
Керамзитобетонные блоки
Материал внутренних перегородок
Блочные
Модульное строительство с конструкциями заводского изготовления
Нет
Объем надземной части
743 м3
Основной материал фасадов
Облицовочный кирпич
Отопление
Индивидуальное
Площадь дома
99 м2
Площадь застройки
148 м2
Подвальное помещение
Нет
Показатель компактности здания
-
Приборы учета тепловой энергии
-
Пристроенный гараж/крытая автостоянка
Нет
Противопожарная система
Нет
Санузлы
1
Совмещенная кухня-гостиная
Да
Спальни
3
Терраса
Нет
Тип фундамента
Свайно-ростверковый
Тип кровли
Четырехскатная (вальмовая)
Толщина внешних стен
500 мм
Толщина внутренних перегородок
100 мм
Улучшенные шумовые характеристики
-
Вентиляция
Естественная
Веранда
Нет
Водоотведение
Локальные очистные сооружения
Водоснабжение
Индивидуальное
Высота дома
5 м
Высота потолков
2.8 м

Планировка

Фасад дома

Александр

Закажите выезд инженера

Александр

Выездной инженер
Закажите выезд инженера для точной диагностики и профессиональной консультации по инженерным системам. Специалист приедет в удобное время, проведёт осмотр, рассчитает стоимость работ и подберёт оптимальные решения для вашего дома.


    Похожие проекты

    Ипотека и
    рассрочка
    ОБЪЕКТ ИНДИВИДУАЛЬНОГО ЖИЛОГО СТРОИТЕЛЬСТВА
    Стоимость от:
    10 381 140
    Проект от: 66 150
    Этажей 1
    Санузлы 1
    Спальни 3
    Смотреть
    Ипотека и
    рассрочка
    Проект дома КС-3
    Стоимость от:
    6 212 360
    Проект от: 35 100
    Этажей 1
    Санузлы 2
    Спальни 3
    Смотреть
    Ипотека и
    рассрочка
    Двухэтажный дом Швеция 150
    Стоимость от:
    12 041 640
    Проект от: 83 700
    Этажей 2
    Санузлы 3
    Спальни 3
    Смотреть
    Ипотека и
    рассрочка
    К 1-70-1
    Стоимость от:
    5 264 600
    Проект от: 31 500
    Этажей 1
    Санузлы 1
    Спальни 2
    Смотреть
    Ипотека и
    рассрочка
    S 1-52
    Стоимость от:
    3 839 220
    Проект от: 22 950
    Этажей 1
    Санузлы 1
    Спальни 2
    Смотреть
    Ипотека и
    рассрочка
    Проект «ЮТЭН»
    Стоимость от:
    7 403 660
    Проект от: 41 850
    Этажей 1
    Санузлы 2
    Спальни 3
    Смотреть

    Как узнать стоимость дома

    back
    Оставляете заявку
    Вы заполняете форму на сайте или звоните нам. Менеджер Лайвкрафт связывается с вами для уточнения деталей: тип дома, площадь, материалы, участок строительства.
    back
    Консультация и подбор решения
    Наш специалист помогает выбрать оптимальный тип дома и конструкцию с учётом бюджета, сроков и целей — будь то дом для постоянного проживания или дача.
    back
    Расчёт предварительной стоимости
    Инженер делает первичный расчёт стоимости строительства по вашим параметрам: фундамент, коробка, кровля, отделка. Вы получаете смету с разбивкой по этапам.
    back
    Корректировка и утверждение сметы
    При необходимости вносим изменения — например, замену материалов или сокращение этапов. После согласования формируется окончательная фиксированная смета.
    back
    Заключение договора и старт работ
    После утверждения сметы заключаем официальный договор с гарантией. Вы получаете прозрачный график и точную стоимость — без скрытых расходов.

    Заказать конусльтацию по:Жилой Дом № 3

    Фото 1 Жилой Дом № 3


      Наши
      контакты

      Дмитров
      Опорный проезд 28Б
      (индустриальный парк Ниагара)
      9:00 до 18:00

      Корзина