4.9
Рейтинг на основании 120 отзывов
Дмитров
Опорный проезд 28Б
(индустриальный парк Ниагара)
Бренд "Дмитров-Дело" c 2008 года на рынке строительства в Дмитрове
Звоните 9:00 до 18:00 8 (915) 055-33-61
Бренд "Дмитров-Дело" c 2008 года на рынке строительства в Дмитрове

Жилой дом ДКБ-97

Стоимость проекта от:
44 550 ₽
БЕСПЛАТНО! ПРИ ЗАКАЗЕ СТРОИТЕЛЬСТВА
Стоимость строительства от:
6 283 530 ₽
Артикул ART-20099
Дата 26.12.2025
Архитектурный стиль Американский/Канадский
Количество надземных этажей 1
Круглогодичное проживание Да
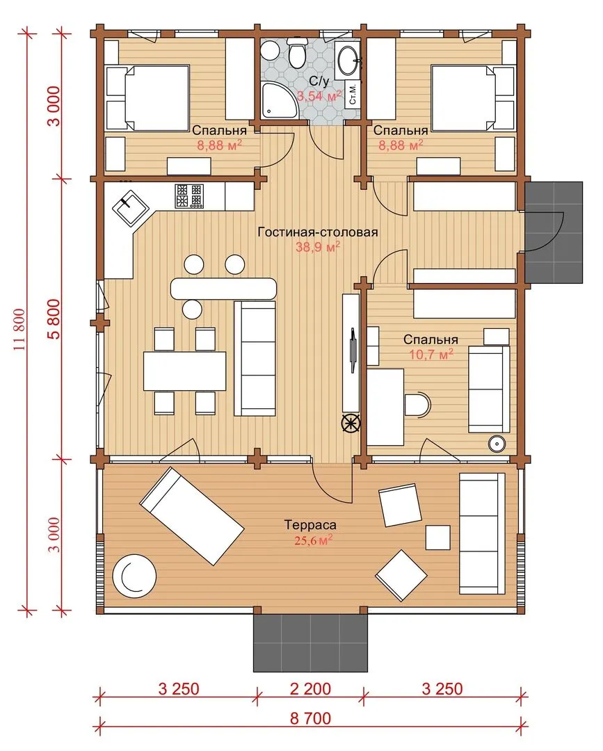
Площадь дома 99 м2
Санузлы 1
Спальни 3

Описание

Прекрасный дом из серии DKБ‑97 – это сочетание непринужденной американской простоты и элегантности канадского дизайна, созданное специально для того, чтобы каждый день в нём чувствовали тепло и уют. Одноэтажный, но при этом настолько функционально, насколько удобно, он идеально подходит для круглогодичного проживания: просторные комнаты, большие внутренние световые пространства и щедрое использование естественного света делают ваш дом уютным убежищем от городской суеты. Внешний вид – это тепло клееного бруса, которое не только прекрасно держит тепло, но и добавляет интерьеру ощущение живой природной красоты. Двускатная крыша, типичная для северных семей, сдерживает атмосферу и придает дому классический, но непритязательный вид. На террасе, которой достаточно для небольшого огорода, сада или даже небольшой столовой с видом на прилегающий сад, вы сможете проводить приятные вечера, погружаясь в атмосферу собственного уединения. В этом доме каждый элемент продуман до мелочей – от стиля до практичности, чтобы вы всегда чувствовали себя дома.

Характеристики дома

Архитектурный стиль
Автоматизированное регулирование параметров теплоносителя
Да
Балконы/лоджии
Отсутствуют
Чердачное помещение
Нет
Датчики протечки воды
Нет
Эксплуатируемая или зеленая кровля
Нет
Электроснабжение
Центральное
Газоснабжение
Не предусмотрено
Изоляция воздушного шума
Нет
Камин
Нет
Класс энергоэффективности
-
Класс энергосбережения
-
Количество надземных этажей
1
Круглогодичное проживание
Да
Материал кровли
Металлочерепица
Материал перекрытий
Деревянные
Материал внешних стен
Материал внутренних перегородок
Деревянные
Модульное строительство с конструкциями заводского изготовления
Нет
Объем надземной части
250 м3
Основной материал фасадов
Дерево
Отопление
Индивидуальное
Площадь дома
99 м2
Площадь застройки
107 м2
Подвальное помещение
Нет
Показатель компактности здания
-
Приборы учета тепловой энергии
Да
Пристроенный гараж/крытая автостоянка
Нет
Противопожарная система
Нет
Санузлы
1
Совмещенная кухня-гостиная
Да
Спальни
3
Терраса
Да
Тип фундамента
Свайный
Тип кровли
Толщина внешних стен
160 мм
Толщина внутренних перегородок
160 мм
Улучшенные шумовые характеристики
Нет
Вентиляция
Естественная
Веранда
Нет
Водоотведение
2 варианта
Водоснабжение
2 варианта
Высота дома
4.2 м
Высота потолков
3.15 м

Планировка

Фасад дома

Александр

Закажите выезд инженера

Александр

Выездной инженер
Закажите выезд инженера для точной диагностики и профессиональной консультации по инженерным системам. Специалист приедет в удобное время, проведёт осмотр, рассчитает стоимость работ и подберёт оптимальные решения для вашего дома.


    Похожие проекты

    Ипотека и
    рассрочка
    Кортленд 92
    Стоимость от:
    5 491 475
    Проект от: 42 750
    Этажей 1
    Санузлы 2
    Спальни 3
    Смотреть
    Ипотека и
    рассрочка
    Стандарт-100 ТИП-3
    Стоимость от:
    8 340 420
    Проект от: 49 950
    Этажей 1
    Санузлы 1
    Спальни 3
    Смотреть
    Ипотека и
    рассрочка
    Авторский проект «Самар»
    Стоимость от:
    11 453 760
    Проект от: 73 800
    Этажей 2
    Санузлы 2
    Спальни 4
    Смотреть
    Ипотека и
    рассрочка
    Проект загородного дома NHD-155
    Стоимость от:
    10 561 440
    Проект от: 65 700
    Этажей 2
    Санузлы 2
    Спальни 4
    Смотреть
    Ипотека и
    рассрочка
    Проект компактного дома со скатной кровлей S-162
    Стоимость от:
    13 269 600
    Проект от: 85 500
    Этажей 2
    Санузлы 2
    Спальни 3
    Смотреть
    Ипотека и
    рассрочка
    Загородный дом «Березово»
    Стоимость от:
    13 441 780
    Проект от: 80 550
    Этажей 1
    Санузлы 1
    Спальни 3
    Смотреть

    Как узнать стоимость дома

    back
    Оставляете заявку
    Вы заполняете форму на сайте или звоните нам. Менеджер Лайвкрафт связывается с вами для уточнения деталей: тип дома, площадь, материалы, участок строительства.
    back
    Консультация и подбор решения
    Наш специалист помогает выбрать оптимальный тип дома и конструкцию с учётом бюджета, сроков и целей — будь то дом для постоянного проживания или дача.
    back
    Расчёт предварительной стоимости
    Инженер делает первичный расчёт стоимости строительства по вашим параметрам: фундамент, коробка, кровля, отделка. Вы получаете смету с разбивкой по этапам.
    back
    Корректировка и утверждение сметы
    При необходимости вносим изменения — например, замену материалов или сокращение этапов. После согласования формируется окончательная фиксированная смета.
    back
    Заключение договора и старт работ
    После утверждения сметы заключаем официальный договор с гарантией. Вы получаете прозрачный график и точную стоимость — без скрытых расходов.

    Заказать конусльтацию по:Жилой дом ДКБ-97

    Фото 1 Жилой дом ДКБ-97


      Наши
      контакты

      Дмитров
      Опорный проезд 28Б
      (индустриальный парк Ниагара)
      9:00 до 18:00

      Корзина