4.9
Рейтинг на основании 120 отзывов
Дмитров
Опорный проезд 28Б
(индустриальный парк Ниагара)
Бренд "Дмитров-Дело" c 2008 года на рынке строительства в Дмитрове
Звоните 9:00 до 18:00 8 (915) 055-33-61
Бренд "Дмитров-Дело" c 2008 года на рынке строительства в Дмитрове

Жилой дом «Тенерифе»

Стоимость проекта от:
92 700 ₽
БЕСПЛАТНО! ПРИ ЗАКАЗЕ СТРОИТЕЛЬСТВА
Стоимость строительства от:
14 387 040 ₽
Артикул ART-18426
Дата 26.12.2025
Архитектурный стиль Скандинавский
Количество надземных этажей 2
Круглогодичное проживание Да
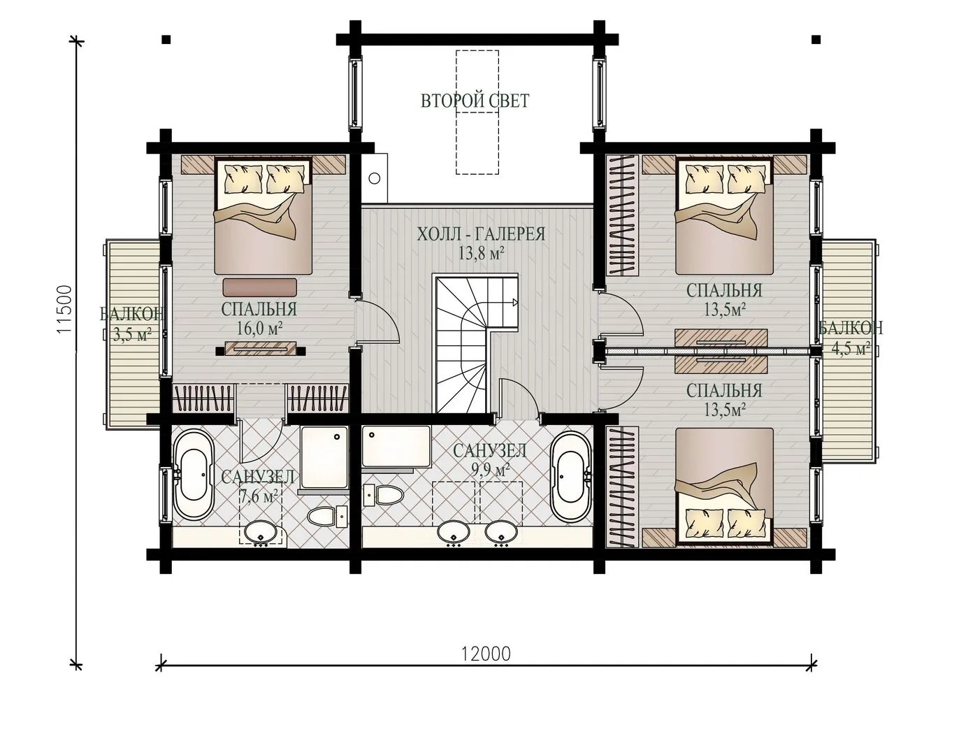
Площадь дома 206 м2
Санузлы 3
Спальни 4

Описание

Звуки прибоя и аромат свежего моря сливаются в одну мелодию у окон домика «Тенерифе». Двухэтажная конструкция, выполненная из мягкого клееного бруса, словно обнимает гостя, даря ощущение уюта и тепла круглый год. Архитектурный стиль – скандинавский: простота линий, нежные оттенки дерева, свет, проникающий в каждый уголок. Это не просто жильё, а маленький уголок природы, где каждый день начинается и заканчивается в гармонии с окружающим миром. Два балкона и лоджии открывают панораму вида на зелёные просторы, а просторная терраса приглашает проводить вечерние часы, наблюдая за закатом над горизонтом. Липкая ткань внешних стен, выкрашенная в мягкие оттенки, отражает лучи солнца, создавая атмосферу свежести и лёгкости. Гладкая двускатная крыша делает образ более завершённым, придавая дому элегантность и практичность. В «Тенерифе» каждая деталь продумана: от ровных планировочных зон до выбора материалов, которые дарят здоровье и комфорт. Здесь нет лишних перегородок, ни гаража, ни чердака — всё лишнее ушло в прошлое, чтобы оставить только то, что действительно необходимо для вашего благополучия. Это дом, где хочется жить, и где каждый момент превращается в настоящее наслаждение жизнью.

Характеристики дома

Архитектурный стиль
Автоматизированное регулирование параметров теплоносителя
Да
Балконы/лоджии
2
Чердачное помещение
Нет
Датчики протечки воды
Да
Эксплуатируемая или зеленая кровля
Нет
Электроснабжение
2 варианта
Газоснабжение
Не предусмотрено
Изоляция воздушного шума
Нет
Камин
Да
Класс энергоэффективности
-
Класс энергосбережения
-
Количество надземных этажей
2
Круглогодичное проживание
Да
Материал кровли
Металлочерепица
Материал перекрытий
Деревянные
Материал внешних стен
Материал внутренних перегородок
Деревянные
Модульное строительство с конструкциями заводского изготовления
Нет
Объем надземной части
550 м3
Основной материал фасадов
Дерево
Отопление
Индивидуальное
Площадь дома
206 м2
Площадь застройки
135 м2
Подвальное помещение
Нет
Показатель компактности здания
-
Приборы учета тепловой энергии
Да
Пристроенный гараж/крытая автостоянка
Нет
Противопожарная система
Нет
Санузлы
3
Совмещенная кухня-гостиная
Да
Спальни
4
Терраса
Да
Тип фундамента
Плитный
Тип кровли
Толщина внешних стен
204 мм
Толщина внутренних перегородок
204 мм
Улучшенные шумовые характеристики
Нет
Вентиляция
3 варианта
Веранда
Нет
Водоотведение
2 варианта
Водоснабжение
2 варианта
Высота дома
7 м
Высота потолков
3 м

Планировка

Фасад дома

Александр

Закажите выезд инженера

Александр

Выездной инженер
Закажите выезд инженера для точной диагностики и профессиональной консультации по инженерным системам. Специалист приедет в удобное время, проведёт осмотр, рассчитает стоимость работ и подберёт оптимальные решения для вашего дома.


    Похожие проекты

    Ипотека и
    рассрочка
    Одноэтажный дом №349-1
    Стоимость от:
    7 641 920
    Проект от: 43 200
    Этажей 1
    Санузлы 1
    Спальни 3
    Смотреть
    Ипотека и
    рассрочка
    Индивидуальный дом 153
    Стоимость от:
    10 468 260
    Проект от: 68 850
    Этажей 1
    Санузлы 3
    Спальни 3
    Смотреть
    Ипотека и
    рассрочка
    Одноэтажный дом OPTIMA — 85
    Стоимость от:
    8 545 020
    Проект от: 54 450
    Этажей 1
    Санузлы 1
    Спальни 3
    Смотреть
    Ипотека и
    рассрочка
    Дом по Васту
    Стоимость от:
    8 333 160
    Проект от: 53 100
    Этажей 1
    Санузлы 2
    Спальни 3
    Смотреть
    Ипотека и
    рассрочка
    Дом Скай Лайт 165
    Стоимость от:
    11 807 040
    Проект от: 74 700
    Этажей 2
    Санузлы 3
    Спальни 4
    Смотреть
    Ипотека и
    рассрочка
    Сайдыы
    Стоимость от:
    14 074 940
    Проект от: 79 650
    Этажей 1
    Санузлы 1
    Спальни 4
    Смотреть

    Как узнать стоимость дома

    back
    Оставляете заявку
    Вы заполняете форму на сайте или звоните нам. Менеджер Лайвкрафт связывается с вами для уточнения деталей: тип дома, площадь, материалы, участок строительства.
    back
    Консультация и подбор решения
    Наш специалист помогает выбрать оптимальный тип дома и конструкцию с учётом бюджета, сроков и целей — будь то дом для постоянного проживания или дача.
    back
    Расчёт предварительной стоимости
    Инженер делает первичный расчёт стоимости строительства по вашим параметрам: фундамент, коробка, кровля, отделка. Вы получаете смету с разбивкой по этапам.
    back
    Корректировка и утверждение сметы
    При необходимости вносим изменения — например, замену материалов или сокращение этапов. После согласования формируется окончательная фиксированная смета.
    back
    Заключение договора и старт работ
    После утверждения сметы заключаем официальный договор с гарантией. Вы получаете прозрачный график и точную стоимость — без скрытых расходов.

    Заказать конусльтацию по:Жилой дом «Тенерифе»

    Фото 1 Жилой дом «Тенерифе»


      Наши
      контакты

      Дмитров
      Опорный проезд 28Б
      (индустриальный парк Ниагара)
      9:00 до 18:00

      Корзина