4.9
Рейтинг на основании 120 отзывов
Дмитров
Опорный проезд 28Б
(индустриальный парк Ниагара)
Бренд "Дмитров-Дело" c 2008 года на рынке строительства в Дмитрове
Звоните 9:00 до 18:00 8 (915) 055-33-61
Бренд "Дмитров-Дело" c 2008 года на рынке строительства в Дмитрове

Жилой одноэтажный дом «Классик-Эконом»

Стоимость проекта от:
39 600 ₽
БЕСПЛАТНО! ПРИ ЗАКАЗЕ СТРОИТЕЛЬСТВА
Стоимость строительства от:
6 614 960 ₽
Артикул ART-16969
Дата 26.12.2025
Архитектурный стиль Классический
Количество надземных этажей 1
Круглогодичное проживание Да
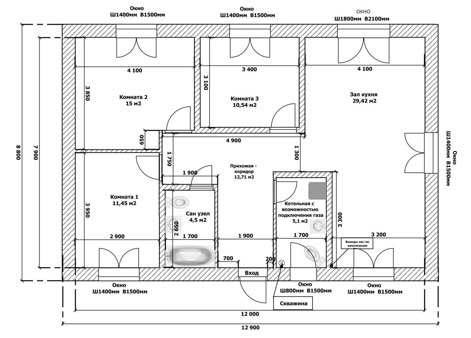
Площадь дома 88 м2
Санузлы 1
Спальни 3

Описание

Добро пожаловать в уютный уголок, созданный с любовью к классике и вниманием к деталям. Дом «Классик‑Эконом» – одноэтажный образец традиционной архитектуры, в котором каждая деталь говорит о комфорте и прочности. Его строгая, но в то же время благородная форма с двускатной кровлей создает ощущение уверенности и защищённости, а тепло‑изолированные газобетонные блоки обеспечивают оптимальный микроклимат в любой сезон. Благодаря круглогодичному проживанию вы можете наслаждаться мягким светом и свежим воздухом даже в самые суровые зимы, ведь изоляция и качество материалов гарантируют высокий уровень тепловой защиты. Интерьер, продуманный до мелочей, сочетает простоту и функциональность: открытые пространства, легкие входные зоны и продуманные бытовые подсистемы создают идеальный фон для семейной жизни. Не требуя наличия гаража или дополнительных наружных площадей, дом экономит ресурсы и время. В «Классик‑Эконом» вы найдёте идеальный баланс между экономичностью, уютом и долговечностью, и сможете сразу погрузиться в атмосферу дома, где классический шарм переплетается с современным комфортом. Этот дом – это ваш новый, надежный и стильный старт, где каждый день начинается с чувства домашнего спокойствия и благополучия.

Характеристики дома

Архитектурный стиль
Автоматизированное регулирование параметров теплоносителя
Да
Балконы/лоджии
Отсутствуют
Чердачное помещение
Нет
Датчики протечки воды
Нет
Эксплуатируемая или зеленая кровля
Нет
Электроснабжение
Центральное
Газоснабжение
Индивидуальное
Изоляция воздушного шума
Да
Камин
Нет
Класс энергоэффективности
-
Класс энергосбережения
-
Количество надземных этажей
1
Круглогодичное проживание
Да
Материал кровли
Металлочерепица
Материал перекрытий
Монолитные железобетонные
Материал внешних стен
Материал внутренних перегородок
Блочные
Модульное строительство с конструкциями заводского изготовления
Нет
Объем надземной части
288 м3
Основной материал фасадов
Штукатурка
Отопление
Индивидуальное
Площадь дома
88 м2
Площадь застройки
113 м2
Подвальное помещение
Нет
Показатель компактности здания
-
Приборы учета тепловой энергии
Да
Пристроенный гараж/крытая автостоянка
Нет
Противопожарная система
Нет
Санузлы
1
Совмещенная кухня-гостиная
Да
Спальни
3
Терраса
Нет
Тип фундамента
Свайно-ростверковый
Тип кровли
Толщина внешних стен
300 мм
Толщина внутренних перегородок
100 мм
Улучшенные шумовые характеристики
Нет
Вентиляция
Естественная
Веранда
Нет
Водоотведение
Локальные очистные сооружения
Водоснабжение
Индивидуальное
Высота дома
4.5 м
Высота потолков
2.9 м

Планировка

Фасад дома

Александр

Закажите выезд инженера

Александр

Выездной инженер
Закажите выезд инженера для точной диагностики и профессиональной консультации по инженерным системам. Специалист приедет в удобное время, проведёт осмотр, рассчитает стоимость работ и подберёт оптимальные решения для вашего дома.


    Похожие проекты

    Ипотека и
    рассрочка
    Дом комфорт-класса с минималистичной архитектурой «TALO NEO 76»
    Стоимость от:
    6 473 940
    Проект от: 45 900
    Этажей 1
    Санузлы 2
    Спальни 2
    Смотреть
    Ипотека и
    рассрочка
    Мамонтово-9
    Стоимость от:
    10 085 400
    Проект от: 70 200
    Этажей 2
    Санузлы 2
    Спальни 5
    Смотреть
    Ипотека и
    рассрочка
    Жилой дом БКД-78
    Стоимость от:
    6 531 965
    Проект от: 50 850
    Этажей 1
    Санузлы 2
    Спальни 3
    Смотреть
    Ипотека и
    рассрочка
    Загородный дом «Барнхаус-92
    Стоимость от:
    4 238 520
    Проект от: 34 200
    Этажей 1
    Санузлы 1
    Спальни 2
    Смотреть
    Ипотека и
    рассрочка
    Загородный дом «Мурманск»
    Стоимость от:
    9 174 120
    Проект от: 68 850
    Этажей 2
    Санузлы 2
    Спальни 3
    Смотреть
    Ипотека и
    рассрочка
    Проект загородного дома NHD-144
    Стоимость от:
    13 306 560
    Проект от: 82 800
    Этажей 2
    Санузлы 2
    Спальни 4
    Смотреть

    Как узнать стоимость дома

    back
    Оставляете заявку
    Вы заполняете форму на сайте или звоните нам. Менеджер Лайвкрафт связывается с вами для уточнения деталей: тип дома, площадь, материалы, участок строительства.
    back
    Консультация и подбор решения
    Наш специалист помогает выбрать оптимальный тип дома и конструкцию с учётом бюджета, сроков и целей — будь то дом для постоянного проживания или дача.
    back
    Расчёт предварительной стоимости
    Инженер делает первичный расчёт стоимости строительства по вашим параметрам: фундамент, коробка, кровля, отделка. Вы получаете смету с разбивкой по этапам.
    back
    Корректировка и утверждение сметы
    При необходимости вносим изменения — например, замену материалов или сокращение этапов. После согласования формируется окончательная фиксированная смета.
    back
    Заключение договора и старт работ
    После утверждения сметы заключаем официальный договор с гарантией. Вы получаете прозрачный график и точную стоимость — без скрытых расходов.

    Заказать конусльтацию по:Жилой одноэтажный дом «Классик-Эконом»

    Фото 1 Жилой одноэтажный дом «Классик-Эконом»


      Наши
      контакты

      Дмитров
      Опорный проезд 28Б
      (индустриальный парк Ниагара)
      9:00 до 18:00

      Корзина