4.9
Рейтинг на основании 120 отзывов
Дмитров
Опорный проезд 28Б
(индустриальный парк Ниагара)
Бренд "Дмитров-Дело" c 2008 года на рынке строительства в Дмитрове
Звоните 9:00 до 18:00 8 (915) 055-33-61
Бренд "Дмитров-Дело" c 2008 года на рынке строительства в Дмитрове

06-24 Хайберг + лофт 52 м

Стоимость проекта от:
89 100 ₽
БЕСПЛАТНО! ПРИ ЗАКАЗЕ СТРОИТЕЛЬСТВА
Стоимость строительства от:
12 567 060 ₽
Артикул ART-13427
Дата 25.12.2025
Архитектурный стиль Скандинавский
Количество надземных этажей 1
Круглогодичное проживание Да
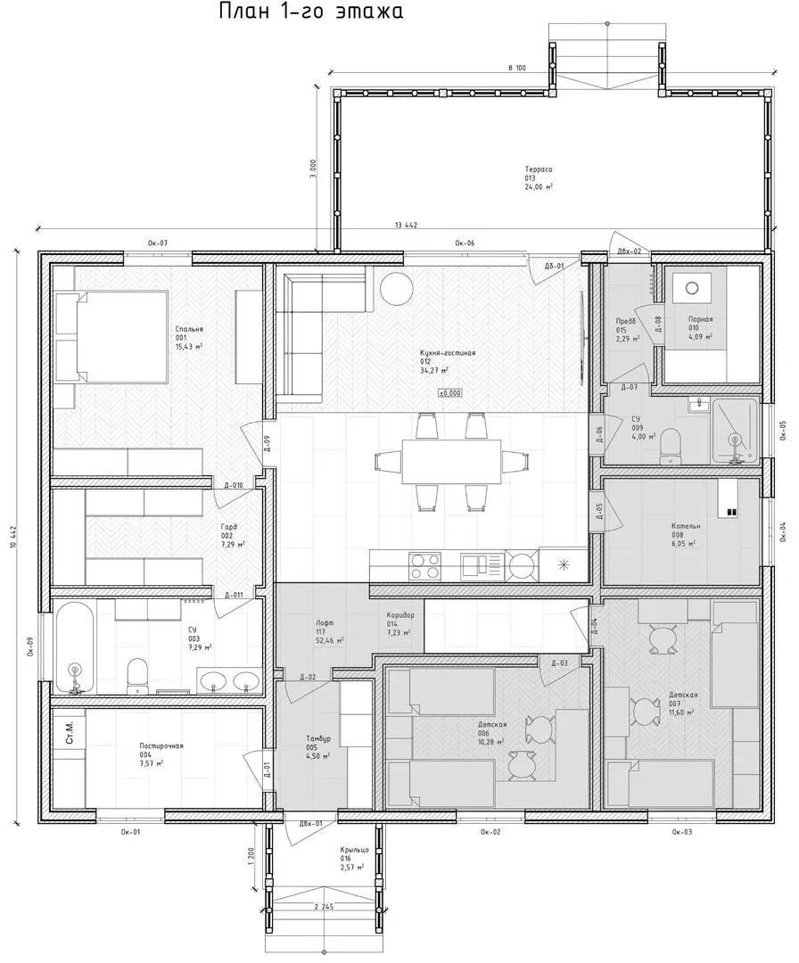
Площадь дома 198 м2
Санузлы 2
Спальни 3

Описание

Великолепный дом 06‑24 «Хайберг + лофт» – это идеальное сочетание современного комфорта и лаконичной скандинавской эстетики. В одноквартирном здании площадью 52 м² каждый сантиметр продуман до мелочей: открытая планировка, светлые стены и естественные материалы создают простор и лёгкость, а крошечный лофт становится дополнительным уголком для творчества, хобби или тихой зоны отдыха. Теплота и уют гарантированы благодаря использованию SIP‑панелей на наружных стенах – инновационной технологии, обеспечивающей отличную тепло- и звукоизоляцию даже в холодное время года. Кровля в стиле двухскатной конструкции гармонично вписывается в общий образ, подчеркивая простоту линий скандинавского дизайна. Отсутствие балконов и веранд не лишает дома функциональности: рядом расположен просторный терраса, где вы сможете наслаждаться свежим воздухом, читать книгу или проводить вечерний обед в кругу семьи. Дом идеален для круглогодичного проживания: каждая стена, окно и элемент архитектуры создана с учётом природных климатических особенностей региона, а компактные размеры позволяют контролировать эксплуатационные расходы. Этот уютный уголок приглашает тех, кто ценит сочетание простого и стильного, ищет тихий и энергоэффективный дом с возможностью индивидуального использования небольшого, но гибкого пространства лофта. Погрузитесь в атмосферу спокойствия и уединения, созданную с любовью к деталям и уважением к природе. Ваша новая жизнь ждёт под открытым небом в 06‑24 «Хайберг + лофт».

Характеристики дома

Архитектурный стиль
Автоматизированное регулирование параметров теплоносителя
Нет
Балконы/лоджии
Отсутствуют
Чердачное помещение
Нет
Датчики протечки воды
Нет
Эксплуатируемая или зеленая кровля
Нет
Электроснабжение
Центральное
Газоснабжение
Индивидуальное
Изоляция воздушного шума
Нет
Камин
Нет
Класс энергоэффективности
-
Класс энергосбережения
-
Количество надземных этажей
1
Круглогодичное проживание
Да
Материал кровли
Металлочерепица
Материал перекрытий
Деревянные
Материал внешних стен
Материал внутренних перегородок
Деревянные
Модульное строительство с конструкциями заводского изготовления
Нет
Объем надземной части
541 м3
Основной материал фасадов
Дерево
Отопление
Индивидуальное
Площадь дома
198 м2
Площадь застройки
160 м2
Подвальное помещение
Нет
Показатель компактности здания
-
Приборы учета тепловой энергии
Нет
Пристроенный гараж/крытая автостоянка
Нет
Противопожарная система
Нет
Санузлы
2
Совмещенная кухня-гостиная
Да
Спальни
3
Терраса
Да
Тип фундамента
Свайный
Тип кровли
Толщина внешних стен
221 мм
Толщина внутренних перегородок
145 мм
Улучшенные шумовые характеристики
Нет
Вентиляция
Естественная
Веранда
Нет
Водоотведение
Локальные очистные сооружения
Водоснабжение
Индивидуальное
Высота дома
6.53 м
Высота потолков
2.85 м

Планировка

Фасад дома

Александр

Закажите выезд инженера

Александр

Выездной инженер
Закажите выезд инженера для точной диагностики и профессиональной консультации по инженерным системам. Специалист приедет в удобное время, проведёт осмотр, рассчитает стоимость работ и подберёт оптимальные решения для вашего дома.


    Похожие проекты

    Ипотека и
    рассрочка
    RG 5972
    Стоимость от:
    14 200 800
    Проект от: 85 500
    Этажей 2
    Санузлы 2
    Спальни 3
    Смотреть
    Ипотека и
    рассрочка
    Одноэтажный дом из газоблока 8,78*15,50 «БС-150»
    Стоимость от:
    7 569 540
    Проект от: 48 150
    Этажей 1
    Санузлы 2
    Спальни 3
    Смотреть
    Ипотека и
    рассрочка
    Проект дома 021-15
    Стоимость от:
    12 943 680
    Проект от: 81 900
    Этажей 2
    Санузлы 2
    Спальни 3
    Смотреть
    Ипотека и
    рассрочка
    Швеция150
    Стоимость от:
    10 707 840
    Проект от: 70 200
    Этажей 2
    Санузлы 3
    Спальни 4
    Смотреть
    Ипотека и
    рассрочка
    Одноэтажный жилой дом с тремя спальнями
    Стоимость от:
    5 077 600
    Проект от: 36 000
    Этажей 1
    Санузлы 1
    Спальни 3
    Смотреть
    Ипотека и
    рассрочка
    Жилой дом № 4
    Стоимость от:
    7 140 100
    Проект от: 42 750
    Этажей 1
    Санузлы 2
    Спальни 3
    Смотреть

    Как узнать стоимость дома

    back
    Оставляете заявку
    Вы заполняете форму на сайте или звоните нам. Менеджер Лайвкрафт связывается с вами для уточнения деталей: тип дома, площадь, материалы, участок строительства.
    back
    Консультация и подбор решения
    Наш специалист помогает выбрать оптимальный тип дома и конструкцию с учётом бюджета, сроков и целей — будь то дом для постоянного проживания или дача.
    back
    Расчёт предварительной стоимости
    Инженер делает первичный расчёт стоимости строительства по вашим параметрам: фундамент, коробка, кровля, отделка. Вы получаете смету с разбивкой по этапам.
    back
    Корректировка и утверждение сметы
    При необходимости вносим изменения — например, замену материалов или сокращение этапов. После согласования формируется окончательная фиксированная смета.
    back
    Заключение договора и старт работ
    После утверждения сметы заключаем официальный договор с гарантией. Вы получаете прозрачный график и точную стоимость — без скрытых расходов.

    Заказать конусльтацию по:06-24 Хайберг + лофт 52 м

    Фото 1 06-24 Хайберг + лофт 52 м


      Наши
      контакты

      Дмитров
      Опорный проезд 28Б
      (индустриальный парк Ниагара)
      9:00 до 18:00

      Корзина